Property
Account |
| Property ID: | 397617 | Abbreviated Legal Description: | SPRINGTREE 3 LOT 37 |
| Geographic ID: | S8205-03-00037-0 | Agent Code: | |
| Type: | Real | | |
| Tax Area: | 100 - APPRAISER-OH Schl Dist, in OH | Land Use Code | 11 |
| Open Space: | N | DFL | N |
| Historic Property: | N | Remodel Property: | N |
| Multi-Family Redevelopment: | N | | |
| Township: | | Section: | |
| Range: | |
Location |
| Address: | 1385 SW LESCHI DR OAK HARBOR, WA 98277 | Mapsco: | |
| Neighborhood: | Cycle 1 | Map ID: | 252 |
| Neighborhood CD: | 1 |
Owner |
| Name: | WHITE, IAN PATRICK | Owner ID: | 313348 |
| Mailing Address: | SALLY ANN WHITE 1385 SW LESCHI DR OAK HARBOR, WA 98277 | % Ownership: | 100.0000000000% |
| | | Exemptions: | |
Taxes and Assessment Details
Values
| (+) Improvement Homesite Value: | + | $0 | |
| (+) Improvement Non-Homesite Value: | + | $402,435 | |
| (+) Land Homesite Value: | + | $0 | |
| (+) Land Non-Homesite Value: | + | $200,000 | |
| (+) Curr Use (HS): | + | $0 | $0 |
| (+) Curr Use (NHS): | + | $0 | $0 |
| | | -------------------------- | |
| (=) Market Value: | = | $602,435 | |
| (–) Productivity Loss: | – | $0 | |
| | | -------------------------- | |
| (=) Subtotal: | = | $602,435 | |
| (+) Senior Appraised Value: | + | $0 | |
| (+) Non-Senior Appraised Value: | + | $602,435 | |
| | | -------------------------- | |
| (=) Total Appraised Value: | = | $602,435 | |
| (–) Senior Exemption Loss: | – | $0 | |
| (–) Exemption Loss: | – | $0 | |
| | | -------------------------- | |
| (=) Taxable Value: | = | $602,435 | |
Taxing Jurisdiction
| Owner: | WHITE, IAN PATRICK | | |
| % Ownership: | 100.0000000000% | | |
| Total Value: | $602,435 | | |
| Tax Area: | 100 - APPRAISER-OH Schl Dist, in OH |
| CF | Conservation Futures | 0.0313996660 | $602,435 | $602,435 | $18.92 | | |
| CEM1 | Cemetery #1 | 0.0040018856 | $602,435 | $602,435 | $2.41 | | |
| COH | City of Oak Harbor | 2.3090730572 | $602,435 | $602,435 | $1,391.07 | | |
| OAKBOND | City of Oak Harbor BOND | 0.1902260131 | $602,435 | $602,435 | $114.60 | | |
| HOBOND | Hospital BOND | 0.1893405597 | $602,435 | $602,435 | $114.07 | | |
| HOGEN | Hospital GEN | 0.3848777722 | $602,435 | $602,435 | $231.86 | | |
| CE | County Current Expense | 0.3674210519 | $602,435 | $602,435 | $221.35 | | |
| ISLANDEMS | Hospital GEN (EMS) | 0.4952018576 | $602,435 | $602,435 | $298.33 | | |
| LIB | Library Sno-Isle GEN | 0.3039084203 | $602,435 | $602,435 | $183.09 | | |
| NWHIDPRMT | P & R N Whidbey GEN | 0.1990272349 | $602,435 | $602,435 | $119.90 | | |
| SCH201MO | School 201 Enrichment | 2.3851112745 | $602,435 | $602,435 | $1,436.87 | | |
| ST | State School | 1.4761226122 | $602,435 | $602,435 | $889.27 | | |
| ST2 | State School Part 2 | 0.7953803475 | $602,435 | $602,435 | $479.16 | | |
| | Total Tax Rate: | 9.1310917527 | | | | | |
| | | | | Taxes w/Current Exemptions: | $5,500.90 | | |
| | | | | Taxes w/o Exemptions: | $5,500.90 | | |
Improvement / Building
| Improvement #1: | RESIDENTIAL | State Code: | Y | 3069.0 sqft | Value: | $402,435 |
| Bathrooms: | 3 | Bedrooms: | 4 | | Ceiling: | DRYWALL PAINTED | Cooling: | HEAT PUMP/CONV/V | | Exterior Wall/Cover: | WOOD SIDING | Floor Covering: | CARPET/VINYL 20-80 | | Floor Structure: | WOOD W/SUBFLOOR | Foundation: | CONCRETE | | Interior Finish: | DRYWALL PAINT | Plumbing Fixture Cnt: | 12 | | Roof Slope: | 4" IN 12" | Roof Structure/Cover: | CJ ASPHALT |
|
| | Type | Description | Class CD | Sub Class CD | Year Built | Area |
| | BAS | BASE/MAIN FLOOR | 3 | 0 | 1977 | 2277.0 |
| | DWN | DOWNSTAIRS LIVING AREA | 3 | 0 | 1977 | 792.0 |
| | OP4 | OPEN PORCH W/CEILING-ROOF | 3 | 0 | 1977 | 348.0 |
| | OWP | OPEN WOOD PORCH W/STEPS | 3 | 0 | 1977 | 66.0 |
| | DGR | DETACHED GARAGE | 3 | 0 | 1977 | 472.0 |
Sketch
Property Image
Land
| 1 | 14 | SQ (08001-12000) | 0.0000 | 0.00 | 0.00 | 0.00 | 1.00 | $200,000 | $0 |
Roll Value History
| 2026 | N/A | N/A | N/A | N/A | N/A |
| 2025 | $402,435 | $200,000 | $0 | $602,435 | $602,435 |
| 2024 | $407,514 | $190,000 | $0 | $597,514 | $597,514 |
| 2023 | $402,435 | $190,000 | $0 | $592,435 | $592,435 |
| 2022 | $369,029 | $180,000 | $0 | $549,029 | $549,029 |
| 2021 | $288,966 | $120,000 | $0 | $408,966 | $408,966 |
| 2020 | $282,561 | $100,000 | $0 | $382,561 | $382,561 |
| 2019 | $227,892 | $150,000 | $0 | $377,892 | $377,892 |
| 2018 | $228,610 | $130,000 | $0 | $358,610 | $358,610 |
| 2017 | $181,658 | $110,000 | $0 | $291,658 | $291,658 |
| 2016 | $184,542 | $90,000 | $0 | $274,542 | $274,542 |
| 2015 | $187,426 | $70,000 | $0 | $257,426 | $257,426 |
| 2014 | $190,308 | $55,000 | $0 | $245,308 | $245,308 |
| 2013 | $193,193 | $55,000 | $0 | $248,193 | $248,193 |
| 2012 | $196,075 | $65,000 | $0 | $261,075 | $191,075 |
| 2011 | $194,180 | $50,000 | $0 | $244,180 | $174,180 |
| 2010 | $206,382 | $50,000 | $0 | $256,382 | $186,382 |
| 2009 | $215,354 | $68,000 | $0 | $283,354 | $213,354 |
| 2008 | $218,284 | $68,000 | $0 | $286,284 | $286,284 |
| 2007 | $196,718 | $92,573 | $0 | $289,291 | $289,291 |
Deed and Sales History
| 1 | 07/30/2024 | WD | Warranty Deed | BAUMER III, DONALD H | WHITE, IAN PATRICK | | | $628,000.00 | 60802 | 4575294 |
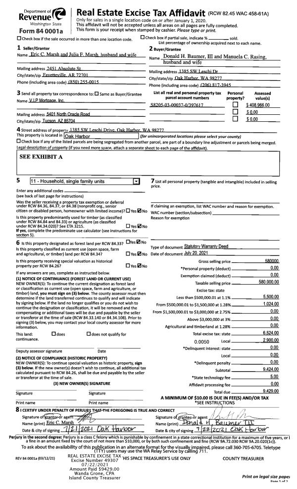
| 2 | 07/20/2021 | WD | Warranty Deed | MARSH, ERIC C | BAUMER III, DONALD H | | | $580,000.00 | 49307 | 4525173 |
| 3 | 05/08/2014 | WD | Warranty Deed | ORWALL, BONNIE A | MARSH, ERIC C | | | $275,000.00 | 15259 | 4359274 |
| 4 | 06/22/1998 | OTHER | Other - Misc. Documents | ORWALL, WALTER B | ORWALL, BONNIE A | | | $0.00 | 67885 | 392805 |
| 5 | 07/01/1979 | WD | Warranty Deed | MOWRY, RICHARD G | ORWALL, WALTER B | | | $98,500.00 | 93336 | 355359 |
Payout Agreement
| No payout information available.. |