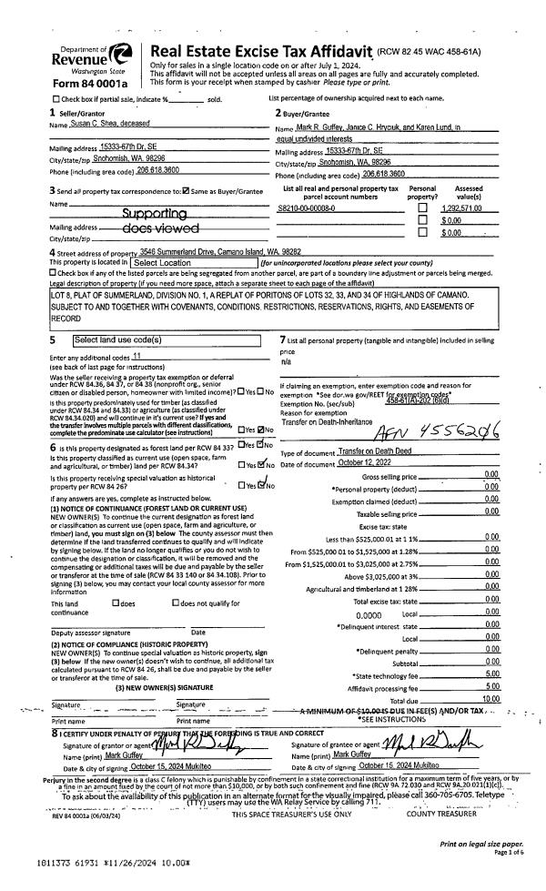
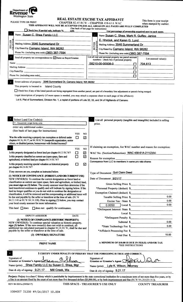
Property
Account |
| Property ID: | 397804 | Abbreviated Legal Description: | SUMMERLAND 1 LOT 8 |
| Geographic ID: | S8210-00-00008-0 | Agent Code: | |
| Type: | Real | | |
| Tax Area: | 540 - APPRAISER-Stan/Cam Schl Dist, Special Dist, improved & less than 1 acre | Land Use Code | 11 |
| Open Space: | N | DFL | N |
| Historic Property: | N | Remodel Property: | N |
| Multi-Family Redevelopment: | N | | |
| Township: | | Section: | |
| Range: | |
Location |
| Address: | 3546 SUMMERLAND DR CAMANO ISLAND, WA 98282 | Mapsco: | |
| Neighborhood: | 58RscamWF-South Cam | Map ID: | 869 |
| Neighborhood CD: | 58RscamWF |
Owner |
| Name: | GUFFEY ET AL, MARK R | Owner ID: | 316638 |
| Mailing Address: | 15333-67TH DR SE SNOHOMISH, WA 98296 | % Ownership: | 100.0000000000% |
| | | Exemptions: | |
Taxes and Assessment Details
Values
| (+) Improvement Homesite Value: | + | $0 | |
| (+) Improvement Non-Homesite Value: | + | $512,868 | |
| (+) Land Homesite Value: | + | $0 | |
| (+) Land Non-Homesite Value: | + | $800,750 | |
| (+) Curr Use (HS): | + | $0 | $0 |
| (+) Curr Use (NHS): | + | $0 | $0 |
| | | -------------------------- | |
| (=) Market Value: | = | $1,313,618 | |
| (–) Productivity Loss: | – | $0 | |
| | | -------------------------- | |
| (=) Subtotal: | = | $1,313,618 | |
| (+) Senior Appraised Value: | + | $0 | |
| (+) Non-Senior Appraised Value: | + | $1,313,618 | |
| | | -------------------------- | |
| (=) Total Appraised Value: | = | $1,313,618 | |
| (–) Senior Exemption Loss: | – | $0 | |
| (–) Exemption Loss: | – | $0 | |
| | | -------------------------- | |
| (=) Taxable Value: | = | $1,313,618 | |
Taxing Jurisdiction
| Owner: | GUFFEY ET AL, MARK R | | |
| % Ownership: | 100.0000000000% | | |
| Total Value: | $1,313,618 | | |
| Tax Area: | 540 - APPRAISER-Stan/Cam Schl Dist, Special Dist, improved & less than 1 acre |
| CF | Conservation Futures | 0.0313996660 | $1,313,618 | $1,313,618 | $41.25 | | |
| EMS1 | Fire & Rescue Dist #1 Camano GEN (EMS) | 0.4998471806 | $1,313,618 | $1,313,618 | $656.61 | | |
| FIRE1 | Fire & Rescue Dist #1 Camano GEN | 1.2496603404 | $1,313,618 | $1,313,618 | $1,641.58 | | |
| FIRE1BOND | Fire & Rescue Dist #1 Camano BOND | 0.1630371212 | $1,313,618 | $1,313,618 | $214.17 | | |
| CE | County Current Expense | 0.3674210519 | $1,313,618 | $1,313,618 | $482.65 | | |
| CR | County Roads | 0.4614296361 | $1,313,618 | $1,313,618 | $606.14 | | |
| LIB | Library Sno-Isle GEN | 0.3039084203 | $1,313,618 | $1,313,618 | $399.22 | | |
| SCH205_401 | School 205-401 Enrichment | 1.3697998934 | $1,313,618 | $1,313,618 | $1,799.39 | | |
| SCH205BOND | School 205-401 BOND | 0.9354199323 | $1,313,618 | $1,313,618 | $1,228.78 | | |
| ST | State School | 1.4761226122 | $1,313,618 | $1,313,618 | $1,939.06 | | |
| ST2 | State School Part 2 | 0.7953803475 | $1,313,618 | $1,313,618 | $1,044.83 | | |
| | Total Tax Rate: | 7.6534262019 | | | | | |
| | | | | Taxes w/Current Exemptions: | $10,053.68 | | |
| | | | | Taxes w/o Exemptions: | $10,053.68 | | |
Improvement / Building
| Improvement #1: | RESIDENTIAL | State Code: | Y | 2366.0 sqft | Value: | $512,868 |
| Bathrooms: | 2.75 | Bedrooms: | 2 | | Ceiling: | DRYWALL PAINTED | Exterior Wall/Cover: | CEMENT FIBER | | Floor Covering: | CARPET/VINYL 60-40 | Floor Structure: | WOOD W/SUBFLOOR | | Foundation: | CONCRETE | Heating: | WALL HEAT ELECTRIC | | Interior Finish: | DRYWALL PAINT | Plumbing Fixture Cnt: | 13 | | Roof Slope: | 5" IN 12" | Roof Structure/Cover: | CJ ASPHALT |
|
| | Type | Description | Class CD | Sub Class CD | Year Built | Area |
| | BAS | BASE/MAIN FLOOR | 4 | 0 | 2013 | 1380.0 |
| | AGR | ATTACHED GARAGE | 4 | 0 | 2013 | 312.0 |
| | UPS | UPPER STORY | 4 | 0 | 2013 | 986.0 |
| | OWP | OPEN WOOD PORCH W/STEPS | 4 | 0 | 2013 | 396.0 |
| | OP4 | OPEN PORCH W/CEILING-ROOF | 4 | 0 | 2013 | 40.0 |
| | OWR | OPEN WOOD PORCH W/STEPS/ROOF | 4 | 0 | 2013 | 192.0 |
Sketch
Property Image
Land
| 1 | LB | LOW BANK | 0.1400 | 6098.40 | 75.00 | 0.00 | 1.00 | $800,000 | $0 |
| 2 | 55 | TIDES | 0.0000 | 0.00 | 75.00 | 0.00 | 1.00 | $750 | $0 |
Roll Value History
| 2026 | N/A | N/A | N/A | N/A | N/A |
| 2025 | $512,868 | $800,750 | $0 | $1,313,618 | $1,313,618 |
| 2024 | $516,821 | $775,750 | $0 | $1,292,571 | $1,292,571 |
| 2023 | $521,058 | $775,750 | $0 | $1,296,808 | $1,296,808 |
| 2022 | $475,656 | $650,750 | $0 | $1,126,406 | $1,126,406 |
| 2021 | $410,266 | $450,750 | $0 | $861,016 | $861,016 |
| 2020 | $398,129 | $400,750 | $0 | $798,879 | $798,879 |
| 2019 | $301,488 | $450,750 | $0 | $752,238 | $752,238 |
| 2018 | $302,280 | $400,750 | $0 | $703,030 | $703,030 |
| 2017 | $303,863 | $400,750 | $0 | $704,613 | $704,613 |
| 2016 | $307,028 | $400,750 | $0 | $707,778 | $707,778 |
| 2015 | $305,136 | $400,750 | $0 | $705,886 | $705,886 |
| 2014 | $308,282 | $300,750 | $0 | $609,032 | $609,032 |
| 2013 | $28,903 | $225,017 | $0 | $253,920 | $253,920 |
| 2012 | $76,575 | $264,594 | $0 | $341,169 | $341,169 |
| 2011 | $77,758 | $330,555 | $0 | $408,313 | $408,313 |
| 2010 | $84,729 | $330,555 | $0 | $415,284 | $415,284 |
| 2009 | $89,467 | $403,845 | $0 | $493,312 | $493,312 |
| 2008 | $90,735 | $331,202 | $0 | $421,937 | $421,937 |
| 2007 | $90,755 | $330,677 | $0 | $421,432 | $421,432 |
Deed and Sales History
| 1 | 04/10/2025 | QCD | Quit Claim Deed | HRYCIUK, JANICE E | HRYIUK TTEE, JOHN WILLIAM | | | $0.00 | 63593 | 4586350 |
| 2 | 10/12/2022 | TOD | Transfer On Death Deed | SHEA, SUSAN C | GUFFEY, MARK R | | | $0.00 | 61931 | 4556206 |
| 3 | 11/29/2022 | QCD | Quit Claim Deed | LUND, KAREN G | KNUTE & KAREN LUND FAMILY TRUST | | | $0.00 | 55454 | 4555065 |
| 4 | 11/29/2022 | QCD | Quit Claim Deed | HRYCIUK, JANICE E | HRYCIUK FAMILY TRUST | | | $0.00 | 55453 | 4555068 |
| 5 | 09/21/2017 | QCD | Quit Claim Deed | SUSAN C SHEA FAMILY LLC | SHEA, SUSAN C | | | $0.00 | 31208 | 4431320 |
| 6 | 11/04/2009 | QCD | Quit Claim Deed | SUSAN, C S | SUSAN C SHEA FAMILY LLC, | | | $0.00 | 92721 | 4263279 |
| 7 | 02/01/1998 | QCD | Quit Claim Deed | SHEA, SUSAN C | SUSAN, C S | | | $0.00 | 80567 | 98003046 |
| 8 | 02/01/1986 | OTHER | Other - Misc. Documents | GUFFEY, SUSAN C | SHEA, SUSAN C | | | $0.00 | 61495 | 0 |
| 9 | 09/01/1966 | PACD | Purchaser's Assignment | GUFFEY, JOHN H | GUFFEY, SUSAN C | | | $1.00 | 58424 | 394571 |
| 10 | 01/01/1900 | OTHER | Other - Misc. Documents | Unknown | GUFFEY, JOHN H | | | $0.00 | 0 | 0 |
Payout Agreement
| No payout information available.. |