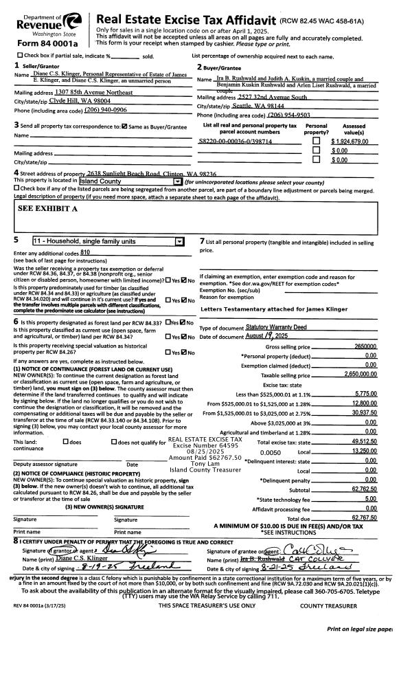
Property
Account |
| Property ID: | 398714 | Abbreviated Legal Description: | SUNLIGHT BCH LOT 36 INCL ADJ TIDES TGW PT GL3 SEC 19-29-3E LY BTWN WLY & ELY LNS OF LOT 36 PROD TO SLY LN OF RD |
| Geographic ID: | S8220-00-00036-0 | Agent Code: | |
| Type: | Real | | |
| Tax Area: | 810 - APPRAISER-S Whid Schl Dist, Diking District#1, improved & 1 acre or less | Land Use Code | 11 |
| Open Space: | N | DFL | N |
| Historic Property: | N | Remodel Property: | N |
| Multi-Family Redevelopment: | N | | |
| Township: | | Section: | |
| Range: | |
Location |
| Address: | 2638 SUNLIGHT BEACH RD CLINTON, WA 98236 | Mapsco: | |
| Neighborhood: | Cycle 4 | Map ID: | 790 |
| Neighborhood CD: | 4 |
Owner |
| Name: | KLINGER, JAMES E | Owner ID: | 24210 |
| Mailing Address: | DIANE C S KLINGER 1307 85TH AVE NE CLYDE HILL, WA 98004-3348 | % Ownership: | 100.0000000000% |
| | | Exemptions: | |
Taxes and Assessment Details
Values
| (+) Improvement Homesite Value: | + | $0 | |
| (+) Improvement Non-Homesite Value: | + | $876,679 | |
| (+) Land Homesite Value: | + | $0 | |
| (+) Land Non-Homesite Value: | + | $1,048,000 | |
| (+) Curr Use (HS): | + | $0 | $0 |
| (+) Curr Use (NHS): | + | $0 | $0 |
| | | -------------------------- | |
| (=) Market Value: | = | $1,924,679 | |
| (–) Productivity Loss: | – | $0 | |
| | | -------------------------- | |
| (=) Subtotal: | = | $1,924,679 | |
| (+) Senior Appraised Value: | + | $0 | |
| (+) Non-Senior Appraised Value: | + | $1,924,679 | |
| | | -------------------------- | |
| (=) Total Appraised Value: | = | $1,924,679 | |
| (–) Senior Exemption Loss: | – | $0 | |
| (–) Exemption Loss: | – | $0 | |
| | | -------------------------- | |
| (=) Taxable Value: | = | $1,924,679 | |
Taxing Jurisdiction
| Owner: | KLINGER, JAMES E | | |
| % Ownership: | 100.0000000000% | | |
| Total Value: | $1,924,679 | | |
| Tax Area: | 810 - APPRAISER-S Whid Schl Dist, Diking District#1, improved & 1 acre or less |
| CF | Conservation Futures | 0.0313996660 | $1,924,679 | $1,924,679 | $60.43 | | |
| FIRE3 | Fire & Rescue Dist #3 S Whidbey GEN | 1.2130821753 | $1,924,679 | $1,924,679 | $2,334.79 | | |
| HOBOND | Hospital BOND | 0.1893405597 | $1,924,679 | $1,924,679 | $364.42 | | |
| HOGEN | Hospital GEN | 0.3848777722 | $1,924,679 | $1,924,679 | $740.77 | | |
| CE | County Current Expense | 0.3674210519 | $1,924,679 | $1,924,679 | $707.17 | | |
| CR | County Roads | 0.4614296361 | $1,924,679 | $1,924,679 | $888.10 | | |
| ISLANDEMS | Hospital GEN (EMS) | 0.4952018576 | $1,924,679 | $1,924,679 | $953.10 | | |
| LIB | Library Sno-Isle GEN | 0.3039084203 | $1,924,679 | $1,924,679 | $584.93 | | |
| PORTWHID | Port of S Whidbey GEN | 0.1086004714 | $1,924,679 | $1,924,679 | $209.02 | | |
| SCH206BOND | School 206 BOND | 0.5960237832 | $1,924,679 | $1,924,679 | $1,147.15 | | |
| SCH206CAP | School 206 CP | 0.3066144020 | $1,924,679 | $1,924,679 | $590.13 | | |
| SCH206MO | School 206 Enrichment | 0.4808755445 | $1,924,679 | $1,924,679 | $925.53 | | |
| ST | State School | 1.4761226122 | $1,924,679 | $1,924,679 | $2,841.06 | | |
| ST2 | State School Part 2 | 0.7953803475 | $1,924,679 | $1,924,679 | $1,530.85 | | |
| SWHIDPRBD | P & R S Whidbey BOND | 0.0144185398 | $1,924,679 | $1,924,679 | $27.75 | | |
| SWHIDPRBD3 | P & R S Whidbey BOND3 | 0.1483535547 | $1,924,679 | $1,924,679 | $285.53 | | |
| SWHIDPRMT | P & R S Whidbey GEN | 0.4600000000 | $1,924,679 | $1,924,679 | $885.35 | | |
| | Total Tax Rate: | 7.8330503944 | | | | | |
| | | | | Taxes w/Current Exemptions: | $15,076.08 | | |
| | | | | Taxes w/o Exemptions: | $15,076.08 | | |
Improvement / Building
| Improvement #1: | RESIDENTIAL | State Code: | Y | 2955.8 sqft | Value: | $876,679 |
| Bathrooms: | 2.5 | Bedrooms: | 2 | | Ceiling: | DRYWALL PAINTED | Cooling: | HEAT PUMP/CONV/V | | Exterior Wall/Cover: | SHINGLE | Floor Covering: | HARDWOOD/CARP 60-40 | | Floor Structure: | WOOD W/SUBFLOOR | Foundation: | CONCRETE | | Interior Finish: | DRYWALL PAINT | Plumbing Fixture Cnt: | 16 | | Roof Slope: | 6" IN 12" | Roof Structure/Cover: | CJ ASPHALT |
|
| | Type | Description | Class CD | Sub Class CD | Year Built | Area |
| | BAS | BASE/MAIN FLOOR | 6 | 0 | 2009 | 1482.3 |
| | UB8 | BASEMENT UNFINISHED 8" | 6 | 0 | 2009 | 861.0 |
| | OP1 | OPEN PORCH SLAB | 6 | 0 | 2009 | 248.0 |
| | OP1 | OPEN PORCH SLAB | 6 | 0 | 2009 | 115.0 |
| | BIG | BUILT IN GARAGE | 6 | 0 | 2009 | 635.0 |
| | UPS | UPPER STORY | 6 | 0 | 2009 | 1473.5 |
| | OWP | OPEN WOOD PORCH W/STEPS | 6 | 0 | 2009 | 152.0 |
| | OWP | OPEN WOOD PORCH W/STEPS | 6 | 0 | 2009 | 528.0 |
| | OWC | OPEN WOOD PORCH W/STEPS/ROOF/C | 6 | 0 | 2009 | 184.0 |
Sketch
Property Image
Land
| 1 | LB | LOW BANK | 0.0000 | 0.00 | 50.00 | 0.00 | 1.00 | $1,047,500 | $0 |
| 2 | 55 | TIDES | 0.0000 | 0.00 | 50.00 | 0.00 | 1.00 | $500 | $0 |
Roll Value History
| 2026 | N/A | N/A | N/A | N/A | N/A |
| 2025 | $876,679 | $1,048,000 | $0 | $1,924,679 | $1,924,679 |
| 2024 | $884,469 | $848,000 | $0 | $1,732,469 | $1,732,469 |
| 2023 | $891,288 | $780,500 | $0 | $1,671,788 | $1,671,788 |
| 2022 | $813,700 | $743,050 | $0 | $1,556,750 | $1,556,750 |
| 2021 | $713,309 | $675,500 | $0 | $1,388,809 | $1,388,809 |
| 2020 | $664,064 | $675,500 | $0 | $1,339,564 | $1,339,564 |
| 2019 | $598,159 | $575,480 | $0 | $1,173,639 | $1,173,639 |
| 2018 | $599,799 | $400,480 | $0 | $1,000,279 | $1,000,279 |
| 2017 | $603,032 | $400,480 | $0 | $1,003,512 | $1,003,512 |
| 2016 | $609,586 | $400,480 | $0 | $1,010,066 | $1,010,066 |
| 2015 | $616,141 | $400,480 | $0 | $1,016,621 | $1,016,621 |
| 2014 | $617,089 | $400,480 | $0 | $1,017,569 | $1,017,569 |
| 2013 | $623,643 | $408,360 | $0 | $1,032,003 | $1,032,003 |
| 2012 | $630,198 | $408,360 | $0 | $1,038,558 | $1,038,558 |
| 2011 | $636,751 | $408,360 | $0 | $1,045,111 | $1,045,111 |
| 2010 | $642,462 | $477,905 | $0 | $1,120,367 | $1,120,367 |
| 2009 | $612,857 | $515,143 | $0 | $1,128,000 | $1,128,000 |
| 2008 | $39,413 | $523,635 | $0 | $563,048 | $563,048 |
| 2007 | $48,957 | $481,534 | $0 | $530,491 | $530,491 |
Deed and Sales History
| 1 | 09/16/2025 | QCD | Quit Claim Deed | RUSHWALD ET AL, IRA B | OSPREY BEACH HOUSE, LLC | | | $0.00 | 65269 | 4592765 |
| 2 | 08/19/2025 | WD | Warranty Deed | KLINGER, JAMES E | RUSHWALD ET AL, IRA B | | | $2,650,000.00 | 64595 | 4590046 |
| 3 | 02/25/2008 | WD | Warranty Deed | JENKS, MARGARET | KLINGER, JAMES E | | | $400,000.00 | 80495 | 4222953 |
| 4 | 02/01/1994 | WD | Warranty Deed | DAHLKE, MARILYN E | JENKS, MARGARET | | | $0.00 | 40606 | 94003815 |
| 5 | 02/01/1994 | WD | Warranty Deed | JENKS, MARGARET | DAHLKE, MARILYN E | | | $0.00 | 42067 | 94012013 |
| 6 | 02/01/1987 | OTHER | Other - Misc. Documents | JENKS, H C | JENKS, MARGARET | | | $0.00 | 62010 | 0 |
| 7 | 01/01/1900 | OTHER | Other - Misc. Documents | Unknown | JENKS, H C | | | $0.00 | 0 | 0 |
Payout Agreement
| No payout information available.. |