Property
Account |
| Property ID: | 400382 | Abbreviated Legal Description: | SUNNY HILL LOT 5 |
| Geographic ID: | S8230-00-00005-0 | Agent Code: | |
| Type: | Real | | |
| Tax Area: | 519 - APPRAISER-Stan/Cam Schl Dist, vacant & 50 acres or less | Land Use Code | 99 |
| Open Space: | N | DFL | N |
| Historic Property: | N | Remodel Property: | N |
| Multi-Family Redevelopment: | N | | |
| Township: | | Section: | |
| Range: | |
Location |
| Address: | | Mapsco: | |
| Neighborhood: | North Camano | Map ID: | 577 |
| Neighborhood CD: | 06-C |
Owner |
| Name: | ROOS, AARON J | Owner ID: | 291555 |
| Mailing Address: | 258 SUMMIT ST CAMANO ISLAND, WA 98282 | % Ownership: | 100.0000000000% |
| | | Exemptions: | |
Taxes and Assessment Details
Values
| (+) Improvement Homesite Value: | + | N/A | |
| (+) Improvement Non-Homesite Value: | + | N/A | |
| (+) Land Homesite Value: | + | N/A | |
| (+) Land Non-Homesite Value: | + | N/A | Ag / Timber Use Value |
| (+) Curr Use (HS): | + | N/A | N/A |
| (+) Curr Use (NHS): | + | N/A | N/A |
| | | -------------------------- | |
| (=) Market Value: | = | N/A | |
| (–) Productivity Loss: | – | N/A | |
| | | -------------------------- | |
| (=) Subtotal: | = | N/A | |
| (+) Senior Appraised Value: | + | N/A | |
| (+) Non-Senior Appraised Value: | + | N/A | |
| | | -------------------------- | |
| (=) Total Appraised Value: | = | N/A | |
| (–) Senior Exemption Loss: | – | N/A | |
| (–) Exemption Loss: | – | N/A | |
| | | -------------------------- | |
| (=) Taxable Value: | = | N/A | |
Taxing Jurisdiction
| Owner: | ROOS, AARON J | | |
| % Ownership: | 100.0000000000% | | |
| Total Value: | N/A | | |
| Tax Area: | 519 - APPRAISER-Stan/Cam Schl Dist, vacant & 50 acres or less |
| CF | Conservation Futures | N/A | N/A | N/A | N/A | | |
| CCD | Camano Conservation District | N/A | N/A | N/A | N/A | | |
| EMS1 | Fire & Rescue Dist #1 Camano GEN (EMS) | N/A | N/A | N/A | N/A | | |
| CE | County Current Expense | N/A | N/A | N/A | N/A | | |
| CR | County Roads | N/A | N/A | N/A | N/A | | |
| LCIB | Library Sno-Isle BOND (Camano Island) | N/A | N/A | N/A | N/A | | |
| LIB | Library Sno-Isle GEN | N/A | N/A | N/A | N/A | | |
| SCH205_401 | School 205-401 Enrichment | N/A | N/A | N/A | N/A | | |
| SCH205BOND | School 205-401 BOND | N/A | N/A | N/A | N/A | | |
| ST | State School | N/A | N/A | N/A | N/A | | |
| ST2 | State School Part 2 | N/A | N/A | N/A | N/A | | |
| | Total Tax Rate: | N/A | | | | | |
| | | | | Taxes w/Current Exemptions: | N/A | | |
| | | | | Taxes w/o Exemptions: | N/A | | |
Improvement / Building
Sketch
| No sketches available for this property. |
Property Image
Land
| 1 | 14 | SQ (08001-12000) | 0.2300 | 10018.80 | 0.00 | 0.00 | 1.00 | N/A | N/A |
Roll Value History
| 2026 | N/A | N/A | N/A | N/A | N/A |
| 2025 | $0 | $12,000 | $0 | $12,000 | $12,000 |
| 2024 | $0 | $12,000 | $0 | $12,000 | $12,000 |
| 2023 | $0 | $9,000 | $0 | $9,000 | $9,000 |
| 2022 | $0 | $9,000 | $0 | $9,000 | $9,000 |
| 2021 | $0 | $7,000 | $0 | $7,000 | $7,000 |
| 2020 | $0 | $7,000 | $0 | $7,000 | $7,000 |
| 2019 | $0 | $7,000 | $0 | $7,000 | $7,000 |
| 2018 | $0 | $7,000 | $0 | $7,000 | $7,000 |
| 2017 | $0 | $5,000 | $0 | $5,000 | $5,000 |
| 2016 | $0 | $5,000 | $0 | $5,000 | $5,000 |
| 2015 | $0 | $13,280 | $0 | $13,280 | $13,280 |
| 2014 | $0 | $13,280 | $0 | $13,280 | $13,280 |
| 2013 | $0 | $13,280 | $0 | $13,280 | $13,280 |
| 2012 | $0 | $13,280 | $0 | $13,280 | $13,280 |
| 2011 | $0 | $13,280 | $0 | $13,280 | $13,280 |
| 2010 | $0 | $13,280 | $0 | $13,280 | $13,280 |
| 2009 | $0 | $14,000 | $0 | $14,000 | $14,000 |
| 2008 | $0 | $10,000 | $0 | $10,000 | $10,000 |
| 2007 | $0 | $10,000 | $0 | $10,000 | $10,000 |
Deed and Sales History
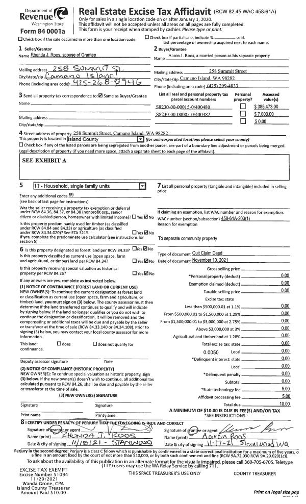
| 1 | 11/10/2021 | QCD | Quit Claim Deed | ROOS, RHONDA J | ROOS, AARON J | | | $0.00 | 51094 | 453671 |
| 2 | 08/22/2019 | WD | Warranty Deed | IRWIN, JOSHUA CAIN | ROOS, AARON J | | | $369,500.00 | 40030 | 4470309 |
|   | |
| 3 | 01/25/2017 | WD | Warranty Deed | HUMMEL, TODD W | IRWIN, JOSHUA CAIN | | | $289,000.00 | 27912 | 4416175 |
|   | |
| 4 | 09/01/1992 | TRUSTEED | Trustee's Deed | HUMMEL, TODD W | BOSLER, VANCE A | | | $8,925.00 | 23562 | 92017265 |
| 5 | 09/01/1992 | WD | Warranty Deed | HOLBECK, CONST & | HUMMEL, TODD W | | | $4,500.00 | 23563 | 92017266 |
| 6 | 04/01/1992 | OTHER | Other - Misc. Documents | BOLMART, DEVELOPMENT I | HOLBECK, CONST & | | | $0.00 | 64800 | 92005048 |
| 7 | 04/01/1992 | WD | Warranty Deed | HOLBECK, CONST & | BOLMART, DEVELOPMENT I | | | $7,825.00 | 21644 | 92007853 |
| 8 | 08/01/1991 | WD | Warranty Deed | SCHWENK, ROBERT L | HOLBECK, CONST & | | | $3,324.00 | 13064 | 91013075 |
| 9 | 03/01/1979 | OTHER | Other - Misc. Documents | Unknown | SCHWENK, ROBERT L | | | $70,000.00 | 90920 | 348345 |
Payout Agreement
| No payout information available.. |