Property
Account |
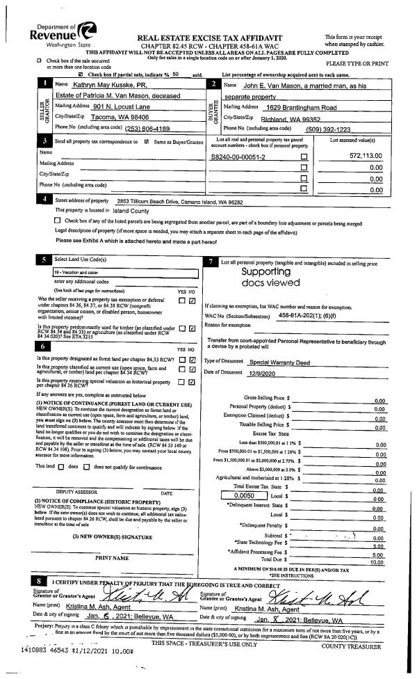
| Property ID: | 401247 | Abbreviated Legal Description: | SUNNY SH AC PT LOT 51: BG SECR LOT 51 S54*W136.36' N35*W73.42' N53*E136.4' S35*E76.18' TPB INCL ADJ TIDES TGW EZ |
| Geographic ID: | S8240-00-00051-2 | Agent Code: | |
| Type: | Real | | |
| Tax Area: | 540 - APPRAISER-Stan/Cam Schl Dist, Special Dist, improved & less than 1 acre | Land Use Code | 11 |
| Open Space: | N | DFL | N |
| Historic Property: | N | Remodel Property: | N |
| Multi-Family Redevelopment: | N | | |
| Township: | | Section: | |
| Range: | |
Location |
| Address: | 2853 TILLICUM BEACH DR CAMANO ISLAND, WA 98282 | Mapsco: | |
| Neighborhood: | 58RecamWF-East Cam | Map ID: | 866 |
| Neighborhood CD: | 58RecamWF |
Owner |
| Name: | VAN MASON, JOHN E | Owner ID: | 297711 |
| Mailing Address: | 1629 BRANTINGHAM RD RICHLAND, WA 99325 | % Ownership: | 100.0000000000% |
| | | Exemptions: | |
Taxes and Assessment Details
Values
| (+) Improvement Homesite Value: | + | $0 | |
| (+) Improvement Non-Homesite Value: | + | $153,408 | |
| (+) Land Homesite Value: | + | $0 | |
| (+) Land Non-Homesite Value: | + | $725,730 | |
| (+) Curr Use (HS): | + | $0 | $0 |
| (+) Curr Use (NHS): | + | $0 | $0 |
| | | -------------------------- | |
| (=) Market Value: | = | $879,138 | |
| (–) Productivity Loss: | – | $0 | |
| | | -------------------------- | |
| (=) Subtotal: | = | $879,138 | |
| (+) Senior Appraised Value: | + | $0 | |
| (+) Non-Senior Appraised Value: | + | $879,138 | |
| | | -------------------------- | |
| (=) Total Appraised Value: | = | $879,138 | |
| (–) Senior Exemption Loss: | – | $0 | |
| (–) Exemption Loss: | – | $0 | |
| | | -------------------------- | |
| (=) Taxable Value: | = | $879,138 | |
Taxing Jurisdiction
| Owner: | VAN MASON, JOHN E | | |
| % Ownership: | 100.0000000000% | | |
| Total Value: | $879,138 | | |
| Tax Area: | 540 - APPRAISER-Stan/Cam Schl Dist, Special Dist, improved & less than 1 acre |
| CF | Conservation Futures | 0.0313996660 | $879,138 | $879,138 | $27.60 | | |
| EMS1 | Fire & Rescue Dist #1 Camano GEN (EMS) | 0.4998471806 | $879,138 | $879,138 | $439.43 | | |
| FIRE1 | Fire & Rescue Dist #1 Camano GEN | 1.2496603404 | $879,138 | $879,138 | $1,098.62 | | |
| FIRE1BOND | Fire & Rescue Dist #1 Camano BOND | 0.1630371212 | $879,138 | $879,138 | $143.33 | | |
| CE | County Current Expense | 0.3674210519 | $879,138 | $879,138 | $323.01 | | |
| CR | County Roads | 0.4614296361 | $879,138 | $879,138 | $405.66 | | |
| LIB | Library Sno-Isle GEN | 0.3039084203 | $879,138 | $879,138 | $267.18 | | |
| SCH205_401 | School 205-401 Enrichment | 1.3697998934 | $879,138 | $879,138 | $1,204.24 | | |
| SCH205BOND | School 205-401 BOND | 0.9354199323 | $879,138 | $879,138 | $822.36 | | |
| ST | State School | 1.4761226122 | $879,138 | $879,138 | $1,297.72 | | |
| ST2 | State School Part 2 | 0.7953803475 | $879,138 | $879,138 | $699.25 | | |
| | Total Tax Rate: | 7.6534262019 | | | | | |
| | | | | Taxes w/Current Exemptions: | $6,728.40 | | |
| | | | | Taxes w/o Exemptions: | $6,728.40 | | |
Improvement / Building
| Improvement #1: | RESIDENTIAL | State Code: | Y | 832.0 sqft | Value: | $153,408 |
| Bathrooms: | 1 | Bedrooms: | 3 | | Ceiling: | TONGUE & GROOVE | Exterior Wall/Cover: | PLY/HARDBOARD T-111 | | Floor Covering: | CARPET/VINYL 80-20 | Floor Structure: | WOOD W/SUBFLOOR | | Foundation: | CONCRETE | Heating: | BASEBOARD ELECTRIC | | Interior Finish: | DRYWALL PAINT | Plumbing Fixture Cnt: | 6 | | Roof Slope: | 5" IN 12" | Roof Structure/Cover: | BEAM ASPHALT |
|
| | Type | Description | Class CD | Sub Class CD | Year Built | Area |
| | BAS | BASE/MAIN FLOOR | 3 | 0 | 1969 | 832.0 |
| | OP1 | OPEN PORCH SLAB | 3 | 0 | 1969 | 482.0 |
| | OCP | OPEN CARPORT | 3 | 0 | 1969 | 468.0 |
| | UTY | STORAGE/UTILITY | 3 | 0 | 1969 | 78.0 |
| | OWP | OPEN WOOD PORCH W/STEPS | 3 | 0 | 1969 | 748.0 |
Sketch
Property Image
Land
| 1 | LB | LOW BANK | 0.0000 | 0.00 | 73.00 | 0.00 | 1.00 | $725,000 | $0 |
| 2 | 55 | TIDES | 0.0000 | 0.00 | 73.00 | 0.00 | 1.00 | $730 | $0 |
Roll Value History
| 2026 | N/A | N/A | N/A | N/A | N/A |
| 2025 | $153,408 | $725,730 | $0 | $879,138 | $879,138 |
| 2024 | $158,744 | $725,730 | $0 | $884,474 | $884,474 |
| 2023 | $161,003 | $725,730 | $0 | $886,733 | $886,733 |
| 2022 | $147,843 | $700,730 | $0 | $848,573 | $848,573 |
| 2021 | $124,426 | $550,730 | $0 | $675,156 | $675,156 |
| 2020 | $121,383 | $450,730 | $0 | $572,113 | $572,113 |
| 2019 | $85,346 | $500,730 | $0 | $586,076 | $586,076 |
| 2018 | $85,645 | $500,730 | $0 | $586,375 | $586,375 |
| 2017 | $86,244 | $320,730 | $0 | $406,974 | $406,974 |
| 2016 | $87,443 | $320,730 | $0 | $408,173 | $408,173 |
| 2015 | $72,097 | $350,730 | $0 | $422,827 | $422,827 |
| 2014 | $73,295 | $350,730 | $0 | $424,025 | $424,025 |
| 2013 | $74,491 | $438,160 | $0 | $512,651 | $512,651 |
| 2012 | $75,690 | $438,160 | $0 | $513,850 | $513,850 |
| 2011 | $76,888 | $547,518 | $0 | $624,406 | $624,406 |
| 2010 | $83,241 | $547,518 | $0 | $630,759 | $630,759 |
| 2009 | $84,549 | $583,971 | $0 | $668,520 | $668,520 |
| 2008 | $85,698 | $675,103 | $0 | $760,801 | $760,801 |
| 2007 | $86,846 | $674,592 | $0 | $761,438 | $761,438 |
Deed and Sales History
| 1 | 12/09/2020 | SPWARDEED | Special Warranty Deed | VAN MASON, JOHN E | VAN MASON, JOHN E | | | $0.00 | 46543 | 4507923 |
| 2 | 12/09/2020 | SPWARDEED | Special Warranty Deed | VAN MASON, EDWARD J | VAN MASON, JOHN E | | | $0.00 | 46544 | 4507924 |
| 3 | 02/16/2017 | SPWARDEED | Special Warranty Deed | VAN MASON, EDWARD J | VAN MASON, EDWARD J | | | $0.00 | 28201 | 4417815 |
| 4 | 01/01/1989 | WD | Warranty Deed | EPPIG, JOSEPH J | VAN, MASON, E | | | $130,000.00 | 90026 | 89000092 |
Payout Agreement
| No payout information available.. |