Property
Account |
| Property ID: | 401522 | Abbreviated Legal Description: | SUNNY SH AC LOTS 66 & 67: S173.47' OF SW NE & GL3 SEC 10-30-3E LY S OF KAREN WAY LY W OF JANET AVE LY E OF CAMANO BLVD & LY N OF SLN SW NE & GL3 |
| Geographic ID: | S8240-00-00066-0 | Agent Code: | |
| Type: | Real | | |
| Tax Area: | 542 - APPRAISER-Stan/Cam Schl Dist, Special Dist, improved, greater than 1 acre | Land Use Code | 11 |
| Open Space: | N | DFL | N |
| Historic Property: | N | Remodel Property: | N |
| Multi-Family Redevelopment: | N | | |
| Township: | | Section: | |
| Range: | |
Location |
| Address: | 2984 JANET AVE CAMANO ISLAND, WA 98282 | Mapsco: | |
| Neighborhood: | 58RecamS-East Cam | Map ID: | 866 |
| Neighborhood CD: | 58RecamS |
Owner |
| Name: | JOHNSON, BRYAN K | Owner ID: | 308976 |
| Mailing Address: | DARLYN JOHNSON 2984 JANET AVE CAMANO ISLAND, WA 98282 | % Ownership: | 100.0000000000% |
| | | Exemptions: | |
Taxes and Assessment Details
Values
| (+) Improvement Homesite Value: | + | $0 | |
| (+) Improvement Non-Homesite Value: | + | $552,898 | |
| (+) Land Homesite Value: | + | $0 | |
| (+) Land Non-Homesite Value: | + | $270,000 | |
| (+) Curr Use (HS): | + | $0 | $0 |
| (+) Curr Use (NHS): | + | $0 | $0 |
| | | -------------------------- | |
| (=) Market Value: | = | $822,898 | |
| (–) Productivity Loss: | – | $0 | |
| | | -------------------------- | |
| (=) Subtotal: | = | $822,898 | |
| (+) Senior Appraised Value: | + | $0 | |
| (+) Non-Senior Appraised Value: | + | $822,898 | |
| | | -------------------------- | |
| (=) Total Appraised Value: | = | $822,898 | |
| (–) Senior Exemption Loss: | – | $0 | |
| (–) Exemption Loss: | – | $0 | |
| | | -------------------------- | |
| (=) Taxable Value: | = | $822,898 | |
Taxing Jurisdiction
| Owner: | JOHNSON, BRYAN K | | |
| % Ownership: | 100.0000000000% | | |
| Total Value: | $822,898 | | |
| Tax Area: | 542 - APPRAISER-Stan/Cam Schl Dist, Special Dist, improved, greater than 1 acre |
| CF | Conservation Futures | 0.0313996660 | $822,898 | $822,898 | $25.84 | | |
| EMS1 | Fire & Rescue Dist #1 Camano GEN (EMS) | 0.4998471806 | $822,898 | $822,898 | $411.32 | | |
| FIRE1 | Fire & Rescue Dist #1 Camano GEN | 1.2496603404 | $822,898 | $822,898 | $1,028.34 | | |
| FIRE1BOND | Fire & Rescue Dist #1 Camano BOND | 0.1630371212 | $822,898 | $822,898 | $134.16 | | |
| CE | County Current Expense | 0.3674210519 | $822,898 | $822,898 | $302.35 | | |
| CR | County Roads | 0.4614296361 | $822,898 | $822,898 | $379.71 | | |
| LIB | Library Sno-Isle GEN | 0.3039084203 | $822,898 | $822,898 | $250.09 | | |
| SCH205_401 | School 205-401 Enrichment | 1.3697998934 | $822,898 | $822,898 | $1,127.21 | | |
| SCH205BOND | School 205-401 BOND | 0.9354199323 | $822,898 | $822,898 | $769.76 | | |
| ST | State School | 1.4761226122 | $822,898 | $822,898 | $1,214.70 | | |
| ST2 | State School Part 2 | 0.7953803475 | $822,898 | $822,898 | $654.52 | | |
| | Total Tax Rate: | 7.6534262019 | | | | | |
| | | | | Taxes w/Current Exemptions: | $6,298.00 | | |
| | | | | Taxes w/o Exemptions: | $6,298.00 | | |
Improvement / Building
| Improvement #1: | RESIDENTIAL | State Code: | Y | 2383.8 sqft | Value: | $552,898 |
| Bathrooms: | 2.5 | Bedrooms: | 4 | | Ceiling: | DRYWALL PAINTED | Exterior Wall/Cover: | CEMENT FIBER | | Floor Covering: | CARPET/VINYL 60-40 | Floor Structure: | WOOD W/SUBFLOOR | | Foundation: | CONCRETE | Heating: | FHA GAS | | Interior Finish: | DRYWALL PAINT | Plumbing Fixture Cnt: | 12 | | Roof Slope: | 6" IN 12" | Roof Structure/Cover: | CJ ASPHALT |
|
| | Type | Description | Class CD | Sub Class CD | Year Built | Area |
| | BAS | BASE/MAIN FLOOR | 4 | 0 | 2004 | 1236.9 |
| | AGR | ATTACHED GARAGE | 4 | 0 | 2004 | 556.6 |
| | UPS | UPPER STORY | 4 | 0 | 2004 | 1146.9 |
| | OWC | OPEN WOOD PORCH W/STEPS/ROOF/C | 4 | 0 | 2004 | 258.9 |
| | OWC | OPEN WOOD PORCH W/STEPS/ROOF/C | 4 | 0 | 2004 | 93.5 |
| | DGR | DETACHED GARAGE | 4 | 0 | 2019 | 1512.0 |
| | UTY | STORAGE/UTILITY | 4 | 0 | 2004 | 100.0 |
Sketch
Property Image
Land
| 1 | 18 | AC (02.01-03.00) | 2.8000 | 121968.00 | 0.00 | 0.00 | 1.00 | $270,000 | $0 |
Roll Value History
| 2026 | N/A | N/A | N/A | N/A | N/A |
| 2025 | $552,898 | $270,000 | $0 | $822,898 | $822,898 |
| 2024 | $557,545 | $270,000 | $0 | $827,545 | $827,545 |
| 2023 | $558,606 | $240,000 | $0 | $798,606 | $798,606 |
| 2022 | $491,616 | $210,000 | $0 | $701,616 | $701,616 |
| 2021 | $383,797 | $150,000 | $0 | $533,797 | $533,797 |
| 2020 | $382,842 | $140,000 | $0 | $522,842 | $522,842 |
| 2019 | $294,430 | $170,000 | $0 | $464,430 | $464,430 |
| 2018 | $260,335 | $105,000 | $0 | $365,335 | $365,335 |
| 2017 | $261,363 | $105,000 | $0 | $366,363 | $366,363 |
| 2016 | $264,334 | $105,000 | $0 | $369,334 | $369,334 |
| 2015 | $257,252 | $50,000 | $0 | $307,252 | $307,252 |
| 2014 | $260,159 | $50,000 | $0 | $310,159 | $310,159 |
| 2013 | $263,064 | $50,000 | $0 | $313,064 | $313,064 |
| 2012 | $265,969 | $74,400 | $0 | $340,369 | $340,369 |
| 2011 | $268,875 | $93,000 | $0 | $361,875 | $361,875 |
| 2010 | $279,158 | $93,000 | $0 | $372,158 | $372,158 |
| 2009 | $294,135 | $120,000 | $0 | $414,135 | $414,135 |
| 2008 | $294,452 | $99,000 | $0 | $393,452 | $393,452 |
| 2007 | $297,753 | $125,000 | $0 | $422,753 | $422,753 |
Deed and Sales History
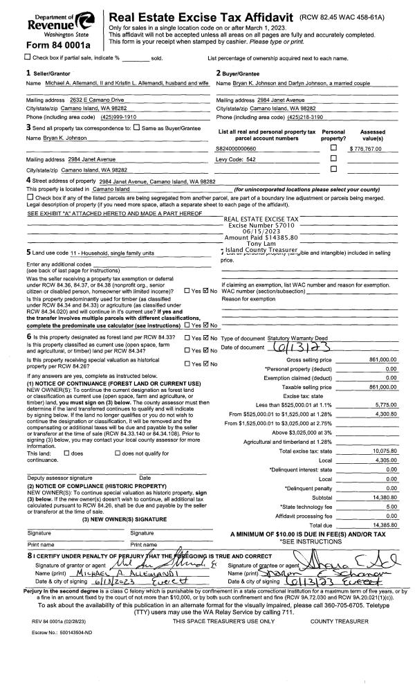
| 1 | 06/13/2023 | WD | Warranty Deed | ALLEMANDI II, MICHAEL A | JOHNSON, BRYAN K | | | $861,000.00 | 57010 | 4561079 |
| 2 | 09/07/2012 | QCD | Quit Claim Deed | BLOCK, DENNIS L / JANIE L | ALLEMANDI II, MICHAEL A | | | $245,000.00 | 8846 | 4323027 |
| 3 | 04/12/2004 | WD | Warranty Deed | LEE, JAMES K | BLOCK, DENNIS L | | | $65,000.00 | 41561 | 4097690 |
| 4 | 11/01/1991 | WD | Warranty Deed | LEE, JAMES K | LEE, JAMES K | | | $28,000.00 | 14412 | 91019298 |
| 5 | 10/01/1991 | QCD | Quit Claim Deed | ENGLISH, PATTY O | LEE, JAMES K | | | $0.00 | 14413 | 91019299 |
| 6 | 01/01/1900 | OTHER | Other - Misc. Documents | Unknown | ENGLISH, PATTY O | | | $0.00 | 0 | 0 |
Payout Agreement
| No payout information available.. |