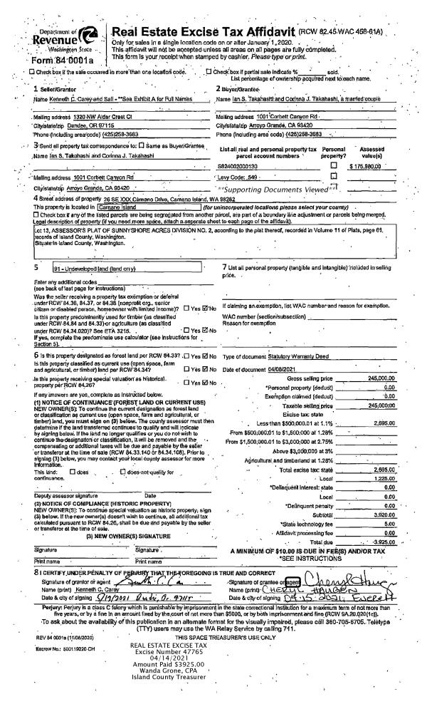
Property
Account |
| Property ID: | 402175 | Abbreviated Legal Description: | SUNNY SH AC 2 LOT 13 INCL ADJ TIDES TGW & SUB DRIVEWAY EZ AF#92002933 |
| Geographic ID: | S8240-02-00013-0 | Agent Code: | |
| Type: | Real | | |
| Tax Area: | 549 - APPRAISER-Stan/Cam Schl Dist, Special Dist, vacant & 50 acres or less | Land Use Code | 99 |
| Open Space: | N | DFL | N |
| Historic Property: | N | Remodel Property: | N |
| Multi-Family Redevelopment: | N | | |
| Township: | | Section: | |
| Range: | |
Location |
| Address: | 2689 S EAST CAMANO DR CAMANO IS, WA 98282 | Mapsco: | |
| Neighborhood: | Cycle 5 | Map ID: | 850 |
| Neighborhood CD: | 5 |
Owner |
| Name: | TAKAHASHI, IAN S | Owner ID: | 298879 |
| Mailing Address: | CORINNA J TAKAHASHI 1001 CORBETT CANYON RD ARROYO GRANDE, CA 93420 | % Ownership: | 100.0000000000% |
| | | Exemptions: | |
Taxes and Assessment Details
Values
| (+) Improvement Homesite Value: | + | $0 | |
| (+) Improvement Non-Homesite Value: | + | $0 | |
| (+) Land Homesite Value: | + | $0 | |
| (+) Land Non-Homesite Value: | + | $275,980 | |
| (+) Curr Use (HS): | + | $0 | $0 |
| (+) Curr Use (NHS): | + | $0 | $0 |
| | | -------------------------- | |
| (=) Market Value: | = | $275,980 | |
| (–) Productivity Loss: | – | $0 | |
| | | -------------------------- | |
| (=) Subtotal: | = | $275,980 | |
| (+) Senior Appraised Value: | + | $0 | |
| (+) Non-Senior Appraised Value: | + | $275,980 | |
| | | -------------------------- | |
| (=) Total Appraised Value: | = | $275,980 | |
| (–) Senior Exemption Loss: | – | $0 | |
| (–) Exemption Loss: | – | $0 | |
| | | -------------------------- | |
| (=) Taxable Value: | = | $275,980 | |
Taxing Jurisdiction
| Owner: | TAKAHASHI, IAN S | | |
| % Ownership: | 100.0000000000% | | |
| Total Value: | $275,980 | | |
| Tax Area: | 549 - APPRAISER-Stan/Cam Schl Dist, Special Dist, vacant & 50 acres or less |
| CF | Conservation Futures | 0.0313996660 | $275,980 | $275,980 | $8.67 | | |
| EMS1 | Fire & Rescue Dist #1 Camano GEN (EMS) | 0.4998471806 | $275,980 | $275,980 | $137.95 | | |
| CE | County Current Expense | 0.3674210519 | $275,980 | $275,980 | $101.40 | | |
| CR | County Roads | 0.4614296361 | $275,980 | $275,980 | $127.35 | | |
| LIB | Library Sno-Isle GEN | 0.3039084203 | $275,980 | $275,980 | $83.87 | | |
| SCH205_401 | School 205-401 Enrichment | 1.3697998934 | $275,980 | $275,980 | $378.04 | | |
| SCH205BOND | School 205-401 BOND | 0.9354199323 | $275,980 | $275,980 | $258.16 | | |
| ST | State School | 1.4761226122 | $275,980 | $275,980 | $407.38 | | |
| ST2 | State School Part 2 | 0.7953803475 | $275,980 | $275,980 | $219.51 | | |
| | Total Tax Rate: | 6.2407287403 | | | | | |
| | | | | Taxes w/Current Exemptions: | $1,722.33 | | |
| | | | | Taxes w/o Exemptions: | $1,722.33 | | |
Improvement / Building
Sketch
| No sketches available for this property. |
Property Image
Land
| 1 | HB | HIGH BLUFF | 1.4900 | 64904.40 | 98.00 | 0.00 | 1.00 | $275,000 | $0 |
| 2 | 55 | TIDES | 0.0000 | 0.00 | 98.00 | 0.00 | 1.00 | $980 | $0 |
Roll Value History
| 2026 | N/A | N/A | N/A | N/A | N/A |
| 2025 | $0 | $275,980 | $0 | $275,980 | $275,980 |
| 2024 | $0 | $275,980 | $0 | $275,980 | $275,980 |
| 2023 | $0 | $250,980 | $0 | $250,980 | $250,980 |
| 2022 | $0 | $225,980 | $0 | $225,980 | $225,980 |
| 2021 | $0 | $175,980 | $0 | $175,980 | $175,980 |
| 2020 | $0 | $175,980 | $0 | $175,980 | $175,980 |
| 2019 | $0 | $175,980 | $0 | $175,980 | $175,980 |
| 2018 | $0 | $175,980 | $0 | $175,980 | $175,980 |
| 2017 | $0 | $175,980 | $0 | $175,980 | $175,980 |
| 2016 | $0 | $175,980 | $0 | $175,980 | $175,980 |
| 2015 | $0 | $150,980 | $0 | $150,980 | $150,980 |
| 2014 | $0 | $150,980 | $0 | $150,980 | $150,980 |
| 2013 | $0 | $122,065 | $0 | $122,065 | $122,065 |
| 2012 | $0 | $122,065 | $0 | $122,065 | $122,065 |
| 2011 | $0 | $152,336 | $0 | $152,336 | $152,336 |
| 2010 | $0 | $216,223 | $0 | $216,223 | $216,223 |
| 2009 | $0 | $255,467 | $0 | $255,467 | $255,467 |
| 2008 | $0 | $254,689 | $0 | $254,689 | $254,689 |
| 2007 | $0 | $254,003 | $0 | $254,003 | $254,003 |
Deed and Sales History
| 1 | 04/08/2021 | WD | Warranty Deed | CAREY TRUSTEE, KENNETH C | TAKAHASHI, IAN S | | | $245,000.00 | 47765 | 4516453 |
| 2 | 08/08/2017 | QCD | Quit Claim Deed | CAREY, KENNETH C | CAREY TRUSTEE, KENNETH C | | | $0.00 | 30640 | 4428176 |
| 3 | 09/04/2001 | WD | Warranty Deed | HOLTUM, JOHN W | CAREY, KENNETH C | | | $97,000.00 | 13567 | 20042943 |
| 4 | 08/01/1988 | QCD | Quit Claim Deed | BOYER, CONNIE M | HOLTUM, JOHN W | | | $0.00 | 82737 | 88010312 |
| 5 | 08/01/1988 | QCD | Quit Claim Deed | HOLTUM, JOHN W | BOYER, CONNIE M | | | $0.00 | 90952 | 89003349 |
| 6 | 04/01/1982 | TRUSTEED | Trustee's Deed | THOMPSON, HELEN B | HOLTUM, JOHN W | | | $39,334.00 | 20783 | 394919 |
| 7 | 01/01/1900 | OTHER | Other - Misc. Documents | Unknown | THOMPSON, HELEN B | | | $0.00 | 0 | 0 |
Payout Agreement
| No payout information available.. |