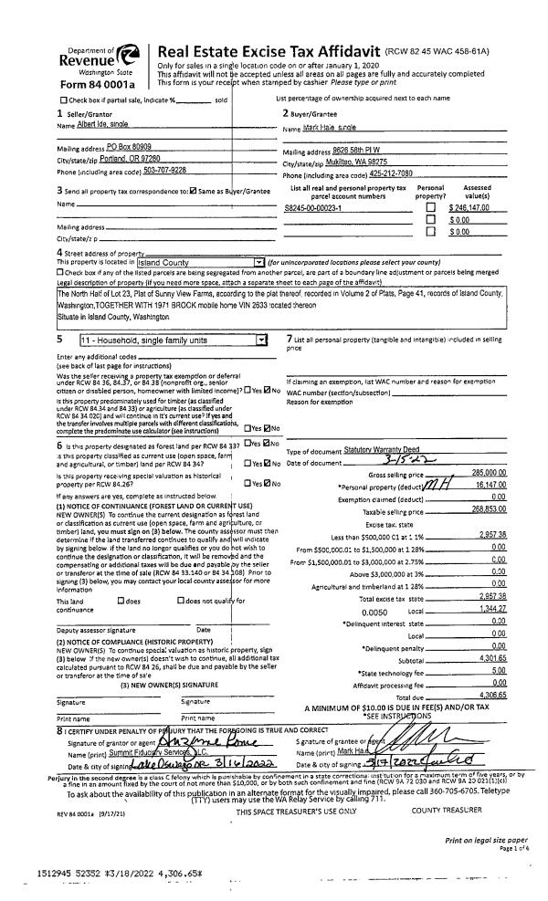
Property
Account |
| Property ID: | 402415 | Abbreviated Legal Description: | SUNNY VU FRM N/2 LOT 23 INCL EZ AF#333447 TGW & SUB EZ AF#90020789 |
| Geographic ID: | S8245-00-00023-1 | Agent Code: | |
| Type: | Real | | |
| Tax Area: | 760 - APPRAISER-S Whid Schl Dist, Special District, improved & less than 1 acre | Land Use Code | 11 |
| Open Space: | N | DFL | N |
| Historic Property: | N | Remodel Property: | N |
| Multi-Family Redevelopment: | N | | |
| Township: | | Section: | |
| Range: | |
Location |
| Address: | 1634 SCENIC AVE FREELAND, WA 98249 | Mapsco: | |
| Neighborhood: | Cycle 3 | Map ID: | 327 |
| Neighborhood CD: | 3 |
Owner |
| Name: | HALE, MARK | Owner ID: | 304503 |
| Mailing Address: | 9626 58TH PL W MUKILTEO, WA 98275 | % Ownership: | 100.0000000000% |
| | | Exemptions: | |
Taxes and Assessment Details
Values
| (+) Improvement Homesite Value: | + | $0 | |
| (+) Improvement Non-Homesite Value: | + | $20,507 | |
| (+) Land Homesite Value: | + | $0 | |
| (+) Land Non-Homesite Value: | + | $310,000 | |
| (+) Curr Use (HS): | + | $0 | $0 |
| (+) Curr Use (NHS): | + | $0 | $0 |
| | | -------------------------- | |
| (=) Market Value: | = | $330,507 | |
| (–) Productivity Loss: | – | $0 | |
| | | -------------------------- | |
| (=) Subtotal: | = | $330,507 | |
| (+) Senior Appraised Value: | + | $0 | |
| (+) Non-Senior Appraised Value: | + | $330,507 | |
| | | -------------------------- | |
| (=) Total Appraised Value: | = | $330,507 | |
| (–) Senior Exemption Loss: | – | $0 | |
| (–) Exemption Loss: | – | $0 | |
| | | -------------------------- | |
| (=) Taxable Value: | = | $330,507 | |
Taxing Jurisdiction
| Owner: | HALE, MARK | | |
| % Ownership: | 100.0000000000% | | |
| Total Value: | $330,507 | | |
| Tax Area: | 760 - APPRAISER-S Whid Schl Dist, Special District, improved & less than 1 acre |
| CF | Conservation Futures | 0.0313996660 | $330,507 | $330,507 | $10.38 | | |
| FIRE3 | Fire & Rescue Dist #3 S Whidbey GEN | 1.2130821753 | $330,507 | $330,507 | $400.93 | | |
| HOBOND | Hospital BOND | 0.1893405597 | $330,507 | $330,507 | $62.58 | | |
| HOGEN | Hospital GEN | 0.3848777722 | $330,507 | $330,507 | $127.20 | | |
| CE | County Current Expense | 0.3674210519 | $330,507 | $330,507 | $121.44 | | |
| CR | County Roads | 0.4614296361 | $330,507 | $330,507 | $152.51 | | |
| ISLANDEMS | Hospital GEN (EMS) | 0.4952018576 | $330,507 | $330,507 | $163.67 | | |
| LIB | Library Sno-Isle GEN | 0.3039084203 | $330,507 | $330,507 | $100.44 | | |
| PORTWHID | Port of S Whidbey GEN | 0.1086004714 | $330,507 | $330,507 | $35.89 | | |
| SCH206BOND | School 206 BOND | 0.5960237832 | $330,507 | $330,507 | $196.99 | | |
| SCH206CAP | School 206 CP | 0.3066144020 | $330,507 | $330,507 | $101.34 | | |
| SCH206MO | School 206 Enrichment | 0.4808755445 | $330,507 | $330,507 | $158.93 | | |
| ST | State School | 1.4761226122 | $330,507 | $330,507 | $487.87 | | |
| ST2 | State School Part 2 | 0.7953803475 | $330,507 | $330,507 | $262.88 | | |
| SWHIDPRBD | P & R S Whidbey BOND | 0.0144185398 | $330,507 | $330,507 | $4.77 | | |
| SWHIDPRBD3 | P & R S Whidbey BOND3 | 0.1483535547 | $330,507 | $330,507 | $49.03 | | |
| SWHIDPRMT | P & R S Whidbey GEN | 0.4600000000 | $330,507 | $330,507 | $152.03 | | |
| | Total Tax Rate: | 7.8330503944 | | | | | |
| | | | | Taxes w/Current Exemptions: | $2,588.88 | | |
| | | | | Taxes w/o Exemptions: | $2,588.88 | | |
Improvement / Building
| Improvement #1: | MANUFACTURED HOME | State Code: | Y | 1152.0 sqft | Value: | $20,507 |
| Bathrooms: | 0 | Bedrooms: | 0 | | Ceiling: | PLASTER PAINTED | Cooling: | EVAP NO DUCT | | Exterior Wall/Cover: | VINYL | Floor Covering: | CARPET 100% | | Floor Structure: | SLAB ON GRADE | Foundation: | SLAB | | Heating: | FHA ELECTRIC | Interior Finish: | PLASTER | | Plumbing Fixture Cnt: | 1 | Roof Slope: | FLAT | | Roof Structure/Cover: | CJ ALUMINIUM HEAVY |   |   |
|
| | Type | Description | Class CD | Sub Class CD | Year Built | Area |
| | BAS | BASE/MAIN FLOOR | 3 | 0 | 1971 | 1152.0 |
| | OWP | OPEN WOOD PORCH W/STEPS | 3 | 0 | 1971 | 120.0 |
Sketch
Property Image
Land
| 1 | 32 | AC (03.01-09.99) | 5.0400 | 0.00 | 0.00 | 0.00 | 1.00 | $310,000 | $0 |
Roll Value History
| 2026 | N/A | N/A | N/A | N/A | N/A |
| 2025 | $20,507 | $310,000 | $0 | $330,507 | $330,507 |
| 2024 | $20,507 | $290,000 | $0 | $310,507 | $310,507 |
| 2023 | $20,507 | $290,000 | $0 | $310,507 | $310,507 |
| 2022 | $18,569 | $280,000 | $0 | $298,569 | $298,569 |
| 2021 | $16,147 | $230,000 | $0 | $246,147 | $246,147 |
| 2020 | $15,676 | $205,000 | $0 | $220,676 | $220,676 |
| 2019 | $13,547 | $230,000 | $0 | $243,547 | $243,547 |
| 2018 | $13,547 | $210,000 | $0 | $223,547 | $223,547 |
| 2017 | $13,547 | $190,000 | $0 | $203,547 | $203,547 |
| 2016 | $13,547 | $165,000 | $0 | $178,547 | $178,547 |
| 2015 | $14,783 | $109,080 | $0 | $123,863 | $123,863 |
| 2014 | $16,017 | $109,080 | $0 | $125,097 | $125,097 |
| 2013 | $24,808 | $109,080 | $0 | $133,888 | $133,888 |
| 2012 | $26,027 | $109,080 | $0 | $135,107 | $135,107 |
| 2011 | $26,637 | $109,080 | $0 | $135,717 | $135,717 |
| 2010 | $36,174 | $109,080 | $0 | $145,254 | $145,254 |
| 2009 | $37,213 | $157,560 | $0 | $194,773 | $194,773 |
| 2008 | $37,412 | $220,395 | $0 | $257,807 | $257,807 |
| 2007 | $32,529 | $220,395 | $0 | $252,924 | $252,924 |
Deed and Sales History
| 1 | 03/18/2022 | MANHOME | Manufactured Home | IDE, ALBERT | HALE, MARK | | | $16,147.00 | 52355 | |
| 2 | 03/15/2022 | WD | Warranty Deed | IDE, ALBERT | HALE, MARK | | | $268,853.00 | 52352 | 4541773 |
| 3 | 12/01/1996 | WD | Warranty Deed | IDE, ALBERT | IDE, ALBERT | | | $14,000.00 | 64545 | 0 |
| 4 | 07/01/1990 | QCD | Quit Claim Deed | BEUST, DAVID W | IDE, ALBERT | | | $0.00 | 6129 | 90020863 |
| 5 | 04/01/1990 | WD | Warranty Deed | SHELLEY, FRANKLIN L | BEUST, DAVID W | | | $25,000.00 | 2495 | 90008022 |
| 6 | 03/01/1979 | OTHER | Other - Misc. Documents | Unknown | SHELLEY, FRANKLIN L | | | $8,350.00 | 91659 | 350720 |
Payout Agreement
| No payout information available.. |