Property
Account |
| Property ID: | 402567 | Abbreviated Legal Description: | SUNRISE HILLS LOT 1 |
| Geographic ID: | S8255-00-00001-0 | Agent Code: | |
| Type: | Real | | |
| Tax Area: | 110 - APPRAISER-OH Schl Dist, outside OH, improved & 1 acre or less | Land Use Code | 11 |
| Open Space: | N | DFL | N |
| Historic Property: | N | Remodel Property: | N |
| Multi-Family Redevelopment: | N | | |
| Township: | | Section: | |
| Range: | |
Location |
| Address: | 580 SUNRISE BLVD OAK HARBOR, WA 98277 | Mapsco: | |
| Neighborhood: | Cycle 6 | Map ID: | 584 |
| Neighborhood CD: | 6 |
Owner |
| Name: | HP WASHINGTON I, LLC | Owner ID: | 292653 |
| Mailing Address: | C/O RYAN LLC SCOTTSDALE, AZ 85261 | % Ownership: | 100.0000000000% |
| | | Exemptions: | |
Taxes and Assessment Details
Values
| (+) Improvement Homesite Value: | + | $0 | |
| (+) Improvement Non-Homesite Value: | + | $473,314 | |
| (+) Land Homesite Value: | + | $0 | |
| (+) Land Non-Homesite Value: | + | $220,000 | |
| (+) Curr Use (HS): | + | $0 | $0 |
| (+) Curr Use (NHS): | + | $0 | $0 |
| | | -------------------------- | |
| (=) Market Value: | = | $693,314 | |
| (–) Productivity Loss: | – | $0 | |
| | | -------------------------- | |
| (=) Subtotal: | = | $693,314 | |
| (+) Senior Appraised Value: | + | $0 | |
| (+) Non-Senior Appraised Value: | + | $693,314 | |
| | | -------------------------- | |
| (=) Total Appraised Value: | = | $693,314 | |
| (–) Senior Exemption Loss: | – | $0 | |
| (–) Exemption Loss: | – | $0 | |
| | | -------------------------- | |
| (=) Taxable Value: | = | $693,314 | |
Taxing Jurisdiction
| Owner: | HP WASHINGTON I, LLC | | |
| % Ownership: | 100.0000000000% | | |
| Total Value: | $693,314 | | |
| Tax Area: | 110 - APPRAISER-OH Schl Dist, outside OH, improved & 1 acre or less |
| CF | Conservation Futures | 0.0313996660 | $693,314 | $693,314 | $21.77 | | |
| CEM1 | Cemetery #1 | 0.0040018856 | $693,314 | $693,314 | $2.77 | | |
| FIRE2 | Fire & Rescue Dist #2 N Whidbey GEN | 0.5381486274 | $693,314 | $693,314 | $373.11 | | |
| HOBOND | Hospital BOND | 0.1893405597 | $693,314 | $693,314 | $131.27 | | |
| HOGEN | Hospital GEN | 0.3848777722 | $693,314 | $693,314 | $266.84 | | |
| CE | County Current Expense | 0.3674210519 | $693,314 | $693,314 | $254.74 | | |
| CR | County Roads | 0.4614296361 | $693,314 | $693,314 | $319.92 | | |
| ISLANDEMS | Hospital GEN (EMS) | 0.4952018576 | $693,314 | $693,314 | $343.33 | | |
| LIB | Library Sno-Isle GEN | 0.3039084203 | $693,314 | $693,314 | $210.70 | | |
| NWHIDPRMT | P & R N Whidbey GEN | 0.1990272349 | $693,314 | $693,314 | $137.99 | | |
| SCH201MO | School 201 Enrichment | 2.3851112745 | $693,314 | $693,314 | $1,653.63 | | |
| ST | State School | 1.4761226122 | $693,314 | $693,314 | $1,023.42 | | |
| ST2 | State School Part 2 | 0.7953803475 | $693,314 | $693,314 | $551.45 | | |
| | Total Tax Rate: | 7.6313709459 | | | | | |
| | | | | Taxes w/Current Exemptions: | $5,290.94 | | |
| | | | | Taxes w/o Exemptions: | $5,290.94 | | |
Improvement / Building
| Improvement #1: | RESIDENTIAL | State Code: | Y | 3582.5 sqft | Value: | $473,314 |
| Bathrooms: | 3 | Bedrooms: | 3 | | Ceiling: | DRYWALL PAINTED | Cooling: | HEAT PUMP/CONV/V | | Exterior Wall/Cover: | PLY/HARDBOARD T-111 | Floor Covering: | HARDWOOD/CARP 20-80 | | Floor Structure: | WOOD W/SUBFLOOR | Foundation: | CONCRETE | | Interior Finish: | DRYWALL PAINT | Plumbing Fixture Cnt: | 15 | | Roof Slope: | 5" IN 12" | Roof Structure/Cover: | CJ ASPHALT |
|
| | Type | Description | Class CD | Sub Class CD | Year Built | Area |
| | BAS | BASE/MAIN FLOOR | 3 | 0 | 1973 | 2337.3 |
| | UB8 | BASEMENT UNFINISHED 8" | 3 | 0 | 1973 | 206.4 |
| | AGR | ATTACHED GARAGE | 3 | 0 | 1973 | 424.0 |
| | UTY | STORAGE/UTILITY | 3 | 0 | 1973 | 199.7 |
| | UTY | STORAGE/UTILITY | 3 | 0 | 1973 | 50.4 |
| | OWP | OPEN WOOD PORCH W/STEPS | 3 | 0 | 1973 | 140.4 |
| | OWP | OPEN WOOD PORCH W/STEPS | 3 | 0 | 1973 | 1192.2 |
| | OWC | OPEN WOOD PORCH W/STEPS/ROOF/C | 3 | 0 | 1973 | 15.0 |
| | DWN | DOWNSTAIRS LIVING AREA | 3 | 0 | 1973 | 1245.2 |
Sketch
Property Image
Land
| 1 | 15 | SQ (12001-21780) | 0.0000 | 0.00 | 0.00 | 0.00 | 1.00 | $220,000 | $0 |
Roll Value History
| 2026 | N/A | N/A | N/A | N/A | N/A |
| 2025 | $473,314 | $220,000 | $0 | $693,314 | $693,314 |
| 2024 | $479,286 | $200,000 | $0 | $679,286 | $679,286 |
| 2023 | $485,259 | $200,000 | $0 | $685,259 | $685,259 |
| 2022 | $423,221 | $200,000 | $0 | $623,221 | $623,221 |
| 2021 | $306,611 | $140,000 | $0 | $446,611 | $446,611 |
| 2020 | $300,143 | $120,000 | $0 | $420,143 | $420,143 |
| 2019 | $248,049 | $155,000 | $0 | $403,049 | $403,049 |
| 2018 | $248,907 | $135,000 | $0 | $383,907 | $383,907 |
| 2017 | $250,623 | $135,000 | $0 | $385,623 | $385,623 |
| 2016 | $219,385 | $90,000 | $0 | $309,385 | $309,385 |
| 2015 | $222,867 | $90,000 | $0 | $312,867 | $312,867 |
| 2014 | $226,349 | $90,000 | $0 | $316,349 | $316,349 |
| 2013 | $229,832 | $119,000 | $0 | $348,832 | $348,832 |
| 2012 | $233,315 | $119,000 | $0 | $352,315 | $352,315 |
| 2011 | $236,797 | $140,000 | $0 | $376,797 | $376,797 |
| 2010 | $252,328 | $140,000 | $0 | $392,328 | $392,328 |
| 2009 | $263,863 | $170,000 | $0 | $433,863 | $433,863 |
| 2008 | $267,759 | $217,500 | $0 | $485,259 | $485,259 |
| 2007 | $271,678 | $147,720 | $0 | $419,398 | $419,398 |
Deed and Sales History
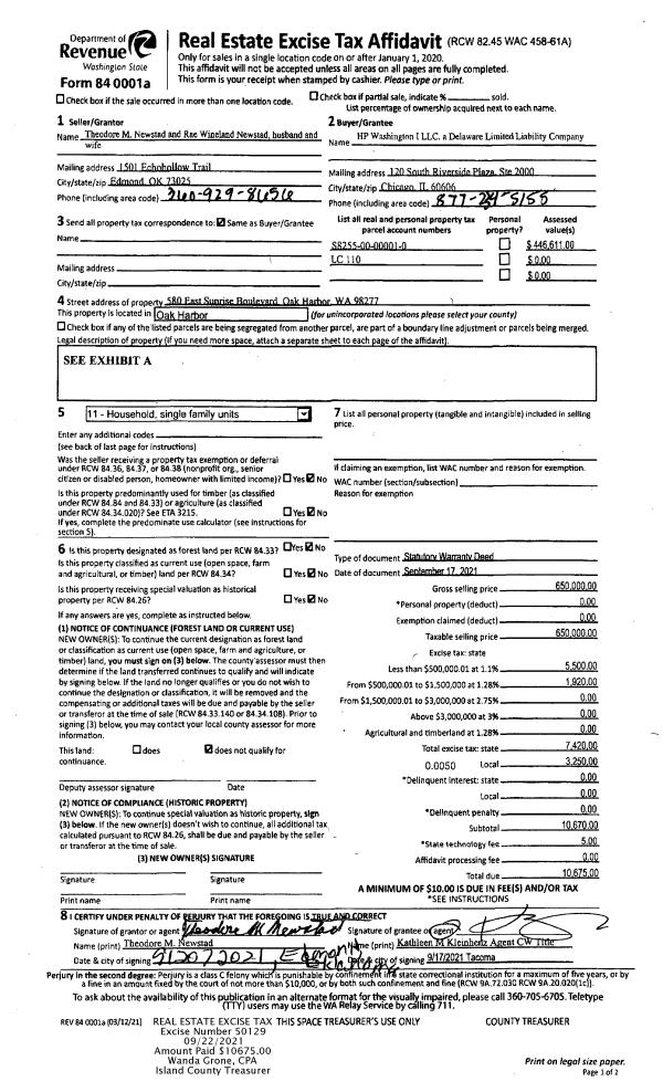
| 1 | 09/17/2021 | WD | Warranty Deed | NEWSTAD, THEODORE M | HP WASHINGTON I, LLC | | | $650,000.00 | 50129 | 4529666 |
| 2 | 02/26/2004 | WD | Warranty Deed | ABRAM, JAMES L | NEWSTAD, THEODORE M | | | $339,000.00 | 41778 | 4099001 |
| 3 | 07/15/1999 | WD | Warranty Deed | MOELLER, CLAUS W | ABRAM, JAMES L | | | $243,000.00 | 92930 | 99017292 |
| 4 | 03/01/1990 | WD | Warranty Deed | PASCALL, FAY | MOELLER, CLAUS W | | | $146,000.00 | 1741 | 90005617 |
| 5 | 12/01/1985 | WD | Warranty Deed | PASCALL, LEON | PASCALL, FAY | | | $151,200.00 | 53504 | 85013930 |
| 6 | 01/01/1900 | OTHER | Other - Misc. Documents | Unknown | PASCALL, LEON | | | $0.00 | 0 | 0 |
Payout Agreement
| No payout information available.. |