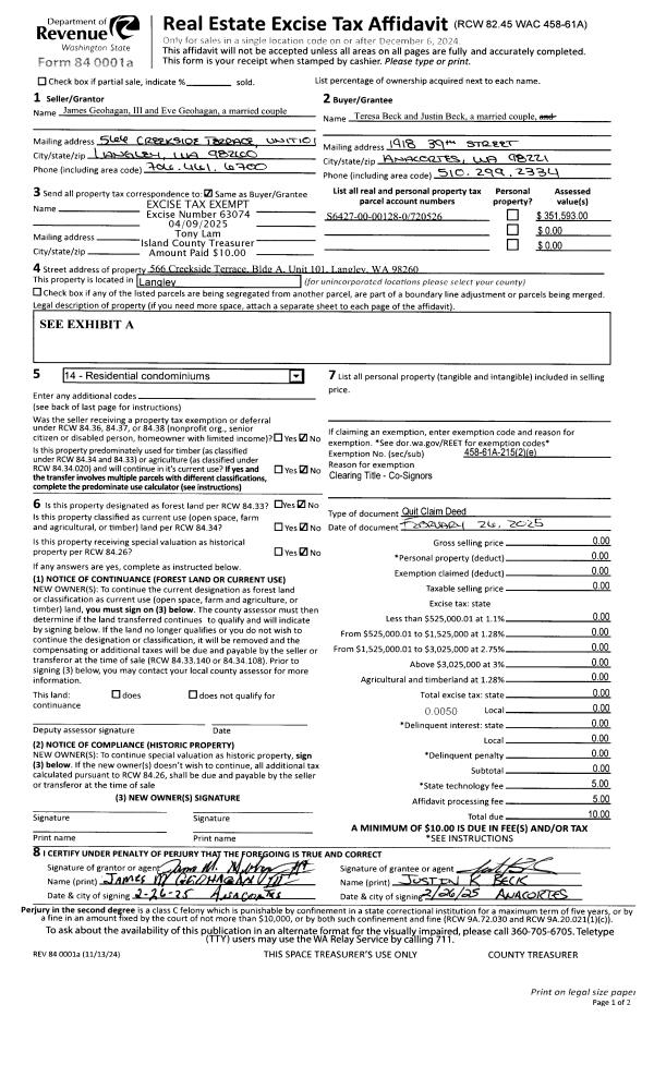
Property
Account |
| Property ID: | 403058 | Abbreviated Legal Description: | SUNSET HILLS LOT 13 |
| Geographic ID: | S8260-00-00013-0 | Agent Code: | |
| Type: | Real | | |
| Tax Area: | 100 - APPRAISER-OH Schl Dist, in OH | Land Use Code | 11 |
| Open Space: | N | DFL | N |
| Historic Property: | N | Remodel Property: | N |
| Multi-Family Redevelopment: | N | | |
| Township: | | Section: | |
| Range: | |
Location |
| Address: | 853 SW LONDON TERRACE OAK HARBOR, WA 98277 | Mapsco: | |
| Neighborhood: | Cycle 1 | Map ID: | 92 |
| Neighborhood CD: | 1 |
Owner |
| Name: | WARE, PARKER ALAN | Owner ID: | 312163 |
| Mailing Address: | TENECIA JELAIR WISE 690 NW ATALANTA WAY, APT L202 OAK HARBOR, WA 98277 | % Ownership: | 100.0000000000% |
| | | Exemptions: | |
Taxes and Assessment Details
Values
| (+) Improvement Homesite Value: | + | $0 | |
| (+) Improvement Non-Homesite Value: | + | $229,025 | |
| (+) Land Homesite Value: | + | $0 | |
| (+) Land Non-Homesite Value: | + | $200,000 | |
| (+) Curr Use (HS): | + | $0 | $0 |
| (+) Curr Use (NHS): | + | $0 | $0 |
| | | -------------------------- | |
| (=) Market Value: | = | $429,025 | |
| (–) Productivity Loss: | – | $0 | |
| | | -------------------------- | |
| (=) Subtotal: | = | $429,025 | |
| (+) Senior Appraised Value: | + | $0 | |
| (+) Non-Senior Appraised Value: | + | $429,025 | |
| | | -------------------------- | |
| (=) Total Appraised Value: | = | $429,025 | |
| (–) Senior Exemption Loss: | – | $0 | |
| (–) Exemption Loss: | – | $0 | |
| | | -------------------------- | |
| (=) Taxable Value: | = | $429,025 | |
Taxing Jurisdiction
| Owner: | WARE, PARKER ALAN | | |
| % Ownership: | 100.0000000000% | | |
| Total Value: | $429,025 | | |
| Tax Area: | 100 - APPRAISER-OH Schl Dist, in OH |
| CF | Conservation Futures | 0.0313996660 | $429,025 | $429,025 | $13.47 | | |
| CEM1 | Cemetery #1 | 0.0040018856 | $429,025 | $429,025 | $1.72 | | |
| COH | City of Oak Harbor | 2.3090730572 | $429,025 | $429,025 | $990.65 | | |
| OAKBOND | City of Oak Harbor BOND | 0.1902260131 | $429,025 | $429,025 | $81.61 | | |
| HOBOND | Hospital BOND | 0.1893405597 | $429,025 | $429,025 | $81.23 | | |
| HOGEN | Hospital GEN | 0.3848777722 | $429,025 | $429,025 | $165.12 | | |
| CE | County Current Expense | 0.3674210519 | $429,025 | $429,025 | $157.63 | | |
| ISLANDEMS | Hospital GEN (EMS) | 0.4952018576 | $429,025 | $429,025 | $212.45 | | |
| LIB | Library Sno-Isle GEN | 0.3039084203 | $429,025 | $429,025 | $130.38 | | |
| NWHIDPRMT | P & R N Whidbey GEN | 0.1990272349 | $429,025 | $429,025 | $85.39 | | |
| SCH201MO | School 201 Enrichment | 2.3851112745 | $429,025 | $429,025 | $1,023.27 | | |
| ST | State School | 1.4761226122 | $429,025 | $429,025 | $633.29 | | |
| ST2 | State School Part 2 | 0.7953803475 | $429,025 | $429,025 | $341.24 | | |
| | Total Tax Rate: | 9.1310917527 | | | | | |
| | | | | Taxes w/Current Exemptions: | $3,917.45 | | |
| | | | | Taxes w/o Exemptions: | $3,917.45 | | |
Improvement / Building
| Improvement #1: | RESIDENTIAL | State Code: | Y | 1080.0 sqft | Value: | $229,025 |
| Bathrooms: | 2 | Bedrooms: | 3 | | Ceiling: | DRY WALL SPRAYED | Cooling: | HEAT PUMP/CONV/V | | Exterior Wall/Cover: | PLY/HARDBOARD T-111 | Floor Covering: | VINYL 100% | | Floor Structure: | WOOD W/SUBFLOOR | Foundation: | CONCRETE | | Interior Finish: | DRYWALL PAINT | Plumbing Fixture Cnt: | 9 | | Roof Slope: | 4" IN 12" | Roof Structure/Cover: | CJ ASPHALT |
|
| | Type | Description | Class CD | Sub Class CD | Year Built | Area |
| | BAS | BASE/MAIN FLOOR | 3 | 0 | 1977 | 1080.0 |
| | OP1 | OPEN PORCH SLAB | 3 | 0 | 1977 | 366.0 |
| | OP3 | OPEN PORCH W/ROOF | 3 | 0 | 1977 | 128.0 |
| | AGR | ATTACHED GARAGE | 3 | 0 | 1977 | 440.0 |
Sketch
Property Image
Land
| 1 | 14 | SQ (08001-12000) | 0.0000 | 0.00 | 0.00 | 0.00 | 1.00 | $200,000 | $0 |
Roll Value History
| 2026 | N/A | N/A | N/A | N/A | N/A |
| 2025 | $229,025 | $200,000 | $0 | $429,025 | $429,025 |
| 2024 | $216,964 | $190,000 | $0 | $406,964 | $406,964 |
| 2023 | $214,191 | $190,000 | $0 | $404,191 | $404,191 |
| 2022 | $196,467 | $180,000 | $0 | $376,467 | $376,467 |
| 2021 | $173,022 | $120,000 | $0 | $293,022 | $293,022 |
| 2020 | $168,205 | $100,000 | $0 | $268,205 | $268,205 |
| 2019 | $118,801 | $150,000 | $0 | $268,801 | $268,801 |
| 2018 | $119,165 | $130,000 | $0 | $249,165 | $249,165 |
| 2017 | $106,726 | $110,000 | $0 | $216,726 | $216,726 |
| 2016 | $108,112 | $90,000 | $0 | $198,112 | $198,112 |
| 2015 | $109,498 | $70,000 | $0 | $179,498 | $179,498 |
| 2014 | $110,885 | $55,000 | $0 | $165,885 | $165,885 |
| 2013 | $112,269 | $55,000 | $0 | $167,269 | $167,269 |
| 2012 | $113,655 | $60,000 | $0 | $173,655 | $173,655 |
| 2011 | $115,239 | $50,000 | $0 | $165,239 | $165,239 |
| 2010 | $121,351 | $50,000 | $0 | $171,351 | $171,351 |
| 2009 | $126,455 | $60,000 | $0 | $186,455 | $186,455 |
| 2008 | $127,951 | $72,000 | $0 | $199,951 | $199,951 |
| 2007 | $129,437 | $72,000 | $0 | $201,437 | $201,437 |
Deed and Sales History
| 1 | 04/30/2024 | WD | Warranty Deed | RUSSELL JR, LOUIS | WARE, PARKER ALAN | | | $436,850.00 | 59784 | 4571790 |
| 2 | 07/29/2019 | QCD | Quit Claim Deed | RUSSELL JR, LOUIS J | RUSSELL JR, LOUIS | | | $0.00 | 40883 | 4474349 |
| 3 | 05/21/2010 | WD | Warranty Deed | STROUPE, TIMOTHY R | RUSSELL JR, LOUIS J | | | $208,200.00 | 1327 | 4274698 |
| 4 | 05/18/2005 | WD | Warranty Deed | CATABAY, FELIPE B | STROUPE, TIMOTHY R | | | $179,950.00 | 52234 | 4134840 |
| 5 | 01/01/1900 | OTHER | Other - Misc. Documents | Unknown | CATABAY, FELIPE B | | | $0.00 | 0 | 0 |
Payout Agreement
| No payout information available.. |