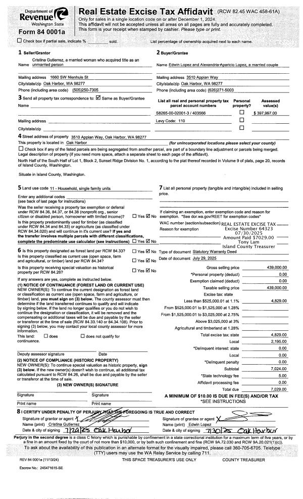
Property
Account |
| Property ID: | 403566 | Abbreviated Legal Description: | SUNSET RIDGE 1 N/2 S/2 LOT 1 BLK 2 |
| Geographic ID: | S8265-00-02001-3 | Agent Code: | |
| Type: | Real | | |
| Tax Area: | 110 - APPRAISER-OH Schl Dist, outside OH, improved & 1 acre or less | Land Use Code | 11 |
| Open Space: | N | DFL | N |
| Historic Property: | N | Remodel Property: | N |
| Multi-Family Redevelopment: | N | | |
| Township: | | Section: | |
| Range: | |
Location |
| Address: | 3510 APPIAN WAY OAK HARBOR, WA 98277 | Mapsco: | |
| Neighborhood: | Cycle 6 | Map ID: | 610 |
| Neighborhood CD: | 6 |
Owner |
| Name: | GUTIERREZ, CRISTINA | Owner ID: | 300896 |
| Mailing Address: | 3510 APPIAN WAY OAK HARBOR, WA 98277 | % Ownership: | 100.0000000000% |
| | | Exemptions: | |
Taxes and Assessment Details
Values
| (+) Improvement Homesite Value: | + | $0 | |
| (+) Improvement Non-Homesite Value: | + | $197,997 | |
| (+) Land Homesite Value: | + | $0 | |
| (+) Land Non-Homesite Value: | + | $200,000 | |
| (+) Curr Use (HS): | + | $0 | $0 |
| (+) Curr Use (NHS): | + | $0 | $0 |
| | | -------------------------- | |
| (=) Market Value: | = | $397,997 | |
| (–) Productivity Loss: | – | $0 | |
| | | -------------------------- | |
| (=) Subtotal: | = | $397,997 | |
| (+) Senior Appraised Value: | + | $0 | |
| (+) Non-Senior Appraised Value: | + | $397,997 | |
| | | -------------------------- | |
| (=) Total Appraised Value: | = | $397,997 | |
| (–) Senior Exemption Loss: | – | $0 | |
| (–) Exemption Loss: | – | $0 | |
| | | -------------------------- | |
| (=) Taxable Value: | = | $397,997 | |
Taxing Jurisdiction
| Owner: | GUTIERREZ, CRISTINA | | |
| % Ownership: | 100.0000000000% | | |
| Total Value: | $397,997 | | |
| Tax Area: | 110 - APPRAISER-OH Schl Dist, outside OH, improved & 1 acre or less |
| CF | Conservation Futures | 0.0313996660 | $397,997 | $397,997 | $12.50 | | |
| CEM1 | Cemetery #1 | 0.0040018856 | $397,997 | $397,997 | $1.59 | | |
| FIRE2 | Fire & Rescue Dist #2 N Whidbey GEN | 0.5381486274 | $397,997 | $397,997 | $214.18 | | |
| HOBOND | Hospital BOND | 0.1893405597 | $397,997 | $397,997 | $75.36 | | |
| HOGEN | Hospital GEN | 0.3848777722 | $397,997 | $397,997 | $153.18 | | |
| CE | County Current Expense | 0.3674210519 | $397,997 | $397,997 | $146.23 | | |
| CR | County Roads | 0.4614296361 | $397,997 | $397,997 | $183.65 | | |
| ISLANDEMS | Hospital GEN (EMS) | 0.4952018576 | $397,997 | $397,997 | $197.09 | | |
| LIB | Library Sno-Isle GEN | 0.3039084203 | $397,997 | $397,997 | $120.95 | | |
| NWHIDPRMT | P & R N Whidbey GEN | 0.1990272349 | $397,997 | $397,997 | $79.21 | | |
| SCH201MO | School 201 Enrichment | 2.3851112745 | $397,997 | $397,997 | $949.27 | | |
| ST | State School | 1.4761226122 | $397,997 | $397,997 | $587.49 | | |
| ST2 | State School Part 2 | 0.7953803475 | $397,997 | $397,997 | $316.56 | | |
| | Total Tax Rate: | 7.6313709459 | | | | | |
| | | | | Taxes w/Current Exemptions: | $3,037.26 | | |
| | | | | Taxes w/o Exemptions: | $3,037.26 | | |
Improvement / Building
| Improvement #1: | RESIDENTIAL | State Code: | Y | 940.0 sqft | Value: | $197,997 |
| Bathrooms: | 1 | Bedrooms: | 2 | | Ceiling: | DRYWALL PAINTED | Cooling: | HEAT PUMP/CONV/V | | Exterior Wall/Cover: | PLY/HARDBOARD T-111 | Floor Covering: | CARPET/VINYL 80-20 | | Floor Structure: | WOOD W/SUBFLOOR | Foundation: | CONCRETE | | Interior Finish: | DRYWALL PAINT | Plumbing Fixture Cnt: | 6 | | Roof Slope: | 8" IN 12" | Roof Structure/Cover: | CJ ASPHALT |
|
| | Type | Description | Class CD | Sub Class CD | Year Built | Area |
| | BAS | BASE/MAIN FLOOR | 3 | 0 | 1995 | 940.0 |
| | OP4 | OPEN PORCH W/CEILING-ROOF | 3 | 0 | 1995 | 64.0 |
| | AGR | ATTACHED GARAGE | 3 | 0 | 1995 | 340.0 |
| | OWC | OPEN WOOD PORCH W/STEPS/ROOF/C | 3 | 0 | 1995 | 128.0 |
Sketch
Property Image
Land
| 1 | 16 | AC (00.51-01.00) | 0.5800 | 25264.80 | 0.00 | 0.00 | 1.00 | $200,000 | $0 |
Roll Value History
| 2026 | N/A | N/A | N/A | N/A | N/A |
| 2025 | $197,997 | $200,000 | $0 | $397,997 | $397,997 |
| 2024 | $200,433 | $200,000 | $0 | $400,433 | $400,433 |
| 2023 | $202,871 | $200,000 | $0 | $402,871 | $402,871 |
| 2022 | $185,913 | $200,000 | $0 | $385,913 | $385,913 |
| 2021 | $163,579 | $170,000 | $0 | $333,579 | $333,579 |
| 2020 | $140,721 | $145,000 | $0 | $285,721 | $285,721 |
| 2019 | $99,685 | $155,000 | $0 | $254,685 | $254,685 |
| 2018 | $100,004 | $150,000 | $0 | $250,004 | $250,004 |
| 2017 | $100,641 | $125,000 | $0 | $225,641 | $225,641 |
| 2016 | $101,076 | $90,000 | $0 | $191,076 | $191,076 |
| 2015 | $102,371 | $85,000 | $0 | $187,371 | $187,371 |
| 2014 | $103,668 | $80,000 | $0 | $183,668 | $183,668 |
| 2013 | $104,964 | $80,750 | $0 | $185,714 | $185,714 |
| 2012 | $106,260 | $80,750 | $0 | $187,010 | $187,010 |
| 2011 | $107,555 | $95,000 | $0 | $202,555 | $202,555 |
| 2010 | $111,779 | $95,000 | $0 | $206,779 | $206,779 |
| 2009 | $116,657 | $105,000 | $0 | $221,657 | $221,657 |
| 2008 | $118,124 | $92,500 | $0 | $210,624 | $210,624 |
| 2007 | $119,588 | $92,500 | $0 | $212,088 | $212,088 |
Deed and Sales History
| 1 | 07/29/2025 | WD | Warranty Deed | GUTIERREZ, CRISTINA | LOPEZ, EDWIN | | | $439,000.00 | 64323 | 4588968 |
| 2 | 08/23/2021 | WD | Warranty Deed | LANG, BRITTANY | GUTIERREZ, CRISTINA | | | $385,000.00 | 49780 | 4527634 |
| 3 | 12/22/2020 | WD | Warranty Deed | ADKINS, NATHAN | LANG, BRITTANY | | | $329,900.00 | 46269 | 4506142 |
| 4 | 05/09/2017 | WD | Warranty Deed | BURBANK, KRYSTEN A | ADKINS, NATHAN | | | $228,000.00 | 29342 | 4422758 |
| 5 | 04/12/2017 | QCD | Quit Claim Deed | LANGE, RYAN S | BURBANK, KRYSTEN A | | | $0.00 | 29341 | 4422757 |
| 6 | 06/12/2007 | TRUSTEED | Trustee's Deed | GMAC MORGAGE CORP, | LANGE, RYAN S | | | $194,900.00 | 72105 | 4205376 |
| 7 | 12/11/2006 | TRUSTEED | Trustee's Deed | MAHONEY-HURST, ANDREA & | GMAC MORGAGE CORP, | | | $139,000.00 | 65301 | 4189806 |
| 8 | 08/01/1995 | WD | Warranty Deed | YONKMAN, CONSTRUCTION I | MAHONEY-HURST, ANDREA & | | | $98,500.00 | 52759 | 95012747 |
| 9 | 12/01/1994 | REC | Real Estate Contract | RYAN, JERRY E | YONKMAN, CONSTRUCTION I | | | $23,900.00 | 50134 | 95000683 |
| 10 | 01/01/1900 | OTHER | Other - Misc. Documents | Unknown | RYAN, JERRY E | | | $0.00 | 0 | 0 |
Payout Agreement
| No payout information available.. |