Property
Account |
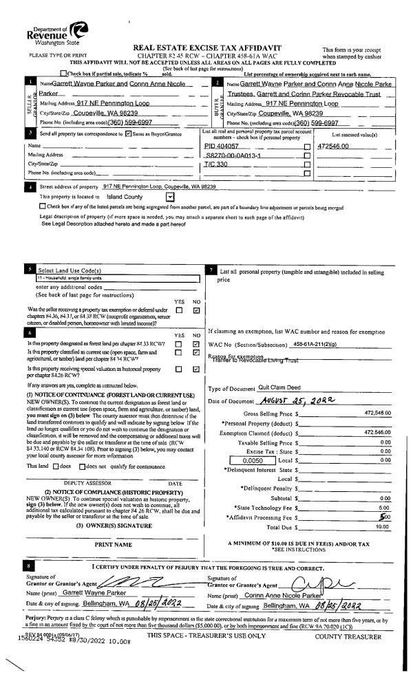
| Property ID: | 404057 | Abbreviated Legal Description: | SUNSET TERR PTS LTS 12 & 13 BLK A BG NE CR LOT 12 W40' S0*W265.5' TO SLN LOT 12 E30' TO SE CR LOT 12 N2* E265.71' TPB ALSO BG NW CR LOT 13 E40' S6*W267.26' TO SLN LOT 13 W20' TO SW CR LOT 13 N2*E265.71' TPB |
| Geographic ID: | S8270-00-0A013-1 | Agent Code: | |
| Type: | Real | | |
| Tax Area: | 300 - APPRAISER-Cpvl Schl Dist, in Cpvl | Land Use Code | 11 |
| Open Space: | N | DFL | N |
| Historic Property: | N | Remodel Property: | N |
| Multi-Family Redevelopment: | N | | |
| Township: | | Section: | |
| Range: | |
Location |
| Address: | 917 NE PENNINGTON LOOP COUPEVILLE, WA 98239 | Mapsco: | |
| Neighborhood: | Cycle 2 | Map ID: | 177 |
| Neighborhood CD: | 2 |
Owner |
| Name: | PARKER TTEE, GARRETT WAYNE | Owner ID: | 305930 |
| Mailing Address: | CORINN ANNE NICOLE PARKER TTEE 917 NE PENNINGTON LOOP COUPEVILLE, WA 98239 | % Ownership: | 100.0000000000% |
| | | Exemptions: | |
Taxes and Assessment Details
Values
| (+) Improvement Homesite Value: | + | $0 | |
| (+) Improvement Non-Homesite Value: | + | $304,743 | |
| (+) Land Homesite Value: | + | $0 | |
| (+) Land Non-Homesite Value: | + | $240,000 | |
| (+) Curr Use (HS): | + | $0 | $0 |
| (+) Curr Use (NHS): | + | $0 | $0 |
| | | -------------------------- | |
| (=) Market Value: | = | $544,743 | |
| (–) Productivity Loss: | – | $0 | |
| | | -------------------------- | |
| (=) Subtotal: | = | $544,743 | |
| (+) Senior Appraised Value: | + | $0 | |
| (+) Non-Senior Appraised Value: | + | $544,743 | |
| | | -------------------------- | |
| (=) Total Appraised Value: | = | $544,743 | |
| (–) Senior Exemption Loss: | – | $0 | |
| (–) Exemption Loss: | – | $0 | |
| | | -------------------------- | |
| (=) Taxable Value: | = | $544,743 | |
Taxing Jurisdiction
| Owner: | PARKER TTEE, GARRETT WAYNE | | |
| % Ownership: | 100.0000000000% | | |
| Total Value: | $544,743 | | |
| Tax Area: | 300 - APPRAISER-Cpvl Schl Dist, in Cpvl |
| CF | Conservation Futures | 0.0313996660 | $544,743 | $544,743 | $17.10 | | |
| CEM2 | Cemetery #2 | 0.0092609791 | $544,743 | $544,743 | $5.04 | | |
| COUP | City: Town of Coupeville | 0.8188663519 | $544,743 | $544,743 | $446.07 | | |
| FIRE5 | Fire & Rescue Dist #5 C Whidbey GEN | 1.1892169230 | $544,743 | $544,743 | $647.82 | | |
| FIRE5BOND | Fire & Rescue Dist #5 C Whidbey BOND | 0.1394359503 | $544,743 | $544,743 | $75.96 | | |
| HOBOND | Hospital BOND | 0.1893405597 | $544,743 | $544,743 | $103.14 | | |
| HOGEN | Hospital GEN | 0.3848777722 | $544,743 | $544,743 | $209.66 | | |
| CE | County Current Expense | 0.3674210519 | $544,743 | $544,743 | $200.15 | | |
| ISLANDEMS | Hospital GEN (EMS) | 0.4952018576 | $544,743 | $544,743 | $269.76 | | |
| LIB | Library Sno-Isle GEN | 0.3039084203 | $544,743 | $544,743 | $165.55 | | |
| LIBCAP | Library Sno-Isle BOND (Cap Fac Imp Area) | 0.0528562629 | $544,743 | $544,743 | $28.79 | | |
| POCOUP | Port of Coupeville GEN | 0.1065226063 | $544,743 | $544,743 | $58.03 | | |
| POCOUPIDD | Port of Coupeville IDD | 0.3353038577 | $544,743 | $544,743 | $182.65 | | |
| COUPSDTECH | School 204 CP (TECH) | 0.1215123397 | $544,743 | $544,743 | $66.19 | | |
| SCH204MO | School 204 Enrichment | 0.6416662518 | $544,743 | $544,743 | $349.54 | | |
| ST | State School | 1.4761226122 | $544,743 | $544,743 | $804.11 | | |
| ST2 | State School Part 2 | 0.7953803475 | $544,743 | $544,743 | $433.28 | | |
| | Total Tax Rate: | 7.4582938101 | | | | | |
| | | | | Taxes w/Current Exemptions: | $4,062.84 | | |
| | | | | Taxes w/o Exemptions: | $4,062.84 | | |
Improvement / Building
| Improvement #1: | RESIDENTIAL | State Code: | Y | 1881.0 sqft | Value: | $304,743 |
| Bathrooms: | 2 | Bedrooms: | 4 | | Ceiling: | DRYWALL PAINTED | Exterior Wall/Cover: | WOOD SIDING | | Floor Covering: | VINYL TILE/HARWD 20-80 | Floor Structure: | WOOD W/SUBFLOOR | | Foundation: | CONCRETE | Heating: | FHA GAS | | Interior Finish: | DRYWALL PAINT | Plumbing Fixture Cnt: | 11 | | Roof Slope: | 4" IN 12" | Roof Structure/Cover: | CJ ASPHALT |
|
| | Type | Description | Class CD | Sub Class CD | Year Built | Area |
| | BAS | BASE/MAIN FLOOR | 3 | 0 | 1960 | 1881.0 |
| | OWP | OPEN WOOD PORCH W/STEPS | 3 | 0 | 1960 | 240.0 |
| | OWP | OPEN WOOD PORCH W/STEPS | 3 | 0 | 1960 | 288.0 |
Sketch
Property Image
Land
| 1 | 15 | SQ (12001-21780) | 0.4000 | 17424.00 | 0.00 | 0.00 | 1.00 | $240,000 | $0 |
Roll Value History
| 2026 | N/A | N/A | N/A | N/A | N/A |
| 2025 | $304,743 | $240,000 | $0 | $544,743 | $544,743 |
| 2024 | $293,491 | $225,000 | $0 | $518,491 | $518,491 |
| 2023 | $297,242 | $210,000 | $0 | $507,242 | $507,242 |
| 2022 | $272,546 | $200,000 | $0 | $472,546 | $472,546 |
| 2021 | $239,956 | $150,000 | $0 | $389,956 | $389,956 |
| 2020 | $234,016 | $130,000 | $0 | $364,016 | $364,016 |
| 2019 | $175,659 | $170,000 | $0 | $345,659 | $345,659 |
| 2018 | $151,715 | $150,000 | $0 | $301,715 | $301,715 |
| 2017 | $124,844 | $130,000 | $0 | $254,844 | $254,844 |
| 2016 | $126,706 | $115,000 | $0 | $241,706 | $241,706 |
| 2015 | $128,568 | $90,000 | $0 | $218,568 | $218,568 |
| 2014 | $158,230 | $85,000 | $0 | $243,230 | $243,230 |
| 2013 | $92,672 | $85,000 | $0 | $177,672 | $177,672 |
| 2012 | $70,315 | $90,950 | $0 | $161,265 | $161,265 |
| 2011 | $71,618 | $107,000 | $0 | $178,618 | $178,618 |
| 2010 | $78,619 | $107,000 | $0 | $185,619 | $185,619 |
| 2009 | $82,383 | $125,000 | $0 | $207,383 | $207,383 |
| 2008 | $82,528 | $125,000 | $0 | $207,528 | $207,528 |
| 2007 | $83,972 | $125,000 | $0 | $208,972 | $208,972 |
Deed and Sales History
| 1 | 08/25/2022 | QCD | Quit Claim Deed | PARKER, GARRETT WAYNE | PARKER TTEE, GARRETT WAYNE | | | $0.00 | 54352 | 4550455 |
| 2 | 03/01/2012 | WD | Warranty Deed | CARSTENSEN, WILLIAM R | PARKER, GARRETT WAYNE | | | $180,000.00 | 7115 | 4311667 |
Payout Agreement
| No payout information available.. |