Property
Account |
| Property ID: | 404084 | Abbreviated Legal Description: | SUNSET TERR LOT 15 BLK A |
| Geographic ID: | S8270-00-0A015-0 | Agent Code: | |
| Type: | Real | | |
| Tax Area: | 300 - APPRAISER-Cpvl Schl Dist, in Cpvl | Land Use Code | 11 |
| Open Space: | N | DFL | N |
| Historic Property: | N | Remodel Property: | N |
| Multi-Family Redevelopment: | N | | |
| Township: | | Section: | |
| Range: | |
Location |
| Address: | 933 NE PENNINGTON LOOP COUPEVILLE, WA 98239 | Mapsco: | |
| Neighborhood: | Cycle 2 | Map ID: | 177 |
| Neighborhood CD: | 2 |
Owner |
| Name: | YOUNT, DANNY | Owner ID: | 289751 |
| Mailing Address: | VICTORIA ANN YOUNT 933 PENNINGTON LOOP NE COUPEVILLE, WA 98239 | % Ownership: | 100.0000000000% |
| | | Exemptions: | |
Taxes and Assessment Details
Values
| (+) Improvement Homesite Value: | + | $0 | |
| (+) Improvement Non-Homesite Value: | + | $262,002 | |
| (+) Land Homesite Value: | + | $0 | |
| (+) Land Non-Homesite Value: | + | $240,000 | |
| (+) Curr Use (HS): | + | $0 | $0 |
| (+) Curr Use (NHS): | + | $0 | $0 |
| | | -------------------------- | |
| (=) Market Value: | = | $502,002 | |
| (–) Productivity Loss: | – | $0 | |
| | | -------------------------- | |
| (=) Subtotal: | = | $502,002 | |
| (+) Senior Appraised Value: | + | $0 | |
| (+) Non-Senior Appraised Value: | + | $502,002 | |
| | | -------------------------- | |
| (=) Total Appraised Value: | = | $502,002 | |
| (–) Senior Exemption Loss: | – | $0 | |
| (–) Exemption Loss: | – | $0 | |
| | | -------------------------- | |
| (=) Taxable Value: | = | $502,002 | |
Taxing Jurisdiction
| Owner: | YOUNT, DANNY | | |
| % Ownership: | 100.0000000000% | | |
| Total Value: | $502,002 | | |
| Tax Area: | 300 - APPRAISER-Cpvl Schl Dist, in Cpvl |
| CF | Conservation Futures | 0.0313996660 | $502,002 | $502,002 | $15.76 | | |
| CEM2 | Cemetery #2 | 0.0092609791 | $502,002 | $502,002 | $4.65 | | |
| COUP | City: Town of Coupeville | 0.8188663519 | $502,002 | $502,002 | $411.07 | | |
| FIRE5 | Fire & Rescue Dist #5 C Whidbey GEN | 1.1892169230 | $502,002 | $502,002 | $596.99 | | |
| FIRE5BOND | Fire & Rescue Dist #5 C Whidbey BOND | 0.1394359503 | $502,002 | $502,002 | $70.00 | | |
| HOBOND | Hospital BOND | 0.1893405597 | $502,002 | $502,002 | $95.05 | | |
| HOGEN | Hospital GEN | 0.3848777722 | $502,002 | $502,002 | $193.21 | | |
| CE | County Current Expense | 0.3674210519 | $502,002 | $502,002 | $184.45 | | |
| ISLANDEMS | Hospital GEN (EMS) | 0.4952018576 | $502,002 | $502,002 | $248.59 | | |
| LIB | Library Sno-Isle GEN | 0.3039084203 | $502,002 | $502,002 | $152.56 | | |
| LIBCAP | Library Sno-Isle BOND (Cap Fac Imp Area) | 0.0528562629 | $502,002 | $502,002 | $26.53 | | |
| POCOUP | Port of Coupeville GEN | 0.1065226063 | $502,002 | $502,002 | $53.47 | | |
| POCOUPIDD | Port of Coupeville IDD | 0.3353038577 | $502,002 | $502,002 | $168.32 | | |
| COUPSDTECH | School 204 CP (TECH) | 0.1215123397 | $502,002 | $502,002 | $61.00 | | |
| SCH204MO | School 204 Enrichment | 0.6416662518 | $502,002 | $502,002 | $322.12 | | |
| ST | State School | 1.4761226122 | $502,002 | $502,002 | $741.02 | | |
| ST2 | State School Part 2 | 0.7953803475 | $502,002 | $502,002 | $399.28 | | |
| | Total Tax Rate: | 7.4582938101 | | | | | |
| | | | | Taxes w/Current Exemptions: | $3,744.07 | | |
| | | | | Taxes w/o Exemptions: | $3,744.07 | | |
Improvement / Building
| Improvement #1: | RESIDENTIAL | State Code: | Y | 1502.0 sqft | Value: | $262,002 |
| Bathrooms: | 2 | Bedrooms: | 2 | | Ceiling: | DRYWALL PAINTED | Exterior Wall/Cover: | WOOD SIDING | | Floor Covering: | VINYL TILE | Floor Structure: | WOOD W/SUBFLOOR | | Foundation: | CONCRETE | Heating: | FHA GAS | | Interior Finish: | DRYWALL PAINT | Plumbing Fixture Cnt: | 9 | | Roof Slope: | 6" IN 12" | Roof Structure/Cover: | CJ ASPHALT |
|
| | Type | Description | Class CD | Sub Class CD | Year Built | Area |
| | BAS | BASE/MAIN FLOOR | 3 | 0 | 1988 | 1502.0 |
| | AGR | ATTACHED GARAGE | 3 | 0 | 1988 | 336.0 |
| | OWP | OPEN WOOD PORCH W/STEPS | 3 | 0 | 1988 | 154.0 |
| | OWR | OPEN WOOD PORCH W/STEPS/ROOF | 3 | 0 | 1988 | 50.0 |
| | OP3 | OPEN PORCH W/ROOF | 3 | 0 | 1988 | 100.0 |
| | UTY | STORAGE/UTILITY | 3 | 0 | 1988 | 32.0 |
Sketch
| No sketches available for this property. |
Property Image
Land
| 1 | 15 | SQ (12001-21780) | 0.4900 | 21344.40 | 0.00 | 0.00 | 1.00 | $240,000 | $0 |
Roll Value History
| 2026 | N/A | N/A | N/A | N/A | N/A |
| 2025 | $262,002 | $240,000 | $0 | $502,002 | $502,002 |
| 2024 | $254,511 | $225,000 | $0 | $479,511 | $479,511 |
| 2023 | $257,764 | $210,000 | $0 | $467,764 | $467,764 |
| 2022 | $236,355 | $200,000 | $0 | $436,355 | $436,355 |
| 2021 | $208,078 | $150,000 | $0 | $358,078 | $358,078 |
| 2020 | $202,857 | $130,000 | $0 | $332,857 | $332,857 |
| 2019 | $147,720 | $170,000 | $0 | $317,720 | $317,720 |
| 2018 | $150,221 | $150,000 | $0 | $300,221 | $300,221 |
| 2017 | $150,135 | $130,000 | $0 | $280,135 | $280,135 |
| 2016 | $152,085 | $115,000 | $0 | $267,085 | $267,085 |
| 2015 | $154,034 | $90,000 | $0 | $244,034 | $244,034 |
| 2014 | $155,984 | $85,000 | $0 | $240,984 | $240,984 |
| 2013 | $157,935 | $85,000 | $0 | $242,935 | $242,935 |
| 2012 | $160,633 | $90,950 | $0 | $251,583 | $251,583 |
| 2011 | $162,582 | $107,000 | $0 | $269,582 | $269,582 |
| 2010 | $170,946 | $107,000 | $0 | $277,946 | $277,946 |
| 2009 | $178,260 | $125,000 | $0 | $303,260 | $303,260 |
| 2008 | $180,369 | $125,000 | $0 | $305,369 | $305,369 |
| 2007 | $182,476 | $125,000 | $0 | $307,476 | $307,476 |
Deed and Sales History
| 1 | 05/03/2019 | WD | Warranty Deed | MILLS, ANTHONY BARRETT | YOUNT, DANNY | | | $340,000.00 | 38500 | 4463329 |
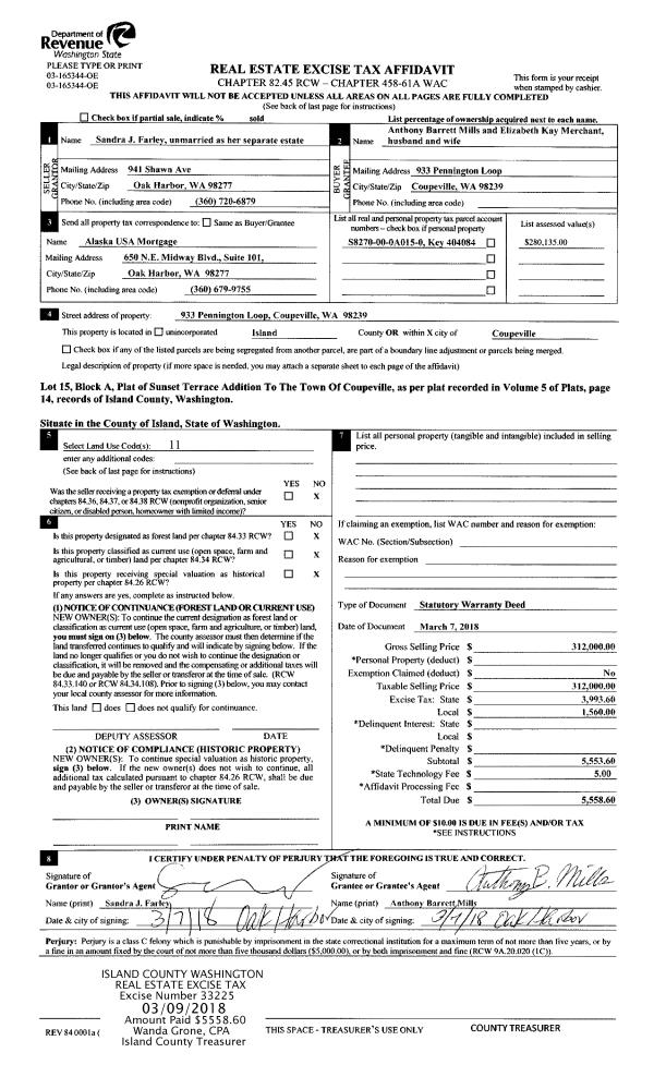
| 2 | 03/07/2018 | WD | Warranty Deed | FARLEY, SANDRA J | MILLS, ANTHONY BARRETT | | | $312,000.00 | 33225 | 4440486 |
| 3 | 04/07/2005 | ESTSEPPROP | Establish Separate Property | FARLEY, SANDRA J | FARLEY, SANDRA J | | | $0.00 | 51453 | 4130606 |
| 4 | 03/30/2005 | WD | Warranty Deed | HUFF, RONALD K | FARLEY, SANDRA J | | | $192,500.00 | 51452 | 4130605 |
| 5 | 07/06/1999 | WD | Warranty Deed | PEDRONI, RENE C | HUFF, RONALD K | | | $110,000.00 | 92889 | 99017099 |
| 6 | 12/01/1997 | WD | Warranty Deed | SHEVCHUK, BENJAMIN A | PEDRONI, RENE C | | | $154,000.00 | 74316 | 97020691 |
| 7 | 03/01/1996 | QCD | Quit Claim Deed | SHEVCHUK, BENJAMIN A | SHEVCHUK, BENJAMIN A | | | $0.00 | 60757 | 96004091 |
| 8 | 04/01/1992 | WD | Warranty Deed | CANFIELD, JAMES W | SHEVCHUK, BENJAMIN A | | | $111,000.00 | 21484 | 92007172 |
| 9 | 10/01/1989 | WD | Warranty Deed | WILLIAMS, RICHARD H | CANFIELD, JAMES W | | | $78,500.00 | 94794 | 89015583 |
| 10 | 09/01/1988 | OTHER | Other - Misc. Documents | WILLIAMS, JANICE W | WILLIAMS, RICHARD H | | | $0.00 | 62848 | 88011164 |
| 11 | 09/01/1988 | QCD | Quit Claim Deed | WILLIAMS, RICHARD H | WILLIAMS, JANICE W | | | $0.00 | 83020 | 88011280 |
| 12 | 01/01/1900 | OTHER | Other - Misc. Documents | HUFF, RONALD K | HUFF, RONALD K | | | $0.00 | 0 | 0 |
| 13 | 01/01/1900 | OTHER | Other - Misc. Documents | ZZZ, C-SP 8 | WILLIAMS, RICHARD H | | | $0.00 | 0 | 0 |
| 14 | 01/01/1900 | OTHER | Other - Misc. Documents | Unknown | ZZZ, C-SP 8 | | | $0.00 | 62421 | 0 |
Payout Agreement
| No payout information available.. |