Property
Account |
| Property ID: | 404146 | Abbreviated Legal Description: | SUNSET TERRACE LOT 25 BLK A EX PT LY WLY OF LN 120' SWLY OF NECR SD LOT 25 TP SLN SD LOT 25 S89*W120' FR SECR SD LOT 25 |
| Geographic ID: | S8270-00-0A025-0 | Agent Code: | |
| Type: | Real | | |
| Tax Area: | 300 - APPRAISER-Cpvl Schl Dist, in Cpvl | Land Use Code | 11 |
| Open Space: | N | DFL | N |
| Historic Property: | N | Remodel Property: | N |
| Multi-Family Redevelopment: | N | | |
| Township: | | Section: | |
| Range: | |
Location |
| Address: | 969 NE PENNINGTON LOOP COUPEVILLE, WA 98239 | Mapsco: | |
| Neighborhood: | Cycle 2 | Map ID: | 177 |
| Neighborhood CD: | 2 |
Owner |
| Name: | FRANDSEN, GREY | Owner ID: | 304167 |
| Mailing Address: | LINDSEY FRANDSEN 40153 JANNEY ST WATERFORD, VA 20197 | % Ownership: | 100.0000000000% |
| | | Exemptions: | |
Taxes and Assessment Details
Values
| (+) Improvement Homesite Value: | + | $0 | |
| (+) Improvement Non-Homesite Value: | + | $533,362 | |
| (+) Land Homesite Value: | + | $0 | |
| (+) Land Non-Homesite Value: | + | $240,000 | |
| (+) Curr Use (HS): | + | $0 | $0 |
| (+) Curr Use (NHS): | + | $0 | $0 |
| | | -------------------------- | |
| (=) Market Value: | = | $773,362 | |
| (–) Productivity Loss: | – | $0 | |
| | | -------------------------- | |
| (=) Subtotal: | = | $773,362 | |
| (+) Senior Appraised Value: | + | $0 | |
| (+) Non-Senior Appraised Value: | + | $773,362 | |
| | | -------------------------- | |
| (=) Total Appraised Value: | = | $773,362 | |
| (–) Senior Exemption Loss: | – | $0 | |
| (–) Exemption Loss: | – | $0 | |
| | | -------------------------- | |
| (=) Taxable Value: | = | $773,362 | |
Taxing Jurisdiction
| Owner: | FRANDSEN, GREY | | |
| % Ownership: | 100.0000000000% | | |
| Total Value: | $773,362 | | |
| Tax Area: | 300 - APPRAISER-Cpvl Schl Dist, in Cpvl |
| CF | Conservation Futures | 0.0313996660 | $773,362 | $773,362 | $24.28 | | |
| CEM2 | Cemetery #2 | 0.0092609791 | $773,362 | $773,362 | $7.16 | | |
| COUP | City: Town of Coupeville | 0.8188663519 | $773,362 | $773,362 | $633.28 | | |
| FIRE5 | Fire & Rescue Dist #5 C Whidbey GEN | 1.1892169230 | $773,362 | $773,362 | $919.70 | | |
| FIRE5BOND | Fire & Rescue Dist #5 C Whidbey BOND | 0.1394359503 | $773,362 | $773,362 | $107.83 | | |
| HOBOND | Hospital BOND | 0.1893405597 | $773,362 | $773,362 | $146.43 | | |
| HOGEN | Hospital GEN | 0.3848777722 | $773,362 | $773,362 | $297.65 | | |
| CE | County Current Expense | 0.3674210519 | $773,362 | $773,362 | $284.15 | | |
| ISLANDEMS | Hospital GEN (EMS) | 0.4952018576 | $773,362 | $773,362 | $382.97 | | |
| LIB | Library Sno-Isle GEN | 0.3039084203 | $773,362 | $773,362 | $235.03 | | |
| LIBCAP | Library Sno-Isle BOND (Cap Fac Imp Area) | 0.0528562629 | $773,362 | $773,362 | $40.88 | | |
| POCOUP | Port of Coupeville GEN | 0.1065226063 | $773,362 | $773,362 | $82.38 | | |
| POCOUPIDD | Port of Coupeville IDD | 0.3353038577 | $773,362 | $773,362 | $259.31 | | |
| COUPSDTECH | School 204 CP (TECH) | 0.1215123397 | $773,362 | $773,362 | $93.97 | | |
| SCH204MO | School 204 Enrichment | 0.6416662518 | $773,362 | $773,362 | $496.24 | | |
| ST | State School | 1.4761226122 | $773,362 | $773,362 | $1,141.58 | | |
| ST2 | State School Part 2 | 0.7953803475 | $773,362 | $773,362 | $615.12 | | |
| | Total Tax Rate: | 7.4582938101 | | | | | |
| | | | | Taxes w/Current Exemptions: | $5,767.96 | | |
| | | | | Taxes w/o Exemptions: | $5,767.96 | | |
Improvement / Building
| Improvement #1: | RESIDENTIAL | State Code: | Y | 2520.0 sqft | Value: | $533,362 |
| Bathrooms: | 2.5 | Bedrooms: | 4 | | Ceiling: | DRYWALL PAINTED | Cooling: | HEAT PUMP/CONV/V | | Exterior Wall/Cover: | CEMENT FIBER | Floor Covering: | CARPET/VINYL 60-40 | | Floor Structure: | WOOD W/SUBFLOOR | Foundation: | CONCRETE | | Interior Finish: | DRYWALL PAINT | Plumbing Fixture Cnt: | 12 | | Roof Slope: | 4" IN 12" | Roof Structure/Cover: | CJ ASPHALT |
|
| | Type | Description | Class CD | Sub Class CD | Year Built | Area |
| | BAS | BASE/MAIN FLOOR | 4 | 0 | 2022 | 1734.0 |
| | DWN | DOWNSTAIRS LIVING AREA | 4 | 0 | 2022 | 786.0 |
| | BIG | BUILT IN GARAGE | 4 | 0 | 2022 | 834.0 |
| | OP4 | OPEN PORCH W/CEILING-ROOF | 4 | 0 | 2022 | 352.0 |
| | OWP | OPEN WOOD PORCH W/STEPS | 4 | 0 | 2022 | 75.0 |
Sketch
Property Image
Land
| 1 | 14 | SQ (08001-12000) | 0.2700 | 11761.20 | 0.00 | 0.00 | 1.00 | $240,000 | $0 |
Roll Value History
| 2026 | N/A | N/A | N/A | N/A | N/A |
| 2025 | $533,362 | $240,000 | $0 | $773,362 | $773,362 |
| 2024 | $543,061 | $225,000 | $0 | $768,061 | $768,061 |
| 2023 | $554,142 | $210,000 | $0 | $764,142 | $764,142 |
| 2022 | $0 | $40,000 | $0 | $40,000 | $40,000 |
| 2021 | $0 | $40,000 | $0 | $40,000 | $40,000 |
| 2020 | $0 | $40,000 | $0 | $40,000 | $40,000 |
| 2019 | $0 | $40,000 | $0 | $40,000 | $40,000 |
| 2018 | $0 | $40,000 | $0 | $40,000 | $40,000 |
| 2017 | $0 | $40,000 | $0 | $40,000 | $40,000 |
| 2016 | $0 | $30,000 | $0 | $30,000 | $30,000 |
| 2015 | $0 | $30,000 | $0 | $30,000 | $30,000 |
| 2014 | $0 | $30,000 | $0 | $30,000 | $30,000 |
| 2013 | $0 | $45,000 | $0 | $45,000 | $45,000 |
| 2012 | $0 | $45,000 | $0 | $45,000 | $45,000 |
| 2011 | $0 | $45,000 | $0 | $45,000 | $45,000 |
| 2010 | $0 | $45,000 | $0 | $45,000 | $45,000 |
| 2009 | $0 | $40,000 | $0 | $40,000 | $40,000 |
| 2008 | $0 | $95,000 | $0 | $95,000 | $95,000 |
| 2007 | $0 | $95,000 | $0 | $95,000 | $95,000 |
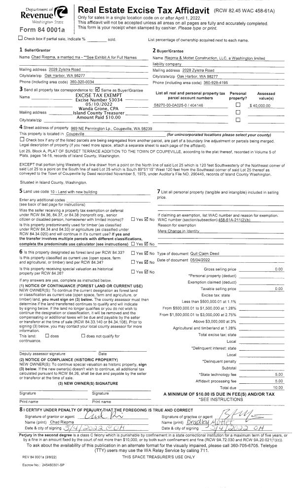
Deed and Sales History
| 1 | 05/04/2022 | WD | Warranty Deed | RIEPMA & MOTTET CONSTRUCTION LLC | FRANDSEN, GREY | | | $780,000.00 | 53035 | 4544822 |
| 2 | 05/04/2022 | QCD | Quit Claim Deed | RIEPMA, CHAD | RIEPMA & MOTTET CONSTRUCTION LLC | | | $0.00 | 53034 | 4544821 |
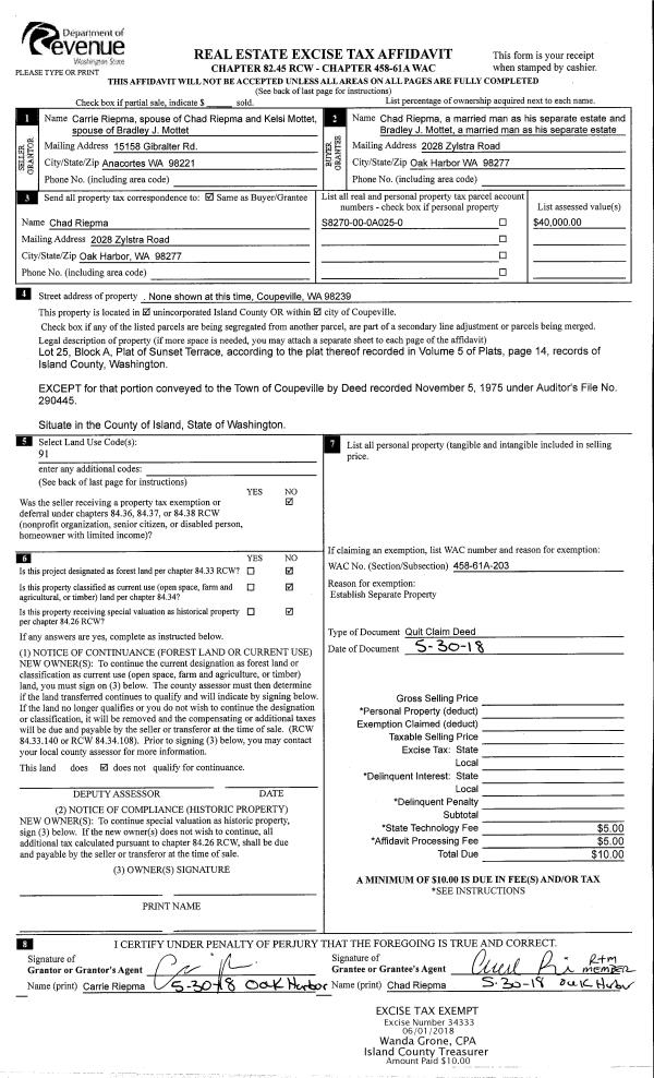
| 3 | 05/30/2018 | QCD | Quit Claim Deed | RIEPMA, CHAD | RIEPMA, CHAD | | | $0.00 | 34333 | 4445366 |
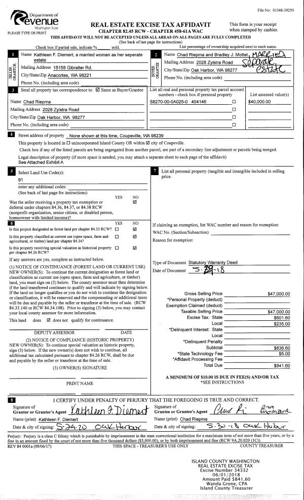
| 4 | 05/29/2018 | WD | Warranty Deed | DIEMERT, KATHLEEN F | RIEPMA, CHAD | | | $47,000.00 | 34332 | 4445365 |
| 5 | 03/15/2002 | SEG | DNU - Segregation | DIEMERT, KATHLEEN F | DIEMERT, KATHLEEN F | | | $0.00 | 69345 | 0 |
| 6 | 03/01/1996 | QCD | Quit Claim Deed | FARIS, MFG & | DIEMERT, KATHLEEN F | | | $0.00 | 60790 | 96004222 |
| 7 | 09/01/1990 | QCD | Quit Claim Deed | SIMMONDS, HELEN E | FARIS, MFG & | | | $0.00 | 5610 | 90018737 |
| 8 | 08/01/1984 | QCD | Quit Claim Deed | SIMMONDS, HELEN E | SIMMONDS, HELEN E | | | $0.00 | 42498 | 84002369 |
| 9 | 01/01/1900 | OTHER | Other - Misc. Documents | Unknown | SIMMONDS, HELEN E | | | $0.00 | 0 | 0 |
Payout Agreement
| No payout information available.. |