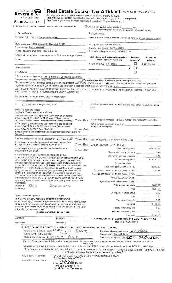
Property
Account |
| Property ID: | 404388 | Abbreviated Legal Description: | SUNSET TERR LOT 8 BLK D |
| Geographic ID: | S8270-00-0D008-0 | Agent Code: | |
| Type: | Real | | |
| Tax Area: | 300 - APPRAISER-Cpvl Schl Dist, in Cpvl | Land Use Code | 11 |
| Open Space: | N | DFL | N |
| Historic Property: | N | Remodel Property: | N |
| Multi-Family Redevelopment: | N | | |
| Township: | | Section: | |
| Range: | |
Location |
| Address: | 104 NE FARIS ST COUPEVILLE, WA 98239 | Mapsco: | |
| Neighborhood: | Cycle 2 | Map ID: | 177 |
| Neighborhood CD: | 2 |
Owner |
| Name: | LITTLE, SARAH K | Owner ID: | 299896 |
| Mailing Address: | 2027 N AVE ANACORTES, WA 98221 | % Ownership: | 100.0000000000% |
| | | Exemptions: | |
Taxes and Assessment Details
Values
| (+) Improvement Homesite Value: | + | $0 | |
| (+) Improvement Non-Homesite Value: | + | $268,206 | |
| (+) Land Homesite Value: | + | $0 | |
| (+) Land Non-Homesite Value: | + | $240,000 | |
| (+) Curr Use (HS): | + | $0 | $0 |
| (+) Curr Use (NHS): | + | $0 | $0 |
| | | -------------------------- | |
| (=) Market Value: | = | $508,206 | |
| (–) Productivity Loss: | – | $0 | |
| | | -------------------------- | |
| (=) Subtotal: | = | $508,206 | |
| (+) Senior Appraised Value: | + | $0 | |
| (+) Non-Senior Appraised Value: | + | $508,206 | |
| | | -------------------------- | |
| (=) Total Appraised Value: | = | $508,206 | |
| (–) Senior Exemption Loss: | – | $0 | |
| (–) Exemption Loss: | – | $0 | |
| | | -------------------------- | |
| (=) Taxable Value: | = | $508,206 | |
Taxing Jurisdiction
| Owner: | LITTLE, SARAH K | | |
| % Ownership: | 100.0000000000% | | |
| Total Value: | $508,206 | | |
| Tax Area: | 300 - APPRAISER-Cpvl Schl Dist, in Cpvl |
| CF | Conservation Futures | 0.0313996660 | $508,206 | $508,206 | $15.96 | | |
| CEM2 | Cemetery #2 | 0.0092609791 | $508,206 | $508,206 | $4.71 | | |
| COUP | City: Town of Coupeville | 0.8188663519 | $508,206 | $508,206 | $416.15 | | |
| FIRE5 | Fire & Rescue Dist #5 C Whidbey GEN | 1.1892169230 | $508,206 | $508,206 | $604.37 | | |
| FIRE5BOND | Fire & Rescue Dist #5 C Whidbey BOND | 0.1394359503 | $508,206 | $508,206 | $70.86 | | |
| HOBOND | Hospital BOND | 0.1893405597 | $508,206 | $508,206 | $96.22 | | |
| HOGEN | Hospital GEN | 0.3848777722 | $508,206 | $508,206 | $195.60 | | |
| CE | County Current Expense | 0.3674210519 | $508,206 | $508,206 | $186.73 | | |
| ISLANDEMS | Hospital GEN (EMS) | 0.4952018576 | $508,206 | $508,206 | $251.66 | | |
| LIB | Library Sno-Isle GEN | 0.3039084203 | $508,206 | $508,206 | $154.45 | | |
| LIBCAP | Library Sno-Isle BOND (Cap Fac Imp Area) | 0.0528562629 | $508,206 | $508,206 | $26.86 | | |
| POCOUP | Port of Coupeville GEN | 0.1065226063 | $508,206 | $508,206 | $54.14 | | |
| POCOUPIDD | Port of Coupeville IDD | 0.3353038577 | $508,206 | $508,206 | $170.40 | | |
| COUPSDTECH | School 204 CP (TECH) | 0.1215123397 | $508,206 | $508,206 | $61.75 | | |
| SCH204MO | School 204 Enrichment | 0.6416662518 | $508,206 | $508,206 | $326.10 | | |
| ST | State School | 1.4761226122 | $508,206 | $508,206 | $750.17 | | |
| ST2 | State School Part 2 | 0.7953803475 | $508,206 | $508,206 | $404.22 | | |
| | Total Tax Rate: | 7.4582938101 | | | | | |
| | | | | Taxes w/Current Exemptions: | $3,790.35 | | |
| | | | | Taxes w/o Exemptions: | $3,790.35 | | |
Improvement / Building
| Improvement #1: | RESIDENTIAL | State Code: | Y | 2100.0 sqft | Value: | $268,206 |
| Bathrooms: | 2.5 | Bedrooms: | 4 | | Ceiling: | DRY WALL SPRAYED | Exterior Wall/Cover: | CEMENT FIBER | | Floor Covering: | CARPET/VINYL 80-20 | Floor Structure: | WOOD W/SUBFLOOR | | Foundation: | CONCRETE | Heating: | BASEBOARD ELECTRIC | | Interior Finish: | DRYWALL PAINT | Plumbing Fixture Cnt: | 12 | | Roof Slope: | 4" IN 12" | Roof Structure/Cover: | CJ ASPHALT |
|
| | Type | Description | Class CD | Sub Class CD | Year Built | Area |
| | BAS | BASE/MAIN FLOOR | 3 | 0 | 1978 | 2100.0 |
| | OP3 | OPEN PORCH W/ROOF | 3 | 0 | 1978 | 80.0 |
| | OP3 | OPEN PORCH W/ROOF | 3 | 0 | 1978 | 60.0 |
| | AGR | ATTACHED GARAGE | 3 | 0 | 1978 | 440.0 |
| | OWP | OPEN WOOD PORCH W/STEPS | 3 | 0 | 1978 | 40.0 |
| | OWP | OPEN WOOD PORCH W/STEPS | 3 | 0 | 1978 | 489.6 |
Sketch
Property Image
Land
| 1 | 15 | SQ (12001-21780) | 0.2962 | 12902.47 | 0.00 | 0.00 | 1.00 | $240,000 | $0 |
Roll Value History
| 2026 | N/A | N/A | N/A | N/A | N/A |
| 2025 | $268,206 | $240,000 | $0 | $508,206 | $508,206 |
| 2024 | $270,168 | $225,000 | $0 | $495,168 | $495,168 |
| 2023 | $274,013 | $210,000 | $0 | $484,013 | $484,013 |
| 2022 | $251,603 | $200,000 | $0 | $451,603 | $451,603 |
| 2021 | $221,815 | $150,000 | $0 | $371,815 | $371,815 |
| 2020 | $216,474 | $130,000 | $0 | $346,474 | $346,474 |
| 2019 | $163,236 | $170,000 | $0 | $333,236 | $333,236 |
| 2018 | $156,303 | $150,000 | $0 | $306,303 | $306,303 |
| 2017 | $157,428 | $130,000 | $0 | $287,428 | $287,428 |
| 2016 | $159,676 | $115,000 | $0 | $274,676 | $274,676 |
| 2015 | $161,924 | $90,000 | $0 | $251,924 | $251,924 |
| 2014 | $164,173 | $85,000 | $0 | $249,173 | $249,173 |
| 2013 | $166,422 | $85,000 | $0 | $251,422 | $251,422 |
| 2012 | $161,086 | $90,950 | $0 | $252,036 | $252,036 |
| 2011 | $163,276 | $107,000 | $0 | $270,276 | $270,276 |
| 2010 | $172,133 | $107,000 | $0 | $279,133 | $279,133 |
| 2009 | $179,642 | $125,000 | $0 | $304,642 | $304,642 |
| 2008 | $181,970 | $125,000 | $0 | $306,970 | $306,970 |
| 2007 | $184,278 | $125,000 | $0 | $309,278 | $309,278 |
Deed and Sales History
| 1 | 06/18/2021 | QCD | Quit Claim Deed | RAY, WILLIAM GORDON | LITTLE, SARAH K | | | $0.00 | 48800 | 4522450 |
| 2 | 06/22/2021 | WD | Warranty Deed | FROST, MICHAEL G | LITTLE, SARAH K | | | $508,100.00 | 48799 | 4522449 |
| 3 | 06/01/1990 | WD | Warranty Deed | PRIESING, RICHARD B | FROST, MICHAEL G | | | $79,000.00 | 3482 | 90011301 |
| 4 | 10/01/1978 | OTHER | Other - Misc. Documents | Unknown | PRIESING, RICHARD B | | | $43,500.00 | 85085 | 341355 |
Payout Agreement
| No payout information available.. |