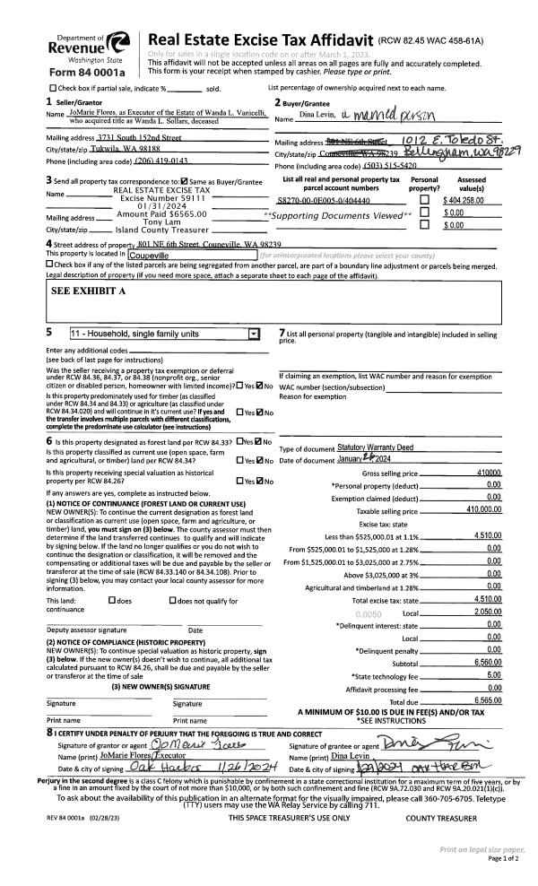
Property
Account |
| Property ID: | 404440 | Abbreviated Legal Description: | SUNSET TERR LOT 5 BLK E & NWLY 5'LOT 6 BLK E |
| Geographic ID: | S8270-00-0E005-0 | Agent Code: | |
| Type: | Real | | |
| Tax Area: | 300 - APPRAISER-Cpvl Schl Dist, in Cpvl | Land Use Code | 11 |
| Open Space: | N | DFL | N |
| Historic Property: | N | Remodel Property: | N |
| Multi-Family Redevelopment: | N | | |
| Township: | | Section: | |
| Range: | |
Location |
| Address: | 801 NE 6TH ST COUPEVILLE, WA 98239 | Mapsco: | |
| Neighborhood: | Cycle 2 | Map ID: | 177 |
| Neighborhood CD: | 2 |
Owner |
| Name: | LEVIN, DINA | Owner ID: | 311313 |
| Mailing Address: | 1012 E TOLEDO ST BELLINGHAM, WA 98229 | % Ownership: | 100.0000000000% |
| | | Exemptions: | |
Taxes and Assessment Details
Values
| (+) Improvement Homesite Value: | + | $0 | |
| (+) Improvement Non-Homesite Value: | + | $632,315 | |
| (+) Land Homesite Value: | + | $0 | |
| (+) Land Non-Homesite Value: | + | $240,000 | |
| (+) Curr Use (HS): | + | $0 | $0 |
| (+) Curr Use (NHS): | + | $0 | $0 |
| | | -------------------------- | |
| (=) Market Value: | = | $872,315 | |
| (–) Productivity Loss: | – | $0 | |
| | | -------------------------- | |
| (=) Subtotal: | = | $872,315 | |
| (+) Senior Appraised Value: | + | $0 | |
| (+) Non-Senior Appraised Value: | + | $872,315 | |
| | | -------------------------- | |
| (=) Total Appraised Value: | = | $872,315 | |
| (–) Senior Exemption Loss: | – | $0 | |
| (–) Exemption Loss: | – | $0 | |
| | | -------------------------- | |
| (=) Taxable Value: | = | $872,315 | |
Taxing Jurisdiction
| Owner: | LEVIN, DINA | | |
| % Ownership: | 100.0000000000% | | |
| Total Value: | $872,315 | | |
| Tax Area: | 300 - APPRAISER-Cpvl Schl Dist, in Cpvl |
| CF | Conservation Futures | 0.0313996660 | $872,315 | $872,315 | $27.39 | | |
| CEM2 | Cemetery #2 | 0.0092609791 | $872,315 | $872,315 | $8.08 | | |
| COUP | City: Town of Coupeville | 0.8188663519 | $872,315 | $872,315 | $714.31 | | |
| FIRE5 | Fire & Rescue Dist #5 C Whidbey GEN | 1.1892169230 | $872,315 | $872,315 | $1,037.37 | | |
| FIRE5BOND | Fire & Rescue Dist #5 C Whidbey BOND | 0.1394359503 | $872,315 | $872,315 | $121.63 | | |
| HOBOND | Hospital BOND | 0.1893405597 | $872,315 | $872,315 | $165.16 | | |
| HOGEN | Hospital GEN | 0.3848777722 | $872,315 | $872,315 | $335.73 | | |
| CE | County Current Expense | 0.3674210519 | $872,315 | $872,315 | $320.51 | | |
| ISLANDEMS | Hospital GEN (EMS) | 0.4952018576 | $872,315 | $872,315 | $431.97 | | |
| LIB | Library Sno-Isle GEN | 0.3039084203 | $872,315 | $872,315 | $265.10 | | |
| LIBCAP | Library Sno-Isle BOND (Cap Fac Imp Area) | 0.0528562629 | $872,315 | $872,315 | $46.11 | | |
| POCOUP | Port of Coupeville GEN | 0.1065226063 | $872,315 | $872,315 | $92.92 | | |
| POCOUPIDD | Port of Coupeville IDD | 0.3353038577 | $872,315 | $872,315 | $292.49 | | |
| COUPSDTECH | School 204 CP (TECH) | 0.1215123397 | $872,315 | $872,315 | $106.00 | | |
| SCH204MO | School 204 Enrichment | 0.6416662518 | $872,315 | $872,315 | $559.74 | | |
| ST | State School | 1.4761226122 | $872,315 | $872,315 | $1,287.64 | | |
| ST2 | State School Part 2 | 0.7953803475 | $872,315 | $872,315 | $693.82 | | |
| | Total Tax Rate: | 7.4582938101 | | | | | |
| | | | | Taxes w/Current Exemptions: | $6,505.97 | | |
| | | | | Taxes w/o Exemptions: | $6,505.97 | | |
Improvement / Building
| Improvement #1: | RESIDENTIAL | State Code: | Y | 2325.2 sqft | Value: | $450,360 |
| Bathrooms: | 3.5 | Bedrooms: | 3 | | Ceiling: | DRYWALL PAINTED | Cooling: | HEAT PUMP/CONV/V | | Exterior Wall/Cover: | CEMENT FIBER | Floor Covering: | LAMINATE/LVP | | Floor Structure: | WOOD W/SUBFLOOR | Foundation: | CONCRETE | | Interior Finish: | DRYWALL PAINT | Plumbing Fixture Cnt: | 18 | | Roof Slope: | 4" IN 12" | Roof Structure/Cover: | CJ ASPHALT |
|
| | Type | Description | Class CD | Sub Class CD | Year Built | Area |
| | BAS | BASE/MAIN FLOOR | 3 | 0 | 1958 | 2325.2 |
| | OWP | OPEN WOOD PORCH W/STEPS | 3 | 0 | 1958 | 460.0 |
| | OP3 | OPEN PORCH W/ROOF | 3 | 0 | 1958 | 410.0 |
| Improvement #2: | RESIDENTIAL | State Code: | Y | 656.0 sqft | Value: | $181,955 |
| Bathrooms: | 1 | Bedrooms: | 1 | | Ceiling: | DRYWALL PAINTED | Exterior Wall/Cover: | CEMENT FIBER | | Floor Covering: | LAMINATE/LVP | Floor Structure: | WOOD W/SUBFLOOR | | Foundation: | CONCRETE | Heating: | HEAT PUMP | | Interior Finish: | DRYWALL PAINT | Plumbing Fixture Cnt: | 6 | | Roof Slope: | 4" IN 12" | Roof Structure/Cover: | CJ ASPHALT |
|
| | Type | Description | Class CD | Sub Class CD | Year Built | Area |
| | BAS | BASE/MAIN FLOOR | 3 | 0 | 2025 | 656.0 |
| | BIG | BUILT IN GARAGE | 3 | 0 | 2025 | 656.0 |
Sketch
Property Image
Land
| 1 | 14 | SQ (08001-12000) | 0.2800 | 12196.80 | 0.00 | 0.00 | 1.00 | $240,000 | $0 |
Roll Value History
| 2026 | N/A | N/A | N/A | N/A | N/A |
| 2025 | $632,315 | $240,000 | $0 | $872,315 | $872,315 |
| 2024 | $175,002 | $225,000 | $0 | $400,002 | $400,002 |
| 2023 | $194,258 | $210,000 | $0 | $404,258 | $404,258 |
| 2022 | $178,726 | $200,000 | $0 | $378,726 | $378,726 |
| 2021 | $157,867 | $150,000 | $0 | $307,867 | $307,867 |
| 2020 | $154,130 | $130,000 | $0 | $284,130 | $284,130 |
| 2019 | $110,174 | $170,000 | $0 | $280,174 | $280,174 |
| 2018 | $89,019 | $150,000 | $0 | $239,019 | $239,019 |
| 2017 | $89,867 | $125,000 | $0 | $214,867 | $214,867 |
| 2016 | $91,562 | $115,000 | $0 | $206,562 | $206,562 |
| 2015 | $93,258 | $90,000 | $0 | $183,258 | $183,258 |
| 2014 | $94,954 | $85,000 | $0 | $179,954 | $179,954 |
| 2013 | $96,649 | $85,000 | $0 | $181,649 | $181,649 |
| 2012 | $99,280 | $90,950 | $0 | $190,230 | $190,230 |
| 2011 | $100,977 | $107,000 | $0 | $207,977 | $207,977 |
| 2010 | $113,070 | $107,000 | $0 | $220,070 | $220,070 |
| 2009 | $118,288 | $125,000 | $0 | $243,288 | $243,288 |
| 2008 | $120,119 | $133,000 | $0 | $253,119 | $253,119 |
| 2007 | $121,931 | $133,000 | $0 | $254,931 | $254,931 |
Deed and Sales History
| 1 | 01/26/2024 | WD | Warranty Deed | VANICELLI, WANDA L | LEVIN, DINA | | | $410,000.00 | 59111 | 4569002 |
| 2 | 05/12/2016 | MARRCERT | DNU - Marriage Certificate | SOLLARS, WANDA L | VANICELLI, WANDA L | | | | 87370 | |
| 3 | 05/12/2016 | CPADC | Comm Prop Agmnt & Death Cert | SOLLARS, FRANK H | SOLLARS, WANDA L | | | | 87371 | |
| 4 | 05/01/1987 | WD | Warranty Deed | VESSER, THAD | SOLLARS, FRANK H | | | $64,444.00 | 71320 | 87006473 |
| 5 | 12/01/1985 | WD | Warranty Deed | PRITCHARD, WILLIAM H | VESSER, THAD | | | $55,000.00 | 53550 | 85014056 |
| 6 | 01/01/1900 | OTHER | Other - Misc. Documents | Unknown | PRITCHARD, WILLIAM H | | | $0.00 | 51807 | 0 |
Payout Agreement
| No payout information available.. |