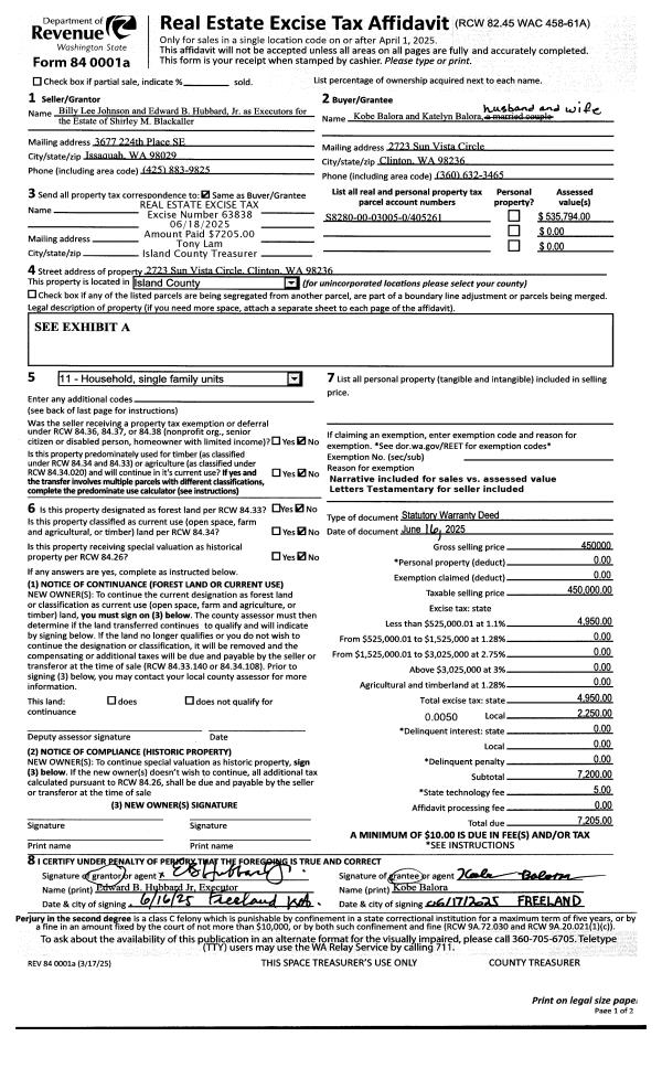
Property
Account |
| Property ID: | 405261 | Abbreviated Legal Description: | SUN VISTA LOT 5 BLK 3 |
| Geographic ID: | S8280-00-03005-0 | Agent Code: | |
| Type: | Real | | |
| Tax Area: | 710 - APPRAISER-S Whid Schl Dist, outside Langley, improved & 1 acre or less | Land Use Code | 11 |
| Open Space: | N | DFL | N |
| Historic Property: | N | Remodel Property: | N |
| Multi-Family Redevelopment: | N | | |
| Township: | | Section: | |
| Range: | |
Location |
| Address: | 2723 SUN VISTA CIR CLINTON, WA 98236 | Mapsco: | |
| Neighborhood: | Cycle 4 | Map ID: | 790 |
| Neighborhood CD: | 4 |
Owner |
| Name: | BALORA, KOBE | Owner ID: | 316987 |
| Mailing Address: | KATELYN BALORA 2723 SUN VISTA CIR CLINTON, WA 98236 | % Ownership: | 100.0000000000% |
| | | Exemptions: | |
Taxes and Assessment Details
Values
| (+) Improvement Homesite Value: | + | $0 | |
| (+) Improvement Non-Homesite Value: | + | $232,619 | |
| (+) Land Homesite Value: | + | $0 | |
| (+) Land Non-Homesite Value: | + | $300,000 | |
| (+) Curr Use (HS): | + | $0 | $0 |
| (+) Curr Use (NHS): | + | $0 | $0 |
| | | -------------------------- | |
| (=) Market Value: | = | $532,619 | |
| (–) Productivity Loss: | – | $0 | |
| | | -------------------------- | |
| (=) Subtotal: | = | $532,619 | |
| (+) Senior Appraised Value: | + | $0 | |
| (+) Non-Senior Appraised Value: | + | $532,619 | |
| | | -------------------------- | |
| (=) Total Appraised Value: | = | $532,619 | |
| (–) Senior Exemption Loss: | – | $0 | |
| (–) Exemption Loss: | – | $0 | |
| | | -------------------------- | |
| (=) Taxable Value: | = | $532,619 | |
Taxing Jurisdiction
| Owner: | BALORA, KOBE | | |
| % Ownership: | 100.0000000000% | | |
| Total Value: | $532,619 | | |
| Tax Area: | 710 - APPRAISER-S Whid Schl Dist, outside Langley, improved & 1 acre or less |
| CF | Conservation Futures | 0.0313996660 | $532,619 | $532,619 | $16.72 | | |
| FIRE3 | Fire & Rescue Dist #3 S Whidbey GEN | 1.2130821753 | $532,619 | $532,619 | $646.11 | | |
| HOBOND | Hospital BOND | 0.1893405597 | $532,619 | $532,619 | $100.85 | | |
| HOGEN | Hospital GEN | 0.3848777722 | $532,619 | $532,619 | $204.99 | | |
| CE | County Current Expense | 0.3674210519 | $532,619 | $532,619 | $195.70 | | |
| CR | County Roads | 0.4614296361 | $532,619 | $532,619 | $245.77 | | |
| ISLANDEMS | Hospital GEN (EMS) | 0.4952018576 | $532,619 | $532,619 | $263.75 | | |
| LIB | Library Sno-Isle GEN | 0.3039084203 | $532,619 | $532,619 | $161.87 | | |
| PORTWHID | Port of S Whidbey GEN | 0.1086004714 | $532,619 | $532,619 | $57.84 | | |
| SCH206BOND | School 206 BOND | 0.5960237832 | $532,619 | $532,619 | $317.45 | | |
| SCH206CAP | School 206 CP | 0.3066144020 | $532,619 | $532,619 | $163.31 | | |
| SCH206MO | School 206 Enrichment | 0.4808755445 | $532,619 | $532,619 | $256.12 | | |
| ST | State School | 1.4761226122 | $532,619 | $532,619 | $786.21 | | |
| ST2 | State School Part 2 | 0.7953803475 | $532,619 | $532,619 | $423.63 | | |
| SWHIDPRBD | P & R S Whidbey BOND | 0.0144185398 | $532,619 | $532,619 | $7.68 | | |
| SWHIDPRBD3 | P & R S Whidbey BOND3 | 0.1483535547 | $532,619 | $532,619 | $79.02 | | |
| SWHIDPRMT | P & R S Whidbey GEN | 0.4600000000 | $532,619 | $532,619 | $245.00 | | |
| | Total Tax Rate: | 7.8330503944 | | | | | |
| | | | | Taxes w/Current Exemptions: | $4,172.02 | | |
| | | | | Taxes w/o Exemptions: | $4,172.02 | | |
Improvement / Building
| Improvement #1: | RESIDENTIAL | State Code: | Y | 1422.0 sqft | Value: | $232,619 |
| Bathrooms: | 2 | Bedrooms: | 3 | | Ceiling: | DRYWALL PAINTED | Exterior Wall/Cover: | PLY/HARDBOARD T-111 | | Floor Covering: | CARPET/VINYL 80-20 | Floor Structure: | WOOD W/SUBFLOOR | | Foundation: | CONCRETE | Heating: | FHA GAS | | Interior Finish: | DRYWALL PAINT | Plumbing Fixture Cnt: | 10 | | Roof Slope: | 4" IN 12" | Roof Structure/Cover: | CJ ASPHALT |
|
| | Type | Description | Class CD | Sub Class CD | Year Built | Area |
| | BAS | BASE/MAIN FLOOR | 3 | 0 | 1995 | 1422.0 |
| | AGR | ATTACHED GARAGE | 3 | 0 | 1995 | 416.0 |
| | OWP | OPEN WOOD PORCH W/STEPS | 3 | 0 | 1995 | 140.0 |
| | OWC | OPEN WOOD PORCH W/STEPS/ROOF/C | 3 | 0 | 1995 | 30.0 |
Sketch
Property Image
Land
| 1 | 14 | SQ (08001-12000) | 0.0000 | 0.00 | 0.00 | 0.00 | 1.00 | $300,000 | $0 |
Roll Value History
| 2026 | N/A | N/A | N/A | N/A | N/A |
| 2025 | $232,619 | $300,000 | $0 | $532,619 | $532,619 |
| 2024 | $235,794 | $300,000 | $0 | $535,794 | $535,794 |
| 2023 | $238,970 | $280,000 | $0 | $518,970 | $518,970 |
| 2022 | $219,277 | $240,000 | $0 | $459,277 | $459,277 |
| 2021 | $193,165 | $140,000 | $0 | $333,165 | $333,165 |
| 2020 | $188,099 | $140,000 | $0 | $328,099 | $328,099 |
| 2019 | $135,294 | $180,000 | $0 | $315,294 | $315,294 |
| 2018 | $135,721 | $140,000 | $0 | $275,721 | $275,721 |
| 2017 | $136,574 | $110,000 | $0 | $246,574 | $246,574 |
| 2016 | $138,282 | $100,000 | $0 | $238,282 | $238,282 |
| 2015 | $139,989 | $100,000 | $0 | $239,989 | $239,989 |
| 2014 | $139,377 | $97,750 | $0 | $237,127 | $237,127 |
| 2013 | $141,120 | $97,750 | $0 | $238,870 | $238,870 |
| 2012 | $142,862 | $97,750 | $0 | $240,612 | $240,612 |
| 2011 | $144,605 | $115,000 | $0 | $259,605 | $259,605 |
| 2010 | $150,651 | $115,000 | $0 | $265,651 | $265,651 |
| 2009 | $157,169 | $125,000 | $0 | $282,169 | $282,169 |
| 2008 | $159,088 | $139,500 | $0 | $298,588 | $298,588 |
| 2007 | $161,007 | $106,750 | $0 | $267,757 | $267,757 |
Deed and Sales History
| 1 | 06/16/2025 | WD | Warranty Deed | BLACKALLER, SHIRLEY M | BALORA, KOBE | | | $450,000.00 | 63838 | 4587121 |
| 2 | 02/01/1997 | WD | Warranty Deed | BLACKALLER, SHIRLEY M | BLACKALLER, SHIRLEY M | | | $132,000.00 | 70519 | 97002339 |
| 3 | 02/01/1997 | ESTSEPPROP | Establish Separate Property | JONES, BRUCE M | BLACKALLER, SHIRLEY M | | | $0.00 | 70520 | 97002340 |
| 4 | 03/01/1995 | WD | Warranty Deed | BARBER, DONALD R | JONES, BRUCE M | | | $28,500.00 | 50976 | 95004701 |
| 5 | 01/01/1900 | OTHER | Other - Misc. Documents | Unknown | BARBER, DONALD R | | | $0.00 | 0 | 0 |
Payout Agreement
| No payout information available.. |