Property
Account |
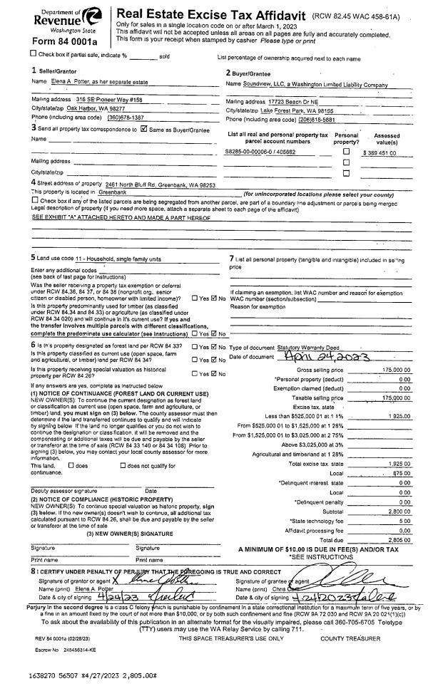
| Property ID: | 405662 | Abbreviated Legal Description: | SURF PARADISE LOT 6 |
| Geographic ID: | S8285-00-00006-0 | Agent Code: | |
| Type: | Real | | |
| Tax Area: | 310 - APPRAISER-Cpvl Schl Dist, outside Cpvl, improved & 1 acre or less | Land Use Code | 11 |
| Open Space: | N | DFL | N |
| Historic Property: | N | Remodel Property: | N |
| Multi-Family Redevelopment: | N | | |
| Township: | | Section: | |
| Range: | |
Location |
| Address: | 2461 NORTH BLUFF RD GREENBANK, WA 98253 | Mapsco: | |
| Neighborhood: | Cycle 3 | Map ID: | 354 |
| Neighborhood CD: | 3 |
Owner |
| Name: | MANGUARACINA, BERNARD | Owner ID: | 310828 |
| Mailing Address: | PATRICIA MANGIARACINA 1303 EAST ST HONESDALE, PA 18431 | % Ownership: | 100.0000000000% |
| | | Exemptions: | |
Taxes and Assessment Details
Values
| (+) Improvement Homesite Value: | + | $0 | |
| (+) Improvement Non-Homesite Value: | + | $156,902 | |
| (+) Land Homesite Value: | + | $0 | |
| (+) Land Non-Homesite Value: | + | $400,000 | |
| (+) Curr Use (HS): | + | $0 | $0 |
| (+) Curr Use (NHS): | + | $0 | $0 |
| | | -------------------------- | |
| (=) Market Value: | = | $556,902 | |
| (–) Productivity Loss: | – | $0 | |
| | | -------------------------- | |
| (=) Subtotal: | = | $556,902 | |
| (+) Senior Appraised Value: | + | $0 | |
| (+) Non-Senior Appraised Value: | + | $556,902 | |
| | | -------------------------- | |
| (=) Total Appraised Value: | = | $556,902 | |
| (–) Senior Exemption Loss: | – | $0 | |
| (–) Exemption Loss: | – | $0 | |
| | | -------------------------- | |
| (=) Taxable Value: | = | $556,902 | |
Taxing Jurisdiction
| Owner: | MANGUARACINA, BERNARD | | |
| % Ownership: | 100.0000000000% | | |
| Total Value: | $556,902 | | |
| Tax Area: | 310 - APPRAISER-Cpvl Schl Dist, outside Cpvl, improved & 1 acre or less |
| CF | Conservation Futures | 0.0313996660 | $556,902 | $556,902 | $17.49 | | |
| CEM2 | Cemetery #2 | 0.0092609791 | $556,902 | $556,902 | $5.16 | | |
| FIRE5 | Fire & Rescue Dist #5 C Whidbey GEN | 1.1892169230 | $556,902 | $556,902 | $662.28 | | |
| FIRE5BOND | Fire & Rescue Dist #5 C Whidbey BOND | 0.1394359503 | $556,902 | $556,902 | $77.65 | | |
| HOBOND | Hospital BOND | 0.1893405597 | $556,902 | $556,902 | $105.44 | | |
| HOGEN | Hospital GEN | 0.3848777722 | $556,902 | $556,902 | $214.34 | | |
| CE | County Current Expense | 0.3674210519 | $556,902 | $556,902 | $204.62 | | |
| CR | County Roads | 0.4614296361 | $556,902 | $556,902 | $256.97 | | |
| ISLANDEMS | Hospital GEN (EMS) | 0.4952018576 | $556,902 | $556,902 | $275.78 | | |
| LIB | Library Sno-Isle GEN | 0.3039084203 | $556,902 | $556,902 | $169.25 | | |
| LIBCAP | Library Sno-Isle BOND (Cap Fac Imp Area) | 0.0528562629 | $556,902 | $556,902 | $29.44 | | |
| POCOUP | Port of Coupeville GEN | 0.1065226063 | $556,902 | $556,902 | $59.32 | | |
| POCOUPIDD | Port of Coupeville IDD | 0.3353038577 | $556,902 | $556,902 | $186.73 | | |
| COUPSDTECH | School 204 CP (TECH) | 0.1215123397 | $556,902 | $556,902 | $67.67 | | |
| SCH204MO | School 204 Enrichment | 0.6416662518 | $556,902 | $556,902 | $357.35 | | |
| ST | State School | 1.4761226122 | $556,902 | $556,902 | $822.06 | | |
| ST2 | State School Part 2 | 0.7953803475 | $556,902 | $556,902 | $442.95 | | |
| | Total Tax Rate: | 7.1008570943 | | | | | |
| | | | | Taxes w/Current Exemptions: | $3,954.50 | | |
| | | | | Taxes w/o Exemptions: | $3,954.50 | | |
Improvement / Building
| Improvement #1: | MANUFACTURED HOME | State Code: | Y | 1705.8 sqft | Value: | $156,902 |
| Bathrooms: | 0 | Bedrooms: | 0 | | Ceiling: | PLASTER PAINTED | Cooling: | EVAP NO DUCT | | Exterior Wall/Cover: | VINYL | Floor Covering: | CARPET 100% | | Floor Structure: | SLAB ON GRADE | Foundation: | SLAB | | Heating: | FHA ELECTRIC | Interior Finish: | PLASTER | | Plumbing Fixture Cnt: | 1 | Roof Slope: | FLAT | | Roof Structure/Cover: | CJ ALUMINIUM HEAVY |   |   |
|
| | Type | Description | Class CD | Sub Class CD | Year Built | Area |
| | BAS | BASE/MAIN FLOOR | 5 | 0 | 1978 | 1705.8 |
| | OWP | OPEN WOOD PORCH W/STEPS | 5 | 0 | 1978 | 608.1 |
Sketch
Property Image
Land
| 1 | HB | HIGH BLUFF | 0.0000 | 0.00 | 65.00 | 0.00 | 1.00 | $400,000 | $0 |
Roll Value History
| 2026 | N/A | N/A | N/A | N/A | N/A |
| 2025 | $156,902 | $400,000 | $0 | $556,902 | $556,902 |
| 2024 | $161,086 | $400,000 | $0 | $561,086 | $561,086 |
| 2023 | $0 | $375,000 | $0 | $375,000 | $375,000 |
| 2022 | $64,451 | $325,000 | $0 | $389,451 | $389,451 |
| 2021 | $58,597 | $325,000 | $0 | $383,597 | $383,597 |
| 2020 | $59,352 | $300,000 | $0 | $359,352 | $359,352 |
| 2019 | $35,417 | $350,000 | $0 | $385,417 | $385,417 |
| 2018 | $37,322 | $350,000 | $0 | $387,322 | $387,322 |
| 2017 | $40,169 | $275,000 | $0 | $315,169 | $315,169 |
| 2016 | $42,074 | $275,000 | $0 | $317,074 | $317,074 |
| 2015 | $43,978 | $250,000 | $0 | $293,978 | $293,978 |
| 2014 | $45,883 | $250,000 | $0 | $295,883 | $295,883 |
| 2013 | $52,493 | $250,000 | $0 | $302,493 | $302,493 |
| 2012 | $54,398 | $171,377 | $0 | $225,775 | $225,775 |
| 2011 | $57,254 | $171,377 | $0 | $228,631 | $228,631 |
| 2010 | $68,959 | $171,377 | $0 | $240,336 | $240,336 |
| 2009 | $71,938 | $253,564 | $0 | $325,502 | $325,502 |
| 2008 | $74,226 | $253,828 | $0 | $328,054 | $328,054 |
| 2007 | $72,444 | $150,032 | $0 | $222,476 | $222,476 |
Deed and Sales History
| 1 | 12/04/2023 | WD | Warranty Deed | SOUNDVIEW, LLC | MANGUARACINA, BERNARD | | | $475,000.00 | 58664 | 4567254 |
| 2 | 04/24/2023 | WD | Warranty Deed | POTTER, ELENA A | SOUNDVIEW, LLC | | | $175,000.00 | 56507 | 4559235 |
| 3 | 05/18/2001 | WD | Warranty Deed | ANDERSON, EDWARD G | POTTER, ELENA A | | | $169,100.00 | 11832 | 20033073 |
| 4 | 08/01/1984 | OTHER | Other - Misc. Documents | DALTHORP, GERTRUDE | ANDERSON, EDWARD G | | | $33,000.00 | 42335 | 0 |
| 5 | 08/01/1984 | WD | Warranty Deed | ANDERSON, EDWARD G | ANDERSON, EDWARD G | | | $23,000.00 | 42302 | 84001617 |
| 6 | 10/01/1983 | OTHER | Other - Misc. Documents | DALTHORP, CLARENCE E | DALTHORP, GERTRUDE | | | $0.00 | 32940 | 0 |
| 7 | 10/01/1983 | PRD | Personal Representatives Deed | DALTHORP, GERTRUDE | DALTHORP, GERTRUDE | | | $0.00 | 32968 | 416017 |
| 8 | 01/01/1900 | OTHER | Other - Misc. Documents | Unknown | DALTHORP, CLARENCE E | | | $44,898.00 | 0 | 0 |
| 9 | 01/01/1900 | OTHER | Other - Misc. Documents | DALTHORP, CLARENCE E | DALTHORP, CLARENCE E | | | $0.00 | 0 | 0 |
Payout Agreement
| No payout information available.. |