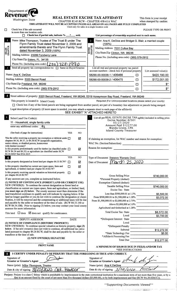
Property
Account |
| Property ID: | 406466 | Abbreviated Legal Description: | SYNDICATE ADD LOT 38 EX W100' SUBJ TO EZ TGW UNDIV 1/2 INT IN WELL |
| Geographic ID: | S8290-00-00038-1 | Agent Code: | |
| Type: | Real | | |
| Tax Area: | 760 - APPRAISER-S Whid Schl Dist, Special District, improved & less than 1 acre | Land Use Code | 11 |
| Open Space: | N | DFL | N |
| Historic Property: | N | Remodel Property: | N |
| Multi-Family Redevelopment: | N | | |
| Township: | | Section: | |
| Range: | |
Location |
| Address: | 5320 BERCOT RD FREELAND, WA 98249 | Mapsco: | |
| Neighborhood: | Cycle 3 | Map ID: | 311 |
| Neighborhood CD: | 3 |
Owner |
| Name: | DEGIVE, ANA K | Owner ID: | 293846 |
| Mailing Address: | BRIDGET G BLAIR 5320 BERCOT RD FREELAND, WA 98249 | % Ownership: | 100.0000000000% |
| | | Exemptions: | |
Taxes and Assessment Details
Values
| (+) Improvement Homesite Value: | + | N/A | |
| (+) Improvement Non-Homesite Value: | + | N/A | |
| (+) Land Homesite Value: | + | N/A | |
| (+) Land Non-Homesite Value: | + | N/A | Ag / Timber Use Value |
| (+) Curr Use (HS): | + | N/A | N/A |
| (+) Curr Use (NHS): | + | N/A | N/A |
| | | -------------------------- | |
| (=) Market Value: | = | N/A | |
| (–) Productivity Loss: | – | N/A | |
| | | -------------------------- | |
| (=) Subtotal: | = | N/A | |
| (+) Senior Appraised Value: | + | N/A | |
| (+) Non-Senior Appraised Value: | + | N/A | |
| | | -------------------------- | |
| (=) Total Appraised Value: | = | N/A | |
| (–) Senior Exemption Loss: | – | N/A | |
| (–) Exemption Loss: | – | N/A | |
| | | -------------------------- | |
| (=) Taxable Value: | = | N/A | |
Taxing Jurisdiction
| Owner: | DEGIVE, ANA K | | |
| % Ownership: | 100.0000000000% | | |
| Total Value: | N/A | | |
| Tax Area: | 760 - APPRAISER-S Whid Schl Dist, Special District, improved & less than 1 acre |
| CF | Conservation Futures | N/A | N/A | N/A | N/A | | |
| WCD | Whidbey Conservation District | N/A | N/A | N/A | N/A | | |
| FIRE3 | Fire & Rescue Dist #3 S Whidbey GEN | N/A | N/A | N/A | N/A | | |
| HOBOND | Hospital BOND | N/A | N/A | N/A | N/A | | |
| HOGEN | Hospital GEN | N/A | N/A | N/A | N/A | | |
| CE | County Current Expense | N/A | N/A | N/A | N/A | | |
| CR | County Roads | N/A | N/A | N/A | N/A | | |
| ISLANDEMS | Hospital GEN (EMS) | N/A | N/A | N/A | N/A | | |
| LIB | Library Sno-Isle GEN | N/A | N/A | N/A | N/A | | |
| PORTWHID | Port of S Whidbey GEN | N/A | N/A | N/A | N/A | | |
| SCH206CAP | School 206 CP | N/A | N/A | N/A | N/A | | |
| SCH206MO | School 206 Enrichment | N/A | N/A | N/A | N/A | | |
| ST | State School | N/A | N/A | N/A | N/A | | |
| ST2 | State School Part 2 | N/A | N/A | N/A | N/A | | |
| SWHIDPRBD | P & R S Whidbey BOND | N/A | N/A | N/A | N/A | | |
| SWHIDPRBD2 | P & R S Whidbey BOND2 | N/A | N/A | N/A | N/A | | |
| SWHIDPRMT | P & R S Whidbey GEN | N/A | N/A | N/A | N/A | | |
| | Total Tax Rate: | N/A | | | | | |
| | | | | Taxes w/Current Exemptions: | N/A | | |
| | | | | Taxes w/o Exemptions: | N/A | | |
Improvement / Building
| Improvement #1: | RESIDENTIAL | State Code: | Y | 2030.0 sqft | Value: | N/A |
| Bathrooms: | 2 | Bedrooms: | 3 | | Ceiling: | DRYWALL PAINTED | Exterior Wall/Cover: | SHINGLE | | Floor Covering: | HARDWOOD/CARP 80-20 | Floor Structure: | WOOD W/SUBFLOOR | | Foundation: | CONCRETE | Heating: | WALL HEAT ELECTRIC | | Interior Finish: | DRYWALL PAINT | Plumbing Fixture Cnt: | 11 | | Roof Slope: | 4" IN 12" | Roof Structure/Cover: | CJ ASPHALT |
|
| | Type | Description | Class CD | Sub Class CD | Year Built | Area |
| | BAS | BASE/MAIN FLOOR | 3 | 0 | 1949 | 2030.0 |
| | DGR | DETACHED GARAGE | 3 | 0 | 1949 | 540.0 |
| | OWR | OPEN WOOD PORCH W/STEPS/ROOF | 3 | 0 | 1949 | 260.0 |
| | UTY | STORAGE/UTILITY | 3 | 0 | 1949 | 144.0 |
| | ENP | ENCLOSED PORCH | 3 | 0 | 1949 | 180.0 |
Sketch
Property Image
Land
| 1 | 16 | AC (00.51-01.00) | 0.0000 | 0.00 | 0.00 | 0.00 | 1.00 | N/A | N/A |
Roll Value History
| 2026 | N/A | N/A | N/A | N/A | N/A |
| 2025 | $373,744 | $250,000 | $0 | $623,744 | $623,744 |
| 2024 | $378,402 | $230,000 | $0 | $608,402 | $608,402 |
| 2023 | $383,059 | $230,000 | $0 | $613,059 | $613,059 |
| 2022 | $351,083 | $240,000 | $0 | $591,083 | $591,083 |
| 2021 | $308,955 | $190,000 | $0 | $498,955 | $498,955 |
| 2020 | $301,286 | $170,000 | $0 | $471,286 | $471,286 |
| 2019 | $210,190 | $210,000 | $0 | $420,190 | $420,190 |
| 2018 | $210,836 | $180,000 | $0 | $390,836 | $390,836 |
| 2017 | $210,572 | $150,000 | $0 | $360,572 | $360,572 |
| 2016 | $213,141 | $150,000 | $0 | $363,141 | $363,141 |
| 2015 | $215,709 | $150,000 | $0 | $365,709 | $365,709 |
| 2014 | $218,278 | $150,000 | $0 | $368,278 | $368,278 |
| 2013 | $213,332 | $100,000 | $0 | $313,332 | $313,332 |
| 2012 | $206,935 | $119,000 | $0 | $325,935 | $325,935 |
| 2011 | $209,735 | $140,000 | $0 | $349,735 | $349,735 |
| 2010 | $221,830 | $140,000 | $0 | $361,830 | $361,830 |
| 2009 | $228,948 | $180,000 | $0 | $408,948 | $408,948 |
| 2008 | $232,352 | $180,000 | $0 | $412,352 | $412,352 |
| 2007 | $236,134 | $180,000 | $0 | $416,134 | $416,134 |
Deed and Sales History
| 1 | 03/25/2020 | WD | Warranty Deed | THOMPSON TRUSTEE, MIKE | DEGIVE, ANA K | | | $740,000.00 | 42501 | 4483766 |
|   | |
| 2 | 12/01/2016 | WD | Warranty Deed | CENTER RIDGE COAL CORP | THOMPSON TRUSTEE, MIKE | | | $0.00 | 27565 | 4414357 |
| 3 | 02/01/2006 | WD | Warranty Deed | KING, KEVIN A | CENTER RIDGE COAL CORP, | | | $572,000.00 | 60498 | 4161718 |
| 4 | 09/01/1983 | WD | Warranty Deed | STOCKHOLM, EVERETT | KING, KEVIN A | | | $65,000.00 | 32676 | 415033 |
Payout Agreement
| No payout information available.. |