Property
Account |
| Property ID: | 406475 | Abbreviated Legal Description: | SYNDICATE ADD W100'OF LOT 38 SUBJ TO EZ |
| Geographic ID: | S8290-00-00038-2 | Agent Code: | |
| Type: | Real | | |
| Tax Area: | 760 - APPRAISER-S Whid Schl Dist, Special District, improved & less than 1 acre | Land Use Code | 11 |
| Open Space: | N | DFL | N |
| Historic Property: | N | Remodel Property: | N |
| Multi-Family Redevelopment: | N | | |
| Township: | | Section: | |
| Range: | |
Location |
| Address: | 5319 HONEYMOON BAY RD FREELAND, WA 98249 | Mapsco: | |
| Neighborhood: | Cycle 3 | Map ID: | 311 |
| Neighborhood CD: | 3 |
Owner |
| Name: | DEGIVE, ANA K | Owner ID: | 293846 |
| Mailing Address: | BRIDGET G BLAIR 5320 BERCOT RD FREELAND, WA 98249 | % Ownership: | 100.0000000000% |
| | | Exemptions: | |
Taxes and Assessment Details
Values
| (+) Improvement Homesite Value: | + | $0 | |
| (+) Improvement Non-Homesite Value: | + | $4,000 | |
| (+) Land Homesite Value: | + | $0 | |
| (+) Land Non-Homesite Value: | + | $130,000 | |
| (+) Curr Use (HS): | + | $0 | $0 |
| (+) Curr Use (NHS): | + | $0 | $0 |
| | | -------------------------- | |
| (=) Market Value: | = | $134,000 | |
| (–) Productivity Loss: | – | $0 | |
| | | -------------------------- | |
| (=) Subtotal: | = | $134,000 | |
| (+) Senior Appraised Value: | + | $0 | |
| (+) Non-Senior Appraised Value: | + | $134,000 | |
| | | -------------------------- | |
| (=) Total Appraised Value: | = | $134,000 | |
| (–) Senior Exemption Loss: | – | $0 | |
| (–) Exemption Loss: | – | $0 | |
| | | -------------------------- | |
| (=) Taxable Value: | = | $134,000 | |
Taxing Jurisdiction
| Owner: | DEGIVE, ANA K | | |
| % Ownership: | 100.0000000000% | | |
| Total Value: | $134,000 | | |
| Tax Area: | 760 - APPRAISER-S Whid Schl Dist, Special District, improved & less than 1 acre |
| CF | Conservation Futures | 0.0313996660 | $134,000 | $134,000 | $4.21 | | |
| FIRE3 | Fire & Rescue Dist #3 S Whidbey GEN | 1.2130821753 | $134,000 | $134,000 | $162.55 | | |
| HOBOND | Hospital BOND | 0.1893405597 | $134,000 | $134,000 | $25.37 | | |
| HOGEN | Hospital GEN | 0.3848777722 | $134,000 | $134,000 | $51.57 | | |
| CE | County Current Expense | 0.3674210519 | $134,000 | $134,000 | $49.23 | | |
| CR | County Roads | 0.4614296361 | $134,000 | $134,000 | $61.83 | | |
| ISLANDEMS | Hospital GEN (EMS) | 0.4952018576 | $134,000 | $134,000 | $66.36 | | |
| LIB | Library Sno-Isle GEN | 0.3039084203 | $134,000 | $134,000 | $40.72 | | |
| PORTWHID | Port of S Whidbey GEN | 0.1086004714 | $134,000 | $134,000 | $14.55 | | |
| SCH206BOND | School 206 BOND | 0.5960237832 | $134,000 | $134,000 | $79.87 | | |
| SCH206CAP | School 206 CP | 0.3066144020 | $134,000 | $134,000 | $41.09 | | |
| SCH206MO | School 206 Enrichment | 0.4808755445 | $134,000 | $134,000 | $64.44 | | |
| ST | State School | 1.4761226122 | $134,000 | $134,000 | $197.80 | | |
| ST2 | State School Part 2 | 0.7953803475 | $134,000 | $134,000 | $106.58 | | |
| SWHIDPRBD | P & R S Whidbey BOND | 0.0144185398 | $134,000 | $134,000 | $1.93 | | |
| SWHIDPRBD3 | P & R S Whidbey BOND3 | 0.1483535547 | $134,000 | $134,000 | $19.88 | | |
| SWHIDPRMT | P & R S Whidbey GEN | 0.4600000000 | $134,000 | $134,000 | $61.64 | | |
| | Total Tax Rate: | 7.8330503944 | | | | | |
| | | | | Taxes w/Current Exemptions: | $1,049.62 | | |
| | | | | Taxes w/o Exemptions: | $1,049.62 | | |
Improvement / Building
| Improvement #1: | RESIDENTIAL | State Code: | Y | 0.0 sqft | Value: | $4,000 |
Sketch
| No sketches available for this property. |
Property Image
Land
| 1 | 14 | SQ (08001-12000) | 0.2300 | 10018.80 | 0.00 | 0.00 | 1.00 | $130,000 | $0 |
Roll Value History
| 2026 | N/A | N/A | N/A | N/A | N/A |
| 2025 | $4,000 | $130,000 | $0 | $134,000 | $134,000 |
| 2024 | $4,000 | $120,000 | $0 | $124,000 | $124,000 |
| 2023 | $4,000 | $120,000 | $0 | $124,000 | $124,000 |
| 2022 | $4,000 | $120,000 | $0 | $124,000 | $124,000 |
| 2021 | $4,000 | $60,000 | $0 | $64,000 | $64,000 |
| 2020 | $4,000 | $40,000 | $0 | $44,000 | $44,000 |
| 2019 | $2,001 | $170,000 | $0 | $172,001 | $172,001 |
| 2018 | $2,001 | $140,000 | $0 | $142,001 | $142,001 |
| 2017 | $2,001 | $100,000 | $0 | $102,001 | $102,001 |
| 2016 | $2,001 | $100,000 | $0 | $102,001 | $102,001 |
| 2015 | $2,001 | $100,000 | $0 | $102,001 | $102,001 |
| 2014 | $2,001 | $100,000 | $0 | $102,001 | $102,001 |
| 2013 | $2,001 | $100,000 | $0 | $102,001 | $102,001 |
| 2012 | $8,118 | $87,975 | $0 | $96,093 | $96,093 |
| 2011 | $8,118 | $103,500 | $0 | $111,618 | $111,618 |
| 2010 | $10,465 | $103,500 | $0 | $113,965 | $113,965 |
| 2009 | $10,652 | $108,000 | $0 | $118,652 | $118,652 |
| 2008 | $10,652 | $108,000 | $0 | $118,652 | $118,652 |
| 2007 | $10,652 | $108,000 | $0 | $118,652 | $118,652 |
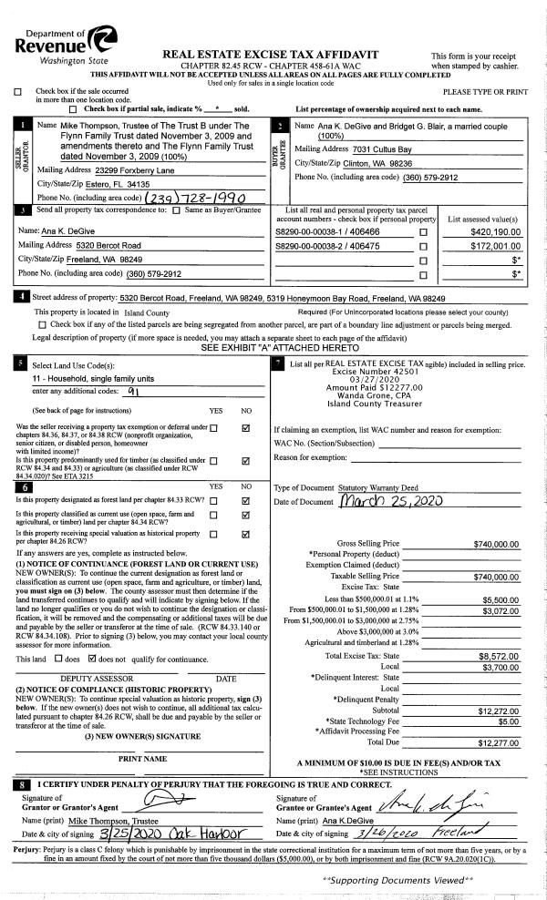
Deed and Sales History
| 1 | 03/25/2020 | WD | Warranty Deed | THOMPSON TRUSTEE, MIKE | DEGIVE, ANA K | | | $740,000.00 | 42501 | 4483766 |
|   | |
| 2 | 07/17/2017 | WD | Warranty Deed | STRADER, JOHN T | THOMPSON TRUSTEE, MIKE | | | $35,000.00 | 30534 | 4427741 |
| 3 | 01/01/1900 | OTHER | Other - Misc. Documents | Unknown | STRADER, JOHN | | | $0.00 | 0 | 0 |
Payout Agreement
| No payout information available.. |