Property
Account |
| Property ID: | 408419 | Abbreviated Legal Description: | Teronda West - 1,s Lot 1, 2, & 3,s Blk 3;s LOT A LOT COMB AF#4528951s |
| Geographic ID: | S8305-00-03001-0 | Agent Code: | |
| Type: | Real | | |
| Tax Area: | 310 - APPRAISER-Cpvl Schl Dist, outside Cpvl, improved & 1 acre or less | Land Use Code | 11 |
| Open Space: | N | DFL | N |
| Historic Property: | N | Remodel Property: | N |
| Multi-Family Redevelopment: | N | | |
| Township: | | Section: | |
| Range: | |
Location |
| Address: | 355 GRAMAYRE RD COUPEVILLE, WA 98239 | Mapsco: | |
| Neighborhood: | Cycle 2 | Map ID: | 524 |
| Neighborhood CD: | 2 |
Owner |
| Name: | SETVIK JTWROS, OYSTEIN | Owner ID: | 300708 |
| Mailing Address: | SUSANNE A SETVIK JTWROS 355 GRAMAYRE RD COUPEVILLE, WA 98239 | % Ownership: | 100.0000000000% |
| | | Exemptions: | |
Taxes and Assessment Details
Values
| (+) Improvement Homesite Value: | + | $0 | |
| (+) Improvement Non-Homesite Value: | + | $355,405 | |
| (+) Land Homesite Value: | + | $0 | |
| (+) Land Non-Homesite Value: | + | $220,000 | |
| (+) Curr Use (HS): | + | $0 | $0 |
| (+) Curr Use (NHS): | + | $0 | $0 |
| | | -------------------------- | |
| (=) Market Value: | = | $575,405 | |
| (–) Productivity Loss: | – | $0 | |
| | | -------------------------- | |
| (=) Subtotal: | = | $575,405 | |
| (+) Senior Appraised Value: | + | $0 | |
| (+) Non-Senior Appraised Value: | + | $575,405 | |
| | | -------------------------- | |
| (=) Total Appraised Value: | = | $575,405 | |
| (–) Senior Exemption Loss: | – | $0 | |
| (–) Exemption Loss: | – | $0 | |
| | | -------------------------- | |
| (=) Taxable Value: | = | $575,405 | |
Taxing Jurisdiction
| Owner: | SETVIK JTWROS, OYSTEIN | | |
| % Ownership: | 100.0000000000% | | |
| Total Value: | $575,405 | | |
| Tax Area: | 310 - APPRAISER-Cpvl Schl Dist, outside Cpvl, improved & 1 acre or less |
| CF | Conservation Futures | 0.0313996660 | $575,405 | $575,405 | $18.07 | | |
| CEM2 | Cemetery #2 | 0.0092609791 | $575,405 | $575,405 | $5.33 | | |
| FIRE5 | Fire & Rescue Dist #5 C Whidbey GEN | 1.1892169230 | $575,405 | $575,405 | $684.28 | | |
| FIRE5BOND | Fire & Rescue Dist #5 C Whidbey BOND | 0.1394359503 | $575,405 | $575,405 | $80.23 | | |
| HOBOND | Hospital BOND | 0.1893405597 | $575,405 | $575,405 | $108.95 | | |
| HOGEN | Hospital GEN | 0.3848777722 | $575,405 | $575,405 | $221.46 | | |
| CE | County Current Expense | 0.3674210519 | $575,405 | $575,405 | $211.42 | | |
| CR | County Roads | 0.4614296361 | $575,405 | $575,405 | $265.51 | | |
| ISLANDEMS | Hospital GEN (EMS) | 0.4952018576 | $575,405 | $575,405 | $284.94 | | |
| LIB | Library Sno-Isle GEN | 0.3039084203 | $575,405 | $575,405 | $174.87 | | |
| LIBCAP | Library Sno-Isle BOND (Cap Fac Imp Area) | 0.0528562629 | $575,405 | $575,405 | $30.41 | | |
| POCOUP | Port of Coupeville GEN | 0.1065226063 | $575,405 | $575,405 | $61.29 | | |
| POCOUPIDD | Port of Coupeville IDD | 0.3353038577 | $575,405 | $575,405 | $192.94 | | |
| COUPSDTECH | School 204 CP (TECH) | 0.1215123397 | $575,405 | $575,405 | $69.92 | | |
| SCH204MO | School 204 Enrichment | 0.6416662518 | $575,405 | $575,405 | $369.22 | | |
| ST | State School | 1.4761226122 | $575,405 | $575,405 | $849.37 | | |
| ST2 | State School Part 2 | 0.7953803475 | $575,405 | $575,405 | $457.67 | | |
| | Total Tax Rate: | 7.1008570943 | | | | | |
| | | | | Taxes w/Current Exemptions: | $4,085.88 | | |
| | | | | Taxes w/o Exemptions: | $4,085.88 | | |
Improvement / Building
| Improvement #1: | RESIDENTIAL | State Code: | Y | 1920.0 sqft | Value: | $355,405 |
| Bathrooms: | 2 | Bedrooms: | 2 | | Ceiling: | DRYWALL PAINTED | Cooling: | HEAT PUMP/CONV/V | | Exterior Wall/Cover: | CEMENT FIBER | Floor Covering: | CARPET/VINYL 20-80 | | Floor Structure: | WOOD W/SUBFLOOR | Foundation: | CONCRETE | | Interior Finish: | DRYWALL PAINT | Plumbing Fixture Cnt: | 10 | | Roof Slope: | 6" IN 12" | Roof Structure/Cover: | CJ ASPHALT |
|
| | Type | Description | Class CD | Sub Class CD | Year Built | Area |
| | BAS | BASE/MAIN FLOOR | 3 | 0 | 2023 | 1920.0 |
| | AGR | ATTACHED GARAGE | 3 | 0 | 2023 | 400.0 |
| | OP4 | OPEN PORCH W/CEILING-ROOF | 3 | 0 | 2023 | 24.0 |
| | OWP | OPEN WOOD PORCH W/STEPS | 3 | 0 | 2023 | 496.0 |
Sketch
Property Image
Land
| 1 | 16 | AC (00.51-01.00) | 0.5800 | 25264.80 | 0.00 | 0.00 | 1.00 | $220,000 | $0 |
Roll Value History
| 2026 | N/A | N/A | N/A | N/A | N/A |
| 2025 | $355,405 | $220,000 | $0 | $575,405 | $575,405 |
| 2024 | $361,867 | $200,000 | $0 | $561,867 | $561,867 |
| 2023 | $369,252 | $190,000 | $0 | $559,252 | $559,252 |
| 2022 | $0 | $60,000 | $0 | $60,000 | $60,000 |
| 2021 | $0 | $40,000 | $0 | $40,000 | $40,000 |
| 2020 | $0 | $30,000 | $0 | $30,000 | $30,000 |
| 2019 | $0 | $30,000 | $0 | $30,000 | $30,000 |
| 2018 | $0 | $30,000 | $0 | $30,000 | $30,000 |
| 2017 | $0 | $30,000 | $0 | $30,000 | $30,000 |
| 2016 | $0 | $30,000 | $0 | $30,000 | $30,000 |
| 2015 | $0 | $30,000 | $0 | $30,000 | $30,000 |
| 2014 | $0 | $30,000 | $0 | $30,000 | $30,000 |
| 2013 | $0 | $30,000 | $0 | $30,000 | $30,000 |
| 2012 | $0 | $45,000 | $0 | $45,000 | $45,000 |
| 2011 | $0 | $45,000 | $0 | $45,000 | $45,000 |
| 2010 | $0 | $45,000 | $0 | $45,000 | $45,000 |
| 2009 | $0 | $65,000 | $0 | $65,000 | $65,000 |
| 2008 | $0 | $54,940 | $0 | $54,940 | $54,940 |
| 2007 | $0 | $45,100 | $0 | $45,100 | $45,100 |
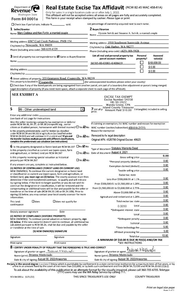
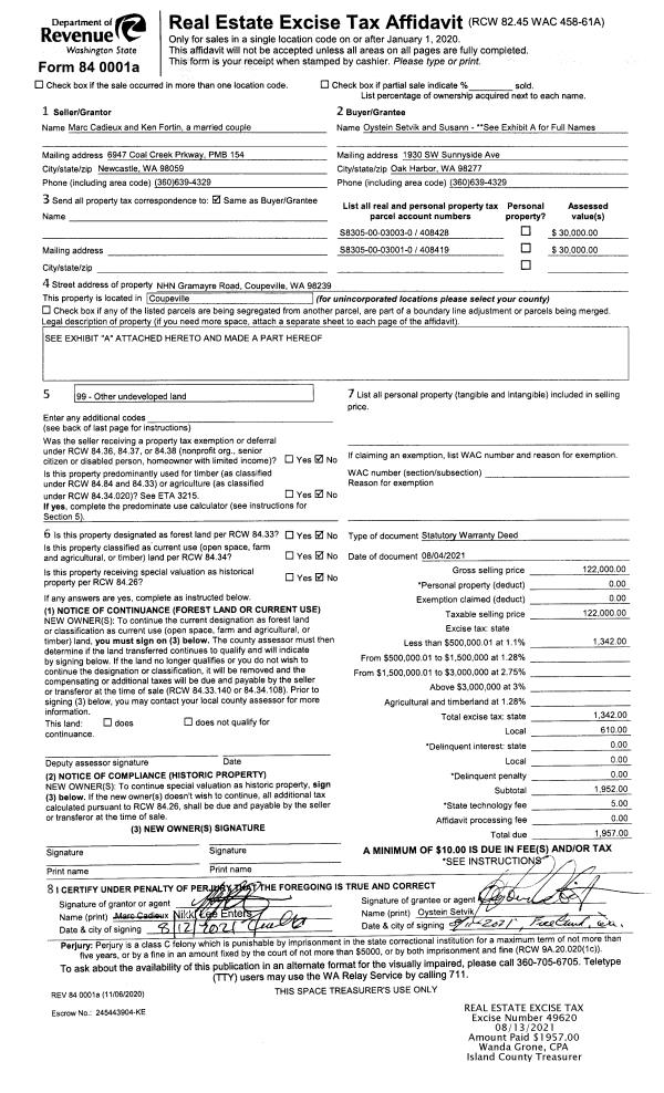
Deed and Sales History
| 1 | 08/04/2021 | WD | Warranty Deed | CADIEUX, MARC | SETVIK JTWROS, OYSTEIN | | | $0.00 | 54358 | 4550471 |
| 2 | 08/04/2021 | WD | Warranty Deed | CADIEUX, MARC | SETVIK JTWROS, OYSTEIN | | | $122,000.00 | 49620 | 4526796 |
| 3 | 10/15/2018 | WD | Warranty Deed | GLENN, JOSEPH M | CADIEUX, MARC | | | $57,500.00 | 36307 | 4453509 |
| 4 | 05/04/2005 | WD | Warranty Deed | JOHNSTON, WILLIAM/MARTHA | GLENN, JOSEPH M | | | $42,500.00 | 51963 | 4133296 |
| 5 | 02/01/1994 | WD | Warranty Deed | BLACK, ALAN F | JOHNSTON, WILLIAM/MARTHA | | | $9,500.00 | 40777 | 94004879 |
| 6 | 01/01/1900 | OTHER | Other - Misc. Documents | Unknown | BLACK, ALAN F | | | $0.00 | 0 | 0 |
Payout Agreement
| No payout information available.. |