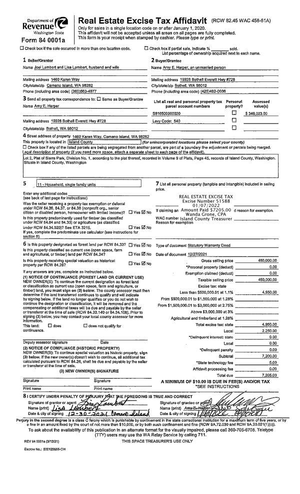
Property
Account |
| Property ID: | 410718 | Abbreviated Legal Description: | THUNDER RIDGE 1 LOT 12 |
| Geographic ID: | S8315-00-00012-0 | Agent Code: | |
| Type: | Real | | |
| Tax Area: | 510 - APPRAISER-Stan/Cam Schl Dist, improved & 1 acre or less | Land Use Code | 11 |
| Open Space: | N | DFL | N |
| Historic Property: | N | Remodel Property: | N |
| Multi-Family Redevelopment: | N | | |
| Township: | | Section: | |
| Range: | |
Location |
| Address: | 1007 SHAMROCK LN CAMANO ISLAND, WA 98282 | Mapsco: | |
| Neighborhood: | Cycle 5 | Map ID: | 927 |
| Neighborhood CD: | 5 |
Owner |
| Name: | HANSON, TRISTAN N | Owner ID: | 149169 |
| Mailing Address: | CHELSEA N HANSON 1007 SHAMROCK LN CAMANO ISLAND, WA 98282-6562 | % Ownership: | 100.0000000000% |
| | | Exemptions: | |
Taxes and Assessment Details
Values
| (+) Improvement Homesite Value: | + | $0 | |
| (+) Improvement Non-Homesite Value: | + | $283,023 | |
| (+) Land Homesite Value: | + | $0 | |
| (+) Land Non-Homesite Value: | + | $250,000 | |
| (+) Curr Use (HS): | + | $0 | $0 |
| (+) Curr Use (NHS): | + | $0 | $0 |
| | | -------------------------- | |
| (=) Market Value: | = | $533,023 | |
| (–) Productivity Loss: | – | $0 | |
| | | -------------------------- | |
| (=) Subtotal: | = | $533,023 | |
| (+) Senior Appraised Value: | + | $0 | |
| (+) Non-Senior Appraised Value: | + | $533,023 | |
| | | -------------------------- | |
| (=) Total Appraised Value: | = | $533,023 | |
| (–) Senior Exemption Loss: | – | $0 | |
| (–) Exemption Loss: | – | $0 | |
| | | -------------------------- | |
| (=) Taxable Value: | = | $533,023 | |
Taxing Jurisdiction
| Owner: | HANSON, TRISTAN N | | |
| % Ownership: | 100.0000000000% | | |
| Total Value: | $533,023 | | |
| Tax Area: | 510 - APPRAISER-Stan/Cam Schl Dist, improved & 1 acre or less |
| CF | Conservation Futures | 0.0313996660 | $533,023 | $533,023 | $16.74 | | |
| EMS1 | Fire & Rescue Dist #1 Camano GEN (EMS) | 0.4998471806 | $533,023 | $533,023 | $266.43 | | |
| FIRE1 | Fire & Rescue Dist #1 Camano GEN | 1.2496603404 | $533,023 | $533,023 | $666.10 | | |
| FIRE1BOND | Fire & Rescue Dist #1 Camano BOND | 0.1630371212 | $533,023 | $533,023 | $86.90 | | |
| CE | County Current Expense | 0.3674210519 | $533,023 | $533,023 | $195.84 | | |
| CR | County Roads | 0.4614296361 | $533,023 | $533,023 | $245.95 | | |
| LIB | Library Sno-Isle GEN | 0.3039084203 | $533,023 | $533,023 | $161.99 | | |
| SCH205_401 | School 205-401 Enrichment | 1.3697998934 | $533,023 | $533,023 | $730.13 | | |
| SCH205BOND | School 205-401 BOND | 0.9354199323 | $533,023 | $533,023 | $498.60 | | |
| ST | State School | 1.4761226122 | $533,023 | $533,023 | $786.81 | | |
| ST2 | State School Part 2 | 0.7953803475 | $533,023 | $533,023 | $423.96 | | |
| | Total Tax Rate: | 7.6534262019 | | | | | |
| | | | | Taxes w/Current Exemptions: | $4,079.45 | | |
| | | | | Taxes w/o Exemptions: | $4,079.45 | | |
Improvement / Building
| Improvement #1: | RESIDENTIAL | State Code: | Y | 1449.0 sqft | Value: | $283,023 |
| Bathrooms: | 2.5 | Bedrooms: | 3 | | Ceiling: | DRYWALL PAINTED | Cooling: | HEAT PUMP/CONV/V | | Exterior Wall/Cover: | PLY/HARDBOARD T-111 | Floor Covering: | CARPET/VINYL 80-20 | | Floor Structure: | WOOD W/SUBFLOOR | Foundation: | CONCRETE | | Interior Finish: | DRYWALL PAINT | Plumbing Fixture Cnt: | 11 | | Roof Slope: | 4" IN 12" | Roof Structure/Cover: | CJ ASPHALT |
|
| | Type | Description | Class CD | Sub Class CD | Year Built | Area |
| | BAS | BASE/MAIN FLOOR | 3 | 0 | 1999 | 745.0 |
| | AGR | ATTACHED GARAGE | 3 | 0 | 1999 | 216.0 |
| | BIG | BUILT IN GARAGE | 3 | 0 | 1999 | 288.0 |
| | UPS | UPPER STORY | 3 | 0 | 1999 | 704.0 |
| | OWP | OPEN WOOD PORCH W/STEPS | 3 | 0 | 1999 | 40.0 |
| | OWC | OPEN WOOD PORCH W/STEPS/ROOF/C | 3 | 0 | 1999 | 187.0 |
| | OWC | OPEN WOOD PORCH W/STEPS/ROOF/C | 3 | 0 | 1999 | 42.0 |
| | OWP | OPEN WOOD PORCH W/STEPS | 3 | 0 | 1999 | 184.0 |
| | OCP | OPEN CARPORT | 3 | 0 | 1999 | 192.0 |
Sketch
Property Image
Land
| 1 | 14 | SQ (08001-12000) | 0.0000 | 0.00 | 0.00 | 0.00 | 1.00 | $250,000 | $0 |
Roll Value History
| 2026 | N/A | N/A | N/A | N/A | N/A |
| 2025 | $283,023 | $250,000 | $0 | $533,023 | $533,023 |
| 2024 | $286,342 | $250,000 | $0 | $536,342 | $536,342 |
| 2023 | $289,663 | $250,000 | $0 | $539,663 | $539,663 |
| 2022 | $265,298 | $220,000 | $0 | $485,298 | $485,298 |
| 2021 | $210,048 | $140,000 | $0 | $350,048 | $350,048 |
| 2020 | $196,915 | $125,000 | $0 | $321,915 | $321,915 |
| 2019 | $140,426 | $190,000 | $0 | $330,426 | $330,426 |
| 2018 | $140,838 | $145,000 | $0 | $285,838 | $285,838 |
| 2017 | $141,662 | $120,000 | $0 | $261,662 | $261,662 |
| 2016 | $143,308 | $80,000 | $0 | $223,308 | $223,308 |
| 2015 | $141,675 | $45,000 | $0 | $186,675 | $186,675 |
| 2014 | $143,380 | $45,000 | $0 | $188,380 | $188,380 |
| 2013 | $145,088 | $45,000 | $0 | $190,088 | $190,088 |
| 2012 | $146,794 | $56,000 | $0 | $202,794 | $202,794 |
| 2011 | $148,501 | $56,000 | $0 | $204,501 | $204,501 |
| 2010 | $159,169 | $56,000 | $0 | $215,169 | $215,169 |
| 2009 | $167,110 | $95,000 | $0 | $262,110 | $262,110 |
| 2008 | $169,311 | $105,000 | $0 | $274,311 | $274,311 |
| 2007 | $171,511 | $105,000 | $0 | $276,511 | $276,511 |
Deed and Sales History
| 1 | 09/16/2008 | TRUSTEED | Trustee's Deed | WELLS FARGO BANK NA, | HANSON, TRISTAN N | | | $220,000.00 | 82557 | 4237546 |
| 2 | 05/13/2008 | TRUSTEED | Trustee's Deed | HERNANDEZ, PEDRO | WELLS FARGO BANK NA, | | | $180,000.00 | 81356 | 4229628 |
| 3 | 01/03/2000 | WD | Warranty Deed | COLE, ROBERT R | HERNANDEZ, PEDRO | | | $159,950.00 | 40 | 20000182 |
| 4 | 03/01/1998 | QCD | Quit Claim Deed | TR, CAMANO I | COLE, ROBERT R | | | $0.00 | 81079 | 98002929 |
| 5 | 06/01/1996 | WD | Warranty Deed | TORRES, CAREEN A | TR, CAMANO I | | | $3,500.00 | 61947 | 96009752 |
| 6 | 08/01/1989 | QCD | Quit Claim Deed | MALONE, MAX A | TORRES, CAREEN A | | | $0.00 | 93162 | 89010648 |
| 7 | 01/01/1900 | OTHER | Other - Misc. Documents | Unknown | MALONE, MAX A | | | $0.00 | 0 | 0 |
Payout Agreement
| No payout information available.. |