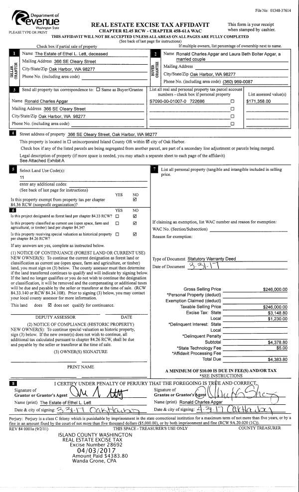
Property
Account |
| Property ID: | 410870 | Abbreviated Legal Description: | THUNDER RIDGE 1 LOT 28 |
| Geographic ID: | S8315-00-00028-0 | Agent Code: | |
| Type: | Real | | |
| Tax Area: | 510 - APPRAISER-Stan/Cam Schl Dist, improved & 1 acre or less | Land Use Code | 11 |
| Open Space: | N | DFL | N |
| Historic Property: | N | Remodel Property: | N |
| Multi-Family Redevelopment: | N | | |
| Township: | | Section: | |
| Range: | |
Location |
| Address: | 1008 FISHER KING WAY CAMANO ISLAND, WA 98282 | Mapsco: | |
| Neighborhood: | Cycle 5 | Map ID: | 478 |
| Neighborhood CD: | 5 |
Owner |
| Name: | TONNE, KEITH | Owner ID: | 283887 |
| Mailing Address: | SHEILA TONNE 1008 FISHER KING WAY CAMANO ISLAND, WA 98282 | % Ownership: | 100.0000000000% |
| | | Exemptions: | |
Taxes and Assessment Details
Values
| (+) Improvement Homesite Value: | + | N/A | |
| (+) Improvement Non-Homesite Value: | + | N/A | |
| (+) Land Homesite Value: | + | N/A | |
| (+) Land Non-Homesite Value: | + | N/A | Ag / Timber Use Value |
| (+) Curr Use (HS): | + | N/A | N/A |
| (+) Curr Use (NHS): | + | N/A | N/A |
| | | -------------------------- | |
| (=) Market Value: | = | N/A | |
| (–) Productivity Loss: | – | N/A | |
| | | -------------------------- | |
| (=) Subtotal: | = | N/A | |
| (+) Senior Appraised Value: | + | N/A | |
| (+) Non-Senior Appraised Value: | + | N/A | |
| | | -------------------------- | |
| (=) Total Appraised Value: | = | N/A | |
| (–) Senior Exemption Loss: | – | N/A | |
| (–) Exemption Loss: | – | N/A | |
| | | -------------------------- | |
| (=) Taxable Value: | = | N/A | |
Taxing Jurisdiction
| Owner: | TONNE, KEITH | | |
| % Ownership: | 100.0000000000% | | |
| Total Value: | N/A | | |
| Tax Area: | 510 - APPRAISER-Stan/Cam Schl Dist, improved & 1 acre or less |
| CF | Conservation Futures | N/A | N/A | N/A | N/A | | |
| CCD | Camano Conservation District | N/A | N/A | N/A | N/A | | |
| EMS1 | Fire & Rescue Dist #1 Camano GEN (EMS) | N/A | N/A | N/A | N/A | | |
| FIRE1 | Fire & Rescue Dist #1 Camano GEN | N/A | N/A | N/A | N/A | | |
| FIRE1BOND | Fire & Rescue Dist #1 Camano BOND | N/A | N/A | N/A | N/A | | |
| CE | County Current Expense | N/A | N/A | N/A | N/A | | |
| CR | County Roads | N/A | N/A | N/A | N/A | | |
| LCIB | Library Sno-Isle BOND (Camano Island) | N/A | N/A | N/A | N/A | | |
| LIB | Library Sno-Isle GEN | N/A | N/A | N/A | N/A | | |
| SCH205_401 | School 205-401 Enrichment | N/A | N/A | N/A | N/A | | |
| SCH205BOND | School 205-401 BOND | N/A | N/A | N/A | N/A | | |
| ST | State School | N/A | N/A | N/A | N/A | | |
| ST2 | State School Part 2 | N/A | N/A | N/A | N/A | | |
| | Total Tax Rate: | N/A | | | | | |
| | | | | Taxes w/Current Exemptions: | N/A | | |
| | | | | Taxes w/o Exemptions: | N/A | | |
Improvement / Building
| Improvement #1: | RESIDENTIAL | State Code: | Y | 1860.0 sqft | Value: | N/A |
| Bathrooms: | 2 | Bedrooms: | 3 | | Ceiling: | DRYWALL PAINTED | Exterior Wall/Cover: | CEMENT FIBER | | Floor Covering: | HARDWOOD/CARP 60-40 | Floor Structure: | WOOD W/SUBFLOOR | | Foundation: | CONCRETE | Heating: | FHA GAS | | Interior Finish: | DRYWALL PAINT | Plumbing Fixture Cnt: | 10 | | Roof Slope: | 5" IN 12" | Roof Structure/Cover: | CJ ASPHALT |
|
| | Type | Description | Class CD | Sub Class CD | Year Built | Area |
| | BAS | BASE/MAIN FLOOR | 4 | 0 | 2017 | 1860.0 |
| | AGR | ATTACHED GARAGE | 4 | 0 | 2017 | 572.0 |
| | OWR | OPEN WOOD PORCH W/STEPS/ROOF | 4 | 0 | 2017 | 256.0 |
| | OWC | OPEN WOOD PORCH W/STEPS/ROOF/C | 4 | 0 | 2017 | 60.0 |
| | UB8 | BASEMENT UNFINISHED 8" | 4 | 0 | 2017 | 608.0 |
Sketch
Property Image
Land
| 1 | 15 | SQ (12001-21780) | 0.0000 | 0.00 | 0.00 | 0.00 | 1.00 | N/A | N/A |
Roll Value History
| 2026 | N/A | N/A | N/A | N/A | N/A |
| 2025 | $514,942 | $330,000 | $0 | $844,942 | $844,942 |
| 2024 | $519,128 | $330,000 | $0 | $849,128 | $849,128 |
| 2023 | $523,314 | $330,000 | $0 | $853,314 | $853,314 |
| 2022 | $477,673 | $300,000 | $0 | $777,673 | $777,673 |
| 2021 | $391,433 | $145,000 | $0 | $536,433 | $536,433 |
| 2020 | $380,073 | $125,000 | $0 | $505,073 | $505,073 |
| 2019 | $289,672 | $210,000 | $0 | $499,672 | $499,672 |
| 2018 | $290,408 | $165,000 | $0 | $455,408 | $455,408 |
| 2017 | $105,921 | $90,000 | $0 | $195,921 | $195,921 |
| 2016 | $0 | $60,000 | $0 | $60,000 | $60,000 |
| 2015 | $0 | $70,000 | $0 | $70,000 | $70,000 |
| 2014 | $0 | $70,000 | $0 | $70,000 | $70,000 |
| 2013 | $0 | $75,000 | $0 | $75,000 | $75,000 |
| 2012 | $0 | $75,000 | $0 | $75,000 | $75,000 |
| 2011 | $0 | $75,000 | $0 | $75,000 | $75,000 |
| 2010 | $0 | $75,000 | $0 | $75,000 | $75,000 |
| 2009 | $0 | $90,000 | $0 | $90,000 | $90,000 |
| 2008 | $0 | $95,000 | $0 | $95,000 | $95,000 |
| 2007 | $0 | $95,000 | $0 | $95,000 | $95,000 |
Deed and Sales History
| 1 | 02/06/2018 | WD | Warranty Deed | NW QUALITY BUILDERS LLC | TONNE, KEITH | | | $459,000.00 | 32931 | 4439129 |
| 2 | 03/27/2017 | SPLTDWARDE | Special Limited Warranty Deed | ASSEMBLIES OF GOD FOUNDATION | NW QUALITY BUILDERS LLC | | | $180,000.00 | 28642 | 4419814 |
|   | |
| 3 | 09/07/2016 | WD | Warranty Deed | IRVIN, PHILIP C | ASSEMBLIES OF GOD FOUNDATION | | | $0.00 | 26199 | 4407668 |
| 4 | 07/22/1999 | ESTSEPPROP | Establish Separate Property | IRVIN, PHILIP C | IRVIN, PHILIP C | | | $0.00 | 93123 | 99018108 |
| 5 | 01/01/1981 | CD | DNU - Correction Deed | IRVIN, MICHAEL Z | IRVIN, PHILIP C | | | $0.00 | 10425 | 379528 |
| 6 | 12/01/1980 | SHERIFFD | Sheriff Deed | D, & B | IRVIN, MICHAEL Z | | | $27,398.00 | 59016 | 377907 |
| 7 | 10/01/1978 | OTHER | Other - Misc. Documents | Unknown | D, & B | | | $0.00 | 85302 | 342080 |
Payout Agreement
| No payout information available.. |