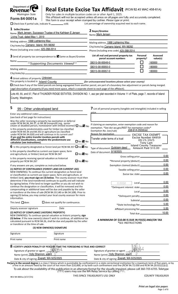
Property
Account |
| Property ID: | 411147 | Abbreviated Legal Description: | THUNDER RIDGE 1 LOT 55 |
| Geographic ID: | S8315-00-00055-0 | Agent Code: | |
| Type: | Real | | |
| Tax Area: | 510 - APPRAISER-Stan/Cam Schl Dist, improved & 1 acre or less | Land Use Code | 99 |
| Open Space: | N | DFL | N |
| Historic Property: | N | Remodel Property: | N |
| Multi-Family Redevelopment: | N | | |
| Township: | | Section: | |
| Range: | |
Location |
| Address: | | Mapsco: | |
| Neighborhood: | Cycle 5 | Map ID: | 478 |
| Neighborhood CD: | 5 |
Owner |
| Name: | JENSEN TTEE, KATHLEEN E | Owner ID: | 290106 |
| Mailing Address: | 1727 NE 153RD PL PORTLAND, OR 97230 | % Ownership: | 100.0000000000% |
| | | Exemptions: | |
Taxes and Assessment Details
Values
| (+) Improvement Homesite Value: | + | $0 | |
| (+) Improvement Non-Homesite Value: | + | $0 | |
| (+) Land Homesite Value: | + | $0 | |
| (+) Land Non-Homesite Value: | + | $180,000 | |
| (+) Curr Use (HS): | + | $0 | $0 |
| (+) Curr Use (NHS): | + | $0 | $0 |
| | | -------------------------- | |
| (=) Market Value: | = | $180,000 | |
| (–) Productivity Loss: | – | $0 | |
| | | -------------------------- | |
| (=) Subtotal: | = | $180,000 | |
| (+) Senior Appraised Value: | + | $0 | |
| (+) Non-Senior Appraised Value: | + | $180,000 | |
| | | -------------------------- | |
| (=) Total Appraised Value: | = | $180,000 | |
| (–) Senior Exemption Loss: | – | $0 | |
| (–) Exemption Loss: | – | $0 | |
| | | -------------------------- | |
| (=) Taxable Value: | = | $180,000 | |
Taxing Jurisdiction
| Owner: | JENSEN TTEE, KATHLEEN E | | |
| % Ownership: | 100.0000000000% | | |
| Total Value: | $180,000 | | |
| Tax Area: | 510 - APPRAISER-Stan/Cam Schl Dist, improved & 1 acre or less |
| CF | Conservation Futures | 0.0313996660 | $180,000 | $180,000 | $5.65 | | |
| EMS1 | Fire & Rescue Dist #1 Camano GEN (EMS) | 0.4998471806 | $180,000 | $180,000 | $89.97 | | |
| FIRE1 | Fire & Rescue Dist #1 Camano GEN | 1.2496603404 | $180,000 | $180,000 | $224.94 | | |
| FIRE1BOND | Fire & Rescue Dist #1 Camano BOND | 0.1630371212 | $180,000 | $180,000 | $29.35 | | |
| CE | County Current Expense | 0.3674210519 | $180,000 | $180,000 | $66.14 | | |
| CR | County Roads | 0.4614296361 | $180,000 | $180,000 | $83.06 | | |
| LIB | Library Sno-Isle GEN | 0.3039084203 | $180,000 | $180,000 | $54.70 | | |
| SCH205_401 | School 205-401 Enrichment | 1.3697998934 | $180,000 | $180,000 | $246.56 | | |
| SCH205BOND | School 205-401 BOND | 0.9354199323 | $180,000 | $180,000 | $168.38 | | |
| ST | State School | 1.4761226122 | $180,000 | $180,000 | $265.70 | | |
| ST2 | State School Part 2 | 0.7953803475 | $180,000 | $180,000 | $143.17 | | |
| | Total Tax Rate: | 7.6534262019 | | | | | |
| | | | | Taxes w/Current Exemptions: | $1,377.62 | | |
| | | | | Taxes w/o Exemptions: | $1,377.62 | | |
Improvement / Building
Sketch
| No sketches available for this property. |
Property Image
Land
| 1 | 14 | SQ (08001-12000) | 0.0000 | 0.00 | 0.00 | 0.00 | 1.00 | $180,000 | $0 |
Roll Value History
| 2026 | N/A | N/A | N/A | N/A | N/A |
| 2025 | $0 | $180,000 | $0 | $180,000 | $180,000 |
| 2024 | $0 | $180,000 | $0 | $180,000 | $180,000 |
| 2023 | $0 | $180,000 | $0 | $180,000 | $180,000 |
| 2022 | $0 | $170,000 | $0 | $170,000 | $170,000 |
| 2021 | $0 | $100,000 | $0 | $100,000 | $100,000 |
| 2020 | $0 | $90,000 | $0 | $90,000 | $90,000 |
| 2019 | $0 | $90,000 | $0 | $90,000 | $90,000 |
| 2018 | $0 | $90,000 | $0 | $90,000 | $90,000 |
| 2017 | $0 | $90,000 | $0 | $90,000 | $90,000 |
| 2016 | $0 | $60,000 | $0 | $60,000 | $60,000 |
| 2015 | $0 | $80,000 | $0 | $80,000 | $80,000 |
| 2014 | $0 | $80,000 | $0 | $80,000 | $80,000 |
| 2013 | $0 | $80,000 | $0 | $80,000 | $80,000 |
| 2012 | $0 | $80,000 | $0 | $80,000 | $80,000 |
| 2011 | $0 | $80,000 | $0 | $80,000 | $80,000 |
| 2010 | $0 | $80,000 | $0 | $80,000 | $80,000 |
| 2009 | $0 | $120,000 | $0 | $120,000 | $120,000 |
| 2008 | $0 | $169,000 | $0 | $169,000 | $169,000 |
| 2007 | $0 | $120,000 | $0 | $120,000 | $120,000 |
Deed and Sales History
| 1 | 09/18/2025 | QCD | Quit Claim Deed | JENSEN TTEE, KATHLEEN E | JENSEN, MARK | | | $0.00 | 64959 | 4591458 |
| 2 | 05/01/2019 | WD | Warranty Deed | JENSEN, KATHLEEN E | JENSEN TTEE, KATHLEEN E | | | $0.00 | 38824 | 4464758 |
| 3 | 05/16/2014 | QCD | Quit Claim Deed | JENSEN JTROS, KATHLEEN E | JENSEN, KATHLEEN E | | | $0.00 | 15617 | 4360772 |
| 4 | 08/11/2008 | QCD | Quit Claim Deed | JENSEN, KATHLEEN E | JENSEN JTROS, KATHLEEN E | | | $0.00 | 82362 | 4236336 |
| 5 | 07/28/2003 | WD | Warranty Deed | GRATE, RONALD | JENSEN, KATHLEEN E | | | $42,785.00 | 33240 | 4068619 |
| 6 | 12/30/2002 | WD | Warranty Deed | JONES, CAROLYN A | GRATE, RONALD | | | $31,000.00 | 30034 | 4043043 |
| 7 | 10/18/2002 | TRUSTEED | Trustee's Deed | BARNETT JR, SLADE E | JONES, CAROLYN A | | | $0.00 | 24538 | 4037349 |
| 8 | 06/25/2001 | WD | Warranty Deed | EQUITY PLUS HOMES, LLC, | BARNETT JR, SLADE E | | | $0.00 | 20240 | 4008865 |
| 9 | 06/25/2001 | WD | Warranty Deed | STURZA, LINDA S | EQUITY PLUS HOMES, LLC, | | | $9,000.00 | 12735 | 20037731 |
| 10 | 12/01/1992 | TTAXD | Treasurer's Tax Deed | HAGERTY, JO E | STURZA, LINDA S | | | $0.00 | 65162 | 92023881 |
| 11 | 10/01/1987 | QCD | Quit Claim Deed | WASHINGTON, MUTUAL S | HAGERTY, JO E | | | $0.00 | 73680 | 87016024 |
| 12 | 02/01/1987 | QCD | Quit Claim Deed | LUCKER, DEBORAH & | WASHINGTON, MUTUAL S | | | $0.00 | 70441 | 87002726 |
| 13 | 10/01/1970 | EXECUTORD | Executor Deed | MOWREY, FRED T | LUCKER, DEBORAH & | | | $0.00 | 40046 | 0 |
| 14 | 01/01/1900 | OTHER | Other - Misc. Documents | Unknown | MOWREY, FRED T | | | $0.00 | 0 | 0 |
Payout Agreement
| No payout information available.. |