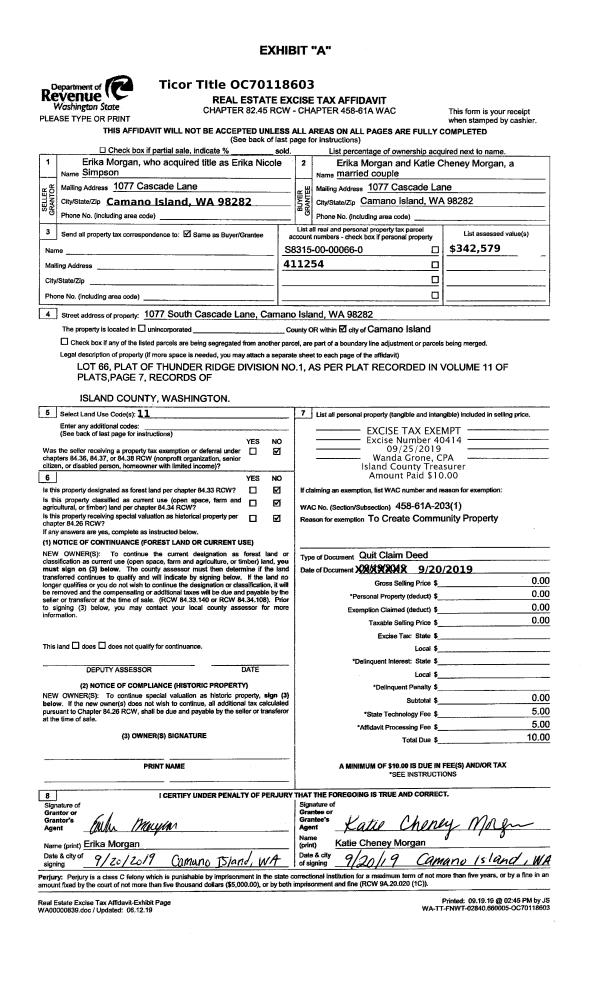
| 1 | 09/20/2019 | QCD | Quit Claim Deed | SIMPSON, ERIKA NICOLE | MORGAN, ERIKA | | | $0.00 | 40414 | 4472065 |
| 2 | 07/01/2013 | WD | Warranty Deed | FIECHTNER TRUSTEE, SCOTT L | SIMPSON, ERIKA NICOLE | | | $172,000.00 | 11895 | 4343204 |
| 3 | 06/19/2013 | QCD | Quit Claim Deed | SIMPSON, ERIKA NICOLE | SIMPSON, ERIKA NICOLE | | | $0.00 | 11826 | 4342830 |
| 4 | 06/19/2013 | WD | Warranty Deed | SIMPSON, ERIKA NICOLE | SIMPSON, ERIKA NICOLE | | | $155,000.00 | 11687 | 4342201 |
| 5 | 06/19/2013 | QCD | Quit Claim Deed | SIMPSON, ERIKA NICOLE | SIMPSON, ERIKA NICOLE | | | $0.00 | 11686 | 4337433 |
| 6 | 04/24/2013 | QCD | Quit Claim Deed | FIECHTNER TRUSTEE, SCOTT L | FIECHTNER TRUSTEE, SCOTT L | | | $0.00 | 11094 | 4338401 |
| 7 | 05/07/2012 | TRUSTEED | Trustee's Deed | FIECHTNER, SCOTT L | FIECHTNER TRUSTEE, SCOTT L | | | $0.00 | 10976 | 4337433 |
| 8 | 05/20/2008 | ESTSEPPROP | Establish Separate Property | FIECHTNER, SCOTT | FIECHTNER, SCOTT L | | | $0.00 | 81279 | 4229098 |
| 9 | 04/29/2008 | DECREE | Divorce Decree/Legal Separation | FIECHTNER, SCOTT | FIECHTNER, SCOTT | | | $0.00 | 81181 | 4228332 |
| 10 | 09/19/2006 | WD | Warranty Deed | DAVIS, CHRISTIAN P | FIECHTNER, SCOTT | | | $282,500.00 | 64038 | 4182210 |
| 11 | 10/11/2002 | WD | Warranty Deed | CEDARHOME CONSTRUCTION LLC, | DAVIS, CHRISTIAN P | | | $169,000.00 | 24146 | 4064391 |
| 12 | 05/28/2002 | WD | Warranty Deed | TR CAMANO INC, | CEDARHOME CONSTRUCTION LLC, | | | $44,000.00 | 22012 | 4021337 |
| 13 | 04/24/1998 | ESTSEPPROP | Establish Separate Property | TR CAMANO INC, | TR CAMANO INC, | | | $0.00 | 91397 | 99009254 |
| 14 | 04/24/1998 | QCD | Quit Claim Deed | Unknown | TR CAMANO INC, | | | $3,162.00 | 81503 | 98008222 |