Property
Account |
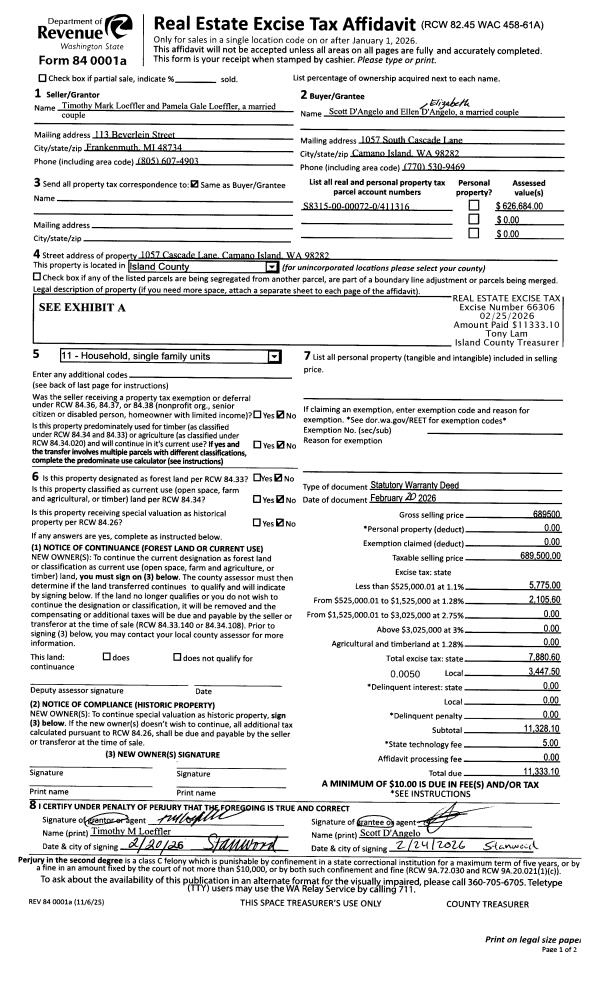
| Property ID: | 411316 | Abbreviated Legal Description: | THUNDER RIDGE 1 LOT 72 |
| Geographic ID: | S8315-00-00072-0 | Agent Code: | |
| Type: | Real | | |
| Tax Area: | 510 - APPRAISER-Stan/Cam Schl Dist, improved & 1 acre or less | Land Use Code | 11 |
| Open Space: | N | DFL | N |
| Historic Property: | N | Remodel Property: | N |
| Multi-Family Redevelopment: | N | | |
| Township: | | Section: | |
| Range: | |
Location |
| Address: | 1057 CASCADE LN CAMANO ISLAND, WA 98282 | Mapsco: | |
| Neighborhood: | Cycle 5 | Map ID: | 927 |
| Neighborhood CD: | 5 |
Owner |
| Name: | LOEFFLER, TIMOTHY MARK | Owner ID: | 293718 |
| Mailing Address: | PAMELA GALE LOEFFLER 1057 CASCADE LN CAMANO ISLAND, WA 98282 | % Ownership: | 100.0000000000% |
| | | Exemptions: | |
Taxes and Assessment Details
Values
| (+) Improvement Homesite Value: | + | $0 | |
| (+) Improvement Non-Homesite Value: | + | $396,684 | |
| (+) Land Homesite Value: | + | $0 | |
| (+) Land Non-Homesite Value: | + | $230,000 | |
| (+) Curr Use (HS): | + | $0 | $0 |
| (+) Curr Use (NHS): | + | $0 | $0 |
| | | -------------------------- | |
| (=) Market Value: | = | $626,684 | |
| (–) Productivity Loss: | – | $0 | |
| | | -------------------------- | |
| (=) Subtotal: | = | $626,684 | |
| (+) Senior Appraised Value: | + | $0 | |
| (+) Non-Senior Appraised Value: | + | $626,684 | |
| | | -------------------------- | |
| (=) Total Appraised Value: | = | $626,684 | |
| (–) Senior Exemption Loss: | – | $0 | |
| (–) Exemption Loss: | – | $0 | |
| | | -------------------------- | |
| (=) Taxable Value: | = | $626,684 | |
Taxing Jurisdiction
| Owner: | LOEFFLER, TIMOTHY MARK | | |
| % Ownership: | 100.0000000000% | | |
| Total Value: | $626,684 | | |
| Tax Area: | 510 - APPRAISER-Stan/Cam Schl Dist, improved & 1 acre or less |
| CF | Conservation Futures | 0.0313996660 | $626,684 | $626,684 | $19.68 | | |
| EMS1 | Fire & Rescue Dist #1 Camano GEN (EMS) | 0.4998471806 | $626,684 | $626,684 | $313.25 | | |
| FIRE1 | Fire & Rescue Dist #1 Camano GEN | 1.2496603404 | $626,684 | $626,684 | $783.14 | | |
| FIRE1BOND | Fire & Rescue Dist #1 Camano BOND | 0.1630371212 | $626,684 | $626,684 | $102.17 | | |
| CE | County Current Expense | 0.3674210519 | $626,684 | $626,684 | $230.26 | | |
| CR | County Roads | 0.4614296361 | $626,684 | $626,684 | $289.17 | | |
| LIB | Library Sno-Isle GEN | 0.3039084203 | $626,684 | $626,684 | $190.45 | | |
| SCH205_401 | School 205-401 Enrichment | 1.3697998934 | $626,684 | $626,684 | $858.43 | | |
| SCH205BOND | School 205-401 BOND | 0.9354199323 | $626,684 | $626,684 | $586.21 | | |
| ST | State School | 1.4761226122 | $626,684 | $626,684 | $925.06 | | |
| ST2 | State School Part 2 | 0.7953803475 | $626,684 | $626,684 | $498.45 | | |
| | Total Tax Rate: | 7.6534262019 | | | | | |
| | | | | Taxes w/Current Exemptions: | $4,796.27 | | |
| | | | | Taxes w/o Exemptions: | $4,796.27 | | |
Improvement / Building
| Improvement #1: | RESIDENTIAL | State Code: | Y | 2090.0 sqft | Value: | $396,684 |
| Bathrooms: | 3 | Bedrooms: | 3 | | Ceiling: | DRYWALL PAINTED | Exterior Wall/Cover: | CEMENT FIBER | | Floor Covering: | HARDWOOD/CARP 60-40 | Floor Structure: | WOOD W/SUBFLOOR | | Foundation: | CONCRETE | Heating: | FHA GAS | | Interior Finish: | DRYWALL PAINT | Plumbing Fixture Cnt: | 11 | | Roof Slope: | 5" IN 12" | Roof Structure/Cover: | CJ ASPHALT |
|
| | Type | Description | Class CD | Sub Class CD | Year Built | Area |
| | BAS | BASE/MAIN FLOOR | 4 | 0 | 2006 | 901.0 |
| | BIG | BUILT IN GARAGE | 4 | 0 | 2006 | 441.0 |
| | UPS | UPPER STORY | 4 | 0 | 2006 | 1189.0 |
| | OWP | OPEN WOOD PORCH W/STEPS | 4 | 0 | 2006 | 80.0 |
| | OWP | OPEN WOOD PORCH W/STEPS | 4 | 0 | 2006 | 128.0 |
| | OWC | OPEN WOOD PORCH W/STEPS/ROOF/C | 4 | 0 | 2006 | 114.0 |
Sketch
Property Image
Land
| 1 | 14 | SQ (08001-12000) | 0.0000 | 0.00 | 0.00 | 0.00 | 1.00 | $230,000 | $0 |
Roll Value History
| 2026 | N/A | N/A | N/A | N/A | N/A |
| 2025 | $396,684 | $230,000 | $0 | $626,684 | $626,684 |
| 2024 | $401,338 | $210,000 | $0 | $611,338 | $611,338 |
| 2023 | $405,992 | $230,000 | $0 | $635,992 | $635,992 |
| 2022 | $371,831 | $200,000 | $0 | $571,831 | $571,831 |
| 2021 | $326,993 | $140,000 | $0 | $466,993 | $466,993 |
| 2020 | $271,544 | $125,000 | $0 | $396,544 | $396,544 |
| 2019 | $207,821 | $190,000 | $0 | $397,821 | $397,821 |
| 2018 | $208,403 | $145,000 | $0 | $353,403 | $353,403 |
| 2017 | $209,568 | $90,000 | $0 | $299,568 | $299,568 |
| 2016 | $211,896 | $65,000 | $0 | $276,896 | $276,896 |
| 2015 | $201,636 | $45,000 | $0 | $246,636 | $246,636 |
| 2014 | $203,839 | $45,000 | $0 | $248,839 | $248,839 |
| 2013 | $206,045 | $45,000 | $0 | $251,045 | $251,045 |
| 2012 | $208,249 | $56,000 | $0 | $264,249 | $264,249 |
| 2011 | $210,451 | $56,000 | $0 | $266,451 | $266,451 |
| 2010 | $218,992 | $56,000 | $0 | $274,992 | $274,992 |
| 2009 | $242,714 | $95,000 | $0 | $337,714 | $337,714 |
| 2008 | $245,629 | $105,000 | $0 | $350,629 | $350,629 |
| 2007 | $246,134 | $105,000 | $0 | $351,134 | $351,134 |
Deed and Sales History
| 1 | 02/26/2020 | WD | Warranty Deed | WESTERMAN, COREY M | LOEFFLER, TIMOTHY MARK | | | $449,500.00 | 42352 | 4482807 |
| 2 | 03/02/2010 | WD | Warranty Deed | RZECHULA, TODD A | WESTERMAN, COREY M | | | $283,000.00 | 520 | 4269848 |
| 3 | 01/30/2006 | 5 | DNU - Marriage License/Name Change | TARCON CONSTRUCTION, | RZECHULA, TODD A | | | $0.00 | 60422 | 4161207 |
| 4 | 11/09/2005 | WD | Warranty Deed | TAYLOR, JAMES R | TARCON CONSTRUCTION, | | | $33,000.00 | 55724 | 4154073 |
| 5 | 08/19/1998 | OTHER | Other - Misc. Documents | COOK, STEVEN J | TAYLOR, JAMES R | | | $0.00 | 68106 | 98017127 |
| 6 | 11/01/1994 | QCD | Quit Claim Deed | COOK, STEVEN J | COOK, STEVEN J | | | $0.00 | 44852 | 94025327 |
| 7 | 02/01/1979 | OTHER | Other - Misc. Documents | Unknown | COOK, STEVEN J | | | $4,500.00 | 90739 | 347732 |
Payout Agreement
| No payout information available.. |