Property
Account |
| Property ID: | 41154 | Abbreviated Legal Description: | 6 - IN SW NW DESC: BG SWCR NW SEC 34 S88*E1293.95' ALG SLN NW TO WLN HELLER RD N1*E668' TPB N1*E100' N88*W 230' S1*W100' S88*E230' TPB TGW N20' OF N/2 SW NW DESC: BG W/4 CR SEC 34 S88*E1063 .95' N1*E334' TPB N1*E334' S88*E230' TO WLN HELLER RD S1*W334' N8 |
| Geographic ID: | R13334-335-1180 | Agent Code: | |
| Type: | Real | | |
| Tax Area: | 100 - APPRAISER-OH Schl Dist, in OH | Land Use Code | 11 |
| Open Space: | N | DFL | N |
| Historic Property: | N | Remodel Property: | N |
| Multi-Family Redevelopment: | N | | |
| Township: | 33 | Section: | 34 |
| Range: | R1 |
Location |
| Address: | 901 NW HELLER ST OAK HARBOR, WA 98277 | Mapsco: | |
| Neighborhood: | Oak Harbor NorthWest City Limits Residential | Map ID: | 254 |
| Neighborhood CD: | 1OHNWR |
Owner |
| Name: | ADAMS, ABSHIER | Owner ID: | 315648 |
| Mailing Address: | JULIEN ADAMS 1308 BAKER COURT OAK HARBOR, WA 98277 | % Ownership: | 100.0000000000% |
| | | Exemptions: | |
Taxes and Assessment Details
Values
| (+) Improvement Homesite Value: | + | N/A | |
| (+) Improvement Non-Homesite Value: | + | N/A | |
| (+) Land Homesite Value: | + | N/A | |
| (+) Land Non-Homesite Value: | + | N/A | Ag / Timber Use Value |
| (+) Curr Use (HS): | + | N/A | N/A |
| (+) Curr Use (NHS): | + | N/A | N/A |
| | | -------------------------- | |
| (=) Market Value: | = | N/A | |
| (–) Productivity Loss: | – | N/A | |
| | | -------------------------- | |
| (=) Subtotal: | = | N/A | |
| (+) Senior Appraised Value: | + | N/A | |
| (+) Non-Senior Appraised Value: | + | N/A | |
| | | -------------------------- | |
| (=) Total Appraised Value: | = | N/A | |
| (–) Senior Exemption Loss: | – | N/A | |
| (–) Exemption Loss: | – | N/A | |
| | | -------------------------- | |
| (=) Taxable Value: | = | N/A | |
Taxing Jurisdiction
| Owner: | ADAMS, ABSHIER | | |
| % Ownership: | 100.0000000000% | | |
| Total Value: | N/A | | |
| Tax Area: | 100 - APPRAISER-OH Schl Dist, in OH |
| CF | Conservation Futures | N/A | N/A | N/A | N/A | | |
| WCD | Whidbey Conservation District | N/A | N/A | N/A | N/A | | |
| CEM1 | Cemetery #1 | N/A | N/A | N/A | N/A | | |
| COH | City of Oak Harbor | N/A | N/A | N/A | N/A | | |
| HOBOND | Hospital BOND | N/A | N/A | N/A | N/A | | |
| HOGEN | Hospital GEN | N/A | N/A | N/A | N/A | | |
| CE | County Current Expense | N/A | N/A | N/A | N/A | | |
| ISLANDEMS | Hospital GEN (EMS) | N/A | N/A | N/A | N/A | | |
| LIB | Library Sno-Isle GEN | N/A | N/A | N/A | N/A | | |
| NWHIDPRMT | P & R N Whidbey GEN | N/A | N/A | N/A | N/A | | |
| SCH201MO | School 201 Enrichment | N/A | N/A | N/A | N/A | | |
| ST | State School | N/A | N/A | N/A | N/A | | |
| ST2 | State School Part 2 | N/A | N/A | N/A | N/A | | |
| | Total Tax Rate: | N/A | | | | | |
| | | | | Taxes w/Current Exemptions: | N/A | | |
| | | | | Taxes w/o Exemptions: | N/A | | |
Improvement / Building
| Improvement #1: | RESIDENTIAL | State Code: | Y | 2588.6 sqft | Value: | N/A |
| Bathrooms: | 2.5 | Bedrooms: | 3 | | Ceiling: | DRYWALL PAINTED | Cooling: | HEAT PUMP/CONV/V | | Exterior Wall/Cover: | WOOD SIDING | Floor Covering: | SOFTWOOD 100% | | Floor Structure: | WOOD W/SUBFLOOR | Foundation: | CONCRETE BLOCKS | | Interior Finish: | DRYWALL PAINT | Plumbing Fixture Cnt: | 11 | | Roof Slope: | 8" IN 12" | Roof Structure/Cover: | CJ ASPHALT |
|
| | Type | Description | Class CD | Sub Class CD | Year Built | Area |
| | BAS | BASE/MAIN FLOOR | 3 | 0 | 1975 | 1792.4 |
| | OP1 | OPEN PORCH SLAB | 3 | 0 | 1975 | 355.0 |
| | DGR | DETACHED GARAGE | 3 | 0 | 1975 | 624.0 |
| | UPS | UPPER STORY | 3 | 0 | 1975 | 508.2 |
| | OWP | OPEN WOOD PORCH W/STEPS | 3 | 0 | 1975 | 408.0 |
| | OP4 | OPEN PORCH W/CEILING-ROOF | 3 | 0 | 1975 | 198.0 |
| | OWC | OPEN WOOD PORCH W/STEPS/ROOF/C | 3 | 0 | 1975 | 108.6 |
| | LOF | LOFT | 3 | 0 | 1975 | 288.0 |
Sketch
Property Image
Land
| 1 | HS | HOMESITE | 0.6200 | 27007.20 | 0.00 | 0.00 | 1.00 | N/A | N/A |
Roll Value History
| 2026 | N/A | N/A | N/A | N/A | N/A |
| 2025 | $370,961 | $220,000 | $0 | $590,961 | $590,961 |
| 2024 | $368,687 | $200,000 | $0 | $568,687 | $568,687 |
| 2023 | $373,282 | $200,000 | $0 | $573,282 | $573,282 |
| 2022 | $335,348 | $180,000 | $0 | $515,348 | $515,348 |
| 2021 | $295,424 | $135,000 | $0 | $430,424 | $430,424 |
| 2020 | $289,121 | $100,000 | $0 | $389,121 | $389,121 |
| 2019 | $228,494 | $160,000 | $0 | $388,494 | $388,494 |
| 2018 | $195,096 | $130,000 | $0 | $325,096 | $325,096 |
| 2017 | $171,268 | $110,000 | $0 | $281,268 | $281,268 |
| 2016 | $173,988 | $90,000 | $0 | $263,988 | $263,988 |
| 2015 | $176,705 | $70,000 | $0 | $246,705 | $246,705 |
| 2014 | $179,424 | $55,000 | $0 | $234,424 | $234,424 |
| 2013 | $182,141 | $55,000 | $0 | $237,141 | $237,141 |
| 2012 | $184,861 | $65,000 | $0 | $249,861 | $249,861 |
| 2011 | $181,766 | $65,000 | $0 | $246,766 | $246,766 |
| 2010 | $196,738 | $65,000 | $0 | $261,738 | $261,738 |
| 2009 | $205,582 | $76,775 | $0 | $282,357 | $282,357 |
| 2008 | $208,590 | $92,500 | $0 | $301,090 | $301,090 |
| 2007 | $211,613 | $92,500 | $0 | $304,113 | $304,113 |
Deed and Sales History
| 1 | 02/27/2025 | WD | Warranty Deed | SNYDER, JACKSON G | ADAMS, ABSHIER | | | $644,900.00 | 62709 | 4582836 |
|   | |
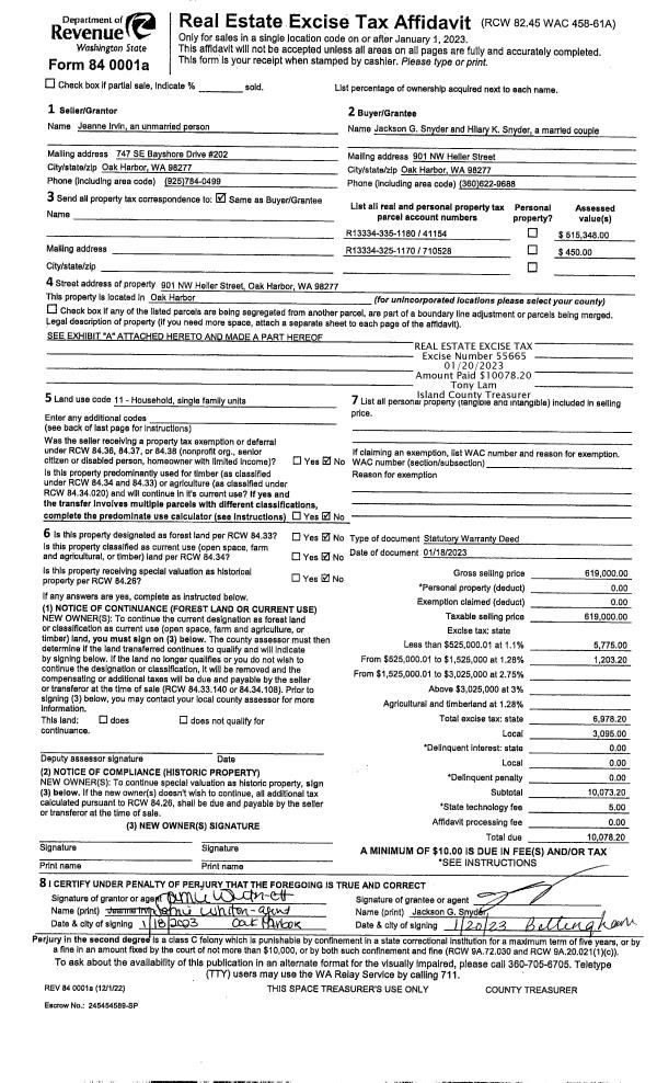
| 2 | 01/18/2023 | WD | Warranty Deed | IRVIN, JEANNE | SNYDER, JACKSON G | | | $619,000.00 | 55665 | 4555897 |
|   | |
| 3 | 09/28/2018 | WD | Warranty Deed | STONEMAN, HARRY E | IRVIN, JEANNE | | | $408,000.00 | 36176 | 4452926 |
|   | |
| 4 | 10/07/2002 | WD | Warranty Deed | Unknown | STONEMAN, HARRY E | | | $220,313.00 | 24101 | 4034155 |
| 5 | 10/07/2002 | WD | Warranty Deed | STONEMAN, HARRY E | STONEMAN, HARRY E | | | $0.00 | 30031 | 4043033 |
| 6 | 06/01/1991 | WD | Warranty Deed | BROWN, HARRY P | JOHNSON, GORDON H | | | $155,000.00 | 12012 | 91008566 |
| 7 | 11/01/1990 | OTHER | Other - Misc. Documents | BROWN, HARRY P | BROWN, HARRY P | | | $0.00 | 63967 | 90021310 |
| 8 | 01/01/1900 | OTHER | Other - Misc. Documents | Unknown | BROWN, HARRY P | | | $0.00 | 0 | 0 |
Payout Agreement
| No payout information available.. |