Property
Account |
| Property ID: | 412217 | Abbreviated Legal Description: | THUNDER RIDGE 2 LOT 69 |
| Geographic ID: | S8315-02-00069-0 | Agent Code: | |
| Type: | Real | | |
| Tax Area: | 510 - APPRAISER-Stan/Cam Schl Dist, improved & 1 acre or less | Land Use Code | 11 |
| Open Space: | N | DFL | N |
| Historic Property: | N | Remodel Property: | N |
| Multi-Family Redevelopment: | N | | |
| Township: | | Section: | |
| Range: | |
Location |
| Address: | 1176 ROLLING DR CAMANO ISLAND, WA 98282 | Mapsco: | |
| Neighborhood: | Cycle 5 | Map ID: | 478 |
| Neighborhood CD: | 5 |
Owner |
| Name: | HIGGINS, MICHAEL K | Owner ID: | 299771 |
| Mailing Address: | SHIRLEY J HIGGINS 1176 ROLLING DR CAMANO ISLAND, WA 98282 | % Ownership: | 100.0000000000% |
| | | Exemptions: | |
Taxes and Assessment Details
Values
| (+) Improvement Homesite Value: | + | $0 | |
| (+) Improvement Non-Homesite Value: | + | $534,147 | |
| (+) Land Homesite Value: | + | $0 | |
| (+) Land Non-Homesite Value: | + | $250,000 | |
| (+) Curr Use (HS): | + | $0 | $0 |
| (+) Curr Use (NHS): | + | $0 | $0 |
| | | -------------------------- | |
| (=) Market Value: | = | $784,147 | |
| (–) Productivity Loss: | – | $0 | |
| | | -------------------------- | |
| (=) Subtotal: | = | $784,147 | |
| (+) Senior Appraised Value: | + | $0 | |
| (+) Non-Senior Appraised Value: | + | $784,147 | |
| | | -------------------------- | |
| (=) Total Appraised Value: | = | $784,147 | |
| (–) Senior Exemption Loss: | – | $0 | |
| (–) Exemption Loss: | – | $0 | |
| | | -------------------------- | |
| (=) Taxable Value: | = | $784,147 | |
Taxing Jurisdiction
| Owner: | HIGGINS, MICHAEL K | | |
| % Ownership: | 100.0000000000% | | |
| Total Value: | $784,147 | | |
| Tax Area: | 510 - APPRAISER-Stan/Cam Schl Dist, improved & 1 acre or less |
| CF | Conservation Futures | 0.0313996660 | $784,147 | $784,147 | $24.62 | | |
| EMS1 | Fire & Rescue Dist #1 Camano GEN (EMS) | 0.4998471806 | $784,147 | $784,147 | $391.95 | | |
| FIRE1 | Fire & Rescue Dist #1 Camano GEN | 1.2496603404 | $784,147 | $784,147 | $979.92 | | |
| FIRE1BOND | Fire & Rescue Dist #1 Camano BOND | 0.1630371212 | $784,147 | $784,147 | $127.85 | | |
| CE | County Current Expense | 0.3674210519 | $784,147 | $784,147 | $288.11 | | |
| CR | County Roads | 0.4614296361 | $784,147 | $784,147 | $361.83 | | |
| LIB | Library Sno-Isle GEN | 0.3039084203 | $784,147 | $784,147 | $238.31 | | |
| SCH205_401 | School 205-401 Enrichment | 1.3697998934 | $784,147 | $784,147 | $1,074.12 | | |
| SCH205BOND | School 205-401 BOND | 0.9354199323 | $784,147 | $784,147 | $733.51 | | |
| ST | State School | 1.4761226122 | $784,147 | $784,147 | $1,157.50 | | |
| ST2 | State School Part 2 | 0.7953803475 | $784,147 | $784,147 | $623.70 | | |
| | Total Tax Rate: | 7.6534262019 | | | | | |
| | | | | Taxes w/Current Exemptions: | $6,001.42 | | |
| | | | | Taxes w/o Exemptions: | $6,001.42 | | |
Improvement / Building
| Improvement #1: | RESIDENTIAL | State Code: | Y | 2933.2 sqft | Value: | $534,147 |
| Bathrooms: | 3 | Bedrooms: | 3 | | Ceiling: | DRYWALL PAINTED | Exterior Wall/Cover: | CEMENT FIBER | | Floor Covering: | HARDWOOD/CARP 20-80 | Floor Structure: | WOOD W/SUBFLOOR | | Foundation: | CONCRETE | Heating: | FHA GAS | | Interior Finish: | DRYWALL PAINT | Plumbing Fixture Cnt: | 15 | | Roof Slope: | 4" IN 12" | Roof Structure/Cover: | CJ ASPHALT |
|
| | Type | Description | Class CD | Sub Class CD | Year Built | Area |
| | BAS | BASE/MAIN FLOOR | 4 | 0 | 2005 | 1204.8 |
| | AGR | ATTACHED GARAGE | 4 | 0 | 2005 | 324.0 |
| | BIG | BUILT IN GARAGE | 4 | 0 | 2005 | 486.0 |
| | UPS | UPPER STORY | 4 | 0 | 2005 | 1728.4 |
| | OWP | OPEN WOOD PORCH W/STEPS | 4 | 0 | 2005 | 40.0 |
| | OWR | OPEN WOOD PORCH W/STEPS/ROOF | 4 | 0 | 2005 | 30.0 |
| | OWR | OPEN WOOD PORCH W/STEPS/ROOF | 4 | 0 | 2005 | 39.0 |
| | OWC | OPEN WOOD PORCH W/STEPS/ROOF/C | 4 | 0 | 2005 | 130.0 |
Sketch
Property Image
Land
| 1 | 14 | SQ (08001-12000) | 0.0000 | 0.00 | 0.00 | 0.00 | 1.00 | $250,000 | $0 |
Roll Value History
| 2026 | N/A | N/A | N/A | N/A | N/A |
| 2025 | $534,147 | $250,000 | $0 | $784,147 | $784,147 |
| 2024 | $540,267 | $250,000 | $0 | $790,267 | $790,267 |
| 2023 | $546,389 | $250,000 | $0 | $796,389 | $796,389 |
| 2022 | $498,934 | $220,000 | $0 | $718,934 | $718,934 |
| 2021 | $406,122 | $140,000 | $0 | $546,122 | $546,122 |
| 2020 | $395,821 | $125,000 | $0 | $520,821 | $520,821 |
| 2019 | $307,869 | $190,000 | $0 | $497,869 | $497,869 |
| 2018 | $308,761 | $145,000 | $0 | $453,761 | $453,761 |
| 2017 | $310,076 | $120,000 | $0 | $430,076 | $430,076 |
| 2016 | $287,720 | $80,000 | $0 | $367,720 | $367,720 |
| 2015 | $270,259 | $45,000 | $0 | $315,259 | $315,259 |
| 2014 | $273,283 | $45,000 | $0 | $318,283 | $318,283 |
| 2013 | $276,306 | $45,000 | $0 | $321,306 | $321,306 |
| 2012 | $279,332 | $56,000 | $0 | $335,332 | $335,332 |
| 2011 | $282,355 | $56,000 | $0 | $338,355 | $338,355 |
| 2010 | $287,365 | $56,000 | $0 | $343,365 | $343,365 |
| 2009 | $304,266 | $95,000 | $0 | $399,266 | $399,266 |
| 2008 | $307,589 | $105,000 | $0 | $412,589 | $412,589 |
| 2007 | $310,883 | $105,000 | $0 | $415,883 | $415,883 |
Deed and Sales History
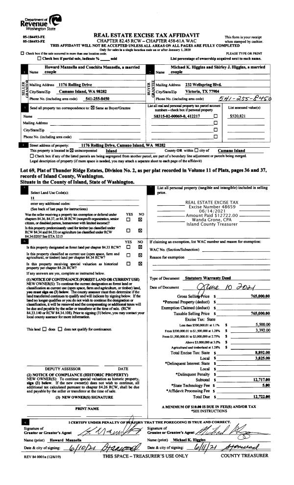
| 1 | 06/10/2021 | WD | Warranty Deed | MANNELLA, HOWARD | HIGGINS, MICHAEL K | | | $765,000.00 | 48659 | 4521778 |
| 2 | 03/20/2017 | WD | Warranty Deed | SIMSHAUSER TRUSTEE, DUANE K | MANNELLA, HOWARD | | | $458,000.00 | 28542 | 4419339 |
| 3 | 04/11/2005 | WD | Warranty Deed | KOCH, CRAIG | SIMSHAUSER TRUSTEE, DUANE K | | | $399,950.00 | 51555 | 4131228 |
| 4 | 06/11/2004 | WD | Warranty Deed | CRAIG, MICHAEL D | KOCH, CRAIG | | | $70,157.00 | 42565 | 4103663 |
| 5 | 10/26/1999 | QCD | Quit Claim Deed | CRAIG, MICHAEL D | CRAIG, MICHAEL D | | | $0.00 | 94456 | 99024297 |
| 6 | 09/27/1999 | QCD | Quit Claim Deed | CRAIG, MICHAEL D | CRAIG, MICHAEL D | | | $0.00 | 94041 | 99022389 |
| 7 | 08/05/1999 | ESTSEPPROP | Establish Separate Property | CRAIG, MICHAEL D | CRAIG, MICHAEL D | | | $0.00 | 93249 | 99018773 |
| 8 | 01/27/1999 | ESTSEPPROP | Establish Separate Property | CRAIG, MICHAEL D | CRAIG, MICHAEL D | | | $0.00 | 90399 | 99002508 |
| 9 | 11/01/1991 | QCD | Quit Claim Deed | CRAIG, WALTER B | CRAIG, MICHAEL D | | | $0.00 | 20936 | 92004763 |
| 10 | 05/01/1983 | TTAXD | Treasurer's Tax Deed | SMITH, THOMAS M | CRAIG, WALTER B | | | $0.00 | 60014 | 409527 |
| 11 | 01/01/1900 | OTHER | Other - Misc. Documents | Unknown | SMITH, THOMAS M | | | $0.00 | 0 | 0 |
Payout Agreement
| No payout information available.. |