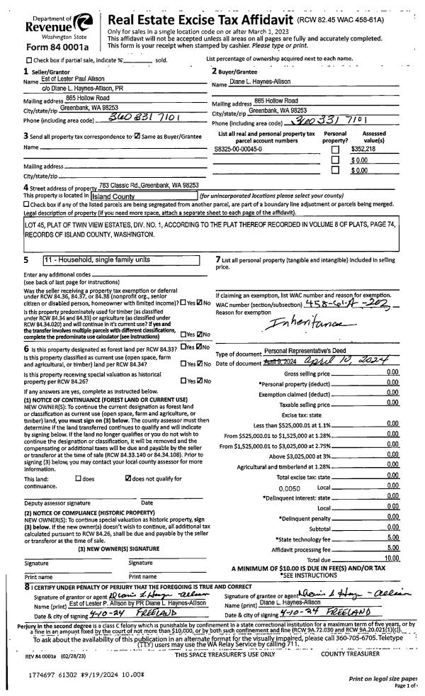
Property
Account |
| Property ID: | 413298 | Abbreviated Legal Description: | TWIN VW LOT 45 |
| Geographic ID: | S8325-00-00045-0 | Agent Code: | |
| Type: | Real | | |
| Tax Area: | 312 - APPRAISER-Cpvl Schl Dist, outside Cpvl, improved, greater than 1 acre | Land Use Code | 11 |
| Open Space: | N | DFL | N |
| Historic Property: | N | Remodel Property: | N |
| Multi-Family Redevelopment: | N | | |
| Township: | | Section: | |
| Range: | |
Location |
| Address: | 783 CLASSIC RD GREENBANK, WA 98253 | Mapsco: | |
| Neighborhood: | Cycle 3 | Map ID: | 428 |
| Neighborhood CD: | 3 |
Owner |
| Name: | HAYNES-ALLISON, DIANE L | Owner ID: | 313922 |
| Mailing Address: | 865 HOLLOW RD GREENBANK, WA 98253 | % Ownership: | 100.0000000000% |
| | | Exemptions: | |
Taxes and Assessment Details
Values
| (+) Improvement Homesite Value: | + | $0 | |
| (+) Improvement Non-Homesite Value: | + | $109,732 | |
| (+) Land Homesite Value: | + | $0 | |
| (+) Land Non-Homesite Value: | + | $310,000 | |
| (+) Curr Use (HS): | + | $0 | $0 |
| (+) Curr Use (NHS): | + | $0 | $0 |
| | | -------------------------- | |
| (=) Market Value: | = | $419,732 | |
| (–) Productivity Loss: | – | $0 | |
| | | -------------------------- | |
| (=) Subtotal: | = | $419,732 | |
| (+) Senior Appraised Value: | + | $0 | |
| (+) Non-Senior Appraised Value: | + | $419,732 | |
| | | -------------------------- | |
| (=) Total Appraised Value: | = | $419,732 | |
| (–) Senior Exemption Loss: | – | $0 | |
| (–) Exemption Loss: | – | $0 | |
| | | -------------------------- | |
| (=) Taxable Value: | = | $419,732 | |
Taxing Jurisdiction
| Owner: | HAYNES-ALLISON, DIANE L | | |
| % Ownership: | 100.0000000000% | | |
| Total Value: | $419,732 | | |
| Tax Area: | 312 - APPRAISER-Cpvl Schl Dist, outside Cpvl, improved, greater than 1 acre |
| CF | Conservation Futures | 0.0313996660 | $419,732 | $419,732 | $13.18 | | |
| CEM2 | Cemetery #2 | 0.0092609791 | $419,732 | $419,732 | $3.89 | | |
| FIRE5 | Fire & Rescue Dist #5 C Whidbey GEN | 1.1892169230 | $419,732 | $419,732 | $499.15 | | |
| FIRE5BOND | Fire & Rescue Dist #5 C Whidbey BOND | 0.1394359503 | $419,732 | $419,732 | $58.53 | | |
| HOBOND | Hospital BOND | 0.1893405597 | $419,732 | $419,732 | $79.47 | | |
| HOGEN | Hospital GEN | 0.3848777722 | $419,732 | $419,732 | $161.55 | | |
| CE | County Current Expense | 0.3674210519 | $419,732 | $419,732 | $154.22 | | |
| CR | County Roads | 0.4614296361 | $419,732 | $419,732 | $193.68 | | |
| ISLANDEMS | Hospital GEN (EMS) | 0.4952018576 | $419,732 | $419,732 | $207.85 | | |
| LIB | Library Sno-Isle GEN | 0.3039084203 | $419,732 | $419,732 | $127.56 | | |
| LIBCAP | Library Sno-Isle BOND (Cap Fac Imp Area) | 0.0528562629 | $419,732 | $419,732 | $22.19 | | |
| POCOUP | Port of Coupeville GEN | 0.1065226063 | $419,732 | $419,732 | $44.71 | | |
| POCOUPIDD | Port of Coupeville IDD | 0.3353038577 | $419,732 | $419,732 | $140.74 | | |
| COUPSDTECH | School 204 CP (TECH) | 0.1215123397 | $419,732 | $419,732 | $51.00 | | |
| SCH204MO | School 204 Enrichment | 0.6416662518 | $419,732 | $419,732 | $269.33 | | |
| ST | State School | 1.4761226122 | $419,732 | $419,732 | $619.58 | | |
| ST2 | State School Part 2 | 0.7953803475 | $419,732 | $419,732 | $333.85 | | |
| | Total Tax Rate: | 7.1008570943 | | | | | |
| | | | | Taxes w/Current Exemptions: | $2,980.48 | | |
| | | | | Taxes w/o Exemptions: | $2,980.48 | | |
Improvement / Building
| Improvement #1: | MANUFACTURED HOME | State Code: | Y | 1550.0 sqft | Value: | $109,732 |
| Bathrooms: | 0 | Bedrooms: | 0 | | Ceiling: | PLASTER PAINTED | Exterior Wall/Cover: | VINYL | | Floor Covering: | CARPET 100% | Floor Structure: | SLAB ON GRADE | | Foundation: | SLAB | Heating: | FHA GAS | | Interior Finish: | PLASTER | Plumbing Fixture Cnt: | 1 | | Roof Slope: | FLAT | Roof Structure/Cover: | CJ ALUMINIUM HEAVY |
|
| | Type | Description | Class CD | Sub Class CD | Year Built | Area |
| | BAS | BASE/MAIN FLOOR | 4 | 0 | 1998 | 1550.0 |
| | OWP | OPEN WOOD PORCH W/STEPS | 3 | 0 | 1998 | 44.0 |
| | OWP | OPEN WOOD PORCH W/STEPS | 3 | 0 | 1998 | 200.0 |
| | UTY | STORAGE/UTILITY | 3 | 0 | 1998 | 280.0 |
Sketch
Property Image
Land
| 1 | 18 | AC (02.01-03.00) | 2.0000 | 87120.00 | 0.00 | 0.00 | 1.00 | $310,000 | $0 |
Roll Value History
| 2026 | N/A | N/A | N/A | N/A | N/A |
| 2025 | $109,732 | $310,000 | $0 | $419,732 | $419,732 |
| 2024 | $112,959 | $270,000 | $0 | $382,959 | $382,959 |
| 2023 | $102,218 | $250,000 | $0 | $352,218 | $352,218 |
| 2022 | $93,835 | $240,000 | $0 | $333,835 | $333,835 |
| 2021 | $83,840 | $170,000 | $0 | $253,840 | $253,840 |
| 2020 | $83,561 | $130,000 | $0 | $213,561 | $213,561 |
| 2019 | $52,088 | $200,000 | $0 | $252,088 | $252,088 |
| 2018 | $53,480 | $155,000 | $0 | $208,480 | $208,480 |
| 2017 | $54,871 | $115,000 | $0 | $169,871 | $169,871 |
| 2016 | $55,567 | $120,000 | $0 | $175,567 | $175,567 |
| 2015 | $56,959 | $130,000 | $0 | $186,959 | $186,959 |
| 2014 | $58,351 | $110,000 | $0 | $168,351 | $168,351 |
| 2013 | $64,215 | $110,500 | $0 | $174,715 | $174,715 |
| 2012 | $65,607 | $110,500 | $0 | $176,107 | $176,107 |
| 2011 | $66,999 | $130,000 | $0 | $196,999 | $196,999 |
| 2010 | $62,327 | $130,000 | $0 | $192,327 | $192,327 |
| 2009 | $65,622 | $155,000 | $0 | $220,622 | $220,622 |
| 2008 | $67,173 | $110,000 | $0 | $177,173 | $177,173 |
| 2007 | $67,173 | $110,000 | $0 | $177,173 | $177,173 |
Deed and Sales History
| 1 | 04/10/2024 | PRD | Personal Representatives Deed | ALLISON, LESTER P | HAYNES-ALLISON, DIANE L | | | $0.00 | 61302 | 4577239 |
| 2 | 03/01/1997 | WD | Warranty Deed | MACDONALD, MYRON K | ALLISON, LESTER P | | | $32,500.00 | 70804 | 97003636 |
| 3 | 01/01/1900 | OTHER | Other - Misc. Documents | Unknown | MACDONALD, MYRON K | | | $0.00 | 0 | 0 |
Payout Agreement
| No payout information available.. |