Property
Account |
| Property ID: | 413378 | Abbreviated Legal Description: | TWIN VW LOT 53 |
| Geographic ID: | S8325-00-00053-0 | Agent Code: | |
| Type: | Real | | |
| Tax Area: | 312 - APPRAISER-Cpvl Schl Dist, outside Cpvl, improved, greater than 1 acre | Land Use Code | 11 |
| Open Space: | N | DFL | N |
| Historic Property: | N | Remodel Property: | N |
| Multi-Family Redevelopment: | N | | |
| Township: | | Section: | |
| Range: | |
Location |
| Address: | 824 CLASSIC RD GREENBANK, WA 98253 | Mapsco: | |
| Neighborhood: | Cycle 3 | Map ID: | 423 |
| Neighborhood CD: | 3 |
Owner |
| Name: | EUSTICE, ANNETTE L | Owner ID: | 315692 |
| Mailing Address: | 824 CLASSIC RD GREENBANK, WA 98253 | % Ownership: | 100.0000000000% |
| | | Exemptions: | |
Taxes and Assessment Details
Values
| (+) Improvement Homesite Value: | + | $0 | |
| (+) Improvement Non-Homesite Value: | + | $184,111 | |
| (+) Land Homesite Value: | + | $0 | |
| (+) Land Non-Homesite Value: | + | $350,000 | |
| (+) Curr Use (HS): | + | $0 | $0 |
| (+) Curr Use (NHS): | + | $0 | $0 |
| | | -------------------------- | |
| (=) Market Value: | = | $534,111 | |
| (–) Productivity Loss: | – | $0 | |
| | | -------------------------- | |
| (=) Subtotal: | = | $534,111 | |
| (+) Senior Appraised Value: | + | $0 | |
| (+) Non-Senior Appraised Value: | + | $534,111 | |
| | | -------------------------- | |
| (=) Total Appraised Value: | = | $534,111 | |
| (–) Senior Exemption Loss: | – | $0 | |
| (–) Exemption Loss: | – | $0 | |
| | | -------------------------- | |
| (=) Taxable Value: | = | $534,111 | |
Taxing Jurisdiction
| Owner: | EUSTICE, ANNETTE L | | |
| % Ownership: | 100.0000000000% | | |
| Total Value: | $534,111 | | |
| Tax Area: | 312 - APPRAISER-Cpvl Schl Dist, outside Cpvl, improved, greater than 1 acre |
| CF | Conservation Futures | 0.0313996660 | $534,111 | $534,111 | $16.77 | | |
| CEM2 | Cemetery #2 | 0.0092609791 | $534,111 | $534,111 | $4.95 | | |
| FIRE5 | Fire & Rescue Dist #5 C Whidbey GEN | 1.1892169230 | $534,111 | $534,111 | $635.17 | | |
| FIRE5BOND | Fire & Rescue Dist #5 C Whidbey BOND | 0.1394359503 | $534,111 | $534,111 | $74.47 | | |
| HOBOND | Hospital BOND | 0.1893405597 | $534,111 | $534,111 | $101.13 | | |
| HOGEN | Hospital GEN | 0.3848777722 | $534,111 | $534,111 | $205.57 | | |
| CE | County Current Expense | 0.3674210519 | $534,111 | $534,111 | $196.24 | | |
| CR | County Roads | 0.4614296361 | $534,111 | $534,111 | $246.45 | | |
| ISLANDEMS | Hospital GEN (EMS) | 0.4952018576 | $534,111 | $534,111 | $264.49 | | |
| LIB | Library Sno-Isle GEN | 0.3039084203 | $534,111 | $534,111 | $162.32 | | |
| LIBCAP | Library Sno-Isle BOND (Cap Fac Imp Area) | 0.0528562629 | $534,111 | $534,111 | $28.23 | | |
| POCOUP | Port of Coupeville GEN | 0.1065226063 | $534,111 | $534,111 | $56.89 | | |
| POCOUPIDD | Port of Coupeville IDD | 0.3353038577 | $534,111 | $534,111 | $179.09 | | |
| COUPSDTECH | School 204 CP (TECH) | 0.1215123397 | $534,111 | $534,111 | $64.90 | | |
| SCH204MO | School 204 Enrichment | 0.6416662518 | $534,111 | $534,111 | $342.72 | | |
| ST | State School | 1.4761226122 | $534,111 | $534,111 | $788.41 | | |
| ST2 | State School Part 2 | 0.7953803475 | $534,111 | $534,111 | $424.82 | | |
| | Total Tax Rate: | 7.1008570943 | | | | | |
| | | | | Taxes w/Current Exemptions: | $3,792.62 | | |
| | | | | Taxes w/o Exemptions: | $3,792.62 | | |
Improvement / Building
| Improvement #1: | MANUFACTURED HOME | State Code: | Y | 1080.0 sqft | Value: | $184,111 |
| Bathrooms: | 1 | Bedrooms: | 2 | | Ceiling: | PLASTER PAINTED | Cooling: | EVAP NO DUCT | | Exterior Wall/Cover: | VINYL | Floor Covering: | CARPET 100% | | Floor Structure: | SLAB ON GRADE | Foundation: | SLAB | | Heating: | FHA ELECTRIC | Interior Finish: | PLASTER | | Roof Slope: | FLAT | Roof Structure/Cover: | CJ ALUMINIUM HEAVY |
|
| | Type | Description | Class CD | Sub Class CD | Year Built | Area |
| | BAS | BASE/MAIN FLOOR | 4 | 0 | 2021 | 1080.0 |
| | OWP | OPEN WOOD PORCH W/STEPS | 4 | 0 | 2021 | 66.0 |
| | oGAR | GARAGE | 4 | 0 | 2022 | 864.0 |
Sketch
Property Image
Land
| 1 | 32 | AC (03.01-09.99) | 3.8600 | 0.00 | 0.00 | 0.00 | 1.00 | $350,000 | $0 |
Roll Value History
| 2026 | N/A | N/A | N/A | N/A | N/A |
| 2025 | $184,111 | $350,000 | $0 | $534,111 | $534,111 |
| 2024 | $164,569 | $340,000 | $0 | $504,569 | $504,569 |
| 2023 | $144,586 | $320,000 | $0 | $464,586 | $464,586 |
| 2022 | $132,249 | $260,000 | $0 | $392,249 | $392,249 |
| 2021 | $91,764 | $230,000 | $0 | $321,764 | $321,764 |
| 2020 | $0 | $90,000 | $0 | $90,000 | $90,000 |
| 2019 | $0 | $120,000 | $0 | $120,000 | $120,000 |
| 2018 | $0 | $85,000 | $0 | $85,000 | $85,000 |
| 2017 | $0 | $75,000 | $0 | $75,000 | $75,000 |
| 2016 | $0 | $100,000 | $0 | $100,000 | $100,000 |
| 2015 | $0 | $100,000 | $0 | $100,000 | $100,000 |
| 2014 | $0 | $100,000 | $0 | $100,000 | $100,000 |
| 2013 | $0 | $69,480 | $0 | $69,480 | $69,480 |
| 2012 | $0 | $69,480 | $0 | $69,480 | $69,480 |
| 2011 | $0 | $69,480 | $0 | $69,480 | $69,480 |
| 2010 | $0 | $69,480 | $0 | $69,480 | $69,480 |
| 2009 | $0 | $119,660 | $0 | $119,660 | $119,660 |
| 2008 | $0 | $115,800 | $0 | $115,800 | $115,800 |
| 2007 | $0 | $100,360 | $0 | $100,360 | $100,360 |
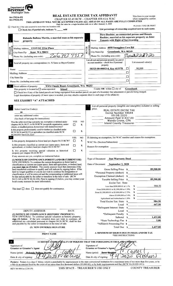
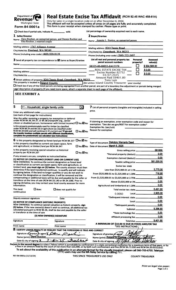
Deed and Sales History
| 1 | 03/06/2025 | WD | Warranty Deed | ROCHIER JTWROS, DAVE | EUSTICE, ANNETTE L | | | $581,000.00 | 62752 | 4583014 |
| 2 | 09/02/2020 | WD | Warranty Deed | MARTIN, ROLANDO BALLENA | ROCHIER JTWROS, DAVE | | | $89,500.00 | 44644 | 4495949 |
| 3 | 08/28/2018 | QCD | Quit Claim Deed | MARTIN, LIBORIO P | MARTIN, ROLANDO BALLENA | | | $0.00 | 35737 | 4451036 |
Payout Agreement
| No payout information available.. |