| 1 | 01/09/2025 | QCD | Quit Claim Deed | IDEAL PROPERTY INVESTMENTS, LLC | SIMPSON TTEE, DAMON PAUL | | | $917,500.00 | 62308 | 4581243 |
| 2 | 07/12/2020 | WD | Warranty Deed | STEVENS, BRADFORD LOUIS | IDEAL PROPERTY INVESTMENTS, LLC | | | $840,000.00 | 43799 | 4491294 |
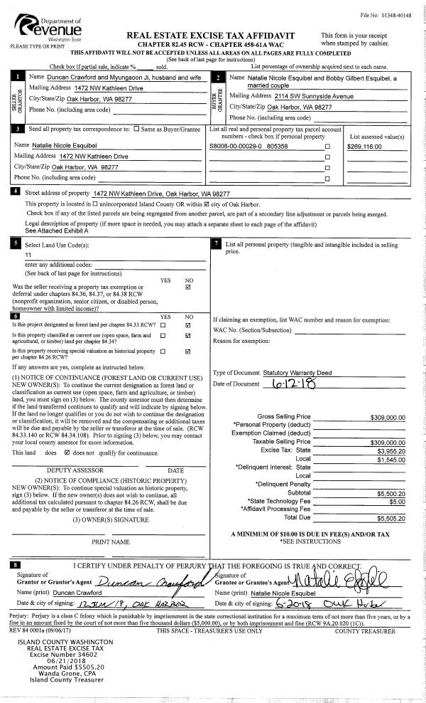
| 3 | 04/23/2018 | WD | Warranty Deed | PARKER TRUSTEE, MARY MARGARET | STEVENS, BRADFORD LOUIS | | | $724,000.00 | 33839 | 4443318 |
| 4 | 02/24/2014 | QCD | Quit Claim Deed | PARKER TRUSTEE, MARY MARGARET | PARKER TRUSTEE, MARY MARGARET | | | $0.00 | 15017 | 4358282 |
| 5 | 02/23/2011 | QCD | Quit Claim Deed | PARKER, MARY MARGARET | PARKER TRUSTEE, MARY MARGARET | | | $0.00 | 3811 | 4292008 |
| 6 | 08/28/2003 | WD | Warranty Deed | TANAKA, MUNEHIRO | PARKER, MARY MARGARET | | | $377,500.00 | 33859 | 4073141 |
| 7 | 09/23/1998 | WD | Warranty Deed | KRAHN, MARILYN L | TANAKA, MUNEHIRO | | | $235,000.00 | 83860 | 98020833 |
| 8 | 06/01/1996 | QCD | Quit Claim Deed | KRAHN, THOMAS E | KRAHN, MARILYN L | | | $0.00 | 62368 | 96011714 |
| 9 | 03/01/1992 | WD | Warranty Deed | LEISHMAN, GILBERT H | KRAHN, THOMAS E | | | $265,000.00 | 21454 | 92007048 |
| 10 | 04/01/1982 | TRUSTEED | Trustee's Deed | JACKSON, JERALD M | LEISHMAN, GILBERT H | | | $110,000.00 | 20794 | 394965 |
| 11 | 01/01/1900 | OTHER | Other - Misc. Documents | Unknown | JACKSON, JERALD M | | | $0.00 | 0 | 0 |