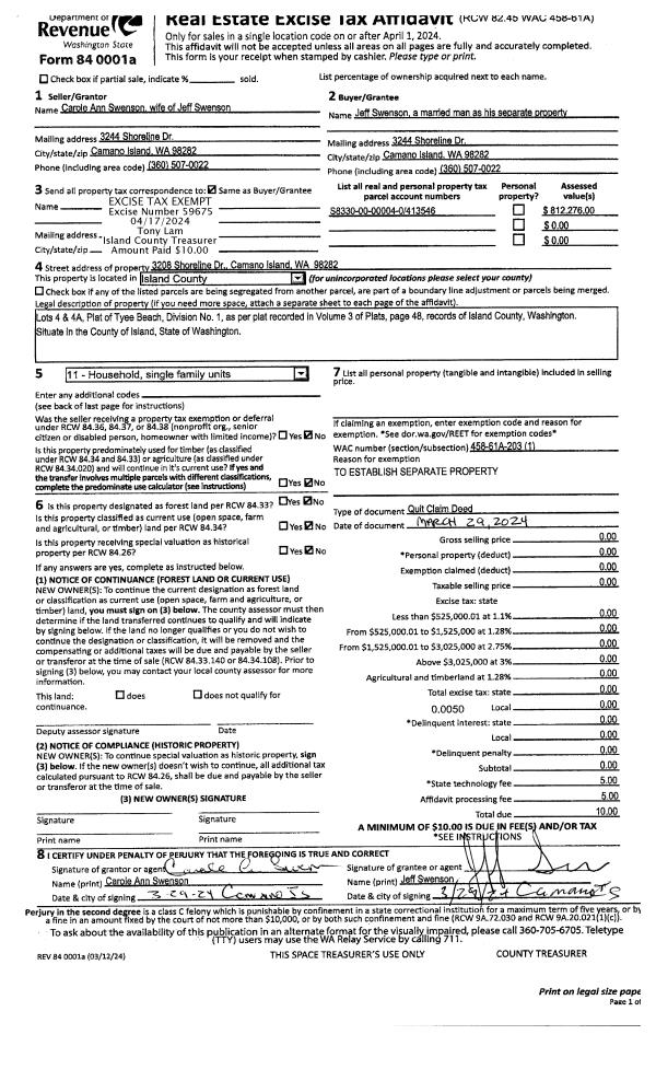
Property
Account |
| Property ID: | 413546 | Abbreviated Legal Description: | TYEE BCH 1 LOTS 4 & 4A |
| Geographic ID: | S8330-00-00004-0 | Agent Code: | |
| Type: | Real | | |
| Tax Area: | 540 - APPRAISER-Stan/Cam Schl Dist, Special Dist, improved & less than 1 acre | Land Use Code | 11 |
| Open Space: | N | DFL | N |
| Historic Property: | N | Remodel Property: | N |
| Multi-Family Redevelopment: | N | | |
| Township: | | Section: | |
| Range: | |
Location |
| Address: | 3208 SHORELINE DR CAMANO ISLAND, WA 98282 | Mapsco: | |
| Neighborhood: | 58RecamWF-East Cam | Map ID: | 867 |
| Neighborhood CD: | 58RecamWF |
Owner |
| Name: | SWENSON, JEFF | Owner ID: | 298510 |
| Mailing Address: | 3244 SHORELINE DR CAMANO ISLAND, WA 98282 | % Ownership: | 100.0000000000% |
| | | Exemptions: | |
Taxes and Assessment Details
Values
| (+) Improvement Homesite Value: | + | $0 | |
| (+) Improvement Non-Homesite Value: | + | $82,078 | |
| (+) Land Homesite Value: | + | $0 | |
| (+) Land Non-Homesite Value: | + | $725,800 | |
| (+) Curr Use (HS): | + | $0 | $0 |
| (+) Curr Use (NHS): | + | $0 | $0 |
| | | -------------------------- | |
| (=) Market Value: | = | $807,878 | |
| (–) Productivity Loss: | – | $0 | |
| | | -------------------------- | |
| (=) Subtotal: | = | $807,878 | |
| (+) Senior Appraised Value: | + | $0 | |
| (+) Non-Senior Appraised Value: | + | $807,878 | |
| | | -------------------------- | |
| (=) Total Appraised Value: | = | $807,878 | |
| (–) Senior Exemption Loss: | – | $0 | |
| (–) Exemption Loss: | – | $0 | |
| | | -------------------------- | |
| (=) Taxable Value: | = | $807,878 | |
Taxing Jurisdiction
| Owner: | SWENSON, JEFF | | |
| % Ownership: | 100.0000000000% | | |
| Total Value: | $807,878 | | |
| Tax Area: | 540 - APPRAISER-Stan/Cam Schl Dist, Special Dist, improved & less than 1 acre |
| CF | Conservation Futures | 0.0313996660 | $807,878 | $807,878 | $25.37 | | |
| EMS1 | Fire & Rescue Dist #1 Camano GEN (EMS) | 0.4998471806 | $807,878 | $807,878 | $403.82 | | |
| FIRE1 | Fire & Rescue Dist #1 Camano GEN | 1.2496603404 | $807,878 | $807,878 | $1,009.57 | | |
| FIRE1BOND | Fire & Rescue Dist #1 Camano BOND | 0.1630371212 | $807,878 | $807,878 | $131.71 | | |
| CE | County Current Expense | 0.3674210519 | $807,878 | $807,878 | $296.83 | | |
| CR | County Roads | 0.4614296361 | $807,878 | $807,878 | $372.78 | | |
| LIB | Library Sno-Isle GEN | 0.3039084203 | $807,878 | $807,878 | $245.52 | | |
| SCH205_401 | School 205-401 Enrichment | 1.3697998934 | $807,878 | $807,878 | $1,106.63 | | |
| SCH205BOND | School 205-401 BOND | 0.9354199323 | $807,878 | $807,878 | $755.71 | | |
| ST | State School | 1.4761226122 | $807,878 | $807,878 | $1,192.53 | | |
| ST2 | State School Part 2 | 0.7953803475 | $807,878 | $807,878 | $642.57 | | |
| | Total Tax Rate: | 7.6534262019 | | | | | |
| | | | | Taxes w/Current Exemptions: | $6,183.04 | | |
| | | | | Taxes w/o Exemptions: | $6,183.04 | | |
Improvement / Building
| Improvement #1: | RESIDENTIAL | State Code: | Y | 576.0 sqft | Value: | $82,078 |
| Bathrooms: | 1 | Bedrooms: | 1 | | Ceiling: | DRYWALL PAINTED | Exterior Wall/Cover: | WOOD SIDING | | Floor Covering: | CARPET/VINYL 80-20 | Floor Structure: | WOOD W/SUBFLOOR | | Foundation: | PIERS/CONCRETE | Heating: | BASEBOARD ELECTRIC | | Interior Finish: | DRYWALL PAINT | Plumbing Fixture Cnt: | 4 | | Roof Slope: | 3" IN 12" | Roof Structure/Cover: | CJ COMP ROLL |
|
| | Type | Description | Class CD | Sub Class CD | Year Built | Area |
| | BAS | BASE/MAIN FLOOR | 2 | 0 | 1989 | 576.0 |
| | OWP | OPEN WOOD PORCH W/STEPS | 2 | 0 | 1989 | 144.0 |
| | OWR | OPEN WOOD PORCH W/STEPS/ROOF | 2 | 0 | 1989 | 96.0 |
| | UTY | STORAGE/UTILITY | 2 | 0 | 1989 | 72.0 |
Sketch
Property Image
Land
| 1 | LB | LOW BANK | 0.4818 | 20987.21 | 80.00 | 0.00 | 1.00 | $725,000 | $0 |
| 2 | 55 | TIDES | 0.0000 | 0.00 | 80.00 | 0.00 | 1.00 | $800 | $0 |
Roll Value History
| 2026 | N/A | N/A | N/A | N/A | N/A |
| 2025 | $82,078 | $725,800 | $0 | $807,878 | $807,878 |
| 2024 | $85,295 | $725,800 | $0 | $811,095 | $811,095 |
| 2023 | $86,476 | $725,800 | $0 | $812,276 | $812,276 |
| 2022 | $79,376 | $700,800 | $0 | $780,176 | $780,176 |
| 2021 | $55,928 | $550,800 | $0 | $606,728 | $606,728 |
| 2020 | $54,563 | $450,800 | $0 | $505,363 | $505,363 |
| 2019 | $39,214 | $500,800 | $0 | $540,014 | $540,014 |
| 2018 | $39,352 | $500,800 | $0 | $540,152 | $540,152 |
| 2017 | $39,627 | $300,800 | $0 | $340,427 | $340,427 |
| 2016 | $40,177 | $250,800 | $0 | $290,977 | $290,977 |
| 2015 | $32,667 | $250,800 | $0 | $283,467 | $283,467 |
| 2014 | $32,667 | $250,800 | $0 | $283,467 | $283,467 |
| 2013 | $32,084 | $200,269 | $0 | $232,353 | $232,353 |
| 2012 | $32,084 | $200,269 | $0 | $232,353 | $232,353 |
| 2011 | $32,084 | $250,136 | $0 | $282,220 | $282,220 |
| 2010 | $32,564 | $250,136 | $0 | $282,700 | $282,700 |
| 2009 | $21,043 | $268,171 | $0 | $289,214 | $289,214 |
| 2008 | $21,043 | $268,171 | $0 | $289,214 | $289,214 |
| 2007 | $21,411 | $267,611 | $0 | $289,022 | $289,022 |
Deed and Sales History
| 1 | 03/29/2024 | QCD | Quit Claim Deed | SWENSON, CFAROLE ANN | SWENSON, JEFF | | | $0.00 | 59675 | 4571327 |
| 2 | 03/01/2021 | WD | Warranty Deed | TRUST 040 | SWENSON, JEFF | | | $300,000.00 | 47363 | 4513654 |
| 3 | 03/16/2017 | WD | Warranty Deed | WOOD, CARLENE | TRUST 040 | | | $275,000.00 | 28456 | 4418928 |
| 4 | 07/01/1983 | DECREE | Divorce Decree/Legal Separation | WOOD, ROBERT D | WOOD, CARLENE | | | $0.00 | 60128 | 0 |
| 5 | 01/01/1900 | OTHER | Other - Misc. Documents | Unknown | WOOD, ROBERT D | | | $0.00 | 0 | 0 |
Payout Agreement
| No payout information available.. |