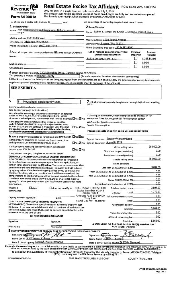
Property
Account |
| Property ID: | 413760 | Abbreviated Legal Description: | Tyee Beach - 1,s Lot 24 & 24A EX NWLY 20',s Blk 0;s LOT B BLA 397-16 AF# 4424684s |
| Geographic ID: | S8330-00-00024-2 | Agent Code: | |
| Type: | Real | | |
| Tax Area: | 542 - APPRAISER-Stan/Cam Schl Dist, Special Dist, improved, greater than 1 acre | Land Use Code | 11 |
| Open Space: | N | DFL | N |
| Historic Property: | N | Remodel Property: | N |
| Multi-Family Redevelopment: | N | | |
| Township: | | Section: | |
| Range: | |
Location |
| Address: | 3305 SHORELINE DR CAMANO ISLAND, WA 98282 | Mapsco: | |
| Neighborhood: | 58RecamWF-East Cam | Map ID: | 872 |
| Neighborhood CD: | 58RecamWF |
Owner |
| Name: | STENGEL, ROBERT T | Owner ID: | 313405 |
| Mailing Address: | KRISTIN L STENGEL 5002 SOUND AVE EVERETT, WA 98203 | % Ownership: | 100.0000000000% |
| | | Exemptions: | |
Taxes and Assessment Details
Values
| (+) Improvement Homesite Value: | + | $0 | |
| (+) Improvement Non-Homesite Value: | + | $7,024 | |
| (+) Land Homesite Value: | + | $0 | |
| (+) Land Non-Homesite Value: | + | $375,600 | |
| (+) Curr Use (HS): | + | $0 | $0 |
| (+) Curr Use (NHS): | + | $0 | $0 |
| | | -------------------------- | |
| (=) Market Value: | = | $382,624 | |
| (–) Productivity Loss: | – | $0 | |
| | | -------------------------- | |
| (=) Subtotal: | = | $382,624 | |
| (+) Senior Appraised Value: | + | $0 | |
| (+) Non-Senior Appraised Value: | + | $382,624 | |
| | | -------------------------- | |
| (=) Total Appraised Value: | = | $382,624 | |
| (–) Senior Exemption Loss: | – | $0 | |
| (–) Exemption Loss: | – | $0 | |
| | | -------------------------- | |
| (=) Taxable Value: | = | $382,624 | |
Taxing Jurisdiction
| Owner: | STENGEL, ROBERT T | | |
| % Ownership: | 100.0000000000% | | |
| Total Value: | $382,624 | | |
| Tax Area: | 542 - APPRAISER-Stan/Cam Schl Dist, Special Dist, improved, greater than 1 acre |
| CF | Conservation Futures | 0.0313996660 | $382,624 | $382,624 | $12.01 | | |
| EMS1 | Fire & Rescue Dist #1 Camano GEN (EMS) | 0.4998471806 | $382,624 | $382,624 | $191.25 | | |
| FIRE1 | Fire & Rescue Dist #1 Camano GEN | 1.2496603404 | $382,624 | $382,624 | $478.15 | | |
| FIRE1BOND | Fire & Rescue Dist #1 Camano BOND | 0.1630371212 | $382,624 | $382,624 | $62.38 | | |
| CE | County Current Expense | 0.3674210519 | $382,624 | $382,624 | $140.58 | | |
| CR | County Roads | 0.4614296361 | $382,624 | $382,624 | $176.55 | | |
| LIB | Library Sno-Isle GEN | 0.3039084203 | $382,624 | $382,624 | $116.28 | | |
| SCH205_401 | School 205-401 Enrichment | 1.3697998934 | $382,624 | $382,624 | $524.12 | | |
| SCH205BOND | School 205-401 BOND | 0.9354199323 | $382,624 | $382,624 | $357.91 | | |
| ST | State School | 1.4761226122 | $382,624 | $382,624 | $564.80 | | |
| ST2 | State School Part 2 | 0.7953803475 | $382,624 | $382,624 | $304.33 | | |
| | Total Tax Rate: | 7.6534262019 | | | | | |
| | | | | Taxes w/Current Exemptions: | $2,928.36 | | |
| | | | | Taxes w/o Exemptions: | $2,928.36 | | |
Improvement / Building
| Improvement #1: | RESIDENTIAL | State Code: | Y | 520.0 sqft | Value: | $7,024 |
| Bathrooms: | 0 | Bedrooms: | 0 | | Ceiling: | TONGUE & GROOVE | Exterior Wall/Cover: | WOOD SIDING | | Floor Covering: | CONCRETE SEALER | Floor Structure: | SLAB ON GRADE | | Foundation: | SLAB/CONCRETE | Heating: | (NONE) | | Interior Finish: | DRYWALL PAINT | Plumbing Fixture Cnt: | 1 | | Roof Slope: | FLAT | Roof Structure/Cover: | CJ COMP ROLL |
|
| | Type | Description | Class CD | Sub Class CD | Year Built | Area |
| | BAS | BASE/MAIN FLOOR | 2 | 0 | 1944 | 520.0 |
| | DGR | DETACHED GARAGE | 2 | 0 | 1944 | 305.0 |
Sketch
Property Image
Land
| 1 | LB | LOW BANK | 1.1600 | 50529.60 | 0.00 | 0.00 | 1.00 | $375,000 | $0 |
| 2 | 55 | TIDES | 0.0000 | 0.00 | 60.00 | 0.00 | 1.00 | $600 | $0 |
Roll Value History
| 2026 | N/A | N/A | N/A | N/A | N/A |
| 2025 | $7,024 | $375,600 | $0 | $382,624 | $382,624 |
| 2024 | $7,513 | $375,600 | $0 | $383,113 | $383,113 |
| 2023 | $7,632 | $375,600 | $0 | $383,232 | $383,232 |
| 2022 | $7,018 | $350,600 | $0 | $357,618 | $357,618 |
| 2021 | $6,196 | $250,600 | $0 | $256,796 | $256,796 |
| 2020 | $6,086 | $200,600 | $0 | $206,686 | $206,686 |
| 2019 | $4,568 | $200,600 | $0 | $205,168 | $205,168 |
| 2018 | $4,585 | $200,600 | $0 | $205,185 | $205,185 |
| 2017 | $0 | $250,600 | $0 | $250,600 | $250,600 |
| 2016 | $0 | $200,600 | $0 | $200,600 | $200,600 |
| 2015 | $0 | $200,600 | $0 | $200,600 | $200,600 |
| 2014 | $0 | $135,600 | $0 | $135,600 | $135,600 |
| 2013 | $0 | $109,685 | $0 | $109,685 | $109,685 |
| 2012 | $0 | $109,685 | $0 | $109,685 | $109,685 |
| 2011 | $0 | $136,956 | $0 | $136,956 | $136,956 |
| 2010 | $0 | $136,956 | $0 | $136,956 | $136,956 |
| 2009 | $0 | $169,796 | $0 | $169,796 | $169,796 |
| 2008 | $0 | $169,484 | $0 | $169,484 | $169,484 |
| 2007 | $0 | $169,064 | $0 | $169,064 | $169,064 |
Deed and Sales History
| 1 | 08/06/2024 | WD | Warranty Deed | KOHORST, KURT JOSEPH | STENGEL, ROBERT T | | | $354,000.00 | 60848 | 4575506 |
| 2 | 10/26/2015 | WD | Warranty Deed | CHASE, GENE & GLORIA | KOHORST, KURT JOSEPH | | | $178,750.00 | 21956 | 4388562 |
| 3 | 01/01/1996 | WD | Warranty Deed | HELMS, DAVE B | CHASE, GENE & | | | $92,150.00 | 60108 | 96000423 |
| 4 | 01/01/1900 | OTHER | Other - Misc. Documents | Unknown | HELMS, DAVE B | | | $0.00 | 0 | 0 |
Payout Agreement
| No payout information available.. |