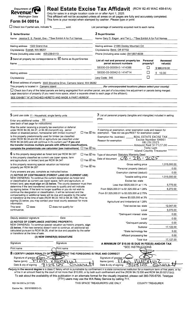
Property
Account |
| Property ID: | 414386 | Abbreviated Legal Description: | TYEE BCH 3 LOT 9 INCL ADJ TIDES & SHORELANDS |
| Geographic ID: | S8330-03-00009-0 | Agent Code: | |
| Type: | Real | | |
| Tax Area: | 540 - APPRAISER-Stan/Cam Schl Dist, Special Dist, improved & less than 1 acre | Land Use Code | 11 |
| Open Space: | N | DFL | N |
| Historic Property: | N | Remodel Property: | N |
| Multi-Family Redevelopment: | N | | |
| Township: | | Section: | |
| Range: | |
Location |
| Address: | 3043 SHORELINE DR CAMANO ISLAND, WA 98282 | Mapsco: | |
| Neighborhood: | 58RecamWF-East Cam | Map ID: | 867 |
| Neighborhood CD: | 58RecamWF |
Owner |
| Name: | EAGAN REVOCABLE TRUST | Owner ID: | 317979 |
| Mailing Address: | GARY D EAGAN TTEE TARI L EAGAN TTEE 21065 DOOLEY MOUNTAIN CRT BEND, OR 97702 | % Ownership: | 100.0000000000% |
| | | Exemptions: | |
Taxes and Assessment Details
Values
| (+) Improvement Homesite Value: | + | N/A | |
| (+) Improvement Non-Homesite Value: | + | N/A | |
| (+) Land Homesite Value: | + | N/A | |
| (+) Land Non-Homesite Value: | + | N/A | Ag / Timber Use Value |
| (+) Curr Use (HS): | + | N/A | N/A |
| (+) Curr Use (NHS): | + | N/A | N/A |
| | | -------------------------- | |
| (=) Market Value: | = | N/A | |
| (–) Productivity Loss: | – | N/A | |
| | | -------------------------- | |
| (=) Subtotal: | = | N/A | |
| (+) Senior Appraised Value: | + | N/A | |
| (+) Non-Senior Appraised Value: | + | N/A | |
| | | -------------------------- | |
| (=) Total Appraised Value: | = | N/A | |
| (–) Senior Exemption Loss: | – | N/A | |
| (–) Exemption Loss: | – | N/A | |
| | | -------------------------- | |
| (=) Taxable Value: | = | N/A | |
Taxing Jurisdiction
| Owner: | EAGAN REVOCABLE TRUST | | |
| % Ownership: | 100.0000000000% | | |
| Total Value: | N/A | | |
| Tax Area: | 540 - APPRAISER-Stan/Cam Schl Dist, Special Dist, improved & less than 1 acre |
| CF | Conservation Futures | N/A | N/A | N/A | N/A | | |
| CCD | Camano Conservation District | N/A | N/A | N/A | N/A | | |
| EMS1 | Fire & Rescue Dist #1 Camano GEN (EMS) | N/A | N/A | N/A | N/A | | |
| FIRE1 | Fire & Rescue Dist #1 Camano GEN | N/A | N/A | N/A | N/A | | |
| FIRE1BOND | Fire & Rescue Dist #1 Camano BOND | N/A | N/A | N/A | N/A | | |
| CE | County Current Expense | N/A | N/A | N/A | N/A | | |
| CR | County Roads | N/A | N/A | N/A | N/A | | |
| LCIB | Library Sno-Isle BOND (Camano Island) | N/A | N/A | N/A | N/A | | |
| LIB | Library Sno-Isle GEN | N/A | N/A | N/A | N/A | | |
| SCH205_401 | School 205-401 Enrichment | N/A | N/A | N/A | N/A | | |
| SCH205BOND | School 205-401 BOND | N/A | N/A | N/A | N/A | | |
| ST | State School | N/A | N/A | N/A | N/A | | |
| ST2 | State School Part 2 | N/A | N/A | N/A | N/A | | |
| PTMBNAREG | Port of Mabana Regular Levy | N/A | N/A | N/A | N/A | | |
| | Total Tax Rate: | N/A | | | | | |
| | | | | Taxes w/Current Exemptions: | N/A | | |
| | | | | Taxes w/o Exemptions: | N/A | | |
Improvement / Building
| Improvement #1: | RESIDENTIAL | State Code: | Y | 1138.0 sqft | Value: | N/A |
| Bathrooms: | 2 | Bedrooms: | 2 | | Ceiling: | BEAM T&G | Exterior Wall/Cover: | PLY/HARDBOARD T-111 | | Floor Covering: | HARDWOOD/CARP 60-40 | Floor Structure: | WOOD W/SUBFLOOR | | Foundation: | CONCRETE | Heating: | BASEBOARD ELECTRIC | | Interior Finish: | DRYWALL PAINT | Plumbing Fixture Cnt: | 10 | | Roof Slope: | 6" IN 12" | Roof Structure/Cover: | BEAM ASPHALT |
|
| | Type | Description | Class CD | Sub Class CD | Year Built | Area |
| | BAS | BASE/MAIN FLOOR | 3 | 0 | 1997 | 754.0 |
| | DGR | DETACHED GARAGE | 3 | 0 | 1997 | 768.0 |
| | UPS | UPPER STORY | 3 | 0 | 1997 | 384.0 |
| | OWP | OPEN WOOD PORCH W/STEPS | 3 | 0 | 1997 | 551.0 |
Sketch
Property Image
Land
| 1 | LB | LOW BANK | 0.4766 | 20760.70 | 50.00 | 0.00 | 1.00 | N/A | N/A |
| 2 | 55 | TIDES | 0.0000 | 0.00 | 50.00 | 0.00 | 1.00 | N/A | N/A |
Roll Value History
| 2026 | N/A | N/A | N/A | N/A | N/A |
| 2025 | $263,119 | $725,500 | $0 | $988,619 | $988,619 |
| 2024 | $271,561 | $725,500 | $0 | $997,061 | $997,061 |
| 2023 | $274,946 | $725,500 | $0 | $1,000,446 | $1,000,446 |
| 2022 | $252,031 | $700,500 | $0 | $952,531 | $952,531 |
| 2021 | $198,348 | $550,500 | $0 | $748,848 | $748,848 |
| 2020 | $192,863 | $450,500 | $0 | $643,363 | $643,363 |
| 2019 | $136,058 | $500,500 | $0 | $636,558 | $636,558 |
| 2018 | $136,483 | $500,500 | $0 | $636,983 | $636,983 |
| 2017 | $137,330 | $380,500 | $0 | $517,830 | $517,830 |
| 2016 | $139,025 | $320,500 | $0 | $459,525 | $459,525 |
| 2015 | $129,214 | $300,500 | $0 | $429,714 | $429,714 |
| 2014 | $130,810 | $300,500 | $0 | $431,310 | $431,310 |
| 2013 | $132,405 | $266,701 | $0 | $399,106 | $399,106 |
| 2012 | $134,000 | $313,678 | $0 | $447,678 | $447,678 |
| 2011 | $135,595 | $391,972 | $0 | $527,567 | $527,567 |
| 2010 | $141,731 | $391,972 | $0 | $533,703 | $533,703 |
| 2009 | $147,825 | $425,390 | $0 | $573,215 | $573,215 |
| 2008 | $149,602 | $425,390 | $0 | $574,992 | $574,992 |
| 2007 | $151,366 | $425,040 | $0 | $576,406 | $576,406 |
Deed and Sales History
| 1 | 08/28/2025 | WD | Warranty Deed | PAVISH, EDYTHE ANN | EAGAN REVOCABLE TRUST | | | $1,015,000.00 | 64661 | 4590293 |
|   | |
| 2 | 07/01/1997 | DECREE | Divorce Decree/Legal Separation | PAVISH, LAWRENCE W | PAVISH, EDYTHE A | | | $0.00 | 72301 | 97010836 |
| 3 | 01/01/1900 | OTHER | Other - Misc. Documents | Unknown | PAVISH, LAWRENCE W | | | $0.00 | 0 | 0 |
Payout Agreement
| No payout information available.. |