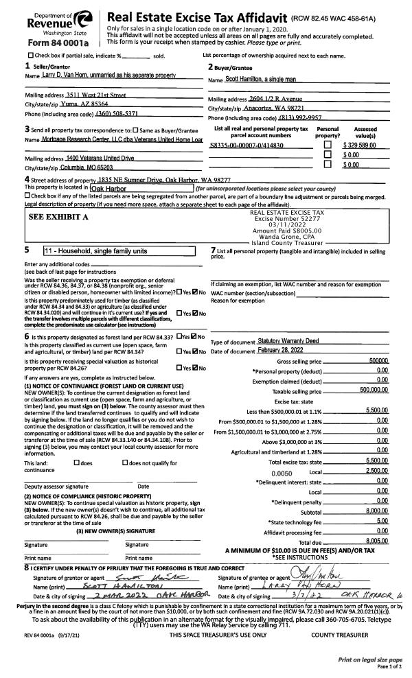
Property
Account |
| Property ID: | 414830 | Abbreviated Legal Description: | UPLANDS WEST LOT 7 |
| Geographic ID: | S8335-00-00007-0 | Agent Code: | |
| Type: | Real | | |
| Tax Area: | 100 - APPRAISER-OH Schl Dist, in OH | Land Use Code | 11 |
| Open Space: | N | DFL | N |
| Historic Property: | N | Remodel Property: | N |
| Multi-Family Redevelopment: | N | | |
| Township: | | Section: | |
| Range: | |
Location |
| Address: | 1835 NE SUMNER DR OAK HARBOR, WA 98277 | Mapsco: | |
| Neighborhood: | Cycle 1 | Map ID: | 262 |
| Neighborhood CD: | 1 |
Owner |
| Name: | HAMILTON, SCOTT | Owner ID: | 303445 |
| Mailing Address: | 3002 N MASSACHUSETTS AVE TAMPA, FL 33603-5504 | % Ownership: | 100.0000000000% |
| | | Exemptions: | |
Taxes and Assessment Details
Values
| (+) Improvement Homesite Value: | + | $0 | |
| (+) Improvement Non-Homesite Value: | + | $270,703 | |
| (+) Land Homesite Value: | + | $0 | |
| (+) Land Non-Homesite Value: | + | $180,000 | |
| (+) Curr Use (HS): | + | $0 | $0 |
| (+) Curr Use (NHS): | + | $0 | $0 |
| | | -------------------------- | |
| (=) Market Value: | = | $450,703 | |
| (–) Productivity Loss: | – | $0 | |
| | | -------------------------- | |
| (=) Subtotal: | = | $450,703 | |
| (+) Senior Appraised Value: | + | $0 | |
| (+) Non-Senior Appraised Value: | + | $450,703 | |
| | | -------------------------- | |
| (=) Total Appraised Value: | = | $450,703 | |
| (–) Senior Exemption Loss: | – | $0 | |
| (–) Exemption Loss: | – | $0 | |
| | | -------------------------- | |
| (=) Taxable Value: | = | $450,703 | |
Taxing Jurisdiction
| Owner: | HAMILTON, SCOTT | | |
| % Ownership: | 100.0000000000% | | |
| Total Value: | $450,703 | | |
| Tax Area: | 100 - APPRAISER-OH Schl Dist, in OH |
| CF | Conservation Futures | 0.0313996660 | $450,703 | $450,703 | $14.15 | | |
| CEM1 | Cemetery #1 | 0.0040018856 | $450,703 | $450,703 | $1.80 | | |
| COH | City of Oak Harbor | 2.3090730572 | $450,703 | $450,703 | $1,040.71 | | |
| OAKBOND | City of Oak Harbor BOND | 0.1902260131 | $450,703 | $450,703 | $85.74 | | |
| HOBOND | Hospital BOND | 0.1893405597 | $450,703 | $450,703 | $85.34 | | |
| HOGEN | Hospital GEN | 0.3848777722 | $450,703 | $450,703 | $173.47 | | |
| CE | County Current Expense | 0.3674210519 | $450,703 | $450,703 | $165.60 | | |
| ISLANDEMS | Hospital GEN (EMS) | 0.4952018576 | $450,703 | $450,703 | $223.19 | | |
| LIB | Library Sno-Isle GEN | 0.3039084203 | $450,703 | $450,703 | $136.97 | | |
| NWHIDPRMT | P & R N Whidbey GEN | 0.1990272349 | $450,703 | $450,703 | $89.70 | | |
| SCH201MO | School 201 Enrichment | 2.3851112745 | $450,703 | $450,703 | $1,074.98 | | |
| ST | State School | 1.4761226122 | $450,703 | $450,703 | $665.29 | | |
| ST2 | State School Part 2 | 0.7953803475 | $450,703 | $450,703 | $358.48 | | |
| | Total Tax Rate: | 9.1310917527 | | | | | |
| | | | | Taxes w/Current Exemptions: | $4,115.42 | | |
| | | | | Taxes w/o Exemptions: | $4,115.42 | | |
Improvement / Building
| Improvement #1: | RESIDENTIAL | State Code: | Y | 1643.0 sqft | Value: | $270,703 |
| Bathrooms: | 2 | Bedrooms: | 3 | | Ceiling: | DRY WALL SPRAYED | Exterior Wall/Cover: | WOOD SIDING | | Floor Covering: | CARPET/VINYL 60-40 | Floor Structure: | WOOD W/SUBFLOOR | | Foundation: | CONCRETE | Heating: | FHA GAS | | Interior Finish: | DRYWALL PAINT | Plumbing Fixture Cnt: | 9 | | Roof Slope: | 4" IN 12" | Roof Structure/Cover: | CJ ASPHALT |
|
| | Type | Description | Class CD | Sub Class CD | Year Built | Area |
| | BAS | BASE/MAIN FLOOR | 3 | 0 | 1974 | 1643.0 |
| | OP1 | OPEN PORCH SLAB | 3 | 0 | 1974 | 231.0 |
| | OP4 | OPEN PORCH W/CEILING-ROOF | 3 | 0 | 1974 | 21.0 |
| | AGR | ATTACHED GARAGE | 3 | 0 | 1974 | 506.0 |
Sketch
Property Image
Land
| 1 | 14 | SQ (08001-12000) | 0.0000 | 0.00 | 0.00 | 0.00 | 1.00 | $180,000 | $0 |
Roll Value History
| 2026 | N/A | N/A | N/A | N/A | N/A |
| 2025 | $270,703 | $180,000 | $0 | $450,703 | $450,703 |
| 2024 | $274,118 | $170,000 | $0 | $444,118 | $444,118 |
| 2023 | $270,577 | $170,000 | $0 | $440,577 | $440,577 |
| 2022 | $232,220 | $160,000 | $0 | $392,220 | $392,220 |
| 2021 | $204,589 | $125,000 | $0 | $329,589 | $329,589 |
| 2020 | $199,791 | $100,000 | $0 | $299,791 | $299,791 |
| 2019 | $147,444 | $140,000 | $0 | $287,444 | $287,444 |
| 2018 | $147,909 | $125,000 | $0 | $272,909 | $272,909 |
| 2017 | $154,399 | $110,000 | $0 | $264,399 | $264,399 |
| 2016 | $156,330 | $90,000 | $0 | $246,330 | $246,330 |
| 2015 | $129,563 | $80,000 | $0 | $209,563 | $209,563 |
| 2014 | $131,441 | $80,000 | $0 | $211,441 | $211,441 |
| 2013 | $133,318 | $80,000 | $0 | $213,318 | $213,318 |
| 2012 | $135,196 | $70,000 | $0 | $205,196 | $205,196 |
| 2011 | $136,919 | $80,000 | $0 | $216,919 | $216,919 |
| 2010 | $146,457 | $80,000 | $0 | $226,457 | $226,457 |
| 2009 | $152,895 | $97,000 | $0 | $249,895 | $249,895 |
| 2008 | $154,920 | $97,000 | $0 | $251,920 | $251,920 |
| 2007 | $156,992 | $97,000 | $0 | $253,992 | $253,992 |
Deed and Sales History
| 1 | 02/28/2022 | WD | Warranty Deed | VAN HORN, LARRY D | HAMILTON, SCOTT | | | $500,000.00 | 52277 | 4541370 |
| 2 | 07/16/2015 | WD | Warranty Deed | WARNER, JOSEPH S / JACQUELINE | VAN HORN, LARRY D | | | $228,000.00 | 20494 | 4382275 |
| 3 | 05/01/1996 | WD | Warranty Deed | BATES, JAMES H | WARNER, JOSEPH S | | | $149,000.00 | 61769 | 96008809 |
| 4 | 08/01/1992 | WD | Warranty Deed | CHO, THOMAS K | BATES, JAMES H | | | $105,000.00 | 23424 | 92016654 |
| 5 | 02/01/1991 | WD | Warranty Deed | GORDON, JAMES J | CHO, THOMAS K | | | $93,000.00 | 10640 | 91002913 |
| 6 | 09/01/1986 | WD | Warranty Deed | HOLMAN, STEPHEN J | GORDON, JAMES J | | | $72,250.00 | 62493 | 86011271 |
| 7 | 10/01/1979 | WD | Warranty Deed | SMITH, TERRY A | HOLMAN, STEPHEN J | | | $66,000.00 | 95247 | 360983 |
| 8 | 01/01/1900 | OTHER | Other - Misc. Documents | Unknown | SMITH, TERRY A | | | $0.00 | 0 | 0 |
Payout Agreement
| No payout information available.. |