Property
Account |
| Property ID: | 415580 | Abbreviated Legal Description: | USE BAY 3 LOT 10 |
| Geographic ID: | S8340-03-00010-0 | Agent Code: | |
| Type: | Real | | |
| Tax Area: | 750 - APPRAISER-S Whid Schl Dist, Special District, improved & less than 1 acre | Land Use Code | 11 |
| Open Space: | N | DFL | N |
| Historic Property: | N | Remodel Property: | N |
| Multi-Family Redevelopment: | N | | |
| Township: | | Section: | |
| Range: | |
Location |
| Address: | 2100 SHORE AVE FREELAND, WA 98249 | Mapsco: | |
| Neighborhood: | Cycle 3 | Map ID: | 343 |
| Neighborhood CD: | 3 |
Owner |
| Name: | ALCALA GOUDY LLC | Owner ID: | 299000 |
| Mailing Address: | PO BOX 3353 BELLEVUE, WA 98009 | % Ownership: | 100.0000000000% |
| | | Exemptions: | |
Taxes and Assessment Details
Values
| (+) Improvement Homesite Value: | + | $0 | |
| (+) Improvement Non-Homesite Value: | + | $470,139 | |
| (+) Land Homesite Value: | + | $0 | |
| (+) Land Non-Homesite Value: | + | $1,995,000 | |
| (+) Curr Use (HS): | + | $0 | $0 |
| (+) Curr Use (NHS): | + | $0 | $0 |
| | | -------------------------- | |
| (=) Market Value: | = | $2,465,139 | |
| (–) Productivity Loss: | – | $0 | |
| | | -------------------------- | |
| (=) Subtotal: | = | $2,465,139 | |
| (+) Senior Appraised Value: | + | $0 | |
| (+) Non-Senior Appraised Value: | + | $2,465,139 | |
| | | -------------------------- | |
| (=) Total Appraised Value: | = | $2,465,139 | |
| (–) Senior Exemption Loss: | – | $0 | |
| (–) Exemption Loss: | – | $0 | |
| | | -------------------------- | |
| (=) Taxable Value: | = | $2,465,139 | |
Taxing Jurisdiction
| Owner: | ALCALA GOUDY LLC | | |
| % Ownership: | 100.0000000000% | | |
| Total Value: | $2,465,139 | | |
| Tax Area: | 750 - APPRAISER-S Whid Schl Dist, Special District, improved & less than 1 acre |
| CF | Conservation Futures | 0.0313996660 | $2,465,139 | $2,465,139 | $77.40 | | |
| FIRE3 | Fire & Rescue Dist #3 S Whidbey GEN | 1.2130821753 | $2,465,139 | $2,465,139 | $2,990.42 | | |
| HOBOND | Hospital BOND | 0.1893405597 | $2,465,139 | $2,465,139 | $466.75 | | |
| HOGEN | Hospital GEN | 0.3848777722 | $2,465,139 | $2,465,139 | $948.78 | | |
| CE | County Current Expense | 0.3674210519 | $2,465,139 | $2,465,139 | $905.74 | | |
| CR | County Roads | 0.4614296361 | $2,465,139 | $2,465,139 | $1,137.49 | | |
| ISLANDEMS | Hospital GEN (EMS) | 0.4952018576 | $2,465,139 | $2,465,139 | $1,220.74 | | |
| LIB | Library Sno-Isle GEN | 0.3039084203 | $2,465,139 | $2,465,139 | $749.18 | | |
| PORTWHID | Port of S Whidbey GEN | 0.1086004714 | $2,465,139 | $2,465,139 | $267.72 | | |
| SCH206BOND | School 206 BOND | 0.5960237832 | $2,465,139 | $2,465,139 | $1,469.28 | | |
| SCH206CAP | School 206 CP | 0.3066144020 | $2,465,139 | $2,465,139 | $755.85 | | |
| SCH206MO | School 206 Enrichment | 0.4808755445 | $2,465,139 | $2,465,139 | $1,185.43 | | |
| ST | State School | 1.4761226122 | $2,465,139 | $2,465,139 | $3,638.85 | | |
| ST2 | State School Part 2 | 0.7953803475 | $2,465,139 | $2,465,139 | $1,960.72 | | |
| SWHIDPRBD | P & R S Whidbey BOND | 0.0144185398 | $2,465,139 | $2,465,139 | $35.54 | | |
| SWHIDPRBD3 | P & R S Whidbey BOND3 | 0.1483535547 | $2,465,139 | $2,465,139 | $365.71 | | |
| SWHIDPRMT | P & R S Whidbey GEN | 0.4600000000 | $2,465,139 | $2,465,139 | $1,133.96 | | |
| | Total Tax Rate: | 7.8330503944 | | | | | |
| | | | | Taxes w/Current Exemptions: | $19,309.56 | | |
| | | | | Taxes w/o Exemptions: | $19,309.56 | | |
Improvement / Building
| Improvement #1: | RESIDENTIAL | State Code: | Y | 2283.5 sqft | Value: | $470,139 |
| Bathrooms: | 2 | Bedrooms: | 3 | | Ceiling: | TONGUE & GROOVE | Exterior Wall/Cover: | SHINGLE | | Floor Covering: | HARDWOOD/CARP 60-40 | Floor Structure: | WOOD W/SUBFLOOR | | Foundation: | CONCRETE | Heating: | FHA ELECTRIC | | Interior Finish: | DRYWALL PAINT | Plumbing Fixture Cnt: | 10 | | Roof Slope: | FLAT | Roof Structure/Cover: | BEAM ROLL COMPOSITION |
|
| | Type | Description | Class CD | Sub Class CD | Year Built | Area |
| | BAS | BASE/MAIN FLOOR | 4 | 0 | 1974 | 1196.1 |
| | DWN | DOWNSTAIRS LIVING AREA | 4 | 0 | 1974 | 586.9 |
| | DGR | DETACHED GARAGE | 4 | 0 | 1974 | 576.0 |
| | BAW | BALCONY WOOD RAIL | 4 | 0 | 1974 | 84.0 |
| | OWP | OPEN WOOD PORCH W/STEPS | 4 | 0 | 1974 | 411.0 |
| | OWR | OPEN WOOD PORCH W/STEPS/ROOF | 4 | 0 | 1974 | 167.6 |
| | UPS | UPPER STORY | 4 | 0 | 1974 | 500.5 |
Sketch
Property Image
Land
| 1 | LB | LOW BANK | 0.7200 | 31363.20 | 60.00 | 0.00 | 1.00 | $1,995,000 | $0 |
Roll Value History
| 2026 | N/A | N/A | N/A | N/A | N/A |
| 2025 | $470,139 | $1,995,000 | $0 | $2,465,139 | $2,465,139 |
| 2024 | $475,652 | $1,995,000 | $0 | $2,470,652 | $2,470,652 |
| 2023 | $481,168 | $1,995,000 | $0 | $2,476,168 | $2,476,168 |
| 2022 | $442,445 | $1,995,000 | $0 | $2,437,445 | $2,437,445 |
| 2021 | $371,155 | $1,750,000 | $0 | $2,121,155 | $2,121,155 |
| 2020 | $360,900 | $1,450,000 | $0 | $1,810,900 | $1,810,900 |
| 2019 | $243,900 | $1,300,000 | $0 | $1,543,900 | $1,543,900 |
| 2018 | $244,651 | $1,000,000 | $0 | $1,244,651 | $1,244,651 |
| 2017 | $246,153 | $1,000,000 | $0 | $1,246,153 | $1,246,153 |
| 2016 | $249,156 | $900,000 | $0 | $1,149,156 | $1,149,156 |
| 2015 | $150,737 | $750,000 | $0 | $900,737 | $900,737 |
| 2014 | $153,169 | $1,000,000 | $0 | $1,153,169 | $1,153,169 |
| 2013 | $151,675 | $878,796 | $0 | $1,030,471 | $1,030,471 |
| 2012 | $154,174 | $878,796 | $0 | $1,032,970 | $1,032,970 |
| 2011 | $156,672 | $878,796 | $0 | $1,035,468 | $1,035,468 |
| 2010 | $174,839 | $878,796 | $0 | $1,053,635 | $1,053,635 |
| 2009 | $182,642 | $1,168,020 | $0 | $1,350,662 | $1,350,662 |
| 2008 | $182,690 | $1,223,640 | $0 | $1,406,330 | $1,406,330 |
| 2007 | $186,731 | $1,056,780 | $0 | $1,243,511 | $1,243,511 |
Deed and Sales History
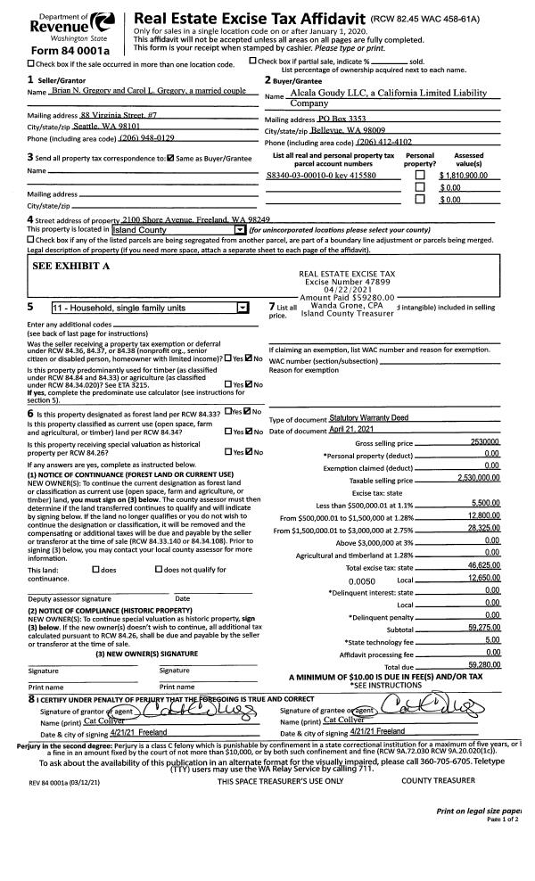
| 1 | 04/21/2021 | WD | Warranty Deed | GREGORY, BRIAN N | ALCALA GOUDY LLC | | | $2,530,000.00 | 47899 | 4517211 |
| 2 | 09/03/2015 | WD | Warranty Deed | MOWAT, MARK | GREGORY, BRIAN N | | | $1,425,000.00 | 21278 | 4385655 |
| 3 | 09/23/2010 | WD | Warranty Deed | THIEME, WILLIAM | MOWAT, MARK | | | $1,200,000.00 | 2428 | 4281910 |
Payout Agreement
| No payout information available.. |