Property
Account |
| Property ID: | 415722 | Abbreviated Legal Description: | USE BAY 4 LOT 2 |
| Geographic ID: | S8340-04-00002-0 | Agent Code: | |
| Type: | Real | | |
| Tax Area: | 750 - APPRAISER-S Whid Schl Dist, Special District, improved & less than 1 acre | Land Use Code | 11 |
| Open Space: | N | DFL | N |
| Historic Property: | N | Remodel Property: | N |
| Multi-Family Redevelopment: | N | | |
| Township: | | Section: | |
| Range: | |
Location |
| Address: | 2462 SOUNDVIEW DR LANGLEY, WA 98260 | Mapsco: | |
| Neighborhood: | Cycle 3 | Map ID: | 782 |
| Neighborhood CD: | 3 |
Owner |
| Name: | MEYER, JOHN M | Owner ID: | 285910 |
| Mailing Address: | SUSAN JOHNSON MEYER 2462 SOUNDVIEW DR LANGLEY, WA 28260 | % Ownership: | 100.0000000000% |
| | | Exemptions: | |
Taxes and Assessment Details
Values
| (+) Improvement Homesite Value: | + | $0 | |
| (+) Improvement Non-Homesite Value: | + | $806,926 | |
| (+) Land Homesite Value: | + | $0 | |
| (+) Land Non-Homesite Value: | + | $775,000 | |
| (+) Curr Use (HS): | + | $0 | $0 |
| (+) Curr Use (NHS): | + | $0 | $0 |
| | | -------------------------- | |
| (=) Market Value: | = | $1,581,926 | |
| (–) Productivity Loss: | – | $0 | |
| | | -------------------------- | |
| (=) Subtotal: | = | $1,581,926 | |
| (+) Senior Appraised Value: | + | $0 | |
| (+) Non-Senior Appraised Value: | + | $1,581,926 | |
| | | -------------------------- | |
| (=) Total Appraised Value: | = | $1,581,926 | |
| (–) Senior Exemption Loss: | – | $0 | |
| (–) Exemption Loss: | – | $0 | |
| | | -------------------------- | |
| (=) Taxable Value: | = | $1,581,926 | |
Taxing Jurisdiction
| Owner: | MEYER, JOHN M | | |
| % Ownership: | 100.0000000000% | | |
| Total Value: | $1,581,926 | | |
| Tax Area: | 750 - APPRAISER-S Whid Schl Dist, Special District, improved & less than 1 acre |
| CF | Conservation Futures | 0.0313996660 | $1,581,926 | $1,581,926 | $49.67 | | |
| FIRE3 | Fire & Rescue Dist #3 S Whidbey GEN | 1.2130821753 | $1,581,926 | $1,581,926 | $1,919.01 | | |
| HOBOND | Hospital BOND | 0.1893405597 | $1,581,926 | $1,581,926 | $299.52 | | |
| HOGEN | Hospital GEN | 0.3848777722 | $1,581,926 | $1,581,926 | $608.85 | | |
| CE | County Current Expense | 0.3674210519 | $1,581,926 | $1,581,926 | $581.23 | | |
| CR | County Roads | 0.4614296361 | $1,581,926 | $1,581,926 | $729.95 | | |
| ISLANDEMS | Hospital GEN (EMS) | 0.4952018576 | $1,581,926 | $1,581,926 | $783.37 | | |
| LIB | Library Sno-Isle GEN | 0.3039084203 | $1,581,926 | $1,581,926 | $480.76 | | |
| PORTWHID | Port of S Whidbey GEN | 0.1086004714 | $1,581,926 | $1,581,926 | $171.80 | | |
| SCH206BOND | School 206 BOND | 0.5960237832 | $1,581,926 | $1,581,926 | $942.87 | | |
| SCH206CAP | School 206 CP | 0.3066144020 | $1,581,926 | $1,581,926 | $485.04 | | |
| SCH206MO | School 206 Enrichment | 0.4808755445 | $1,581,926 | $1,581,926 | $760.71 | | |
| ST | State School | 1.4761226122 | $1,581,926 | $1,581,926 | $2,335.12 | | |
| ST2 | State School Part 2 | 0.7953803475 | $1,581,926 | $1,581,926 | $1,258.23 | | |
| SWHIDPRBD | P & R S Whidbey BOND | 0.0144185398 | $1,581,926 | $1,581,926 | $22.81 | | |
| SWHIDPRBD3 | P & R S Whidbey BOND3 | 0.1483535547 | $1,581,926 | $1,581,926 | $234.68 | | |
| SWHIDPRMT | P & R S Whidbey GEN | 0.4600000000 | $1,581,926 | $1,581,926 | $727.69 | | |
| | Total Tax Rate: | 7.8330503944 | | | | | |
| | | | | Taxes w/Current Exemptions: | $12,391.31 | | |
| | | | | Taxes w/o Exemptions: | $12,391.31 | | |
Improvement / Building
| Improvement #1: | RESIDENTIAL | State Code: | Y | 3176.3 sqft | Value: | $806,926 |
| Bathrooms: | 2.5 | Bedrooms: | 2 | | Ceiling: | DRYWALL PAINTED | Cooling: | HEAT PUMP/CONV/V | | Exterior Wall/Cover: | WOOD SIDING | Floor Covering: | HARDWOOD/CARP 60-40 | | Floor Structure: | WOOD W/SUBFLOOR | Foundation: | CONCRETE | | Interior Finish: | DRYWALL PAINT | Plumbing Fixture Cnt: | 14 | | Roof Slope: | 8" IN 12" | Roof Structure/Cover: | CJ ASPHALT |
|
| | Type | Description | Class CD | Sub Class CD | Year Built | Area |
| | BAS | BASE/MAIN FLOOR | 5 | 0 | 1992 | 2077.3 |
| | OP1 | OPEN PORCH SLAB | 5 | 0 | 1992 | 1161.1 |
| | OP4 | OPEN PORCH W/CEILING-ROOF | 5 | 0 | 1992 | 60.2 |
| | OP4 | OPEN PORCH W/CEILING-ROOF | 5 | 0 | 1992 | 160.3 |
| | OP4 | OPEN PORCH W/CEILING-ROOF | 5 | 0 | 1992 | 53.0 |
| | AGR | ATTACHED GARAGE | 5 | 0 | 1992 | 955.0 |
| | UPS | UPPER STORY | 5 | 0 | 1992 | 1099.0 |
Sketch
Property Image
Land
| 1 | HB | HIGH BLUFF | 0.0000 | 0.00 | 72.00 | 0.00 | 1.00 | $775,000 | $0 |
Roll Value History
| 2026 | N/A | N/A | N/A | N/A | N/A |
| 2025 | $806,926 | $775,000 | $0 | $1,581,926 | $1,581,926 |
| 2024 | $816,393 | $735,000 | $0 | $1,551,393 | $1,551,393 |
| 2023 | $825,859 | $735,000 | $0 | $1,560,859 | $1,560,859 |
| 2022 | $756,378 | $700,000 | $0 | $1,456,378 | $1,456,378 |
| 2021 | $665,183 | $550,000 | $0 | $1,215,183 | $1,215,183 |
| 2020 | $646,380 | $485,000 | $0 | $1,131,380 | $1,131,380 |
| 2019 | $648,074 | $525,000 | $0 | $1,173,074 | $1,173,074 |
| 2018 | $418,682 | $400,000 | $0 | $818,682 | $818,682 |
| 2017 | $421,232 | $350,000 | $0 | $771,232 | $308,493 |
| 2016 | $426,704 | $400,000 | $0 | $826,704 | $826,704 |
| 2015 | $432,175 | $350,000 | $0 | $782,175 | $782,175 |
| 2014 | $437,645 | $350,000 | $0 | $787,645 | $787,645 |
| 2013 | $456,225 | $400,620 | $0 | $856,845 | $856,845 |
| 2012 | $461,890 | $400,620 | $0 | $862,510 | $862,510 |
| 2011 | $467,557 | $400,620 | $0 | $868,177 | $868,177 |
| 2010 | $496,634 | $455,247 | $0 | $951,881 | $951,881 |
| 2009 | $518,438 | $640,192 | $0 | $1,158,630 | $1,158,630 |
| 2008 | $538,524 | $787,199 | $0 | $1,325,723 | $1,325,723 |
| 2007 | $516,317 | $531,122 | $0 | $1,047,439 | $1,047,439 |
Deed and Sales History
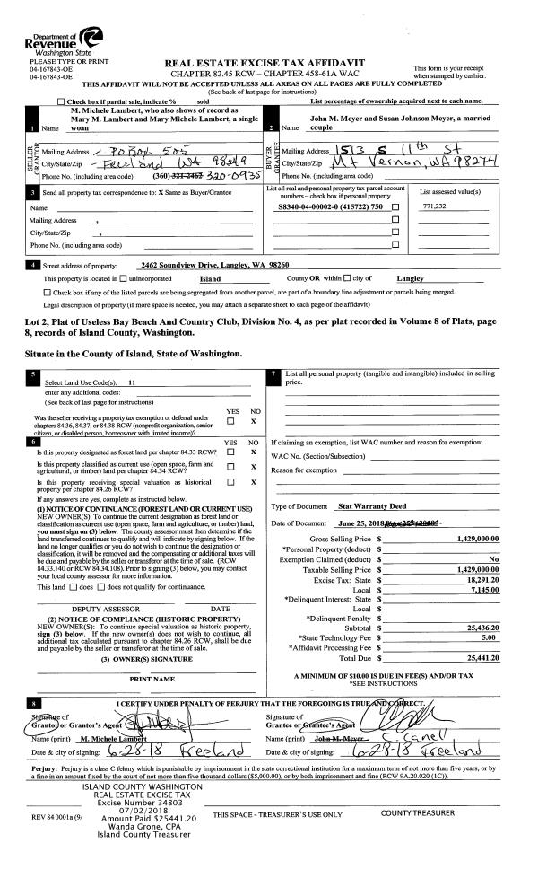
| 1 | 06/25/2018 | WD | Warranty Deed | LAMBERT, MARY M | MEYER, JOHN M | | | $1,429,000.00 | 34803 | 4447242 |
| 2 | 09/07/2016 | DECREE | Divorce Decree/Legal Separation | LAMBERT, KENT C | LAMBERT, MARY M | | | $0.00 | 26260 | 4407866 |
| 3 | 12/01/1991 | WD | Warranty Deed | LAMBERT, WILLIAM S | LAMBERT, KENT C | | | $0.00 | 14573 | 91019997 |
| 4 | 11/01/1983 | PACD | Purchaser's Assignment | LAMBERT, WILLIAM S | LAMBERT, WILLIAM S | | | $0.00 | 33588 | 418467 |
Payout Agreement
| No payout information available.. |