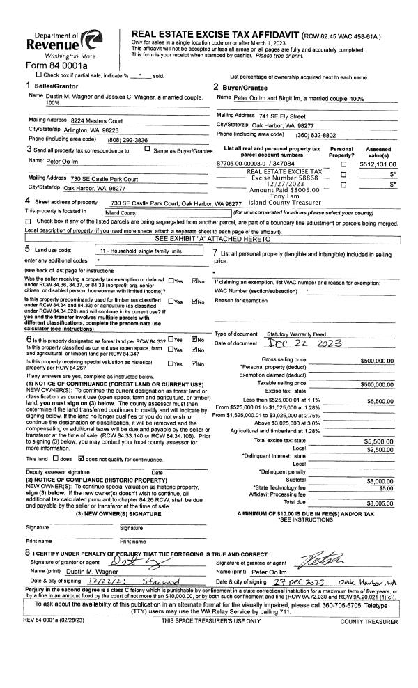
Property
Account |
| Property ID: | 415848 | Abbreviated Legal Description: | USE BAY 4 LOT 15 TGW PT LOT 16 DESC: BG SWCR LOT 15 N1*E28.43' TPB N88*W2' N1*E53.02' S88*E2' S1*W53.02' TPB |
| Geographic ID: | S8340-04-00015-0 | Agent Code: | |
| Type: | Real | | |
| Tax Area: | 750 - APPRAISER-S Whid Schl Dist, Special District, improved & less than 1 acre | Land Use Code | 11 |
| Open Space: | N | DFL | N |
| Historic Property: | N | Remodel Property: | N |
| Multi-Family Redevelopment: | N | | |
| Township: | | Section: | |
| Range: | |
Location |
| Address: | 2483 SOUNDVIEW DR LANGLEY, WA 98260 | Mapsco: | |
| Neighborhood: | Cycle 3 | Map ID: | 782 |
| Neighborhood CD: | 3 |
Owner |
| Name: | TRINITY LUTHERAN CHURCH | Owner ID: | 310917 |
| Mailing Address: | PO BOX 97 FREELAND, WA 98249 | % Ownership: | 100.0000000000% |
| | | Exemptions: | |
Taxes and Assessment Details
Values
| (+) Improvement Homesite Value: | + | $0 | |
| (+) Improvement Non-Homesite Value: | + | $485,664 | |
| (+) Land Homesite Value: | + | $0 | |
| (+) Land Non-Homesite Value: | + | $390,000 | |
| (+) Curr Use (HS): | + | $0 | $0 |
| (+) Curr Use (NHS): | + | $0 | $0 |
| | | -------------------------- | |
| (=) Market Value: | = | $875,664 | |
| (–) Productivity Loss: | – | $0 | |
| | | -------------------------- | |
| (=) Subtotal: | = | $875,664 | |
| (+) Senior Appraised Value: | + | $0 | |
| (+) Non-Senior Appraised Value: | + | $875,664 | |
| | | -------------------------- | |
| (=) Total Appraised Value: | = | $875,664 | |
| (–) Senior Exemption Loss: | – | $0 | |
| (–) Exemption Loss: | – | $0 | |
| | | -------------------------- | |
| (=) Taxable Value: | = | $875,664 | |
Taxing Jurisdiction
| Owner: | TRINITY LUTHERAN CHURCH | | |
| % Ownership: | 100.0000000000% | | |
| Total Value: | $875,664 | | |
| Tax Area: | 750 - APPRAISER-S Whid Schl Dist, Special District, improved & less than 1 acre |
| CF | Conservation Futures | 0.0313996660 | $875,664 | $875,664 | $27.50 | | |
| FIRE3 | Fire & Rescue Dist #3 S Whidbey GEN | 1.2130821753 | $875,664 | $875,664 | $1,062.25 | | |
| HOBOND | Hospital BOND | 0.1893405597 | $875,664 | $875,664 | $165.80 | | |
| HOGEN | Hospital GEN | 0.3848777722 | $875,664 | $875,664 | $337.02 | | |
| CE | County Current Expense | 0.3674210519 | $875,664 | $875,664 | $321.74 | | |
| CR | County Roads | 0.4614296361 | $875,664 | $875,664 | $404.06 | | |
| ISLANDEMS | Hospital GEN (EMS) | 0.4952018576 | $875,664 | $875,664 | $433.63 | | |
| LIB | Library Sno-Isle GEN | 0.3039084203 | $875,664 | $875,664 | $266.12 | | |
| PORTWHID | Port of S Whidbey GEN | 0.1086004714 | $875,664 | $875,664 | $95.10 | | |
| SCH206BOND | School 206 BOND | 0.5960237832 | $875,664 | $875,664 | $521.92 | | |
| SCH206CAP | School 206 CP | 0.3066144020 | $875,664 | $875,664 | $268.49 | | |
| SCH206MO | School 206 Enrichment | 0.4808755445 | $875,664 | $875,664 | $421.09 | | |
| ST | State School | 1.4761226122 | $875,664 | $875,664 | $1,292.59 | | |
| ST2 | State School Part 2 | 0.7953803475 | $875,664 | $875,664 | $696.49 | | |
| SWHIDPRBD | P & R S Whidbey BOND | 0.0144185398 | $875,664 | $875,664 | $12.63 | | |
| SWHIDPRBD3 | P & R S Whidbey BOND3 | 0.1483535547 | $875,664 | $875,664 | $129.91 | | |
| SWHIDPRMT | P & R S Whidbey GEN | 0.4600000000 | $875,664 | $875,664 | $402.81 | | |
| | Total Tax Rate: | 7.8330503944 | | | | | |
| | | | | Taxes w/Current Exemptions: | $6,859.15 | | |
| | | | | Taxes w/o Exemptions: | $6,859.15 | | |
Improvement / Building
| Improvement #1: | RESIDENTIAL | State Code: | Y | 2284.6 sqft | Value: | $485,664 |
| Bathrooms: | 3 | Bedrooms: | 3 | | Ceiling: | DRYWALL PAINTED | Exterior Wall/Cover: | WOOD SIDING | | Floor Covering: | HARDWOOD/CARP 60-40 | Floor Structure: | WOOD W/SUBFLOOR | | Foundation: | CONCRETE | Heating: | FHA GAS | | Interior Finish: | DRYWALL PAINT | Plumbing Fixture Cnt: | 12 | | Roof Slope: | 12" IN 12" | Roof Structure/Cover: | CJ ASPHALT |
|
| | Type | Description | Class CD | Sub Class CD | Year Built | Area |
| | BAS | BASE/MAIN FLOOR | 4 | 0 | 1999 | 1598.3 |
| | ATF | ATTIC FINISHED | 4 | 0 | 1999 | 308.0 |
| | BIG | BUILT IN GARAGE | 4 | 0 | 1999 | 508.8 |
| | UPS | UPPER STORY | 4 | 0 | 1999 | 686.3 |
| | OWP | OPEN WOOD PORCH W/STEPS | 4 | 0 | 1999 | 290.2 |
| | OWC | OPEN WOOD PORCH W/STEPS/ROOF/C | 4 | 0 | 1999 | 209.7 |
Sketch
Property Image
Land
| 1 | 14 | SQ (08001-12000) | 0.0000 | 0.00 | 0.00 | 0.00 | 1.00 | $390,000 | $0 |
Roll Value History
| 2026 | N/A | N/A | N/A | N/A | N/A |
| 2025 | $485,664 | $390,000 | $0 | $875,664 | $875,664 |
| 2024 | $491,717 | $350,000 | $0 | $841,717 | $841,717 |
| 2023 | $497,769 | $320,000 | $0 | $817,769 | $817,769 |
| 2022 | $456,219 | $270,000 | $0 | $726,219 | $726,219 |
| 2021 | $401,459 | $200,000 | $0 | $601,459 | $601,459 |
| 2020 | $391,477 | $150,000 | $0 | $541,477 | $541,477 |
| 2019 | $297,127 | $210,000 | $0 | $507,127 | $507,127 |
| 2018 | $298,047 | $190,000 | $0 | $488,047 | $488,047 |
| 2017 | $299,890 | $160,000 | $0 | $459,890 | $459,890 |
| 2016 | $303,573 | $140,000 | $0 | $443,573 | $443,573 |
| 2015 | $307,256 | $125,000 | $0 | $432,256 | $432,256 |
| 2014 | $310,937 | $125,000 | $0 | $435,937 | $435,937 |
| 2013 | $314,619 | $118,800 | $0 | $433,419 | $433,419 |
| 2012 | $318,304 | $118,800 | $0 | $437,104 | $437,104 |
| 2011 | $321,986 | $118,800 | $0 | $440,786 | $440,786 |
| 2010 | $331,464 | $135,000 | $0 | $466,464 | $466,464 |
| 2009 | $351,055 | $185,000 | $0 | $536,055 | $536,055 |
| 2008 | $355,537 | $185,000 | $0 | $540,537 | $540,537 |
| 2007 | $358,774 | $185,000 | $0 | $543,774 | $543,774 |
Deed and Sales History
| 1 | 12/06/2023 | WD | Warranty Deed | HUMLING, JUILE G | TRINITY LUTHERAN CHURCH | | | $835,000.00 | 58711 | 4567435 |
| 2 | 08/04/2010 | WD | Warranty Deed | DORAN, GREGORY A | HUMLING, JUILE G | | | $407,000.00 | 2097 | 4279509 |
| 3 | 07/10/2002 | WD | Warranty Deed | MOORE, JOHN O | DORAN, GREGORY A | | | $349,000.00 | 22785 | 4025910 |
| 4 | 11/07/2000 | WD | Warranty Deed | HOUTS, RICHARD H | MOORE, JOHN O | | | $330,000.00 | 4343 | 20019968 |
| 5 | 09/27/1999 | WD | Warranty Deed | CASA GROUP CORP, | HOUTS, RICHARD H | | | $320,950.00 | 94068 | 99022451 |
| 6 | 08/23/1999 | BLA | DNU - Boundary Line Adjustment | CASA GROUP CORP, | CASA GROUP CORP, | | | $0.00 | 68411 | 99009551 |
| 7 | 12/14/1998 | WD | Warranty Deed | ALLDERDICE, JOHN D | CASA GROUP CORP, | | | $69,000.00 | 90171 | 99001051 |
| 8 | 04/01/1992 | WD | Warranty Deed | STEWART, CHARLES G | ALLDERDICE, JOHN D | | | $57,500.00 | 21400 | 92006767 |
| 9 | 12/01/1986 | WD | Warranty Deed | MILBY, F M | STEWART, CHARLES G | | | $21,200.00 | 63468 | 86015660 |
| 10 | 01/01/1900 | OTHER | Other - Misc. Documents | Unknown | MILBY, F M | | | $0.00 | 0 | 0 |
Payout Agreement
| No payout information available.. |