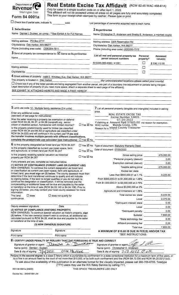
Property
Account |
| Property ID: | 41591 | Abbreviated Legal Description: | IN TAFT DC - BG SWCR TERPSTRA ADD N01*E27.97' TP WLN 40TH NE ST TPB N01*E ALG RD 146.98' N88*W73.74' S01*W171.95' TO NLN 700TH AVE E S88*E ALG SD RD 48.77 NELY ALG CUR/L 39.24' TPB |
| Geographic ID: | R13335-065-4560 | Agent Code: | |
| Type: | Real | | |
| Tax Area: | 100 - APPRAISER-OH Schl Dist, in OH | Land Use Code | 12 |
| Open Space: | N | DFL | N |
| Historic Property: | N | Remodel Property: | N |
| Multi-Family Redevelopment: | N | | |
| Township: | 33 | Section: | 35 |
| Range: | R1 |
Location |
| Address: | 1488 E WHIDBEY AVE OAK HARBOR, WA 98277 | Mapsco: | |
| Neighborhood: | 6BcOH-whidbey ave | Map ID: | 257 |
| Neighborhood CD: | 6BcOHwhdby |
Owner |
| Name: | ANDERSON, CHRISTOPHER D | Owner ID: | 256879 |
| Mailing Address: | SHELBY E ANDERSON 2205 RESERVATION RD OAK HARBOR, WA 98277 | % Ownership: | 100.0000000000% |
| | | Exemptions: | |
Taxes and Assessment Details
Values
| (+) Improvement Homesite Value: | + | $0 | |
| (+) Improvement Non-Homesite Value: | + | $197,250 | |
| (+) Land Homesite Value: | + | $0 | |
| (+) Land Non-Homesite Value: | + | $195,149 | |
| (+) Curr Use (HS): | + | $0 | $0 |
| (+) Curr Use (NHS): | + | $0 | $0 |
| | | -------------------------- | |
| (=) Market Value: | = | $392,399 | |
| (–) Productivity Loss: | – | $0 | |
| | | -------------------------- | |
| (=) Subtotal: | = | $392,399 | |
| (+) Senior Appraised Value: | + | $0 | |
| (+) Non-Senior Appraised Value: | + | $392,399 | |
| | | -------------------------- | |
| (=) Total Appraised Value: | = | $392,399 | |
| (–) Senior Exemption Loss: | – | $0 | |
| (–) Exemption Loss: | – | $0 | |
| | | -------------------------- | |
| (=) Taxable Value: | = | $392,399 | |
Taxing Jurisdiction
| Owner: | ANDERSON, CHRISTOPHER D | | |
| % Ownership: | 100.0000000000% | | |
| Total Value: | $392,399 | | |
| Tax Area: | 100 - APPRAISER-OH Schl Dist, in OH |
| CF | Conservation Futures | 0.0313996660 | $392,399 | $392,399 | $12.32 | | |
| CEM1 | Cemetery #1 | 0.0040018856 | $392,399 | $392,399 | $1.57 | | |
| COH | City of Oak Harbor | 2.3090730572 | $392,399 | $392,399 | $906.08 | | |
| OAKBOND | City of Oak Harbor BOND | 0.1902260131 | $392,399 | $392,399 | $74.64 | | |
| HOBOND | Hospital BOND | 0.1893405597 | $392,399 | $392,399 | $74.30 | | |
| HOGEN | Hospital GEN | 0.3848777722 | $392,399 | $392,399 | $151.03 | | |
| CE | County Current Expense | 0.3674210519 | $392,399 | $392,399 | $144.18 | | |
| ISLANDEMS | Hospital GEN (EMS) | 0.4952018576 | $392,399 | $392,399 | $194.32 | | |
| LIB | Library Sno-Isle GEN | 0.3039084203 | $392,399 | $392,399 | $119.25 | | |
| NWHIDPRMT | P & R N Whidbey GEN | 0.1990272349 | $392,399 | $392,399 | $78.10 | | |
| SCH201MO | School 201 Enrichment | 2.3851112745 | $392,399 | $392,399 | $935.92 | | |
| ST | State School | 1.4761226122 | $392,399 | $392,399 | $579.23 | | |
| ST2 | State School Part 2 | 0.7953803475 | $392,399 | $392,399 | $312.11 | | |
| | Total Tax Rate: | 9.1310917527 | | | | | |
| | | | | Taxes w/Current Exemptions: | $3,583.05 | | |
| | | | | Taxes w/o Exemptions: | $3,583.05 | | |
Improvement / Building
| Improvement #1: | RESIDENTIAL | State Code: | A1 | 820.0 sqft | Value: | $109,583 |
| Bathrooms: | 1.5 | Bedrooms: | 2 | | Ceiling: | DRYWALL PAINTED | Exterior Wall/Cover: | PLY/HARDBOARD T-111 | | Floor Covering: | VINYL 100% | Floor Structure: | WOOD W/SUBFLOOR | | Foundation: | CONCRETE | Heating: | WALL HEAT ELECTRIC | | Interior Finish: | DRYWALL PAINT | Plumbing Fixture Cnt: | 8 | | Roof Slope: | 4" IN 12" | Roof Structure/Cover: | CJ ALUMINIUM HEAVY |
|
| Improvement #2: | RESIDENTIAL | State Code: | A1 | 820.0 sqft | Value: | $87,667 |
| Bathrooms: | 1.5 | Bedrooms: | 2 | | Ceiling: | DRYWALL PAINTED | Exterior Wall/Cover: | PLY/HARDBOARD T-111 | | Floor Covering: | VINYL 100% | Floor Structure: | WOOD W/SUBFLOOR | | Foundation: | CONCRETE | Heating: | WALL HEAT ELECTRIC | | Interior Finish: | DRYWALL PAINT | Plumbing Fixture Cnt: | 8 | | Roof Slope: | 4" IN 12" | Roof Structure/Cover: | CJ ALUMINIUM HEAVY |
|
Sketch
Property Image
Land
| 1 | 15 | SQ (12001-21780) | 0.2800 | 12196.80 | 0.00 | 0.00 | 1.00 | $195,149 | $0 |
Roll Value History
| 2026 | N/A | N/A | N/A | N/A | N/A |
| 2025 | $197,250 | $195,149 | $0 | $392,399 | $392,399 |
| 2024 | $222,526 | $195,149 | $0 | $417,675 | $417,675 |
| 2023 | $225,884 | $170,000 | $0 | $395,884 | $395,884 |
| 2022 | $201,112 | $135,000 | $0 | $336,112 | $336,112 |
| 2021 | $177,644 | $135,000 | $0 | $312,644 | $312,644 |
| 2020 | $172,960 | $100,000 | $0 | $272,960 | $272,960 |
| 2019 | $127,610 | $150,000 | $0 | $277,610 | $277,610 |
| 2018 | $128,090 | $125,000 | $0 | $253,090 | $253,090 |
| 2017 | $129,054 | $90,000 | $0 | $219,054 | $219,054 |
| 2016 | $125,894 | $90,000 | $0 | $215,894 | $215,894 |
| 2015 | $125,894 | $89,561 | $0 | $215,455 | $215,455 |
| 2014 | $125,894 | $89,561 | $0 | $215,455 | $215,455 |
| 2013 | $125,894 | $89,561 | $0 | $215,455 | $215,455 |
| 2012 | $125,894 | $89,561 | $0 | $215,455 | $215,455 |
| 2011 | $125,894 | $89,561 | $0 | $215,455 | $215,455 |
| 2010 | $125,548 | $89,561 | $0 | $215,109 | $215,109 |
| 2009 | $131,300 | $101,309 | $0 | $232,609 | $232,609 |
| 2008 | $133,174 | $101,309 | $0 | $234,483 | $234,483 |
| 2007 | $135,050 | $101,309 | $0 | $236,359 | $236,359 |
Deed and Sales History
| 1 | 07/05/2022 | WD | Warranty Deed | DUCKEN, DENISE I | ANDERSON, CHRISTOPHER D | | | $475,000.00 | 53835 | 4548429 |
| 2 | 05/18/2005 | ESTSEPPROP | Establish Separate Property | DUCKEN, PAUL S | DUCKEN, DENISE I | | | $0.00 | 52159 | 4134413 |
| 3 | 12/10/1999 | WD | Warranty Deed | DOLL, DENNIS A | DUCKEN, PAUL S | | | $142,500.00 | 95052 | 99028147 |
| 4 | 11/01/1997 | WD | Warranty Deed | HARRINGTON, DAVID L | DOLL, DENNIS A | | | $127,000.00 | 73938 | 97018854 |
| 5 | 11/01/1992 | QCD | Quit Claim Deed | MCMILLAN, GORDON D | HARRINGTON, DAVID L | | | $0.00 | 24932 | 92024271 |
| 6 | 11/01/1992 | WD | Warranty Deed | HARRINGTON, DAVID L | MCMILLAN, GORDON D | | | $115,000.00 | 24933 | 92024272 |
| 7 | 04/01/1980 | PACD | Purchaser's Assignment | COBLE, MARK F | HARRINGTON, DAVID L | | | $23,000.00 | 1499 | 368314 |
| 8 | 03/01/1979 | EXECUTORD | Executor Deed | MASSEY, WILLIAM L | COBLE, MARK F | | | $0.00 | 91253 | 0 |
| 9 | 02/01/1979 | EZ | Easement | MELTON, BEN L | MASSEY, WILLIAM L | | | $0.00 | 90659 | 0 |
| 10 | 08/01/1978 | EXECUTORD | Executor Deed | DEBOO, ALPHONSE | MELTON, BEN L | | | $0.00 | 84208 | 0 |
| 11 | 01/01/1900 | OTHER | Other - Misc. Documents | Unknown | DEBOO, ALPHONSE | | | $0.00 | 0 | 0 |
Payout Agreement
| No payout information available.. |