Property
Account |
| Property ID: | 41617 | Abbreviated Legal Description: | IN TAFT DC - BG NW CR TERPSTRA ADD N88*W225' S1* W30' TPB S88*E189.97' ALG CUR/R 55.02' N88*W73.74' S1 *W39.95' N88*W151.18' N1* E75' TPB |
| Geographic ID: | R13335-069-4500 | Agent Code: | |
| Type: | Real | | |
| Tax Area: | 100 - APPRAISER-OH Schl Dist, in OH | Land Use Code | 11 |
| Open Space: | N | DFL | N |
| Historic Property: | N | Remodel Property: | N |
| Multi-Family Redevelopment: | N | | |
| Township: | 33 | Section: | 35 |
| Range: | R1 |
Location |
| Address: | 45 NE NUNAN LOOP OAK HARBOR, WA 98277 | Mapsco: | |
| Neighborhood: | Cycle 1 | Map ID: | 257 |
| Neighborhood CD: | 1 |
Owner |
| Name: | MUSK, DINTY J | Owner ID: | 299588 |
| Mailing Address: | TIFFANY M SCRIBNER 45 NE NUNAN LOOP OAK HARBOR, WA 98277 | % Ownership: | 100.0000000000% |
| | | Exemptions: | |
Taxes and Assessment Details
Values
| (+) Improvement Homesite Value: | + | $0 | |
| (+) Improvement Non-Homesite Value: | + | $225,384 | |
| (+) Land Homesite Value: | + | $0 | |
| (+) Land Non-Homesite Value: | + | $185,000 | |
| (+) Curr Use (HS): | + | $0 | $0 |
| (+) Curr Use (NHS): | + | $0 | $0 |
| | | -------------------------- | |
| (=) Market Value: | = | $410,384 | |
| (–) Productivity Loss: | – | $0 | |
| | | -------------------------- | |
| (=) Subtotal: | = | $410,384 | |
| (+) Senior Appraised Value: | + | $0 | |
| (+) Non-Senior Appraised Value: | + | $410,384 | |
| | | -------------------------- | |
| (=) Total Appraised Value: | = | $410,384 | |
| (–) Senior Exemption Loss: | – | $0 | |
| (–) Exemption Loss: | – | $0 | |
| | | -------------------------- | |
| (=) Taxable Value: | = | $410,384 | |
Taxing Jurisdiction
| Owner: | MUSK, DINTY J | | |
| % Ownership: | 100.0000000000% | | |
| Total Value: | $410,384 | | |
| Tax Area: | 100 - APPRAISER-OH Schl Dist, in OH |
| CF | Conservation Futures | 0.0313996660 | $410,384 | $410,384 | $12.89 | | |
| CEM1 | Cemetery #1 | 0.0040018856 | $410,384 | $410,384 | $1.64 | | |
| COH | City of Oak Harbor | 2.3090730572 | $410,384 | $410,384 | $947.61 | | |
| OAKBOND | City of Oak Harbor BOND | 0.1902260131 | $410,384 | $410,384 | $78.07 | | |
| HOBOND | Hospital BOND | 0.1893405597 | $410,384 | $410,384 | $77.70 | | |
| HOGEN | Hospital GEN | 0.3848777722 | $410,384 | $410,384 | $157.95 | | |
| CE | County Current Expense | 0.3674210519 | $410,384 | $410,384 | $150.78 | | |
| ISLANDEMS | Hospital GEN (EMS) | 0.4952018576 | $410,384 | $410,384 | $203.22 | | |
| LIB | Library Sno-Isle GEN | 0.3039084203 | $410,384 | $410,384 | $124.72 | | |
| NWHIDPRMT | P & R N Whidbey GEN | 0.1990272349 | $410,384 | $410,384 | $81.68 | | |
| SCH201MO | School 201 Enrichment | 2.3851112745 | $410,384 | $410,384 | $978.81 | | |
| ST | State School | 1.4761226122 | $410,384 | $410,384 | $605.78 | | |
| ST2 | State School Part 2 | 0.7953803475 | $410,384 | $410,384 | $326.41 | | |
| | Total Tax Rate: | 9.1310917527 | | | | | |
| | | | | Taxes w/Current Exemptions: | $3,747.26 | | |
| | | | | Taxes w/o Exemptions: | $3,747.26 | | |
Improvement / Building
| Improvement #1: | RESIDENTIAL | State Code: | Y | 1400.0 sqft | Value: | $225,384 |
| Bathrooms: | 2 | Bedrooms: | 2 | | Ceiling: | DRY WALL SPRAYED | Exterior Wall/Cover: | VINYL | | Floor Covering: | CARPET/VINYL 80-20 | Floor Structure: | WOOD W/SUBFLOOR | | Foundation: | CONCRETE | Heating: | FHA GAS | | Interior Finish: | DRYWALL PAINT | Plumbing Fixture Cnt: | 9 | | Roof Slope: | 4" IN 12" | Roof Structure/Cover: | CJ ASPHALT |
|
| | Type | Description | Class CD | Sub Class CD | Year Built | Area |
| | BAS | BASE/MAIN FLOOR | 3 | 0 | 1940 | 1400.0 |
| | OP2 | OPEN PORCH W/STEPS | 3 | 0 | 1940 | 39.0 |
| | DGR | DETACHED GARAGE | 3 | 0 | 1940 | 312.0 |
| | ENP | ENCLOSED PORCH | 3 | 0 | 1940 | 102.0 |
| | CPD | OPEN CARPORT DIRT FLOOR | 3 | 0 | 1940 | 312.0 |
| | DGR | DETACHED GARAGE | 3 | 0 | 1940 | 624.0 |
Sketch
Property Image
Land
| 1 | 15 | SQ (12001-21780) | 0.3200 | 13939.20 | 0.00 | 0.00 | 1.00 | $185,000 | $0 |
Roll Value History
| 2026 | N/A | N/A | N/A | N/A | N/A |
| 2025 | $225,384 | $185,000 | $0 | $410,384 | $410,384 |
| 2024 | $228,504 | $175,000 | $0 | $403,504 | $403,504 |
| 2023 | $215,784 | $180,000 | $0 | $395,784 | $395,784 |
| 2022 | $198,805 | $180,000 | $0 | $378,805 | $378,805 |
| 2021 | $176,141 | $135,000 | $0 | $311,141 | $311,141 |
| 2020 | $172,106 | $100,000 | $0 | $272,106 | $272,106 |
| 2019 | $126,326 | $160,000 | $0 | $286,326 | $286,326 |
| 2018 | $126,747 | $125,000 | $0 | $251,747 | $251,747 |
| 2017 | $94,705 | $110,000 | $0 | $204,705 | $204,705 |
| 2016 | $96,458 | $90,000 | $0 | $186,458 | $186,458 |
| 2015 | $98,213 | $70,000 | $0 | $168,213 | $168,213 |
| 2014 | $99,966 | $55,000 | $0 | $154,966 | $154,966 |
| 2013 | $101,721 | $55,000 | $0 | $156,721 | $156,721 |
| 2012 | $103,473 | $65,000 | $0 | $168,473 | $168,473 |
| 2011 | $101,130 | $50,000 | $0 | $151,130 | $151,130 |
| 2010 | $111,351 | $50,000 | $0 | $161,351 | $161,351 |
| 2009 | $116,076 | $67,230 | $0 | $183,306 | $183,306 |
| 2008 | $117,914 | $81,000 | $0 | $198,914 | $198,914 |
| 2007 | $119,750 | $81,000 | $0 | $200,750 | $200,750 |
Deed and Sales History
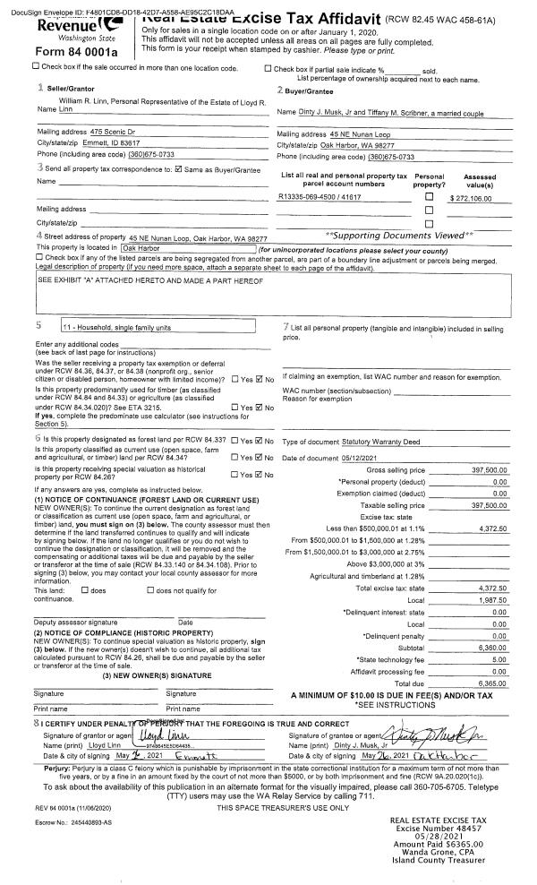
| 1 | 05/12/2021 | WD | Warranty Deed | LINN, LLOYD R | MUSK, DINTY J | | | $397,500.00 | 48457 | 4520499 |
| 2 | 11/19/2014 | TOD | Transfer On Death Deed | LINN, LLOYD R | LINN, LLOYD R | | | | 85045 | |
| 3 | 01/10/2005 | 5 | DNU - Marriage License/Name Change | LINN, LLOYD R | LINN, LLOYD R | | | $0.00 | 50239 | 4123681 |
| 4 | 06/01/1979 | WD | Warranty Deed | MELTON, BEN L | LINN, LLOYD R | | | $7,000.00 | 92853 | 353845 |
| 5 | 01/01/1900 | OTHER | Other - Misc. Documents | Unknown | MELTON, BEN L | | | $0.00 | 0 | 0 |
Payout Agreement
| No payout information available.. |