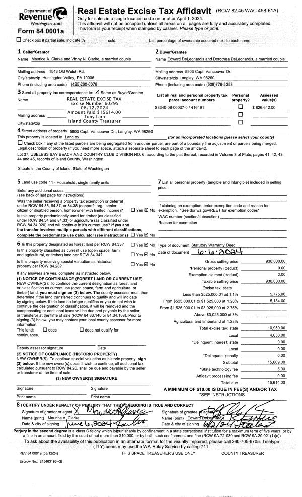
Property
Account |
| Property ID: | 416491 | Abbreviated Legal Description: | USE BAY 6 LOT 37 |
| Geographic ID: | S8340-06-00037-0 | Agent Code: | |
| Type: | Real | | |
| Tax Area: | 750 - APPRAISER-S Whid Schl Dist, Special District, improved & less than 1 acre | Land Use Code | 11 |
| Open Space: | N | DFL | N |
| Historic Property: | N | Remodel Property: | N |
| Multi-Family Redevelopment: | N | | |
| Township: | | Section: | |
| Range: | |
Location |
| Address: | 5903 CAPT VANCOUVER DR LANGLEY, WA 98260 | Mapsco: | |
| Neighborhood: | Cycle 3 | Map ID: | 322 |
| Neighborhood CD: | 3 |
Owner |
| Name: | DELEONARDIS, EDWARD | Owner ID: | 312733 |
| Mailing Address: | DOROTHEA DELEONARDIS 5903 CAPT VANCOUVER DR LANGLEY, WA 98260 | % Ownership: | 100.0000000000% |
| | | Exemptions: | |
Taxes and Assessment Details
Values
| (+) Improvement Homesite Value: | + | $0 | |
| (+) Improvement Non-Homesite Value: | + | $526,916 | |
| (+) Land Homesite Value: | + | $0 | |
| (+) Land Non-Homesite Value: | + | $390,000 | |
| (+) Curr Use (HS): | + | $0 | $0 |
| (+) Curr Use (NHS): | + | $0 | $0 |
| | | -------------------------- | |
| (=) Market Value: | = | $916,916 | |
| (–) Productivity Loss: | – | $0 | |
| | | -------------------------- | |
| (=) Subtotal: | = | $916,916 | |
| (+) Senior Appraised Value: | + | $0 | |
| (+) Non-Senior Appraised Value: | + | $916,916 | |
| | | -------------------------- | |
| (=) Total Appraised Value: | = | $916,916 | |
| (–) Senior Exemption Loss: | – | $0 | |
| (–) Exemption Loss: | – | $0 | |
| | | -------------------------- | |
| (=) Taxable Value: | = | $916,916 | |
Taxing Jurisdiction
| Owner: | DELEONARDIS, EDWARD | | |
| % Ownership: | 100.0000000000% | | |
| Total Value: | $916,916 | | |
| Tax Area: | 750 - APPRAISER-S Whid Schl Dist, Special District, improved & less than 1 acre |
| CF | Conservation Futures | 0.0313996660 | $916,916 | $916,916 | $28.79 | | |
| FIRE3 | Fire & Rescue Dist #3 S Whidbey GEN | 1.2130821753 | $916,916 | $916,916 | $1,112.29 | | |
| HOBOND | Hospital BOND | 0.1893405597 | $916,916 | $916,916 | $173.61 | | |
| HOGEN | Hospital GEN | 0.3848777722 | $916,916 | $916,916 | $352.90 | | |
| CE | County Current Expense | 0.3674210519 | $916,916 | $916,916 | $336.89 | | |
| CR | County Roads | 0.4614296361 | $916,916 | $916,916 | $423.09 | | |
| ISLANDEMS | Hospital GEN (EMS) | 0.4952018576 | $916,916 | $916,916 | $454.06 | | |
| LIB | Library Sno-Isle GEN | 0.3039084203 | $916,916 | $916,916 | $278.66 | | |
| PORTWHID | Port of S Whidbey GEN | 0.1086004714 | $916,916 | $916,916 | $99.58 | | |
| SCH206BOND | School 206 BOND | 0.5960237832 | $916,916 | $916,916 | $546.50 | | |
| SCH206CAP | School 206 CP | 0.3066144020 | $916,916 | $916,916 | $281.14 | | |
| SCH206MO | School 206 Enrichment | 0.4808755445 | $916,916 | $916,916 | $440.92 | | |
| ST | State School | 1.4761226122 | $916,916 | $916,916 | $1,353.48 | | |
| ST2 | State School Part 2 | 0.7953803475 | $916,916 | $916,916 | $729.30 | | |
| SWHIDPRBD | P & R S Whidbey BOND | 0.0144185398 | $916,916 | $916,916 | $13.22 | | |
| SWHIDPRBD3 | P & R S Whidbey BOND3 | 0.1483535547 | $916,916 | $916,916 | $136.03 | | |
| SWHIDPRMT | P & R S Whidbey GEN | 0.4600000000 | $916,916 | $916,916 | $421.78 | | |
| | Total Tax Rate: | 7.8330503944 | | | | | |
| | | | | Taxes w/Current Exemptions: | $7,182.24 | | |
| | | | | Taxes w/o Exemptions: | $7,182.24 | | |
Improvement / Building
| Improvement #1: | RESIDENTIAL | State Code: | Y | 1930.0 sqft | Value: | $526,916 |
| Bathrooms: | 2.5 | Bedrooms: | 2 | | Ceiling: | DRYWALL PAINTED | Exterior Wall/Cover: | FACE BRICK VENEER | | Floor Covering: | CERAMIC TILE/HWD 40/60 | Floor Structure: | WOOD W/SUBFLOOR | | Foundation: | CONCRETE | Heating: | FHA ELECTRIC | | Interior Finish: | DRYWALL PAINT | Plumbing Fixture Cnt: | 11 | | Roof Slope: | 4" IN 12" | Roof Structure/Cover: | CJ CONCRETE TILE |
|
| | Type | Description | Class CD | Sub Class CD | Year Built | Area |
| | BAS | BASE/MAIN FLOOR | 4 | 0 | 1979 | 1930.0 |
| | OP3 | OPEN PORCH W/ROOF | 4 | 0 | 1979 | 60.0 |
| | OP4 | OPEN PORCH W/CEILING-ROOF | 4 | 0 | 1979 | 308.0 |
| | DGR | DETACHED GARAGE | 4 | 0 | 1979 | 625.0 |
| | oCB1 | CABIN UNFI | 3 | 0 | 1979 | 300.0 |
Sketch
| No sketches available for this property. |
Property Image
Land
| 1 | 14 | SQ (08001-12000) | 0.0000 | 0.00 | 0.00 | 0.00 | 1.00 | $390,000 | $0 |
Roll Value History
| 2026 | N/A | N/A | N/A | N/A | N/A |
| 2025 | $526,916 | $390,000 | $0 | $916,916 | $916,916 |
| 2024 | $500,248 | $350,000 | $0 | $850,248 | $850,248 |
| 2023 | $506,642 | $320,000 | $0 | $826,642 | $826,642 |
| 2022 | $464,547 | $270,000 | $0 | $734,547 | $734,547 |
| 2021 | $408,988 | $200,000 | $0 | $608,988 | $608,988 |
| 2020 | $399,131 | $150,000 | $0 | $549,131 | $549,131 |
| 2019 | $297,165 | $210,000 | $0 | $507,165 | $507,165 |
| 2018 | $298,068 | $190,000 | $0 | $488,068 | $488,068 |
| 2017 | $299,875 | $160,000 | $0 | $459,875 | $459,875 |
| 2016 | $303,488 | $140,000 | $0 | $443,488 | $443,488 |
| 2015 | $307,101 | $125,000 | $0 | $432,101 | $432,101 |
| 2014 | $226,481 | $125,000 | $0 | $351,481 | $351,481 |
| 2013 | $219,569 | $105,600 | $0 | $325,169 | $325,169 |
| 2012 | $222,903 | $105,600 | $0 | $328,503 | $328,503 |
| 2011 | $226,238 | $105,600 | $0 | $331,838 | $331,838 |
| 2010 | $245,733 | $120,000 | $0 | $365,733 | $365,733 |
| 2009 | $256,395 | $185,000 | $0 | $441,395 | $441,395 |
| 2008 | $259,773 | $185,000 | $0 | $444,773 | $444,773 |
| 2007 | $258,351 | $185,000 | $0 | $443,351 | $443,351 |
Deed and Sales History
| 1 | 06/06/2024 | WD | Warranty Deed | CLARKE, MAURICE A | DELEONARDIS, EDWARD | | | $930,000.00 | 60295 | 4573360 |
| 2 | 04/30/2014 | WD | Warranty Deed | SCHLUTER, LARRY R | CLARKE, MAURICE A | | | $384,000.00 | 15207 | 4359023 |
| 3 | 06/20/2008 | QCD | Quit Claim Deed | SCHLUTER, RICHARD J | SCHLUTER, RICHARD J | | | $0.00 | 81650 | 4231624 |
| 4 | 02/09/2004 | PRD | Personal Representatives Deed | SCHLUTER, RICHARD J | SCHLUTER, RICHARD J | | | $0.00 | 40713 | 4092398 |
| 5 | 01/01/1900 | OTHER | Other - Misc. Documents | Unknown | SCHLUTER, RICHARD J | | | $0.00 | 0 | 0 |
Payout Agreement
| No payout information available.. |