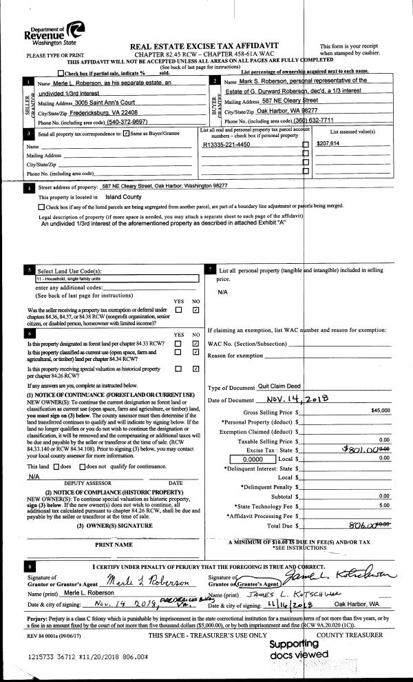
Property
Account |
| Property ID: | 417150 | Abbreviated Legal Description: | USE BAY 6 LOT 103 |
| Geographic ID: | S8340-06-00103-0 | Agent Code: | |
| Type: | Real | | |
| Tax Area: | 759 - APPRAISER-S Whid Schl Dist, Special District, vacant & 50 acres or less | Land Use Code | 99 |
| Open Space: | N | DFL | N |
| Historic Property: | N | Remodel Property: | N |
| Multi-Family Redevelopment: | N | | |
| Township: | | Section: | |
| Range: | |
Location |
| Address: | | Mapsco: | |
| Neighborhood: | Cycle 3 | Map ID: | 322 |
| Neighborhood CD: | 3 |
Owner |
| Name: | BEDFORD, DIANA J | Owner ID: | 287301 |
| Mailing Address: | 2266 LORI DR LANGLEY, WA 98260 | % Ownership: | 100.0000000000% |
| | | Exemptions: | |
Taxes and Assessment Details
Values
| (+) Improvement Homesite Value: | + | $0 | |
| (+) Improvement Non-Homesite Value: | + | $0 | |
| (+) Land Homesite Value: | + | $0 | |
| (+) Land Non-Homesite Value: | + | $12,000 | |
| (+) Curr Use (HS): | + | $0 | $0 |
| (+) Curr Use (NHS): | + | $0 | $0 |
| | | -------------------------- | |
| (=) Market Value: | = | $12,000 | |
| (–) Productivity Loss: | – | $0 | |
| | | -------------------------- | |
| (=) Subtotal: | = | $12,000 | |
| (+) Senior Appraised Value: | + | $0 | |
| (+) Non-Senior Appraised Value: | + | $12,000 | |
| | | -------------------------- | |
| (=) Total Appraised Value: | = | $12,000 | |
| (–) Senior Exemption Loss: | – | $0 | |
| (–) Exemption Loss: | – | $0 | |
| | | -------------------------- | |
| (=) Taxable Value: | = | $12,000 | |
Taxing Jurisdiction
| Owner: | BEDFORD, DIANA J | | |
| % Ownership: | 100.0000000000% | | |
| Total Value: | $12,000 | | |
| Tax Area: | 759 - APPRAISER-S Whid Schl Dist, Special District, vacant & 50 acres or less |
| CF | Conservation Futures | 0.0313996660 | $12,000 | $12,000 | $0.38 | | |
| HOBOND | Hospital BOND | 0.1893405597 | $12,000 | $12,000 | $2.27 | | |
| HOGEN | Hospital GEN | 0.3848777722 | $12,000 | $12,000 | $4.62 | | |
| CE | County Current Expense | 0.3674210519 | $12,000 | $12,000 | $4.41 | | |
| CR | County Roads | 0.4614296361 | $12,000 | $12,000 | $5.54 | | |
| ISLANDEMS | Hospital GEN (EMS) | 0.4952018576 | $12,000 | $12,000 | $5.94 | | |
| LIB | Library Sno-Isle GEN | 0.3039084203 | $12,000 | $12,000 | $3.65 | | |
| PORTWHID | Port of S Whidbey GEN | 0.1086004714 | $12,000 | $12,000 | $1.30 | | |
| SCH206BOND | School 206 BOND | 0.5960237832 | $12,000 | $12,000 | $7.15 | | |
| SCH206CAP | School 206 CP | 0.3066144020 | $12,000 | $12,000 | $3.68 | | |
| SCH206MO | School 206 Enrichment | 0.4808755445 | $12,000 | $12,000 | $5.77 | | |
| ST | State School | 1.4761226122 | $12,000 | $12,000 | $17.71 | | |
| ST2 | State School Part 2 | 0.7953803475 | $12,000 | $12,000 | $9.54 | | |
| SWHIDPRBD | P & R S Whidbey BOND | 0.0144185398 | $12,000 | $12,000 | $0.17 | | |
| SWHIDPRBD3 | P & R S Whidbey BOND3 | 0.1483535547 | $12,000 | $12,000 | $1.78 | | |
| SWHIDPRMT | P & R S Whidbey GEN | 0.4600000000 | $12,000 | $12,000 | $5.52 | | |
| | Total Tax Rate: | 6.6199682191 | | | | | |
| | | | | Taxes w/Current Exemptions: | $79.43 | | |
| | | | | Taxes w/o Exemptions: | $79.43 | | |
Improvement / Building
Sketch
| No sketches available for this property. |
Property Image
Land
| 1 | 14 | SQ (08001-12000) | 0.0000 | 0.00 | 0.00 | 0.00 | 1.00 | $12,000 | $0 |
Roll Value History
| 2026 | N/A | N/A | N/A | N/A | N/A |
| 2025 | $0 | $12,000 | $0 | $12,000 | $12,000 |
| 2024 | $0 | $12,000 | $0 | $12,000 | $12,000 |
| 2023 | $0 | $9,000 | $0 | $9,000 | $9,000 |
| 2022 | $0 | $9,000 | $0 | $9,000 | $9,000 |
| 2021 | $0 | $7,000 | $0 | $7,000 | $7,000 |
| 2020 | $0 | $7,000 | $0 | $7,000 | $7,000 |
| 2019 | $0 | $7,000 | $0 | $7,000 | $7,000 |
| 2018 | $0 | $7,000 | $0 | $7,000 | $7,000 |
| 2017 | $0 | $5,000 | $0 | $5,000 | $5,000 |
| 2016 | $0 | $5,000 | $0 | $5,000 | $5,000 |
| 2015 | $0 | $5,000 | $0 | $5,000 | $5,000 |
| 2014 | $0 | $5,000 | $0 | $5,000 | $5,000 |
| 2013 | $0 | $4,000 | $0 | $4,000 | $4,000 |
| 2012 | $0 | $4,000 | $0 | $4,000 | $4,000 |
| 2011 | $0 | $2,110 | $0 | $2,110 | $2,110 |
| 2010 | $0 | $2,400 | $0 | $2,400 | $2,400 |
| 2009 | $0 | $3,700 | $0 | $3,700 | $3,700 |
| 2008 | $0 | $3,500 | $0 | $3,500 | $3,500 |
| 2007 | $0 | $35,000 | $0 | $35,000 | $35,000 |
Deed and Sales History
| 1 | 09/11/2018 | WD | Warranty Deed | ROWAN, NANCY | BEDFORD, DIANA J | | | $391,250.00 | 36165 | 4452861 |
|   | |
| 2 | 05/01/2017 | WD | Warranty Deed | ELMER, ROBERT | ROWAN, NANCY | | | $327,750.00 | 29190 | 4422074 |
|   | |
| 3 | 10/29/2014 | WD | Warranty Deed | HUDSON, GLENN G | ELMER, ROBERT | | | $259,000.00 | 17430 | 4367953 |
|   | |
| 4 | 12/06/2013 | WD | Warranty Deed | COLLINS, DOROTHY | HUDSON, GLENN G | | | $225,000.00 | 13661 | 4352428 |
|   | |
| 5 | 03/09/2009 | PRD | Personal Representatives Deed | COLLINS, RICHARD D | COLLINS, DOROTHY | | | $0.00 | 90511 | 4246074 |
| 6 | 03/01/1997 | WD | Warranty Deed | H, & H | COLLINS, RICHARD D | | | $10,000.00 | 70838 | 97003814 |
| 7 | 01/01/1900 | OTHER | Other - Misc. Documents | Unknown | H, & H | | | $0.00 | 0 | 0 |
Payout Agreement
| No payout information available.. |