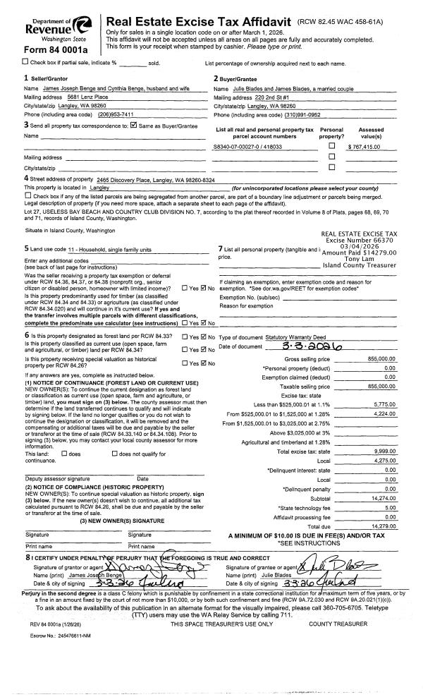
Property
Account |
| Property ID: | 418033 | Abbreviated Legal Description: | USE BAY 7 LOT 27 |
| Geographic ID: | S8340-07-00027-0 | Agent Code: | |
| Type: | Real | | |
| Tax Area: | 750 - APPRAISER-S Whid Schl Dist, Special District, improved & less than 1 acre | Land Use Code | 11 |
| Open Space: | N | DFL | N |
| Historic Property: | N | Remodel Property: | N |
| Multi-Family Redevelopment: | N | | |
| Township: | | Section: | |
| Range: | |
Location |
| Address: | 2465 DISCOVERY PLACE LANGLEY, WA 98260 | Mapsco: | |
| Neighborhood: | Cycle 3 | Map ID: | 782 |
| Neighborhood CD: | 3 |
Owner |
| Name: | BENGE, JAMES J | Owner ID: | 306199 |
| Mailing Address: | CYNTHIA BENGE 2540 6TH AVE W SEATTLE, WA 98119 | % Ownership: | 100.0000000000% |
| | | Exemptions: | |
Taxes and Assessment Details
Values
| (+) Improvement Homesite Value: | + | $0 | |
| (+) Improvement Non-Homesite Value: | + | $477,415 | |
| (+) Land Homesite Value: | + | $0 | |
| (+) Land Non-Homesite Value: | + | $290,000 | |
| (+) Curr Use (HS): | + | $0 | $0 |
| (+) Curr Use (NHS): | + | $0 | $0 |
| | | -------------------------- | |
| (=) Market Value: | = | $767,415 | |
| (–) Productivity Loss: | – | $0 | |
| | | -------------------------- | |
| (=) Subtotal: | = | $767,415 | |
| (+) Senior Appraised Value: | + | $0 | |
| (+) Non-Senior Appraised Value: | + | $767,415 | |
| | | -------------------------- | |
| (=) Total Appraised Value: | = | $767,415 | |
| (–) Senior Exemption Loss: | – | $0 | |
| (–) Exemption Loss: | – | $0 | |
| | | -------------------------- | |
| (=) Taxable Value: | = | $767,415 | |
Taxing Jurisdiction
| Owner: | BENGE, JAMES J | | |
| % Ownership: | 100.0000000000% | | |
| Total Value: | $767,415 | | |
| Tax Area: | 750 - APPRAISER-S Whid Schl Dist, Special District, improved & less than 1 acre |
| CF | Conservation Futures | 0.0313996660 | $767,415 | $767,415 | $24.10 | | |
| FIRE3 | Fire & Rescue Dist #3 S Whidbey GEN | 1.2130821753 | $767,415 | $767,415 | $930.94 | | |
| HOBOND | Hospital BOND | 0.1893405597 | $767,415 | $767,415 | $145.30 | | |
| HOGEN | Hospital GEN | 0.3848777722 | $767,415 | $767,415 | $295.36 | | |
| CE | County Current Expense | 0.3674210519 | $767,415 | $767,415 | $281.96 | | |
| CR | County Roads | 0.4614296361 | $767,415 | $767,415 | $354.11 | | |
| ISLANDEMS | Hospital GEN (EMS) | 0.4952018576 | $767,415 | $767,415 | $380.03 | | |
| LIB | Library Sno-Isle GEN | 0.3039084203 | $767,415 | $767,415 | $233.22 | | |
| PORTWHID | Port of S Whidbey GEN | 0.1086004714 | $767,415 | $767,415 | $83.34 | | |
| SCH206BOND | School 206 BOND | 0.5960237832 | $767,415 | $767,415 | $457.40 | | |
| SCH206CAP | School 206 CP | 0.3066144020 | $767,415 | $767,415 | $235.30 | | |
| SCH206MO | School 206 Enrichment | 0.4808755445 | $767,415 | $767,415 | $369.03 | | |
| ST | State School | 1.4761226122 | $767,415 | $767,415 | $1,132.80 | | |
| ST2 | State School Part 2 | 0.7953803475 | $767,415 | $767,415 | $610.39 | | |
| SWHIDPRBD | P & R S Whidbey BOND | 0.0144185398 | $767,415 | $767,415 | $11.07 | | |
| SWHIDPRBD3 | P & R S Whidbey BOND3 | 0.1483535547 | $767,415 | $767,415 | $113.85 | | |
| SWHIDPRMT | P & R S Whidbey GEN | 0.4600000000 | $767,415 | $767,415 | $353.01 | | |
| | Total Tax Rate: | 7.8330503944 | | | | | |
| | | | | Taxes w/Current Exemptions: | $6,011.21 | | |
| | | | | Taxes w/o Exemptions: | $6,011.21 | | |
Improvement / Building
| Improvement #1: | RESIDENTIAL | State Code: | Y | 2610.7 sqft | Value: | $477,415 |
| Bathrooms: | 3 | Bedrooms: | 2 | | Ceiling: | DRYWALL PAINTED | Exterior Wall/Cover: | WOOD SIDING | | Floor Covering: | CARPET/VINYL 20-80 | Floor Structure: | WOOD W/SUBFLOOR | | Foundation: | CONCRETE | Heating: | FHA GAS | | Interior Finish: | DRYWALL PAINT | Plumbing Fixture Cnt: | 12 | | Roof Slope: | 6" IN 12" | Roof Structure/Cover: | CJ ASPHALT |
|
| | Type | Description | Class CD | Sub Class CD | Year Built | Area |
| | BAS | BASE/MAIN FLOOR | 4 | 0 | 1999 | 1757.1 |
| | BIG | BUILT IN GARAGE | 4 | 0 | 1999 | 440.0 |
| | OWP | OPEN WOOD PORCH W/STEPS | 4 | 0 | 1999 | 378.6 |
| | OWC | OPEN WOOD PORCH W/STEPS/ROOF/C | 4 | 0 | 1999 | 123.2 |
| | UPH | HALF STORY | 4 | 0 | 1999 | 853.6 |
Sketch
Property Image
Land
| 1 | 14 | SQ (08001-12000) | 0.0000 | 0.00 | 0.00 | 0.00 | 1.00 | $290,000 | $0 |
Roll Value History
| 2026 | N/A | N/A | N/A | N/A | N/A |
| 2025 | $477,415 | $290,000 | $0 | $767,415 | $767,415 |
| 2024 | $483,151 | $270,000 | $0 | $753,151 | $753,151 |
| 2023 | $488,885 | $250,000 | $0 | $738,885 | $738,885 |
| 2022 | $458,723 | $210,000 | $0 | $668,723 | $668,723 |
| 2021 | $403,689 | $180,000 | $0 | $583,689 | $583,689 |
| 2020 | $393,843 | $140,000 | $0 | $533,843 | $533,843 |
| 2019 | $311,853 | $180,000 | $0 | $491,853 | $491,853 |
| 2018 | $312,757 | $155,000 | $0 | $467,757 | $467,757 |
| 2017 | $314,499 | $120,000 | $0 | $434,499 | $434,499 |
| 2016 | $318,115 | $95,000 | $0 | $413,115 | $413,115 |
| 2015 | $321,730 | $65,000 | $0 | $386,730 | $386,730 |
| 2014 | $325,344 | $75,000 | $0 | $400,344 | $400,344 |
| 2013 | $301,296 | $96,800 | $0 | $398,096 | $398,096 |
| 2012 | $304,821 | $96,800 | $0 | $401,621 | $401,621 |
| 2011 | $308,344 | $96,800 | $0 | $405,144 | $405,144 |
| 2010 | $318,303 | $110,000 | $0 | $428,303 | $428,303 |
| 2009 | $331,898 | $185,000 | $0 | $516,898 | $516,898 |
| 2008 | $335,799 | $185,000 | $0 | $520,799 | $520,799 |
| 2007 | $339,177 | $185,000 | $0 | $524,177 | $524,177 |
Deed and Sales History
| 1 | 09/22/2022 | WD | Warranty Deed | LAYTON, ROBERT H | BENGE, JAMES J | | | $640,000.00 | 54723 | 4551965 |
| 2 | 02/09/2021 | WD | Warranty Deed | BCL TRUST I | LAYTON, ROBERT H | | | $0.00 | 47947 | 4517414 |
| 3 | 01/31/2006 | WD | Warranty Deed | BEAGLE, ROY E | BCL TRUST I, | | | $400,000.00 | 60488 | 4161568 |
| 4 | 08/05/2005 | PRD | Personal Representatives Deed | WILLIAMS, ALBERTA R | BEAGLE, ROY E | | | $387,000.00 | 54193 | 4145492 |
| 5 | 01/21/2000 | WD | Warranty Deed | CASA GROUP CORP, | WILLIAMS, ALBERTA R | | | $240,000.00 | 302 | 20001637 |
| 6 | 10/26/1998 | WD | Warranty Deed | KLANSNIC, JAMES E | CASA GROUP CORP, | | | $50,000.00 | 84399 | 99006508 |
| 7 | 07/01/1996 | PRD | Personal Representatives Deed | KLANSNIC, JAMES E | KLANSNIC, JAMES E | | | $0.00 | 62779 | 96013573 |
| 8 | 01/01/1989 | WD | Warranty Deed | NELSON, LLOYD V | KLANSNIC, JAMES E | | | $9,000.00 | 90238 | 89000841 |
| 9 | 01/01/1900 | OTHER | Other - Misc. Documents | Unknown | NELSON, LLOYD V | | | $0.00 | 0 | 0 |
Payout Agreement
| No payout information available.. |