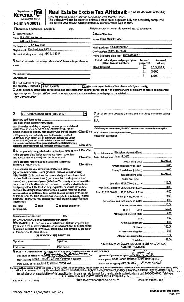
Property
Account |
| Property ID: | 418925 | Abbreviated Legal Description: | USE BAY 7 LOT 89 |
| Geographic ID: | S8340-07-00089-0 | Agent Code: | |
| Type: | Real | | |
| Tax Area: | 859 - APPRAISER-S Whid Schl Dist, Special District, vacant & 50 acres or less | Land Use Code | 99 |
| Open Space: | N | DFL | N |
| Historic Property: | N | Remodel Property: | N |
| Multi-Family Redevelopment: | N | | |
| Township: | | Section: | |
| Range: | |
Location |
| Address: | SOUNDVIEW DR LANGLEY, WA 98260 | Mapsco: | |
| Neighborhood: | Cycle 3 | Map ID: | 783 |
| Neighborhood CD: | 3 |
Owner |
| Name: | TEXAS HOLD'EM LLC | Owner ID: | 309007 |
| Mailing Address: | 4596 HARVARD LN FRISCO, TX 75034 | % Ownership: | 100.0000000000% |
| | | Exemptions: | |
Taxes and Assessment Details
Values
| (+) Improvement Homesite Value: | + | N/A | |
| (+) Improvement Non-Homesite Value: | + | N/A | |
| (+) Land Homesite Value: | + | N/A | |
| (+) Land Non-Homesite Value: | + | N/A | Ag / Timber Use Value |
| (+) Curr Use (HS): | + | N/A | N/A |
| (+) Curr Use (NHS): | + | N/A | N/A |
| | | -------------------------- | |
| (=) Market Value: | = | N/A | |
| (–) Productivity Loss: | – | N/A | |
| | | -------------------------- | |
| (=) Subtotal: | = | N/A | |
| (+) Senior Appraised Value: | + | N/A | |
| (+) Non-Senior Appraised Value: | + | N/A | |
| | | -------------------------- | |
| (=) Total Appraised Value: | = | N/A | |
| (–) Senior Exemption Loss: | – | N/A | |
| (–) Exemption Loss: | – | N/A | |
| | | -------------------------- | |
| (=) Taxable Value: | = | N/A | |
Taxing Jurisdiction
| Owner: | TEXAS HOLD'EM LLC | | |
| % Ownership: | 100.0000000000% | | |
| Total Value: | N/A | | |
| Tax Area: | 859 - APPRAISER-S Whid Schl Dist, Special District, vacant & 50 acres or less |
| CF | Conservation Futures | N/A | N/A | N/A | N/A | | |
| WCD | Whidbey Conservation District | N/A | N/A | N/A | N/A | | |
| HOBOND | Hospital BOND | N/A | N/A | N/A | N/A | | |
| HOGEN | Hospital GEN | N/A | N/A | N/A | N/A | | |
| CE | County Current Expense | N/A | N/A | N/A | N/A | | |
| CR | County Roads | N/A | N/A | N/A | N/A | | |
| ISLANDEMS | Hospital GEN (EMS) | N/A | N/A | N/A | N/A | | |
| LIB | Library Sno-Isle GEN | N/A | N/A | N/A | N/A | | |
| PORTWHID | Port of S Whidbey GEN | N/A | N/A | N/A | N/A | | |
| SCH206CAP | School 206 CP | N/A | N/A | N/A | N/A | | |
| SCH206MO | School 206 Enrichment | N/A | N/A | N/A | N/A | | |
| ST | State School | N/A | N/A | N/A | N/A | | |
| ST2 | State School Part 2 | N/A | N/A | N/A | N/A | | |
| SWHIDPRBD | P & R S Whidbey BOND | N/A | N/A | N/A | N/A | | |
| SWHIDPRBD2 | P & R S Whidbey BOND2 | N/A | N/A | N/A | N/A | | |
| SWHIDPRMT | P & R S Whidbey GEN | N/A | N/A | N/A | N/A | | |
| | Total Tax Rate: | N/A | | | | | |
| | | | | Taxes w/Current Exemptions: | N/A | | |
| | | | | Taxes w/o Exemptions: | N/A | | |
Improvement / Building
Sketch
| No sketches available for this property. |
Property Image
Land
| 1 | 14 | SQ (08001-12000) | 0.1400 | 6098.40 | 0.00 | 0.00 | 1.00 | N/A | N/A |
Roll Value History
| 2026 | N/A | N/A | N/A | N/A | N/A |
| 2025 | $0 | $3,000 | $0 | $3,000 | $3,000 |
| 2024 | $0 | $3,000 | $0 | $3,000 | $3,000 |
| 2023 | $0 | $3,000 | $0 | $3,000 | $3,000 |
| 2022 | $0 | $3,000 | $0 | $3,000 | $3,000 |
| 2021 | $0 | $3,000 | $0 | $3,000 | $3,000 |
| 2020 | $0 | $1,000 | $0 | $1,000 | $1,000 |
| 2019 | $0 | $1,000 | $0 | $1,000 | $1,000 |
| 2018 | $0 | $1,000 | $0 | $1,000 | $1,000 |
| 2017 | $0 | $1,000 | $0 | $1,000 | $1,000 |
| 2016 | $0 | $1,000 | $0 | $1,000 | $1,000 |
| 2015 | $0 | $1,000 | $0 | $1,000 | $1,000 |
| 2014 | $0 | $1,000 | $0 | $1,000 | $1,000 |
| 2013 | $0 | $2,110 | $0 | $2,110 | $2,110 |
| 2012 | $0 | $2,110 | $0 | $2,110 | $2,110 |
| 2011 | $0 | $2,110 | $0 | $2,110 | $2,110 |
| 2010 | $0 | $2,400 | $0 | $2,400 | $2,400 |
| 2009 | $0 | $3,700 | $0 | $3,700 | $3,700 |
| 2008 | $0 | $5,000 | $0 | $5,000 | $5,000 |
| 2007 | $0 | $5,000 | $0 | $5,000 | $5,000 |
Deed and Sales History
| 1 | 06/15/2023 | WD | Warranty Deed | H & H PROPERTIES, INC | TEXAS HOLD'EM LLC | | | $10,000.00 | 57025 | 4561125 |
|   | |
Payout Agreement
| No payout information available.. |