Property
Account |
| Property ID: | 421029 | Abbreviated Legal Description: | USE BAY BCH CC 11 LOT 16 |
| Geographic ID: | S8340-11-00016-0 | Agent Code: | |
| Type: | Real | | |
| Tax Area: | 750 - APPRAISER-S Whid Schl Dist, Special District, improved & less than 1 acre | Land Use Code | 11 |
| Open Space: | N | DFL | N |
| Historic Property: | N | Remodel Property: | N |
| Multi-Family Redevelopment: | N | | |
| Township: | | Section: | |
| Range: | |
Location |
| Address: | 2260 SHORE AVE FREELAND, WA 98249 | Mapsco: | |
| Neighborhood: | Cycle 3 | Map ID: | 344 |
| Neighborhood CD: | 3 |
Owner |
| Name: | TIMBERLAKE FAMILY IRREVOCABLE TRUST | Owner ID: | 317300 |
| Mailing Address: | CRAIG M TIMBERLAKE TTEE 3820 48TH AVE NE SEATTLE, WA 98105 | % Ownership: | 100.0000000000% |
| | | Exemptions: | |
Taxes and Assessment Details
Values
| (+) Improvement Homesite Value: | + | $0 | |
| (+) Improvement Non-Homesite Value: | + | $709,771 | |
| (+) Land Homesite Value: | + | $0 | |
| (+) Land Non-Homesite Value: | + | $1,995,000 | |
| (+) Curr Use (HS): | + | $0 | $0 |
| (+) Curr Use (NHS): | + | $0 | $0 |
| | | -------------------------- | |
| (=) Market Value: | = | $2,704,771 | |
| (–) Productivity Loss: | – | $0 | |
| | | -------------------------- | |
| (=) Subtotal: | = | $2,704,771 | |
| (+) Senior Appraised Value: | + | $0 | |
| (+) Non-Senior Appraised Value: | + | $2,704,771 | |
| | | -------------------------- | |
| (=) Total Appraised Value: | = | $2,704,771 | |
| (–) Senior Exemption Loss: | – | $0 | |
| (–) Exemption Loss: | – | $0 | |
| | | -------------------------- | |
| (=) Taxable Value: | = | $2,704,771 | |
Taxing Jurisdiction
| Owner: | TIMBERLAKE FAMILY IRREVOCABLE TRUST | | |
| % Ownership: | 100.0000000000% | | |
| Total Value: | $2,704,771 | | |
| Tax Area: | 750 - APPRAISER-S Whid Schl Dist, Special District, improved & less than 1 acre |
| CF | Conservation Futures | 0.0313996660 | $2,704,771 | $2,704,771 | $84.93 | | |
| FIRE3 | Fire & Rescue Dist #3 S Whidbey GEN | 1.2130821753 | $2,704,771 | $2,704,771 | $3,281.11 | | |
| HOBOND | Hospital BOND | 0.1893405597 | $2,704,771 | $2,704,771 | $512.12 | | |
| HOGEN | Hospital GEN | 0.3848777722 | $2,704,771 | $2,704,771 | $1,041.01 | | |
| CE | County Current Expense | 0.3674210519 | $2,704,771 | $2,704,771 | $993.79 | | |
| CR | County Roads | 0.4614296361 | $2,704,771 | $2,704,771 | $1,248.06 | | |
| ISLANDEMS | Hospital GEN (EMS) | 0.4952018576 | $2,704,771 | $2,704,771 | $1,339.41 | | |
| LIB | Library Sno-Isle GEN | 0.3039084203 | $2,704,771 | $2,704,771 | $822.00 | | |
| PORTWHID | Port of S Whidbey GEN | 0.1086004714 | $2,704,771 | $2,704,771 | $293.74 | | |
| SCH206BOND | School 206 BOND | 0.5960237832 | $2,704,771 | $2,704,771 | $1,612.11 | | |
| SCH206CAP | School 206 CP | 0.3066144020 | $2,704,771 | $2,704,771 | $829.32 | | |
| SCH206MO | School 206 Enrichment | 0.4808755445 | $2,704,771 | $2,704,771 | $1,300.66 | | |
| ST | State School | 1.4761226122 | $2,704,771 | $2,704,771 | $3,992.57 | | |
| ST2 | State School Part 2 | 0.7953803475 | $2,704,771 | $2,704,771 | $2,151.32 | | |
| SWHIDPRBD | P & R S Whidbey BOND | 0.0144185398 | $2,704,771 | $2,704,771 | $39.00 | | |
| SWHIDPRBD3 | P & R S Whidbey BOND3 | 0.1483535547 | $2,704,771 | $2,704,771 | $401.26 | | |
| SWHIDPRMT | P & R S Whidbey GEN | 0.4600000000 | $2,704,771 | $2,704,771 | $1,244.19 | | |
| | Total Tax Rate: | 7.8330503944 | | | | | |
| | | | | Taxes w/Current Exemptions: | $21,186.60 | | |
| | | | | Taxes w/o Exemptions: | $21,186.60 | | |
Improvement / Building
| Improvement #1: | RESIDENTIAL | State Code: | Y | 3127.0 sqft | Value: | $709,771 |
| Bathrooms: | 3 | Bedrooms: | 3 | | Ceiling: | DRYWALL PAINTED | Exterior Wall/Cover: | SHINGLE | | Floor Covering: | VINYL TILE/HARWD 20-80 | Floor Structure: | WOOD W/SUBFLOOR | | Foundation: | CONCRETE | Heating: | FHA GAS | | Interior Finish: | DRYWALL PAINT | Plumbing Fixture Cnt: | 15 | | Roof Slope: | 6" IN 12" | Roof Structure/Cover: | CJ WOOD SHINGLE |
|
| | Type | Description | Class CD | Sub Class CD | Year Built | Area |
| | BAS | BASE/MAIN FLOOR | 5 | 0 | 1994 | 2243.0 |
| | OP1 | OPEN PORCH SLAB | 5 | 0 | 1994 | 1159.0 |
| | OP1 | OPEN PORCH SLAB | 5 | 0 | 1994 | 390.0 |
| | OP2 | OPEN PORCH W/STEPS | 5 | 0 | 1994 | 321.0 |
| | OP2 | OPEN PORCH W/STEPS | 5 | 0 | 1994 | 65.0 |
| | OP4 | OPEN PORCH W/CEILING-ROOF | 5 | 0 | 1994 | 90.0 |
| | OP4 | OPEN PORCH W/CEILING-ROOF | 5 | 0 | 1994 | 425.0 |
| | BGR | BASEMENT GARAGE | 5 | 0 | 1994 | 956.0 |
| | UPS | UPPER STORY | 5 | 0 | 1994 | 884.0 |
| | OWP | OPEN WOOD PORCH W/STEPS | 5 | 0 | 1994 | 72.0 |
Sketch
Property Image
Land
| 1 | LB | LOW BANK | 0.0000 | 0.00 | 80.00 | 0.00 | 1.00 | $1,995,000 | $0 |
Roll Value History
| 2026 | N/A | N/A | N/A | N/A | N/A |
| 2025 | $709,771 | $1,995,000 | $0 | $2,704,771 | $2,704,771 |
| 2024 | $719,201 | $1,995,000 | $0 | $2,714,201 | $2,714,201 |
| 2023 | $728,633 | $1,995,000 | $0 | $2,723,633 | $2,723,633 |
| 2022 | $668,337 | $1,995,000 | $0 | $2,663,337 | $2,663,337 |
| 2021 | $588,608 | $1,450,000 | $0 | $2,038,608 | $2,038,608 |
| 2020 | $574,211 | $1,450,000 | $0 | $2,024,211 | $2,024,211 |
| 2019 | $462,549 | $1,300,000 | $0 | $1,762,549 | $1,762,549 |
| 2018 | $464,045 | $1,000,000 | $0 | $1,464,045 | $1,464,045 |
| 2017 | $467,042 | $1,000,000 | $0 | $1,467,042 | $1,467,042 |
| 2016 | $473,028 | $900,000 | $0 | $1,373,028 | $1,373,028 |
| 2015 | $479,016 | $750,000 | $0 | $1,229,016 | $1,229,016 |
| 2014 | $485,003 | $1,000,000 | $0 | $1,485,003 | $1,485,003 |
| 2013 | $481,147 | $1,124,859 | $0 | $1,606,006 | $1,606,006 |
| 2012 | $487,146 | $1,124,859 | $0 | $1,612,005 | $1,612,005 |
| 2011 | $493,141 | $1,124,859 | $0 | $1,618,000 | $1,618,000 |
| 2010 | $506,855 | $1,124,859 | $0 | $1,631,714 | $1,631,714 |
| 2009 | $528,496 | $1,495,066 | $0 | $2,023,562 | $2,023,562 |
| 2008 | $535,281 | $1,566,259 | $0 | $2,101,540 | $2,101,540 |
| 2007 | $540,208 | $1,352,678 | $0 | $1,892,886 | $1,892,886 |
Deed and Sales History
| 1 | 07/03/2025 | QCD | Quit Claim Deed | TIMBERLAKE TTEE, CRAIG M | TIMBERLAKE FAMILY IRREVOCABLE TRUST | | | $0.00 | 64081 | 4587940 |
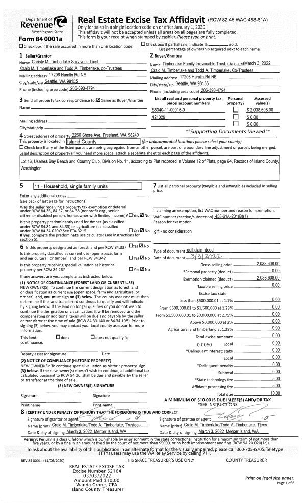
| 2 | 03/03/2022 | QCD | Quit Claim Deed | TIMBERLAKE TTEE, CRAIG M | TIMBERLAKE TTEE, CRAIG M | | | $0.00 | 52164 | 4540813 |
| 3 | 06/26/2020 | QCD | Quit Claim Deed | TIMBERLAKE TTEE, CRAIG M | TIMBERLAKE TTEE, CRAIG M | | | $0.00 | 43705 | 4490821 |
| 4 | 06/26/2020 | QCD | Quit Claim Deed | TIMBERLAKE, WAYNE J | TIMBERLAKE TTEE, CRAIG M | | | $0.00 | 43704 | 4490820 |
| 5 | 10/01/1992 | WD | Warranty Deed | H, & H | TIMBERLAKE, WAYNE J | | | $432,500.00 | 24101 | 92019912 |
| 6 | 01/01/1900 | OTHER | Other - Misc. Documents | Unknown | H, & H | | | $0.00 | 0 | 0 |
Payout Agreement
| No payout information available.. |