Property
Account |
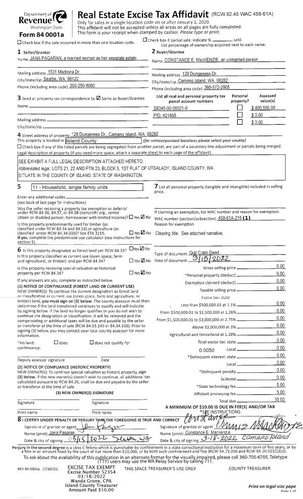
| Property ID: | 421868 | Abbreviated Legal Description: | UTSALADY LOTS 21 & 22 TGW NELY 5'OF LOT 23 BLK 5 TGW NWLY 1/2 ADJ VAC SKAGIT AVE |
| Geographic ID: | S8345-00-05021-0 | Agent Code: | |
| Type: | Real | | |
| Tax Area: | 510 - APPRAISER-Stan/Cam Schl Dist, improved & 1 acre or less | Land Use Code | 11 |
| Open Space: | N | DFL | N |
| Historic Property: | N | Remodel Property: | N |
| Multi-Family Redevelopment: | N | | |
| Township: | | Section: | |
| Range: | |
Location |
| Address: | 128 DUNGENESS DR CAMANO ISLAND, WA 98282 | Mapsco: | |
| Neighborhood: | North Camano | Map ID: | 962 |
| Neighborhood CD: | 06-C |
Owner |
| Name: | MACKENZIE, CONSTANCE E | Owner ID: | 301049 |
| Mailing Address: | 128 DUNGENESS DR CAMANO ISLAND, WA 98282 | % Ownership: | 100.0000000000% |
| | | Exemptions: | |
Taxes and Assessment Details
Values
| (+) Improvement Homesite Value: | + | $0 | |
| (+) Improvement Non-Homesite Value: | + | $231,415 | |
| (+) Land Homesite Value: | + | $0 | |
| (+) Land Non-Homesite Value: | + | $340,000 | |
| (+) Curr Use (HS): | + | $0 | $0 |
| (+) Curr Use (NHS): | + | $0 | $0 |
| | | -------------------------- | |
| (=) Market Value: | = | $571,415 | |
| (–) Productivity Loss: | – | $0 | |
| | | -------------------------- | |
| (=) Subtotal: | = | $571,415 | |
| (+) Senior Appraised Value: | + | $0 | |
| (+) Non-Senior Appraised Value: | + | $571,415 | |
| | | -------------------------- | |
| (=) Total Appraised Value: | = | $571,415 | |
| (–) Senior Exemption Loss: | – | $0 | |
| (–) Exemption Loss: | – | $0 | |
| | | -------------------------- | |
| (=) Taxable Value: | = | $571,415 | |
Taxing Jurisdiction
| Owner: | MACKENZIE, CONSTANCE E | | |
| % Ownership: | 100.0000000000% | | |
| Total Value: | $571,415 | | |
| Tax Area: | 510 - APPRAISER-Stan/Cam Schl Dist, improved & 1 acre or less |
| CF | Conservation Futures | 0.0313996660 | $571,415 | $571,415 | $17.94 | | |
| EMS1 | Fire & Rescue Dist #1 Camano GEN (EMS) | 0.4998471806 | $571,415 | $571,415 | $285.62 | | |
| FIRE1 | Fire & Rescue Dist #1 Camano GEN | 1.2496603404 | $571,415 | $571,415 | $714.07 | | |
| FIRE1BOND | Fire & Rescue Dist #1 Camano BOND | 0.1630371212 | $571,415 | $571,415 | $93.16 | | |
| CE | County Current Expense | 0.3674210519 | $571,415 | $571,415 | $209.95 | | |
| CR | County Roads | 0.4614296361 | $571,415 | $571,415 | $263.67 | | |
| LIB | Library Sno-Isle GEN | 0.3039084203 | $571,415 | $571,415 | $173.66 | | |
| SCH205_401 | School 205-401 Enrichment | 1.3697998934 | $571,415 | $571,415 | $782.72 | | |
| SCH205BOND | School 205-401 BOND | 0.9354199323 | $571,415 | $571,415 | $534.51 | | |
| ST | State School | 1.4761226122 | $571,415 | $571,415 | $843.48 | | |
| ST2 | State School Part 2 | 0.7953803475 | $571,415 | $571,415 | $454.49 | | |
| | Total Tax Rate: | 7.6534262019 | | | | | |
| | | | | Taxes w/Current Exemptions: | $4,373.27 | | |
| | | | | Taxes w/o Exemptions: | $4,373.27 | | |
Improvement / Building
| Improvement #1: | RESIDENTIAL | State Code: | Y | 1232.0 sqft | Value: | $231,415 |
| Bathrooms: | 1 | Bedrooms: | 2 | | Ceiling: | DRYWALL PAINTED | Exterior Wall/Cover: | WOOD SIDING | | Floor Covering: | VINYL 100% | Floor Structure: | WOOD W/SUBFLOOR | | Foundation: | CONCRETE BLOCKS | Heating: | FHA GAS | | Interior Finish: | DRYWALL PAINT | Plumbing Fixture Cnt: | 7 | | Roof Slope: | 6" IN 12" | Roof Structure/Cover: | CJ ASPHALT |
|
| | Type | Description | Class CD | Sub Class CD | Year Built | Area |
| | BAS | BASE/MAIN FLOOR | 3 | 0 | 1930 | 1232.0 |
| | BGR | BASEMENT GARAGE | 3 | 0 | 1930 | 500.0 |
| | OWP | OPEN WOOD PORCH W/STEPS | 3 | 0 | 1930 | 334.2 |
| | OWR | OPEN WOOD PORCH W/STEPS/ROOF | 3 | 0 | 1930 | 16.0 |
Sketch
Property Image
Land
| 1 | 14 | SQ (08001-12000) | 0.0000 | 0.00 | 0.00 | 0.00 | 1.00 | $340,000 | $0 |
Roll Value History
| 2026 | N/A | N/A | N/A | N/A | N/A |
| 2025 | $231,415 | $340,000 | $0 | $571,415 | $571,415 |
| 2024 | $234,410 | $330,000 | $0 | $564,410 | $146,472 |
| 2023 | $237,406 | $360,000 | $0 | $597,406 | $146,472 |
| 2022 | $217,694 | $260,000 | $0 | $477,694 | $146,472 |
| 2021 | $180,556 | $220,000 | $0 | $400,556 | $201,514 |
| 2020 | $176,179 | $190,000 | $0 | $366,179 | $199,325 |
| 2019 | $127,240 | $230,000 | $0 | $357,240 | $357,240 |
| 2018 | $127,642 | $200,000 | $0 | $327,642 | $327,642 |
| 2017 | $128,443 | $150,000 | $0 | $278,443 | $278,443 |
| 2016 | $123,707 | $115,000 | $0 | $238,707 | $238,707 |
| 2015 | $125,294 | $100,000 | $0 | $225,294 | $225,294 |
| 2014 | $126,880 | $100,000 | $0 | $226,880 | $226,880 |
| 2013 | $128,466 | $100,000 | $0 | $228,466 | $228,466 |
| 2012 | $130,052 | $108,000 | $0 | $238,052 | $238,052 |
| 2011 | $131,637 | $135,000 | $0 | $266,637 | $266,637 |
| 2010 | $134,923 | $135,000 | $0 | $269,923 | $269,923 |
| 2009 | $140,643 | $150,000 | $0 | $290,643 | $290,643 |
| 2008 | $142,305 | $125,000 | $0 | $267,305 | $267,305 |
| 2007 | $143,966 | $125,000 | $0 | $268,966 | $268,966 |
Deed and Sales History
| 1 | 08/26/2025 | WD | Warranty Deed | MACKENZIE, CONSTANCE E | KEITH, CHARLES | | | $674,886.00 | 64627 | 4590178 |
| 2 | 03/15/2022 | QCD | Quit Claim Deed | PAGARAN, JANA | MACKENZIE, CONSTANCE E | | | $0.00 | 52354 | 4541770 |
| 3 | 08/18/2021 | QCD | Quit Claim Deed | PAGARAN, WILLIAM | PAGARAN, JANA | | | $0.00 | 49942 | 4528605 |
| 4 | 08/02/2021 | WD | Warranty Deed | BOONE, JAMES B | MACKENZIE, CONSTANCE E | | | $692,000.00 | 49939 | 4528604 |
| 5 | 03/24/2014 | WD | Warranty Deed | GIVENS, RICHARD M & JANICE M | BOONE, JAMES B | | | $249,000.00 | 14756 | 4357192 |
| 6 | 01/20/2006 | WD | Warranty Deed | STEFFEN, FREDERICK E | GIVENS, RICHARD M & JANICE M | | | $250,000.00 | 60313 | 4160629 |
| 7 | 12/21/1998 | QCD | Quit Claim Deed | STEFFEN, LYNN M | STEFFEN, FREDERICK E | | | $0.00 | 85080 | 98027904 |
| 8 | 04/01/1997 | WD | Warranty Deed | KUHLMAN, GARRETT S | STEFFEN, LYNN M | | | $100,400.00 | 71706 | 97007823 |
| 9 | 05/01/1995 | OTHER | Other - Misc. Documents | KUHLMAN, GARRETT S | KUHLMAN, GARRETT S | | | $0.00 | 66405 | 95006573 |
| 10 | 06/01/1992 | WD | Warranty Deed | STEWART, WESLEY W | KUHLMAN, GARRETT S | | | $100,500.00 | 22168 | 97013361 |
| 11 | 09/01/1991 | QCD | Quit Claim Deed | STEWART, WESLEY W | STEWART, WESLEY W | | | $0.00 | 22167 | 92020408 |
| 12 | 03/01/1980 | CD | DNU - Correction Deed | NELSON, ARTHUR W | STEWART, WESLEY W | | | $0.00 | 1225 | 367579 |
| 13 | 04/01/1970 | CD | DNU - Correction Deed | RYAN, KATHERINE | NELSON, ARTHUR W | | | $0.00 | 38513 | 0 |
| 14 | 02/01/1968 | TRUSTEED | Trustee's Deed | Unknown | RYAN, KATHERINE | | | $0.00 | 29552 | 0 |
Payout Agreement
| No payout information available.. |