Property
Account |
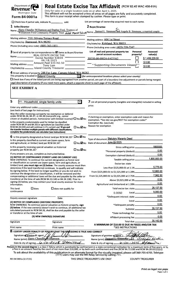
| Property ID: | 423562 | Abbreviated Legal Description: | UTSALADY BCH LOT 24 INCL ADJ TIDES |
| Geographic ID: | S8350-00-00024-0 | Agent Code: | |
| Type: | Real | | |
| Tax Area: | 510 - APPRAISER-Stan/Cam Schl Dist, improved & 1 acre or less | Land Use Code | 11 |
| Open Space: | N | DFL | N |
| Historic Property: | N | Remodel Property: | N |
| Multi-Family Redevelopment: | N | | |
| Township: | | Section: | |
| Range: | |
Location |
| Address: | 248 FAY LN CAMANO ISLAND, WA 98282 | Mapsco: | |
| Neighborhood: | North Camano | Map ID: | 560 |
| Neighborhood CD: | 06-C |
Owner |
| Name: | SIMMONS JR, SAMUEL L | Owner ID: | 316988 |
| Mailing Address: | ANGELA B SIMMONS 604 1ST ST KIRKLAND, WA 98033 | % Ownership: | 100.0000000000% |
| | | Exemptions: | |
Taxes and Assessment Details
Values
| (+) Improvement Homesite Value: | + | $0 | |
| (+) Improvement Non-Homesite Value: | + | $573,570 | |
| (+) Land Homesite Value: | + | $0 | |
| (+) Land Non-Homesite Value: | + | $900,600 | |
| (+) Curr Use (HS): | + | $0 | $0 |
| (+) Curr Use (NHS): | + | $0 | $0 |
| | | -------------------------- | |
| (=) Market Value: | = | $1,474,170 | |
| (–) Productivity Loss: | – | $0 | |
| | | -------------------------- | |
| (=) Subtotal: | = | $1,474,170 | |
| (+) Senior Appraised Value: | + | $0 | |
| (+) Non-Senior Appraised Value: | + | $1,474,170 | |
| | | -------------------------- | |
| (=) Total Appraised Value: | = | $1,474,170 | |
| (–) Senior Exemption Loss: | – | $0 | |
| (–) Exemption Loss: | – | $0 | |
| | | -------------------------- | |
| (=) Taxable Value: | = | $1,474,170 | |
Taxing Jurisdiction
| Owner: | SIMMONS JR, SAMUEL L | | |
| % Ownership: | 100.0000000000% | | |
| Total Value: | $1,474,170 | | |
| Tax Area: | 510 - APPRAISER-Stan/Cam Schl Dist, improved & 1 acre or less |
| CF | Conservation Futures | 0.0313996660 | $1,474,170 | $1,474,170 | $46.29 | | |
| EMS1 | Fire & Rescue Dist #1 Camano GEN (EMS) | 0.4998471806 | $1,474,170 | $1,474,170 | $736.86 | | |
| FIRE1 | Fire & Rescue Dist #1 Camano GEN | 1.2496603404 | $1,474,170 | $1,474,170 | $1,842.21 | | |
| FIRE1BOND | Fire & Rescue Dist #1 Camano BOND | 0.1630371212 | $1,474,170 | $1,474,170 | $240.34 | | |
| CE | County Current Expense | 0.3674210519 | $1,474,170 | $1,474,170 | $541.64 | | |
| CR | County Roads | 0.4614296361 | $1,474,170 | $1,474,170 | $680.23 | | |
| LIB | Library Sno-Isle GEN | 0.3039084203 | $1,474,170 | $1,474,170 | $448.01 | | |
| SCH205_401 | School 205-401 Enrichment | 1.3697998934 | $1,474,170 | $1,474,170 | $2,019.32 | | |
| SCH205BOND | School 205-401 BOND | 0.9354199323 | $1,474,170 | $1,474,170 | $1,378.97 | | |
| ST | State School | 1.4761226122 | $1,474,170 | $1,474,170 | $2,176.06 | | |
| ST2 | State School Part 2 | 0.7953803475 | $1,474,170 | $1,474,170 | $1,172.53 | | |
| | Total Tax Rate: | 7.6534262019 | | | | | |
| | | | | Taxes w/Current Exemptions: | $11,282.46 | | |
| | | | | Taxes w/o Exemptions: | $11,282.46 | | |
Improvement / Building
| Improvement #1: | RESIDENTIAL | State Code: | Y | 3023.0 sqft | Value: | $573,570 |
| Bathrooms: | 2.25 | Bedrooms: | 3 | | Ceiling: | TONGUE & GROOVE | Exterior Wall/Cover: | WOOD SIDING | | Floor Covering: | CERAMIC TILE/CPT 40-60 | Floor Structure: | WOOD W/SUBFLOOR | | Foundation: | CONCRETE | Heating: | FHA GAS | | Interior Finish: | DRYWALL PAINT | Plumbing Fixture Cnt: | 12 | | Roof Slope: | 5" IN 12" | Roof Structure/Cover: | BEAM ASPHALT |
|
| | Type | Description | Class CD | Sub Class CD | Year Built | Area |
| | BAS | BASE/MAIN FLOOR | 4 | 0 | 1956 | 1965.0 |
| | OP2 | OPEN PORCH W/STEPS | 4 | 0 | 1956 | 144.0 |
| | DGR | DETACHED GARAGE | 4 | 0 | 1956 | 550.0 |
| | OWP | OPEN WOOD PORCH W/STEPS | 4 | 0 | 1956 | 568.0 |
| | DWN | DOWNSTAIRS LIVING AREA | 4 | 0 | 1956 | 1058.0 |
| | OCP | OPEN CARPORT | 4 | 0 | 1956 | 360.0 |
| | CPD | OPEN CARPORT DIRT FLOOR | 4 | 0 | 1956 | 220.0 |
| | OWP | OPEN WOOD PORCH W/STEPS | 4 | 0 | 1956 | 406.2 |
| | OP2 | OPEN PORCH W/STEPS | 4 | 0 | 1956 | 120.0 |
Sketch
| No sketches available for this property. |
Property Image
Land
| 1 | MB | MEDIUM BANK | 0.0000 | 0.00 | 60.00 | 0.00 | 1.00 | $900,000 | $0 |
| 2 | 55 | TIDES | 0.0000 | 0.00 | 60.00 | 0.00 | 1.00 | $600 | $0 |
Roll Value History
| 2026 | N/A | N/A | N/A | N/A | N/A |
| 2025 | $573,570 | $900,600 | $0 | $1,474,170 | $1,474,170 |
| 2024 | $580,629 | $825,600 | $0 | $1,406,229 | $1,406,229 |
| 2023 | $587,688 | $750,600 | $0 | $1,338,288 | $1,338,288 |
| 2022 | $535,931 | $680,600 | $0 | $1,216,531 | $1,216,531 |
| 2021 | $471,834 | $550,600 | $0 | $1,022,434 | $1,022,434 |
| 2020 | $461,160 | $500,600 | $0 | $961,760 | $961,760 |
| 2019 | $366,763 | $500,600 | $0 | $867,363 | $867,363 |
| 2018 | $367,864 | $475,600 | $0 | $843,464 | $843,464 |
| 2017 | $279,747 | $450,600 | $0 | $730,347 | $730,347 |
| 2016 | $220,523 | $450,600 | $0 | $671,123 | $671,123 |
| 2015 | $223,767 | $450,600 | $0 | $674,367 | $674,367 |
| 2014 | $227,010 | $450,600 | $0 | $677,610 | $677,610 |
| 2013 | $230,253 | $450,600 | $0 | $680,853 | $680,853 |
| 2012 | $233,496 | $452,487 | $0 | $685,983 | $685,983 |
| 2011 | $236,739 | $476,270 | $0 | $713,009 | $713,009 |
| 2010 | $264,203 | $476,270 | $0 | $740,473 | $740,473 |
| 2009 | $272,052 | $511,018 | $0 | $783,070 | $783,070 |
| 2008 | $275,504 | $511,018 | $0 | $786,522 | $786,522 |
| 2007 | $279,056 | $293,612 | $0 | $572,668 | $572,668 |
Deed and Sales History
| 1 | 06/16/2025 | WD | Warranty Deed | WILLIAMSON TRUSTEE, HARRY CHANDLER | SIMMONS JR, SAMUEL L | | | $1,800,000.00 | 63839 | 4587124 |
| 2 | 09/07/2017 | WD | Warranty Deed | MARZOLF, MARK | WILLIAMSON TRUSTEE, HARRY CHANDLER | | | $905,000.00 | 31219 | 4430807 |
| 3 | 07/17/2007 | WD | Warranty Deed | BRITSCH, MICHAEL C AND SUZANN | MARZOLF, MARK | | | $1,120,000.00 | 72417 | 4207250 |
| 4 | 09/09/1998 | WD | Warranty Deed | GARRETT, D RAY | BRITSCH, MICHAEL C AND SUZANN | | | $320,000.00 | 83581 | 98018683 |
| 5 | 01/01/1900 | OTHER | Other - Misc. Documents | Unknown | GARRETT, D RAY | | | $0.00 | 0 | 0 |
Payout Agreement
| No payout information available.. |