Property
Account |
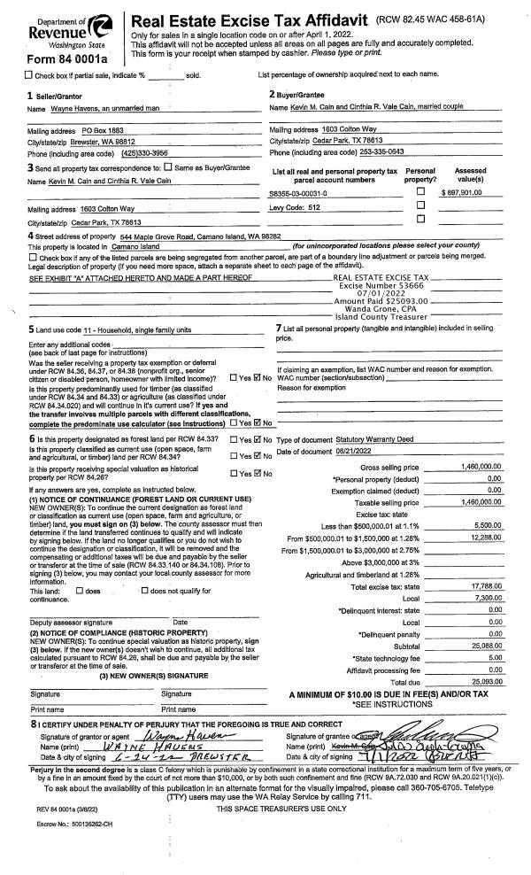
| Property ID: | 424204 | Abbreviated Legal Description: | UTSA PT TR 3 LOTS 31 & 32 EX E2.50'LOT 31 & EX PT LOT 31: BG SW CR E2.50' LOT 31 N ALG WLN E2 .50' 132.59'TPB N71.05' W10 S71.05' E10'TPB |
| Geographic ID: | S8355-03-00031-0 | Agent Code: | |
| Type: | Real | | |
| Tax Area: | 512 - APPRAISER-Stan/Cam Schl Dist, improved, greater than 1 acre | Land Use Code | 11 |
| Open Space: | N | DFL | N |
| Historic Property: | N | Remodel Property: | N |
| Multi-Family Redevelopment: | N | | |
| Township: | | Section: | |
| Range: | |
Location |
| Address: | 544 MAPLE GROVE RD CAMANO ISLAND, WA 98282 | Mapsco: | |
| Neighborhood: | North Camano | Map ID: | 557 |
| Neighborhood CD: | 06-C |
Owner |
| Name: | CAIN, KEVIN M | Owner ID: | 305175 |
| Mailing Address: | CINTHIA R VALE CAIN 1603 COLTON WAY CEDAR PARK, TX 78613 | % Ownership: | 100.0000000000% |
| | | Exemptions: | |
Taxes and Assessment Details
Values
| (+) Improvement Homesite Value: | + | $0 | |
| (+) Improvement Non-Homesite Value: | + | $553,026 | |
| (+) Land Homesite Value: | + | $0 | |
| (+) Land Non-Homesite Value: | + | $776,180 | |
| (+) Curr Use (HS): | + | $0 | $0 |
| (+) Curr Use (NHS): | + | $0 | $0 |
| | | -------------------------- | |
| (=) Market Value: | = | $1,329,206 | |
| (–) Productivity Loss: | – | $0 | |
| | | -------------------------- | |
| (=) Subtotal: | = | $1,329,206 | |
| (+) Senior Appraised Value: | + | $0 | |
| (+) Non-Senior Appraised Value: | + | $1,329,206 | |
| | | -------------------------- | |
| (=) Total Appraised Value: | = | $1,329,206 | |
| (–) Senior Exemption Loss: | – | $0 | |
| (–) Exemption Loss: | – | $0 | |
| | | -------------------------- | |
| (=) Taxable Value: | = | $1,329,206 | |
Taxing Jurisdiction
| Owner: | CAIN, KEVIN M | | |
| % Ownership: | 100.0000000000% | | |
| Total Value: | $1,329,206 | | |
| Tax Area: | 512 - APPRAISER-Stan/Cam Schl Dist, improved, greater than 1 acre |
| CF | Conservation Futures | 0.0313996660 | $1,329,206 | $1,329,206 | $41.74 | | |
| EMS1 | Fire & Rescue Dist #1 Camano GEN (EMS) | 0.4998471806 | $1,329,206 | $1,329,206 | $664.40 | | |
| FIRE1 | Fire & Rescue Dist #1 Camano GEN | 1.2496603404 | $1,329,206 | $1,329,206 | $1,661.06 | | |
| FIRE1BOND | Fire & Rescue Dist #1 Camano BOND | 0.1630371212 | $1,329,206 | $1,329,206 | $216.71 | | |
| CE | County Current Expense | 0.3674210519 | $1,329,206 | $1,329,206 | $488.38 | | |
| CR | County Roads | 0.4614296361 | $1,329,206 | $1,329,206 | $613.34 | | |
| LIB | Library Sno-Isle GEN | 0.3039084203 | $1,329,206 | $1,329,206 | $403.96 | | |
| SCH205_401 | School 205-401 Enrichment | 1.3697998934 | $1,329,206 | $1,329,206 | $1,820.75 | | |
| SCH205BOND | School 205-401 BOND | 0.9354199323 | $1,329,206 | $1,329,206 | $1,243.37 | | |
| ST | State School | 1.4761226122 | $1,329,206 | $1,329,206 | $1,962.07 | | |
| ST2 | State School Part 2 | 0.7953803475 | $1,329,206 | $1,329,206 | $1,057.22 | | |
| | Total Tax Rate: | 7.6534262019 | | | | | |
| | | | | Taxes w/Current Exemptions: | $10,173.00 | | |
| | | | | Taxes w/o Exemptions: | $10,173.00 | | |
Improvement / Building
| Improvement #1: | RESIDENTIAL | State Code: | Y | 3414.0 sqft | Value: | $553,026 |
| Bathrooms: | 3.5 | Bedrooms: | 3 | | Ceiling: | DRY WALL SPRAYED | Exterior Wall/Cover: | WOOD SIDING | | Floor Covering: | CARPET/VINYL 60-40 | Floor Structure: | WOOD W/SUBFLOOR | | Foundation: | CONCRETE | Heating: | WALL HEAT ELECTRIC | | Interior Finish: | DRYWALL PAINT | Plumbing Fixture Cnt: | 15 | | Roof Slope: | 4" IN 12" | Roof Structure/Cover: | CJ ASPHALT |
|
| | Type | Description | Class CD | Sub Class CD | Year Built | Area |
| | BAS | BASE/MAIN FLOOR | 4 | 0 | 1979 | 2214.0 |
| | UB8 | BASEMENT UNFINISHED 8" | 4 | 0 | 1979 | 602.0 |
| | OP3 | OPEN PORCH W/ROOF | 4 | 0 | 1979 | 54.0 |
| | AGR | ATTACHED GARAGE | 4 | 0 | 1979 | 672.0 |
| | UTY | STORAGE/UTILITY | 4 | 0 | 1979 | 44.0 |
| | OWP | OPEN WOOD PORCH W/STEPS | 4 | 0 | 1979 | 618.0 |
| | OWC | OPEN WOOD PORCH W/STEPS/ROOF/C | 4 | 0 | 1979 | 128.0 |
| | DWN | DOWNSTAIRS LIVING AREA | 4 | 0 | 1979 | 1200.0 |
| | CPD | OPEN CARPORT DIRT FLOOR | 4 | 0 | 1979 | 288.0 |
| | DGR | DETACHED GARAGE | 4 | 0 | 1979 | 888.0 |
Sketch
Property Image
Land
| 1 | HB | HIGH BLUFF | 1.0400 | 45302.40 | 118.00 | 0.00 | 1.00 | $775,000 | $0 |
| 2 | 55 | TIDES | 0.0000 | 0.00 | 118.00 | 0.00 | 1.00 | $1,180 | $0 |
Roll Value History
| 2026 | N/A | N/A | N/A | N/A | N/A |
| 2025 | $553,026 | $776,180 | $0 | $1,329,206 | $1,329,206 |
| 2024 | $560,182 | $776,180 | $0 | $1,336,362 | $1,336,362 |
| 2023 | $567,343 | $701,180 | $0 | $1,268,523 | $1,268,523 |
| 2022 | $507,265 | $676,180 | $0 | $1,183,445 | $1,183,445 |
| 2021 | $446,721 | $451,180 | $0 | $897,901 | $897,901 |
| 2020 | $436,090 | $426,180 | $0 | $862,270 | $862,270 |
| 2019 | $349,440 | $426,180 | $0 | $775,620 | $775,620 |
| 2018 | $350,515 | $376,180 | $0 | $726,695 | $726,695 |
| 2017 | $352,666 | $351,180 | $0 | $703,846 | $703,846 |
| 2016 | $345,736 | $351,180 | $0 | $696,916 | $696,916 |
| 2015 | $349,721 | $351,180 | $0 | $700,901 | $700,901 |
| 2014 | $353,706 | $351,180 | $0 | $704,886 | $704,886 |
| 2013 | $357,688 | $428,356 | $0 | $786,044 | $786,044 |
| 2012 | $361,672 | $428,356 | $0 | $790,028 | $790,028 |
| 2011 | $238,638 | $450,839 | $0 | $689,477 | $689,477 |
| 2010 | $252,923 | $450,839 | $0 | $703,762 | $703,762 |
| 2009 | $259,962 | $506,352 | $0 | $766,314 | $766,314 |
| 2008 | $263,161 | $506,352 | $0 | $769,513 | $769,513 |
| 2007 | $234,631 | $505,526 | $0 | $740,157 | $740,157 |
Deed and Sales History
| 1 | 06/21/2022 | WD | Warranty Deed | HAVENS, WAYNE | CAIN, KEVIN M | | | $1,460,000.00 | 53666 | 4547492 |
| 2 | 05/08/2018 | PRD | Personal Representatives Deed | HAVENS, WAYNE L | HAVENS, WAYNE | | | $0.00 | 34144 | 4444650 |
| 3 | 01/01/1900 | OTHER | Other - Misc. Documents | Unknown | HAVENS, WAYNE L | | | $0.00 | 0 | 0 |
Payout Agreement
| No payout information available.. |