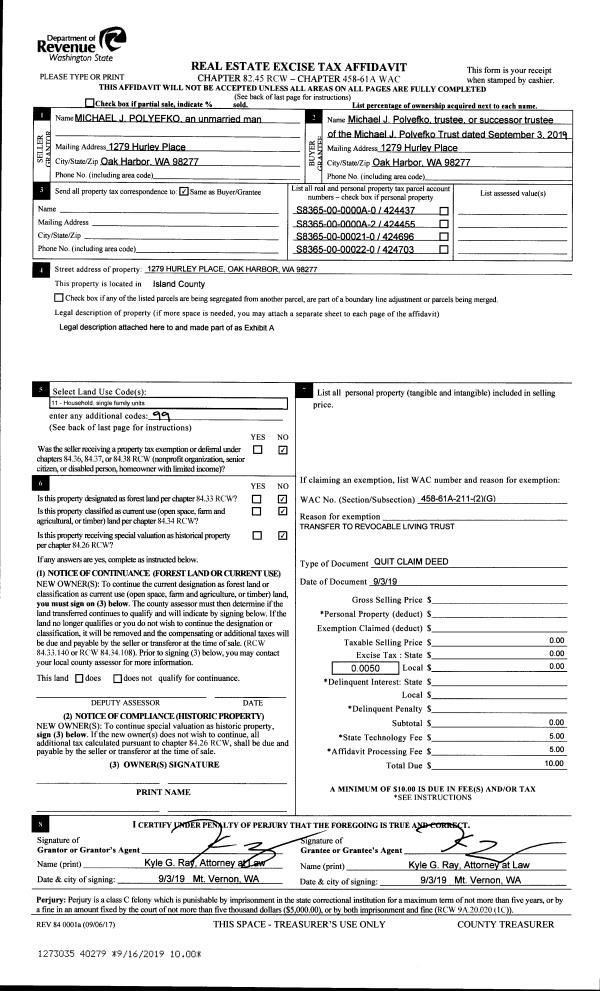
Property
Account |
| Property ID: | 424455 | Abbreviated Legal Description: | VIEW CREST PT TR A EX N & E OF:BG SE CR L15 S88* E405' S12*E544.72' TO NW CR TRACT C SUB TO & TGW EZ |
| Geographic ID: | S8365-00-0000A-2 | Agent Code: | |
| Type: | Real | | |
| Tax Area: | 112 - APPRAISER-OH Schl Dist, outside OH, improved, greater than 1 acre | Land Use Code | 11 |
| Open Space: | N | DFL | N |
| Historic Property: | N | Remodel Property: | N |
| Multi-Family Redevelopment: | N | | |
| Township: | | Section: | |
| Range: | |
Location |
| Address: | 1271 HURLEY PLACE OAK HARBOR, WA 98277 | Mapsco: | |
| Neighborhood: | Cycle 6 | Map ID: | 540 |
| Neighborhood CD: | 6 |
Owner |
| Name: | POLYEFKO TTEE, MICHAEL J | Owner ID: | 291951 |
| Mailing Address: | 1279 HURLEY PL OAK HARBOR, WA 98277 | % Ownership: | 100.0000000000% |
| | | Exemptions: | |
Taxes and Assessment Details
Values
| (+) Improvement Homesite Value: | + | $0 | |
| (+) Improvement Non-Homesite Value: | + | $141,095 | |
| (+) Land Homesite Value: | + | $0 | |
| (+) Land Non-Homesite Value: | + | $300,000 | |
| (+) Curr Use (HS): | + | $0 | $0 |
| (+) Curr Use (NHS): | + | $0 | $0 |
| | | -------------------------- | |
| (=) Market Value: | = | $441,095 | |
| (–) Productivity Loss: | – | $0 | |
| | | -------------------------- | |
| (=) Subtotal: | = | $441,095 | |
| (+) Senior Appraised Value: | + | $0 | |
| (+) Non-Senior Appraised Value: | + | $441,095 | |
| | | -------------------------- | |
| (=) Total Appraised Value: | = | $441,095 | |
| (–) Senior Exemption Loss: | – | $0 | |
| (–) Exemption Loss: | – | $0 | |
| | | -------------------------- | |
| (=) Taxable Value: | = | $441,095 | |
Taxing Jurisdiction
| Owner: | POLYEFKO TTEE, MICHAEL J | | |
| % Ownership: | 100.0000000000% | | |
| Total Value: | $441,095 | | |
| Tax Area: | 112 - APPRAISER-OH Schl Dist, outside OH, improved, greater than 1 acre |
| CF | Conservation Futures | 0.0313996660 | $441,095 | $441,095 | $13.85 | | |
| CEM1 | Cemetery #1 | 0.0040018856 | $441,095 | $441,095 | $1.77 | | |
| FIRE2 | Fire & Rescue Dist #2 N Whidbey GEN | 0.5381486274 | $441,095 | $441,095 | $237.37 | | |
| HOBOND | Hospital BOND | 0.1893405597 | $441,095 | $441,095 | $83.52 | | |
| HOGEN | Hospital GEN | 0.3848777722 | $441,095 | $441,095 | $169.77 | | |
| CE | County Current Expense | 0.3674210519 | $441,095 | $441,095 | $162.07 | | |
| CR | County Roads | 0.4614296361 | $441,095 | $441,095 | $203.53 | | |
| ISLANDEMS | Hospital GEN (EMS) | 0.4952018576 | $441,095 | $441,095 | $218.43 | | |
| LIB | Library Sno-Isle GEN | 0.3039084203 | $441,095 | $441,095 | $134.05 | | |
| NWHIDPRMT | P & R N Whidbey GEN | 0.1990272349 | $441,095 | $441,095 | $87.79 | | |
| SCH201MO | School 201 Enrichment | 2.3851112745 | $441,095 | $441,095 | $1,052.06 | | |
| ST | State School | 1.4761226122 | $441,095 | $441,095 | $651.11 | | |
| ST2 | State School Part 2 | 0.7953803475 | $441,095 | $441,095 | $350.84 | | |
| | Total Tax Rate: | 7.6313709459 | | | | | |
| | | | | Taxes w/Current Exemptions: | $3,366.16 | | |
| | | | | Taxes w/o Exemptions: | $3,366.16 | | |
Improvement / Building
| Improvement #1: | RESIDENTIAL | State Code: | Y | 788.0 sqft | Value: | $141,095 |
| Bathrooms: | 1 | Bedrooms: | 1 | | Ceiling: | DRYWALL PAINTED | Exterior Wall/Cover: | PLY/HARDBOARD T-111 | | Floor Covering: | CARPET/VINYL 60-40 | Floor Structure: | WOOD W/SUBFLOOR | | Foundation: | CONCRETE | Heating: | BASEBOARD ELECTRIC | | Interior Finish: | DRYWALL PAINT | Plumbing Fixture Cnt: | 6 | | Roof Slope: | 3" IN 12" | Roof Structure/Cover: | CJ ASPHALT |
|
| | Type | Description | Class CD | Sub Class CD | Year Built | Area |
| | BAS | BASE/MAIN FLOOR | 3 | 0 | 1981 | 788.0 |
| | BIG | BUILT IN GARAGE | 3 | 0 | 1981 | 1008.0 |
Sketch
Property Image
Land
| 1 | 32 | AC (03.01-09.99) | 3.8000 | 0.00 | 0.00 | 0.00 | 1.00 | $300,000 | $0 |
Roll Value History
| 2026 | N/A | N/A | N/A | N/A | N/A |
| 2025 | $141,095 | $300,000 | $0 | $441,095 | $441,095 |
| 2024 | $146,287 | $280,000 | $0 | $426,287 | $426,287 |
| 2023 | $148,565 | $270,000 | $0 | $418,565 | $418,565 |
| 2022 | $130,404 | $240,000 | $0 | $370,404 | $370,404 |
| 2021 | $115,184 | $160,000 | $0 | $275,184 | $275,184 |
| 2020 | $112,369 | $140,000 | $0 | $252,369 | $252,369 |
| 2019 | $78,593 | $200,000 | $0 | $278,593 | $278,593 |
| 2018 | $78,890 | $170,000 | $0 | $248,890 | $248,890 |
| 2017 | $79,483 | $150,000 | $0 | $229,483 | $229,483 |
| 2016 | $65,382 | $140,000 | $0 | $205,382 | $205,382 |
| 2015 | $66,373 | $120,000 | $0 | $186,373 | $186,373 |
| 2014 | $67,363 | $100,000 | $0 | $167,363 | $167,363 |
| 2013 | $68,355 | $75,240 | $0 | $143,595 | $143,595 |
| 2012 | $69,345 | $75,240 | $0 | $144,585 | $144,585 |
| 2011 | $70,336 | $83,600 | $0 | $153,936 | $153,936 |
| 2010 | $79,169 | $83,600 | $0 | $162,769 | $162,769 |
| 2009 | $82,728 | $110,200 | $0 | $192,928 | $192,928 |
| 2008 | $87,199 | $110,200 | $0 | $197,399 | $197,399 |
| 2007 | $87,199 | $68,400 | $0 | $155,599 | $155,599 |
Deed and Sales History
| 1 | 09/03/2019 | QCD | Quit Claim Deed | POLYEFKO, MICHAEL J | POLYEFKO TTEE, MICHAEL J | | | $0.00 | 40279 | 4471457 |
| 2 | 02/23/2017 | WD | Warranty Deed | HUNTMAN, CYNTHIA L | POLYEFKO, MICHAEL J | | | $540,000.00 | 28181 | 4417664 |
|   | |
| 3 | 04/03/2014 | PRD | Personal Representatives Deed | HUNTMAN, CYNTHIA L | HUNTMAN, CYNTHIA L | | | $67,693.00 | 15146 | 4358810 |
| 4 | 04/05/2001 | QCD | Quit Claim Deed | HURLEY, JEANNE H | HUNTMAN, CYNTHIA L | | | $0.00 | 11092 | 20028935 |
| 5 | 04/05/2001 | QCD | Quit Claim Deed | Unknown | HURLEY, JEANNE H | | | $0.00 | 11091 | 20028936 |
Payout Agreement
| No payout information available.. |