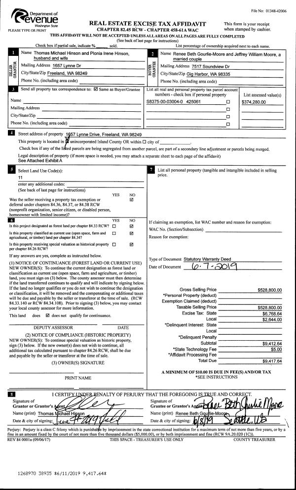
Property
Account |
| Property ID: | 425061 | Abbreviated Legal Description: | VILLAGE GRN LOT 4 BLK 3 |
| Geographic ID: | S8375-00-03004-0 | Agent Code: | |
| Type: | Real | | |
| Tax Area: | 760 - APPRAISER-S Whid Schl Dist, Special District, improved & less than 1 acre | Land Use Code | 11 |
| Open Space: | N | DFL | N |
| Historic Property: | N | Remodel Property: | N |
| Multi-Family Redevelopment: | N | | |
| Township: | | Section: | |
| Range: | |
Location |
| Address: | 1657 LYNNE DR FREELAND, WA 98249 | Mapsco: | |
| Neighborhood: | Cycle 3 | Map ID: | 313 |
| Neighborhood CD: | 3 |
Owner |
| Name: | GOURLIE-MOORE, RENEE BETH | Owner ID: | 290217 |
| Mailing Address: | JEFFREY WILLIAM MOORE 7517 SOUNDVIEW DR GIG HARBOR, WA 98335 | % Ownership: | 100.0000000000% |
| | | Exemptions: | |
Taxes and Assessment Details
Values
| (+) Improvement Homesite Value: | + | $0 | |
| (+) Improvement Non-Homesite Value: | + | $462,248 | |
| (+) Land Homesite Value: | + | $0 | |
| (+) Land Non-Homesite Value: | + | $250,000 | |
| (+) Curr Use (HS): | + | $0 | $0 |
| (+) Curr Use (NHS): | + | $0 | $0 |
| | | -------------------------- | |
| (=) Market Value: | = | $712,248 | |
| (–) Productivity Loss: | – | $0 | |
| | | -------------------------- | |
| (=) Subtotal: | = | $712,248 | |
| (+) Senior Appraised Value: | + | $0 | |
| (+) Non-Senior Appraised Value: | + | $712,248 | |
| | | -------------------------- | |
| (=) Total Appraised Value: | = | $712,248 | |
| (–) Senior Exemption Loss: | – | $0 | |
| (–) Exemption Loss: | – | $0 | |
| | | -------------------------- | |
| (=) Taxable Value: | = | $712,248 | |
Taxing Jurisdiction
| Owner: | GOURLIE-MOORE, RENEE BETH | | |
| % Ownership: | 100.0000000000% | | |
| Total Value: | $712,248 | | |
| Tax Area: | 760 - APPRAISER-S Whid Schl Dist, Special District, improved & less than 1 acre |
| CF | Conservation Futures | 0.0313996660 | $712,248 | $712,248 | $22.36 | | |
| FIRE3 | Fire & Rescue Dist #3 S Whidbey GEN | 1.2130821753 | $712,248 | $712,248 | $864.02 | | |
| HOBOND | Hospital BOND | 0.1893405597 | $712,248 | $712,248 | $134.86 | | |
| HOGEN | Hospital GEN | 0.3848777722 | $712,248 | $712,248 | $274.13 | | |
| CE | County Current Expense | 0.3674210519 | $712,248 | $712,248 | $261.69 | | |
| CR | County Roads | 0.4614296361 | $712,248 | $712,248 | $328.65 | | |
| ISLANDEMS | Hospital GEN (EMS) | 0.4952018576 | $712,248 | $712,248 | $352.71 | | |
| LIB | Library Sno-Isle GEN | 0.3039084203 | $712,248 | $712,248 | $216.46 | | |
| PORTWHID | Port of S Whidbey GEN | 0.1086004714 | $712,248 | $712,248 | $77.35 | | |
| SCH206BOND | School 206 BOND | 0.5960237832 | $712,248 | $712,248 | $424.52 | | |
| SCH206CAP | School 206 CP | 0.3066144020 | $712,248 | $712,248 | $218.39 | | |
| SCH206MO | School 206 Enrichment | 0.4808755445 | $712,248 | $712,248 | $342.50 | | |
| ST | State School | 1.4761226122 | $712,248 | $712,248 | $1,051.37 | | |
| ST2 | State School Part 2 | 0.7953803475 | $712,248 | $712,248 | $566.51 | | |
| SWHIDPRBD | P & R S Whidbey BOND | 0.0144185398 | $712,248 | $712,248 | $10.27 | | |
| SWHIDPRBD3 | P & R S Whidbey BOND3 | 0.1483535547 | $712,248 | $712,248 | $105.66 | | |
| SWHIDPRMT | P & R S Whidbey GEN | 0.4600000000 | $712,248 | $712,248 | $327.63 | | |
| | Total Tax Rate: | 7.8330503944 | | | | | |
| | | | | Taxes w/Current Exemptions: | $5,579.08 | | |
| | | | | Taxes w/o Exemptions: | $5,579.08 | | |
Improvement / Building
| Improvement #1: | RESIDENTIAL | State Code: | Y | 2088.8 sqft | Value: | $462,248 |
| Bathrooms: | 3 | Bedrooms: | 3 | | Ceiling: | DRYWALL PAINTED | Exterior Wall/Cover: | WOOD SIDING | | Floor Covering: | HARDWOOD/CARP 80-20 | Floor Structure: | WOOD W/SUBFLOOR | | Foundation: | CONCRETE | Heating: | FHA ELECTRIC | | Interior Finish: | DRYWALL PAINT | Plumbing Fixture Cnt: | 11 | | Roof Slope: | 8" IN 12" | Roof Structure/Cover: | CJ ASPHALT |
|
| | Type | Description | Class CD | Sub Class CD | Year Built | Area |
| | BAS | BASE/MAIN FLOOR | 4 | 0 | 1979 | 1052.8 |
| | OP4 | OPEN PORCH W/CEILING-ROOF | 4 | 0 | 1979 | 84.0 |
| | AGR | ATTACHED GARAGE | 4 | 0 | 1979 | 850.7 |
| | UTY | STORAGE/UTILITY | 4 | 0 | 1979 | 85.4 |
| | UPS | UPPER STORY | 4 | 0 | 1979 | 1036.0 |
| | OWP | OPEN WOOD PORCH W/STEPS | 4 | 0 | 1979 | 338.0 |
Sketch
Property Image
Land
| 1 | 14 | SQ (08001-12000) | 0.0000 | 0.00 | 0.00 | 0.00 | 1.00 | $250,000 | $0 |
Roll Value History
| 2026 | N/A | N/A | N/A | N/A | N/A |
| 2025 | $462,248 | $250,000 | $0 | $712,248 | $712,248 |
| 2024 | $468,231 | $230,000 | $0 | $698,231 | $698,231 |
| 2023 | $474,217 | $230,000 | $0 | $704,217 | $704,217 |
| 2022 | $434,833 | $210,000 | $0 | $644,833 | $644,833 |
| 2021 | $382,817 | $140,000 | $0 | $522,817 | $522,817 |
| 2020 | $373,458 | $115,000 | $0 | $488,458 | $488,458 |
| 2019 | $243,480 | $170,000 | $0 | $413,480 | $413,480 |
| 2018 | $244,280 | $130,000 | $0 | $374,280 | $374,280 |
| 2017 | $245,792 | $120,000 | $0 | $365,792 | $365,792 |
| 2016 | $248,984 | $90,000 | $0 | $338,984 | $338,984 |
| 2015 | $252,177 | $90,000 | $0 | $342,177 | $342,177 |
| 2014 | $255,368 | $90,000 | $0 | $345,368 | $345,368 |
| 2013 | $233,113 | $80,000 | $0 | $313,113 | $313,113 |
| 2012 | $236,125 | $97,750 | $0 | $333,875 | $333,875 |
| 2011 | $239,134 | $115,000 | $0 | $354,134 | $354,134 |
| 2010 | $246,295 | $115,000 | $0 | $361,295 | $361,295 |
| 2009 | $250,741 | $140,000 | $0 | $390,741 | $390,741 |
| 2008 | $283,506 | $134,826 | $0 | $418,332 | $418,332 |
| 2007 | $278,712 | $134,826 | $0 | $413,538 | $413,538 |
Deed and Sales History
| 1 | 06/07/2019 | WD | Warranty Deed | HINSON, THOMAS MICHAEL | GOURLIE-MOORE, RENEE BETH | | | $528,800.00 | 38935 | 4465231 |
| 2 | 02/20/2014 | WD | Warranty Deed | GRAHAM, JOHN W | HINSON, THOMAS MICHAEL | | | $346,500.00 | 14360 | 4355629 |
| 3 | 05/04/2010 | ESTSEPPROP | Establish Separate Property | GRAHAM, JOHN W | GRAHAM, JOHN W | | | $0.00 | 1125 | 4273539 |
| 4 | 12/01/2004 | WD | Warranty Deed | STERN, MARY M | GRAHAM, JOHN W | | | $320,000.00 | 45663 | 4119837 |
| 5 | 05/12/1998 | WD | Warranty Deed | WENTWORTH, DONALD L | STERN, MARY M | | | $227,000.00 | 81976 | 98010505 |
| 6 | 06/01/1986 | WD | Warranty Deed | WASHINGTON, FEDERAL S | WENTWORTH, DONALD L | | | $87,500.00 | 61587 | 86007479 |
| 7 | 03/01/1986 | TRUSTEED | Trustee's Deed | GRUNOW, ROBERT W | WASHINGTON, FEDERAL S | | | $0.00 | 60617 | 86003327 |
| 8 | 06/01/1984 | WD | Warranty Deed | KELLY, EDWARD W | GRUNOW, ROBERT W | | | $103,000.00 | 41744 | 426075 |
| 9 | 07/01/1981 | TRUSTEED | Trustee's Deed | HASTINGS, R C | KELLY, EDWARD W | | | $85,000.00 | 12019 | 384914 |
| 10 | 11/01/1979 | TRUSTEED | Trustee's Deed | HASTINGS, RALPH C | HASTINGS, R C | | | $0.00 | 95545 | 361981 |
| 11 | 11/01/1978 | OTHER | Other - Misc. Documents | STERN, MARY M | HASTINGS, RALPH C | | | $7,750.00 | 853660 | 3422280 |
| 12 | 01/01/1900 | OTHER | Other - Misc. Documents | Unknown | STERN, MARY M | | | $0.00 | 81976 | 98010505 |
Payout Agreement
| No payout information available.. |